Instapklaar tweeslaapkamer appartement in de Groenenhoek
Een pand van Immo Vasta
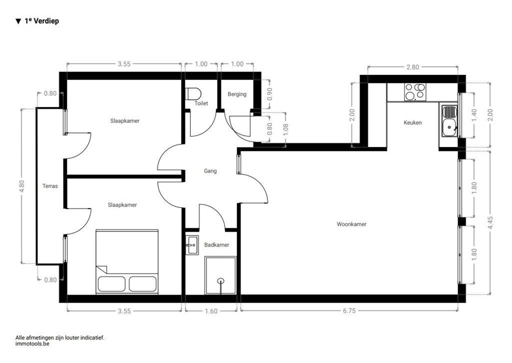
Overzicht
- 76 m² bewoonbaar
- 196 m² grond
- 2 Slaapkamer(s)
- 1 Badkamer(s)
- 1 Toilet(ten)
Beschrijving
Wonen in de rustige Groenenhoek, vlakbij Berchem station? In dit gerenoveerde appartement op de tweede verdieping van een kleinschalig gebouw vind je licht, ruimte en comfort. De moderne keuken, de luchtige leefruimte en het terras met open zicht maken dit een bijzonder fijne plek om thuis te komen. Energiezuinig (EPC B) én met airco in de master bedroom!
Slim ingedeeld en stijlvol gerenoveerd
Je komt binnen via de hal, waar meteen de industriële glazen deur met zwart frame opvalt. Achter die deur ligt de grote leefruimte van maar liefst 34 m² op lichte vloer, met een gezellige zithoek en ruime eettafel. De kamer baadt in het licht dankzij de brede raampartijen en is voorzien van elektrische rolluiken (bedienbaar met afstandsbediening) en een slimme thermostaat. De witte, open keuken werd in 2019 volledig vernieuwd en heeft alles wat je nodig hebt: inductiekookplaat, combi-oven, ijskast, diepvries, stijlvolle dampkap en veel kastruimte. Alles in frisse, moderne stijl met een werkblad in houtlook en witte wandtegels. Ook hier is veel natuurlijk licht dankzij een raam naar de straatzijde.
Comfortabel, rustig slapen en vernieuwde badkamer
De master bedroom van 14 m² heeft directe toegang tot het terras en is uitgerust met airco, parketlaminaat en elektrische rolluiken. De tweede slaapkamer (12,5 m²) is eveneens afgewerkt met parketlaminaat en biedt ruimte voor een logeer- of kinderkamer, of voor een comfortabel thuiskantoor. De badkamer is volledig vernieuwd met moderne, grijze wand- en vloertegels, een zwarte regendouche, wit badkamermeubel met zwarte grepen, en een praktisch afzuigsysteem. In de aparte berging is er een aansluiting voor wasmachine en droogkast. Het apart toilet is netjes afgewerkt met witte en grijze tegels en een hangtoilet.
Zalig wonen in de Groenenhoek
Dit appartement ligt in een rustige straat met weinig passage, in de geliefde wijk Groenenhoek. Je bent hier op wandel- of fietsafstand van het Te Boelaarpark, scholen, supermarkten en gezellige cafés. Het station van Berchem ligt op slechts 5 minuten fietsen, en via de nabijgelegen Ring en invalswegen ben je zo de stad uit.
Energie
![]() |
- EPC Certificaat: 20240802-0003312682-RES-1
- Energieverbruik: 158 kWh/m²/jaar
- E-peil: E0
- Verwarming: Gas
- Beglazing: Hoog efficient driedubbel
Op de kaart

Financieel
| Prijs | |
|---|---|
| Kadastraal inkomen (niet geïndexeerd) | € 718 |
| Kadastraal inkomen (geïndexeerd) | € 0 |
Berekening kosten
Je aankoopkosten? Die heb je snel berekent via de knop hieronder.
Bijkomende info
Gebouw
| Staat | Goed onderhouden |
|---|---|
| Bouwcertificaat | Nee |
| Bewoonbaar (m²) | 76 |
| Verdieping | 2 |
| Gevelbreedte | 7 |
| Badkamers | 1 |
| Slaapkamers | 2 |
| Verdiepingen | 2 |
| Garages | 0 |
| Parkeerplaatsen | 0 |
| Doucheruimtes | 0 |
| Toiletten | 1 |
Faciliteiten
| Keuken uitrusting | Luxueus uitgerust |
|---|---|
| Materiaal ramenomlijstingen | PVC |
| Beglazing | Hoog efficient driedubbel |
| Brandstof primaire verwarming | Gas |
| Elektrisch keuringsattest | Ja |
Perceel
| Diepte (m) | 16 |
|---|---|
| Overstromingsgevoelig | Geen |
| P-score | A |
| G-score | A |
| Voorkeurrecht | Nee |
| Totale oppervlakte (m²) | 196 |
| Bebouwde oppervlakte (m²) | 0 |
| Tuin oppervlakte (m²) | 0 |
| Oppervlakte terras (m²) | 4 |
| Oriëntatie tuin | Oost |
Vergunning
| Vergunning | Aanvraag ingediend |
|---|
Uitrusting
| Investeringspand | Nee |
|---|---|
| Geschikt voor praktijk | Nee |
| Parking | Nee |
| Garage | Nee |
| Thuiskantoor | Nee |
| Kelder | Ja |
| Zolder | Nee |
| Tuin | Nee |
| Terras | Ja |
| Lift | Nee |
| Rioolaansluiting | Nee |
| Gasaansluiting | Ja |
| Wateraansluiting | Ja |
| Elektriciteitsaansluiting | Ja |
| TV aansluiting | Nee |
| Internetaansluiting | Nee |
| Telefoonaansluiting | Nee |
Appartementsblok
| Aantal verdiepingen | 2 |
|---|---|
| Lift | Nee |
