Gerenoveerde woning met zuidgerichte tuin
€ 639.000
Een pand van Immo Vasta
Overzicht
- 179 m² bewoonbaar
- 178 m² grond
- 3 Slaapkamer(s)
- 2 Badkamer(s)
- 3 Toilet(ten)
- 1 Tuin
- 1 Garage(s)
Beschrijving
Wonen in een rustige, gegeerde buurt van Borgerhout, net buiten de Singel én op wandelafstand van het Te Boelaerpark? Dat kan, in deze volledig gerenoveerde woning met vloerverwarming, 3 grote slaapkamers plus bureaukamer, inpandige garage én een grote, zuidgerichte tuin van maar liefst 103 m². Alles klaar om als eerste bewoner in te trekken!
Modern & prachtige tuin
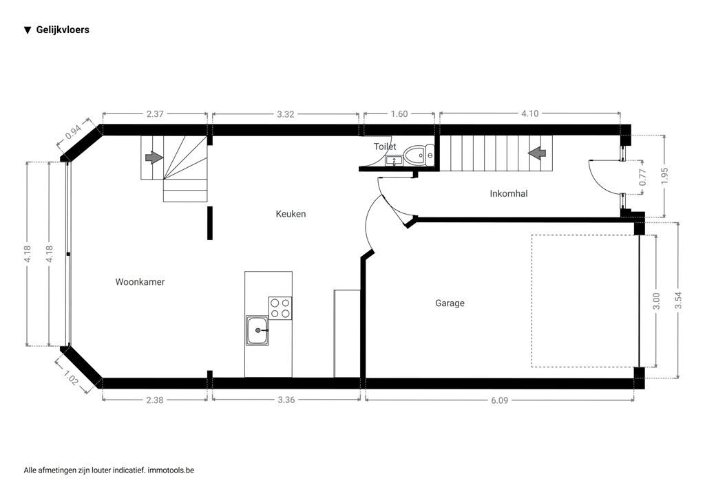
Op het gelijkvloers word je verwelkomd in een charmante inkomhal op karaktervolle retrotegels, waar de authentieke trap meteen de toon zet voor de rest van het huis. Links vind je de ruime garage met sectionale poort, voorzien van alle praktische aansluitingen voor wasmachine en droogkast. . Via de hal wandel je door naar de leefkeuken: een prachtige, open ruimte op warme parketvloer, met een kamerhoge schuifraam die zorgt voor een naadloze verbinding tussen binnen en buiten. De stijlvolle keuken vormt het kloppend hart van de woning. Rond het grote kookeiland is het heerlijk vertoeven - koken, praten, genieten - alles komt hier samen. De ingebouwde spots en de subtiele sfeerverlichting onder het werkblad zorgen voor de juiste toon op elk moment van de dag. Alle toestellen zijn van Bosch en staan garant voor kwaliteit en gebruiksgemak: een inductievuur, ruime spoelbak, ijskast, diepvries en vaatwasser maken het plaatje compleet. Achter de leefkeuken bevindt zicht de tuin, een plek die meteen tot de verbeelding spreekt. Zuidgericht, badend in het zonlicht, met een verzorgd gazon, sfeervolle klinkers en hier en daar een fruitboom die voor kleur en karakter zorgt. De hoge begroeiing rondom biedt niet alleen privacy, maar ook een zalig gevoel van rust — alsof je even helemaal weg bent, gewoon in je eigen tuin. Ook op dit niveau bevindt zich een apart toilet met handenwasser en ventilatie.
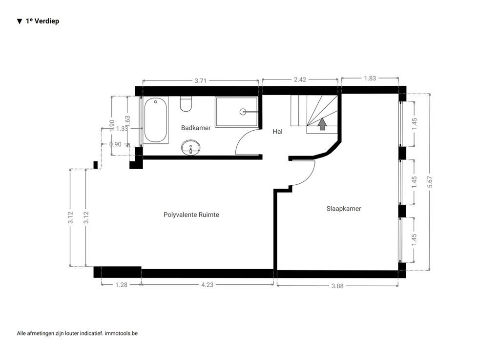
Drie slaapkamers , bureaukamer en twee badkamers
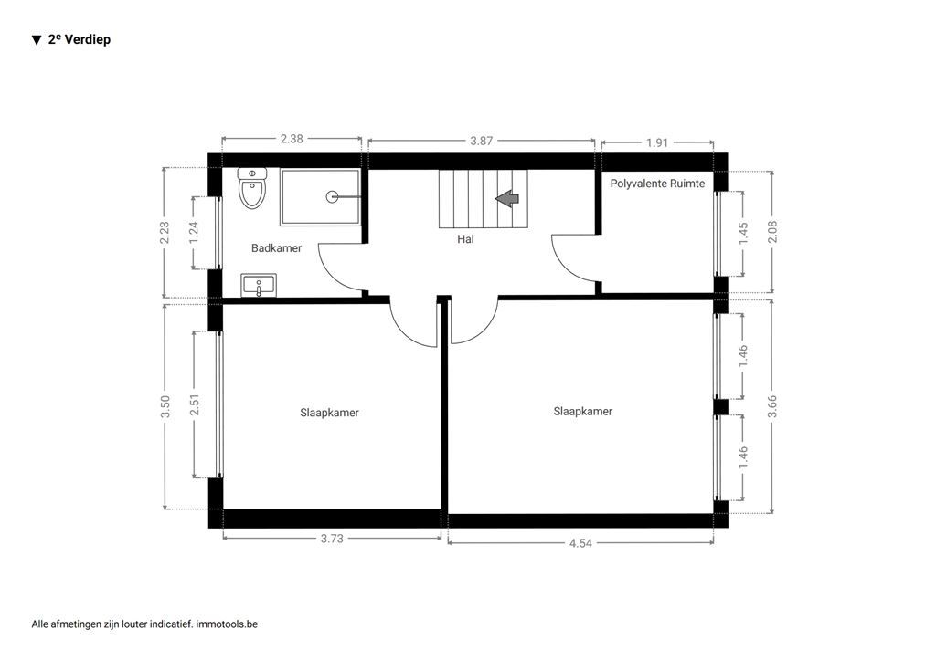
Op de eerste verdieping kom je via de inpandige trap in de lichtrijke woonkamer ( die nog voorzien moet worden van een glazen ballustrade ), opnieuw op dezelfde mooie parket. Van hieruit heb je een heerlijk zicht op de tuin. Verder op deze verdieping vind je de ruime master bedroom aan de voorzijde van het huis, met 3 dubbele kamerhoge ramen en een leuke hoek perfect om een extra bureau of kast te zetten. De aansluitende badkamer is modern en compleet: een inloopdouche met regendouche, ligbad, handdoekenradiator, badkamermeubel met spoelbak en zijkasten, én automatische ventilatie. Op de tweede verdieping vind je de nachthal op parket, met toegang tot een tweede badkamer uitgerust met inloopdouche, gietvloer, WC, handenwasser en spiegel. Verder heb je op deze verdieping nog 2 ruime slaapkamers een extra bureaukamer – allemaal met veel licht en opnieuw op diezelfde kwaliteitsvolle parketvloer.
Sporten, wandelen en genieten
Je woont hier in één van de meest gewilde buurten van Borgerhout: net buiten de Singel, vlak bij het Te Boelaerpark en met alles op wandelafstand. Van Delhaize tot buurtwinkels, van openbaar vervoer (bus, tram én Velo) tot gezellige adresjes zoals Bar Brul: alles ligt om de hoek. En met de Ring dichtbij, ben je ook snel in of uit de stad.
Energie
![]() |
- EPC Certificaat: 20251113-0003368301-RES-2
- Energieverbruik: 127 kWh/m²/jaar
- E-peil: E0
- Verwarming: Gas
- Beglazing: Standaard dubbel
Op de kaart

Financieel
| Prijs | |
|---|---|
| Kadastraal inkomen (niet geïndexeerd) | € 1.068 |
| Kadastraal inkomen (geïndexeerd) | € 0 |
Berekening kosten
Je aankoopkosten? Die heb je snel berekent via de knop hieronder.
Bijkomende info
Gebouw
| Bouwjaar | 1957 |
|---|---|
| Staat | Goed onderhouden |
| Bouwcertificaat | Nee |
| Bewoonbaar (m²) | 179 |
| Verdieping | 0 |
| Badkamers | 2 |
| Slaapkamers | 3 |
| Verdiepingen | 2 |
| Garages | 1 |
| Parkeerplaatsen | 0 |
| Doucheruimtes | 0 |
| Toiletten | 3 |
Faciliteiten
| Keuken uitrusting | Luxueus uitgerust |
|---|---|
| Materiaal ramenomlijstingen | Aluminium |
| Beglazing | Standaard dubbel |
| Brandstof primaire verwarming | Gas |
| Elektrisch keuringsattest | Ja |
Perceel
| Overstromingsgevoelig | Geen |
|---|---|
| P-score | A |
| G-score | A |
| Voorkeurrecht | Nee |
| Totale oppervlakte (m²) | 178 |
| Bebouwde oppervlakte (m²) | 0 |
| Tuin oppervlakte (m²) | 103 |
| Oppervlakte terras (m²) | 0 |
| Oriëntatie tuin | Zuid |
Vergunning
| Vergunning | Aanvraag ingediend |
|---|
Uitrusting
| Investeringspand | Nee |
|---|---|
| Geschikt voor praktijk | Nee |
| Parking | Nee |
| Garage | Ja |
| Thuiskantoor | Nee |
| Kelder | Nee |
| Zolder | Nee |
| Tuin | Ja |
| Terras | Nee |
| Lift | Nee |
| Rioolaansluiting | Ja |
| Gasaansluiting | Ja |
| Wateraansluiting | Ja |
| Elektriciteitsaansluiting | Ja |
| TV aansluiting | Nee |
| Internetaansluiting | Nee |
| Telefoonaansluiting | Nee |
