Lichtrijke en Energiezuinige Gezinswoning met Dakterras
€ 485.000
Een pand van Reant
Overzicht
- 217 m² bewoonbaar
- 3 Slaapkamer(s)
- 1 Badkamer(s)
- 2 Toilet(ten)
- 1 Tuin
- 1 Garage(s)
Overstromingsgevaar gebouw
Overstromingsgevaar perceel
Beschrijving
Lichtrijke en Energiezuinige Gezinswoning met Dakterras in Hartje Borgerhout
In een rustige, gezellige wijk midden in Borgerhout, vlakbij het levendige Krugerplein en het groene Rivierenhof, vinden we deze verrassend ruime, instapklare woning met een slimme en speelse indeling.
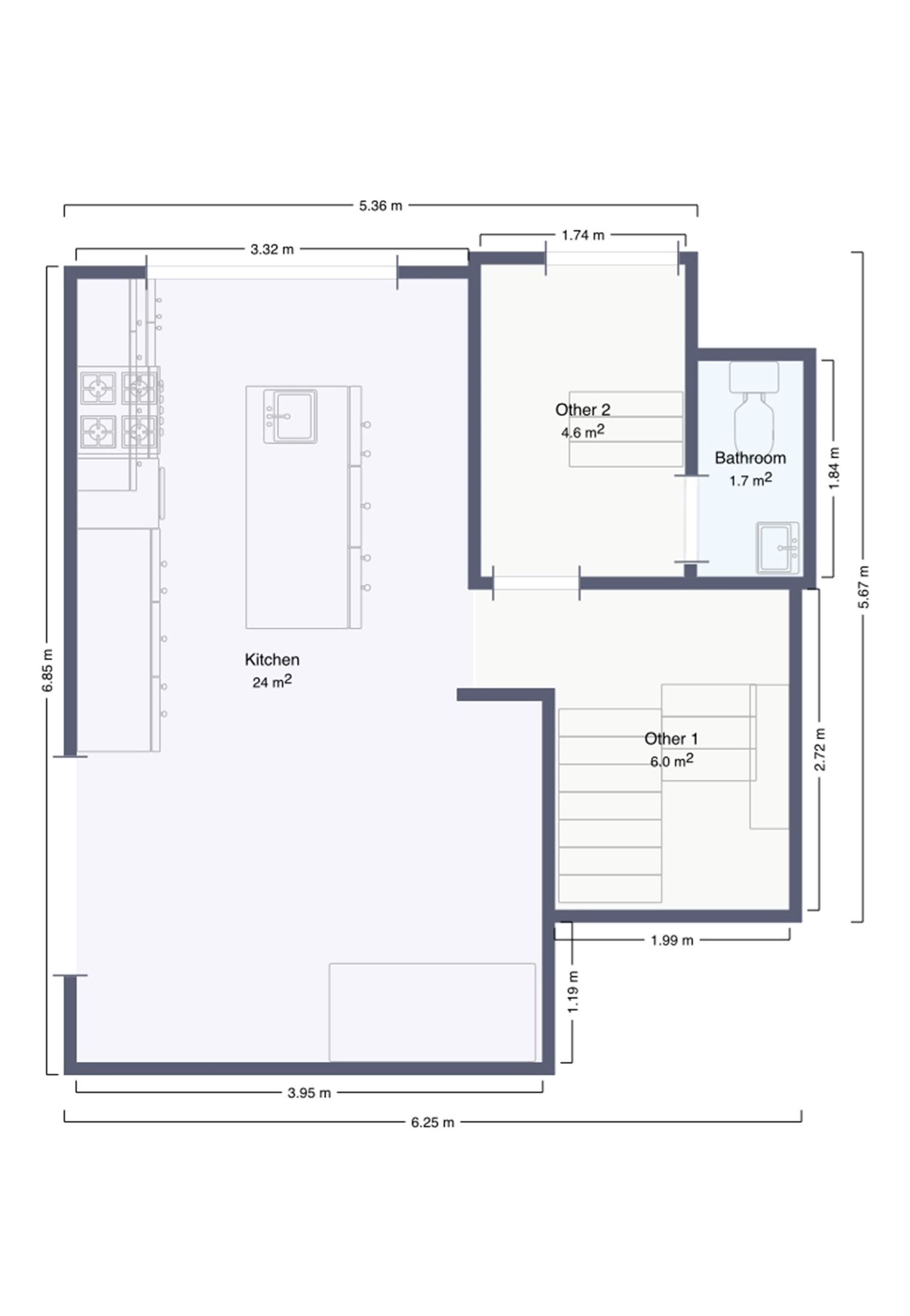
De woning werd gebouwd in 2017 en telt 3 volwaardige verdiepingen, een zeer ruime kelder én twee buitenruimtes. Je komt binnen via de inkomhal met gastentoilet. Een trapje hoger ligt de stijlvolle keuken, voorzien van een prachtig terrazzo werkblad en rechtstreeks verbonden met de eerste gemeenschappelijke buitenruimte. Deze wordt binnenkort heraangelegd tot een groene stadsoase.
Op de eerste verdieping bevindt zich de ruime badkamer met ligbad, douche en tweede toilet. Daarnaast zijn er 2 comfortabele slaapkamers. Opvallend is de mooie parketvloer die doorloopt naar de verdieping erboven.
Op de tweede verdieping baadt de ruime living in het licht dankzij de grote raampartijen tot op de vloer en waar je een extra slaapkamer kan inrichten. Aansluitend bevindt zich het eerste private terras. Helemaal boven wacht het ruime dakterras, ideaal voor zonnige momenten of gezellige barbecues.
Als extra troef is er een polyvalente gemeenschappelijke zaal, die door alle bewoners vrij gebruikt mag worden.
Tot slot is er de mogelijkheid om een overdekte en beveiligde autostaanplaats aan te kopen voor €35.000 met aansluiting voor een laadpaal.
De Florastraat is een rustige straat in een levendige wijk, op wandelafstand van gezellige horeca zoals Bar Leon en nabij het prachtige Rivierenhof. Winkels, scholen en openbaar vervoer zijn vlakbij. Dankzij de centrale ligging ben je ook snel in het stadscentrum of op de invalswegen.
Stedenbouwkundig uittreksel in aanvraag.
TROEVEN
+ Energiezuinige woning (bouwjaar 2017)
+ Grote leefruimtes met veel lichtinval
+ Twee terrassen, waaronder een royaal dakterras
+ Mooie afwerkingen: parketvloer, terrazzo keukenblad
+ Gemeenschappelijke tuin én polyvalente zaal
+ Centrale, maar rustige ligging in Borgerhout
Energie
![]() |
- EPC Certificaat: 11002-A-8.00/11002/444862.4/EP13217/A001/D01/SD001
- Energieverbruik: 59 kWh/m²/jaar
- E-peil: E38
- Verwarming: Gas
- Beglazing: Standaard dubbel
Op de kaart

Downloads
Financieel
| Prijs | |
|---|---|
| Kadastraal inkomen (niet geïndexeerd) | € 0 |
| Kadastraal inkomen (geïndexeerd) | € 0 |
Berekening kosten
Je aankoopkosten? Die heb je snel berekent via de knop hieronder.
Bijkomende info
Gebouw
| Bouwcertificaat | Nee |
|---|---|
| Bewoonbaar (m²) | 217 |
| Verdieping | 0 |
| Gevelbreedte | 7 |
| Badkamers | 1 |
| Slaapkamers | 3 |
| Verdiepingen | 2 |
| Garages | 1 |
| Parkeerplaatsen | 1 |
| Doucheruimtes | 0 |
| Toiletten | 2 |
Faciliteiten
| Beglazing | Standaard dubbel |
|---|---|
| Brandstof primaire verwarming | Gas |
| Elektrisch keuringsattest | Ja |
Perceel
| Overstromingsgevoelig | Geen |
|---|---|
| P-score | D |
| G-score | D |
| Voorkeurrecht | Ja |
| Bebouwde oppervlakte (m²) | 0 |
| Tuin oppervlakte (m²) | 20 |
| Oppervlakte terras (m²) | 20 |
| Oriëntatie tuin | Zuid |
Vergunning
| Vergunning | Aanvraag ingediend |
|---|---|
| Verkavelingsvergunning | Aanvraag ingediend |
Uitrusting
| Investeringspand | Nee |
|---|---|
| Geschikt voor praktijk | Nee |
| Parking | Ja |
| Garage | Ja |
| Thuiskantoor | Nee |
| Kelder | Ja |
| Zolder | Nee |
| Tuin | Ja |
| Terras | Ja |
| Lift | Nee |
| Rioolaansluiting | Ja |
| Gasaansluiting | Ja |
| Wateraansluiting | Ja |
| Elektriciteitsaansluiting | Ja |
| TV aansluiting | Ja |
| Internetaansluiting | Ja |
| Telefoonaansluiting | Nee |
