Te renoveren woning in rustige, gegeerde wijk
€ 235.000
Een pand van Immo Vasta
Overzicht
- 101 m² bewoonbaar
- 217 m² grond
- 2 Slaapkamer(s)
- 1 Badkamer(s)
- 1 Toilet(ten)
- 1 Tuin
Beschrijving
Zin om je tanden te zetten in een renovatieproject met véél potentieel?
Welkom in Eksterlaar 152 in Borsbeek: een charmant huisje dat smeekt om een totaalmake-over, mét de mogelijkheid tot uitbouw. Ideaal voor wie droomt van een woning die volledig op maat en smaak kan worden afgewerkt. Voeg daar een grote tuin aan toe, een ligging nabij de 2 parken te Deurne Zuid én een mobiscore van 9,1, en je hebt een unieke kans in handen.
Wonen met mogelijkheden
Open ruimte en zicht op het groen
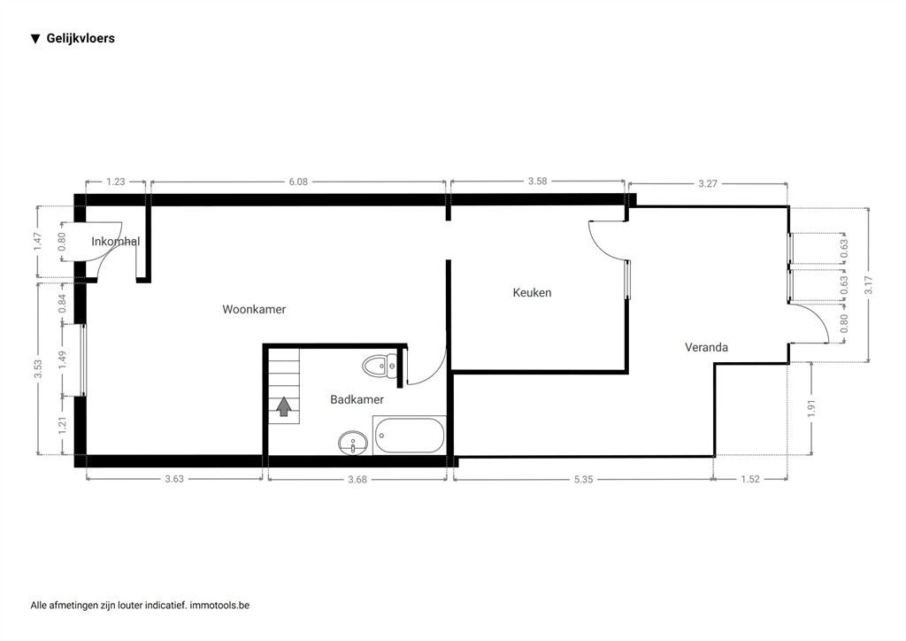
Binnenkomen doe je via de inkomhal, waarna je meteen de open leefruimte betreedt. Hier heb je verschillende indelingsopties – open leefruimte met kookeiland? Thuisbureau? Alles kan. De keuken aan de achterzijde grenst aan de veranda, die mits renovatie een heerlijk lichte leefruimte kan worden. En wil je nog meer ruimte? De tuin leent zich perfect voor een uitbreiding achteraan.
Via de veranda stap je de diepe, zuid-gerichte tuin ca120m² in. Een parel voor wie houdt van buitenruimte, groen of wil tuinieren.
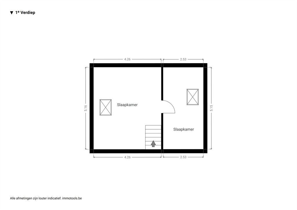
Badkamer op tussenverdiep & ruime kamers boven
De badkamer, een paar treden hoger gelegen, is voorzien van een bad, toilet en lavabo – de perfecte basis om in iets fris en moderns om te toveren.
Op de eerste verdieping bevinden zich de twee slaapkamers (22 m² en 12 m²), met houten vloeren en veel licht.
Trendy buurt vlakbij het Boekenbergpark, met alles vlakbij
Het is hier rustig wonen in deze hippe, residentiële woonwijk op enkele straten van het mooie Boekenbergpark én het Floris Primspark. Je hebt een Carrefour op 700 meter van je voordeur en een velo-station op 350m. Trams en bussen vind je op nabijgelegen Dascottalei en ook de Ring is niet veraf. Café Exter zit net om de hoek, en daarnaast heb je hier ook nog heel wat fijne horecazaken op fietsafstand.
Renovatieverplichting van toepassing.
Energie
![]() |
- EPC Certificaat: 20250808-0003661015-RES-1
- Energieverbruik: 557 kWh/m²/jaar
- E-peil: E0
- Beglazing: Standaard dubbel
Extra budget nodig voor je renovatie?

Op de kaart

Financieel
| Prijs | |
|---|---|
| Kadastraal inkomen (niet geïndexeerd) | € 285 |
| Kadastraal inkomen (geïndexeerd) | € 0 |
Berekening kosten
Je aankoopkosten? Die heb je snel berekent via de knop hieronder.
Bijkomende info
Gebouw
| Staat | Op te frissen |
|---|---|
| Bouwcertificaat | Nee |
| Bewoonbaar (m²) | 101 |
| Verdieping | 0 |
| Badkamers | 1 |
| Slaapkamers | 2 |
| Verdiepingen | 1 |
| Garages | 0 |
| Parkeerplaatsen | 0 |
| Doucheruimtes | 0 |
| Toiletten | 1 |
Faciliteiten
| Keuken uitrusting | Standaard |
|---|---|
| Materiaal ramenomlijstingen | PVC |
| Beglazing | Standaard dubbel |
| Elektrisch keuringsattest | Nee |
Perceel
| Overstromingsgevoelig | Geen |
|---|---|
| P-score | A |
| G-score | A |
| Voorkeurrecht | Nee |
| Totale oppervlakte (m²) | 217 |
| Bebouwde oppervlakte (m²) | 0 |
| Tuin oppervlakte (m²) | 130 |
| Oppervlakte terras (m²) | 0 |
| Oriëntatie tuin | Zuid |
Vergunning
| Vergunning | Aanvraag ingediend |
|---|
Uitrusting
| Investeringspand | Nee |
|---|---|
| Geschikt voor praktijk | Nee |
| Parking | Nee |
| Garage | Nee |
| Thuiskantoor | Nee |
| Kelder | Nee |
| Zolder | Nee |
| Tuin | Ja |
| Terras | Nee |
| Lift | Nee |
| Rioolaansluiting | Nee |
| Gasaansluiting | Nee |
| Wateraansluiting | Nee |
| Elektriciteitsaansluiting | Nee |
| TV aansluiting | Nee |
| Internetaansluiting | Nee |
| Telefoonaansluiting | Nee |



