Ruime woning met inpandige garage en tuin
€ 499.000
Een pand van Immo Vasta
Overzicht
- 230 m² bewoonbaar
- 196 m² grond
- 4 Slaapkamer(s)
- 2 Badkamer(s)
- 2 Toilet(ten)
- 1 Tuin
- 1 Garage(s)
Beschrijving
Tussen Boekenbergpark en Fort 2 in een rustige woonwijk in de rand van Antwerpen, vind je deze goed onderhouden woning met veel ruimte en lichtinval. Deze gezinswoning uit de jaren ’90 combineert comfort, praktische indeling en een aangename ligging vlak bij groen en openbaar vervoer. Met 4 slaapkamers, 2 badkamers, een grote inpandige garage, een oostgerichte tuin en een gezellig terras is dit een ideale gezinswoning waar je meteen kunt intrekken.
De inkomhal verwelkomt je met natuurlijk licht en een brede, stalen wenteltrap als eyecatcher. Hier vind je ook plaats voor een vestiairekast en heb je toegang tot de garage, wasruimte en een ruime slaapkamer. De inpandige garage met automatische poort is met zijn ca. 27m² gerust ruim te noemen. De slaapkamer op het gelijkvloers kijkt uit op de tuin en kan evengoed functioneren als bureau, speelkamer of gastenkamer. In de aansluitende wasruimte is nog een extra douche voorzien. Ook deze ruimte geeft toegang tot de tuin — handig voor gezinnen met kinderen.
Licht & ruimte op de eerste verdieping
De riante woonkamer baadt in het licht dankzij de grote ramen voor- en achteraan. De westgerichte voorgevel zorgt voor avondzon, terwijl je aan de oostkant via het terras van de ochtendzon geniet. De parketvloer geeft de leefruimte een warme toets en biedt plaats voor zowel een gezellige zithoek als een grote eettafel. De keuken is afgewerkt met een natuurstenen werkblad en voorzien van een inductiekookplaat, dampkap, oven, vaatwasser, dubbele spoelbak en heel wat kastruimte. Naast de keuken bevindt zich een aparte berging. Het oostgerichte terras (9,5 m²) sluit via een stalen buitentrap aan bij de tuin van 80 m². Dankzij de ligging heb je hier weinig inkijk en geniet je van een rustige buitenruimte, ideaal voor ontbijt in de zon of zomerse diners.
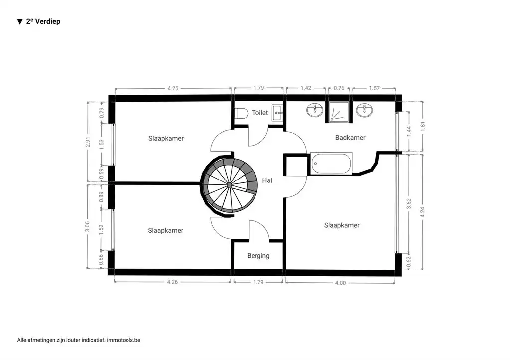
Ruimte & comfort boven
Op de tweede verdieping vind je drie ruime slaapkamers (ca16 m², 15 m² en 18,5 m²) — allemaal met laminaatvloer en vliegenramen. Twee kamers kijken uit op de tuin, één op de boomkruinen aan de straatzijde. De badkamer is afgewerkt met een fijne groene mozaïek tegel en voorzien van ligbad, aparte douche en twee lavabomeubels. Daarnaast is er nog een aparte technische ruimte en een extra toilet met lavabo.
Groen & goed bereikbaar
De woning ligt in een rustige woonwijk tussen het Boekenbergpark en Fort 2 — ideaal voor wie houdt van wandelen, sporten of gewoon genieten van de natuur. Supermarkten, scholen en buurtwinkels zijn vlakbij, net als tram en bus richting Antwerpen. Met de Ring en E313 op enkele minuten rijden, zit je ook snel op weg.
Energie
![]() |
- EPC Certificaat: 20251215-0003757948-RES-1
- Energieverbruik: 175 kWh/m²/jaar
- E-peil: E0
- Verwarming: Gas
- Beglazing: Standaard dubbel
Op de kaart

Financieel
| Prijs | |
|---|---|
| Kadastraal inkomen (niet geïndexeerd) | € 1.527 |
| Kadastraal inkomen (geïndexeerd) | € 0 |
Berekening kosten
Je aankoopkosten? Die heb je snel berekent via de knop hieronder.
Bijkomende info
Gebouw
| Bouwjaar | 1995 |
|---|---|
| Staat | Zo goed als nieuw |
| Bouwcertificaat | Nee |
| Bewoonbaar (m²) | 230 |
| Verdieping | 0 |
| Gevelbreedte | 6.5 |
| Badkamers | 2 |
| Slaapkamers | 4 |
| Verdiepingen | 2 |
| Garages | 1 |
| Parkeerplaatsen | 0 |
| Doucheruimtes | 0 |
| Toiletten | 2 |
Faciliteiten
| Keuken uitrusting | Luxueus uitgerust |
|---|---|
| Materiaal ramenomlijstingen | Hout |
| Beglazing | Standaard dubbel |
| Brandstof primaire verwarming | Gas |
| Elektrisch keuringsattest | Nee |
Perceel
| Diepte (m) | 30 |
|---|---|
| Breedte (m) | 6 |
| Overstromingsgevoelig | Geen |
| P-score | A |
| G-score | A |
| Voorkeurrecht | Nee |
| Totale oppervlakte (m²) | 196 |
| Bebouwde oppervlakte (m²) | 0 |
| Tuin oppervlakte (m²) | 80 |
| Oppervlakte terras (m²) | 9 |
| Oriëntatie tuin | Oost |
Vergunning
| Vergunning | Vergunning beschikbaar |
|---|---|
| Verkavelingsvergunning | Vergunning beschikbaar |
Uitrusting
| Investeringspand | Nee |
|---|---|
| Geschikt voor praktijk | Nee |
| Parking | Nee |
| Garage | Ja |
| Thuiskantoor | Nee |
| Kelder | Nee |
| Zolder | Nee |
| Tuin | Ja |
| Terras | Ja |
| Lift | Nee |
| Rioolaansluiting | Nee |
| Gasaansluiting | Nee |
| Wateraansluiting | Nee |
| Elektriciteitsaansluiting | Nee |
| TV aansluiting | Nee |
| Internetaansluiting | Nee |
| Telefoonaansluiting | Nee |
