> Te koop > WOMMELGEM > Industrieel-magazijn-logistiek > Magazijn met bureel in industriezone
Nieuw

Magazijn met bureel in industriezone

Een pand van Immo Vasta

Volledige aanbod

Overzicht


  • 340 m² bewoonbaar
  • 551 m² grond
  • 3 Slaapkamer(s)
  • 2 Badkamer(s)
  • 2 Toilet(ten)
  • 1 Tuin

Beschrijving


Je bedrijf op een toplocatie vestigen?
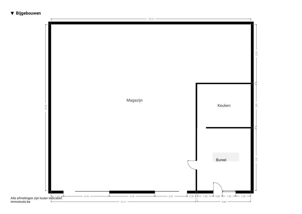
Deze ruime werkplaats van ca. 340 m² ligt midden in de gegeerde KMO-zone van Wommelgem. Twee grote sectionaalpoorten, een brede oprit en een open indeling maken dit een uiterst toegankelijke én flexibele ruimte voor opslag, atelier of ambacht. Met de E313 en Antwerpse Ring vlakbij, ben je perfect bereikbaar voor klanten, leveranciers én personeel.  De dubbele sectionaalpoorten zorgen voor een makkelijke inrit voor bestel- of vrachtwagens. De open indeling laat je toe de ruimte helemaal af te stemmen op je noden van opslagplaats tot atelier of werkplek op maat. Aansluitend is er ruimte voorzien voor een kantoor of ontvangstruimte, zodat je administratie en operationele werking perfect kunt combineren.

Zichtbaar, bereikbaar, professioneel
De ligging is een absolute troef. Je zit hier op enkele minuten van het rondpunt van Wommelgem en de oprit naar de E313, waardoor je in een wip richting Antwerpen of Hasselt rijdt. Ook de Antwerpse Ring is vlakbij. Je profiteert bovendien van de visibiliteit en de professionele uitstraling van een gevestigde KMO-zone met tal van actieve ondernemingen. Parking? Die is er voldoende.
Op vijf minuten rijden ben je in het gezellige centrum van Wommelgem, waar je alles vindt wat je nodig hebt: supermarkten, bakkers, apotheek, horeca en zelfs scholen. Praktisch voor je medewerkers én aangenaam voor klanten.

Energie


  • E-peil: E0
  • Beglazing: Onbekend

Op de kaart


map placeholder

Financieel


Prijs € 379.000
Kadastraal inkomen (niet geïndexeerd) € 0
Kadastraal inkomen (geïndexeerd) € 0

Berekening kosten


Je aankoopkosten? Die heb je snel berekent via de knop hieronder.

Bijkomende info


Gebouw
Staat Goed onderhouden
Bouwcertificaat Nee
Bewoonbaar (m²) 340
Verdieping 0
Gevelbreedte 22
Badkamers 2
Slaapkamers 3
Verdiepingen 1
Garages 0
Parkeerplaatsen 0
Doucheruimtes 0
Toiletten 2
Faciliteiten
Keuken uitrusting Luxueus uitgerust
Elektrisch keuringsattest Nee
Perceel
Diepte (m) 25
Overstromingsgevoelig Geen
P-score B
G-score B
Voorkeurrecht Nee
Totale oppervlakte (m²) 551
Bebouwde oppervlakte (m²) 340
Tuin oppervlakte (m²) 115
Oppervlakte terras (m²) 0
Vergunning
Vergunning Vergunning beschikbaar
Uitrusting
Investeringspand Nee
Geschikt voor praktijk Nee
Parking Nee
Garage Nee
Thuiskantoor Nee
Kelder Nee
Zolder Nee
Tuin Ja
Terras Nee
Lift Nee
Rioolaansluiting Nee
Gasaansluiting Ja
Wateraansluiting Ja
Elektriciteitsaansluiting Ja
TV aansluiting Nee
Internetaansluiting Nee
Telefoonaansluiting Nee
Appartementsblok
Aantal verdiepingen 1
Lift Nee

Een pand van


Immo Vasta
Logo van makelaar: Immo Vasta
ImmoVasta: niet zo maar een vastgoedkantoor
Immovasta heeft jarenlange ervaring in de Antwerpse vastgoedsector. We beoefenen ons vak sinds 2001, nog steeds met heel veel passie, zin en motivatie. We hebben een gevarieerd aanbod, waarbij we doelgericht profileren naar onze kopers. Toffe starterswoning in Boho of in ‘den 2060’, investeringsproject op het Eilandje of statig herenhuis op het Zuid, we hebben het allemaal. Ons hecht team is prima op elkaar ingespeeld, en dat voel je in onze persoonlijke aanpak. Met onze erkende makelaars, projectmanagers, administratieve kraks en zelfs een interieurvormgever hebben we heel wat talent in huis waar we trots op zijn. We hebben een groot netwerk. Dat is handig om up-to-date te blijven in de sector en een extra kanaal om onze panden te vinden én te promoten. We zijn eerlijk en maken je geen blaasjes wijs. Realistische vraagprijzen en een open communicatie, daar herken je ons aan.
Logo van makelaar: Immo Vasta
GUDDEGEMSTRAAT 27 WOMMELGEM
Magazijn met bureel in industriezone foto {{pictureIndex}}

Magazijn met bureel in industriezone

€ 379.000

Guddegemstraat 27 - 2160 WOMMELGEM

Bezoek het pand

Vul jouw contactgegevens hieronder in en de makelaar contacteert je.

Leer meer over vastgoed

05 November 2024
Bedrijfsvastgoed in transitie: ontdek de toekomst van werkplekken
16 October 2024
Opbrengsteigendom: een slim pad naar passief inkomen en vermogensgroei
09 September 2024
Tijdelijk vastgoed: flexibele oplossingen voor een dynamische markt
12 August 2024
Bedrijfsovername: dit moet je weten voor een succesvolle start