Huis
€ 539.500
Een pand van Janssen en Janssen
Overzicht
- 506 m² bewoonbaar
- 2 Toilet(ten)
- 1 Garage(s)
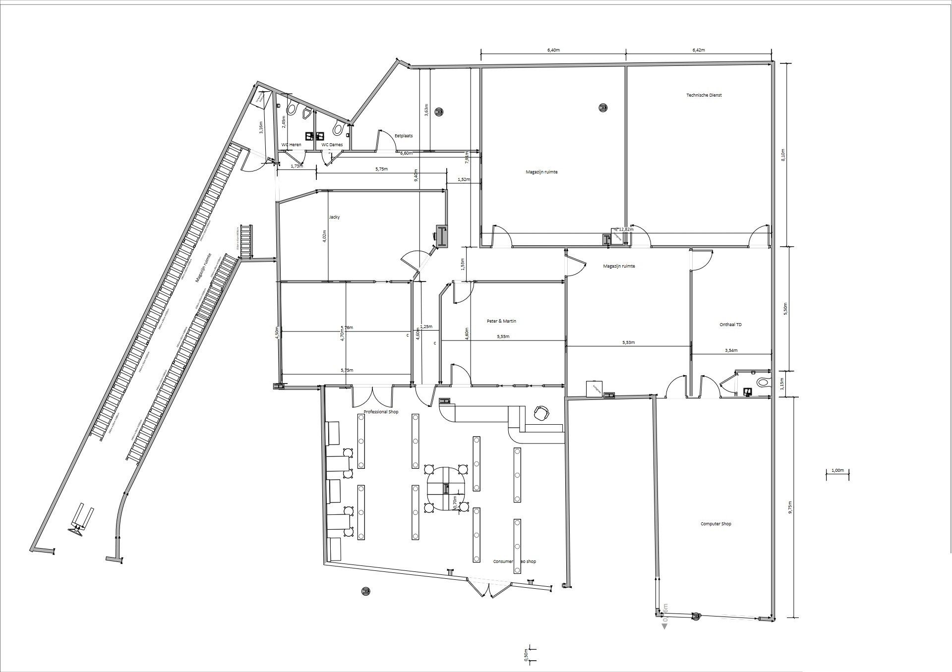
Beschrijving
Dit handelspand is een polyvalente ruimte geschikt voor alle doeleinden. Gelegen in een zijstraat van de Bredabaan aan een gezellig pleintje, beschikt deze ruimte over een oppervlakte van 506 vierkante meter. Aanpalend een zeer ruime parking voor klanten. Wekelijks is er markt, zodat de zichtbaarheid enorm is.
Uniek aan deze gelijkvloers is dat het een modern gebouw is, van 2003, met alle nodige isolatienormen van 2003. De hele voorgevel bestaat uit glazen ramen die niet alleen driedubbel zijn, maar ook inbraakwerend!
Het dak is geïsoleerd, en de vloeren zijn gemaakt van wapening en isolerend schuimbeton voor zware lasten in het gebouw te kunnen verplaatsen. Aanvullend randstroken van 5mm om het geheel een prachtige uitstraling te geven. Deze ruimte beschikt ook over een garage met laad-en loszone, zodat klanten niet worden lastig gevallen.
Heel speciaal: dit gebouw is ontworpen met modulair scheidingswanden: u kan op elke plaats een kantoorruimte maken, of alle wanden verwijderen zodat dit een ongelooflijke grote ruimte wordt.
Door de aandacht aan isolatie maakt dat het verwarmen zeer voordelig is! Kom gewoon eens kijken en laat u verrassen!!!
Energie
- EPC Certificaat: 20250312-0015757862-NR-1
- E-peil: E0
- Verwarming: Gas
- Beglazing: Hoog efficient driedubbel
Op de kaart

Financieel
| Prijs | |
|---|---|
| Kadastraal inkomen (niet geïndexeerd) | € 0 |
| Kadastraal inkomen (geïndexeerd) | € 0 |
Berekening kosten
Je aankoopkosten? Die heb je snel berekent via de knop hieronder.
Bijkomende info
Gebouw
| Bouwjaar | 2003 |
|---|---|
| Staat | Zo goed als nieuw |
| Bouwcertificaat | Nee |
| Bewoonbaar (m²) | 506 |
| Verdieping | 0 |
| Badkamers | 0 |
| Slaapkamers | 0 |
| Verdiepingen | 0 |
| Garages | 1 |
| Parkeerplaatsen | 0 |
| Doucheruimtes | 0 |
| Toiletten | 2 |
Faciliteiten
| Materiaal ramenomlijstingen | Hout |
|---|---|
| Beglazing | Hoog efficient driedubbel |
| Brandstof primaire verwarming | Gas |
| Elektrisch keuringsattest | Ja |
Perceel
| Overstromingsgevoelig | Geen |
|---|---|
| Voorkeurrecht | Nee |
| Bebouwde oppervlakte (m²) | 0 |
| Tuin oppervlakte (m²) | 0 |
| Oppervlakte terras (m²) | 0 |
Vergunning
| Vergunning | Geen beschikbaar |
|---|---|
| Verkavelingsvergunning | Geen beschikbaar |
Uitrusting
| Investeringspand | Nee |
|---|---|
| Geschikt voor praktijk | Nee |
| Parking | Nee |
| Garage | Ja |
| Thuiskantoor | Ja |
| Kelder | Nee |
| Zolder | Nee |
| Tuin | Nee |
| Terras | Nee |
| Lift | Nee |
| Rioolaansluiting | Nee |
| Gasaansluiting | Nee |
| Wateraansluiting | Nee |
| Elektriciteitsaansluiting | Nee |
| TV aansluiting | Nee |
| Internetaansluiting | Nee |
| Telefoonaansluiting | Nee |
Appartementsblok
| Lift | Nee |
|---|