Vergund opbrengsteigendom met 6 appartementen en garage
€ 1.199.000
Een pand van Bolt Immo
Overzicht
- 500 m² bewoonbaar
- 255 m² grond
- 9 Slaapkamer(s)
- 6 Badkamer(s)
- 6 Toilet(ten)
- 1 Tuin
- 1 Garage(s)
Beschrijving
Vergund opbrengsteigendom in Merksem bestaande uit 6 appartementen en een gelijkvloerse garage/magazijn
Ligging:
Ideaal gelegen in een recent opgewaardeerde en heraangelegde wijk in Merksem, schuin tegenover een groen pleintje, op wandelafstand van alle openbaar vervoer (bus en tram).
Het gebouw werd in 2023 volledig gerenoveerd en is momenteel verhuurd aan 6.309 euro per maand, wat neerkomt op 75.708 euro per jaar. Dit geeft een NETTO huurrendement van ca 5,5%.
Indeling:
Gelijkvloerse verdieping:
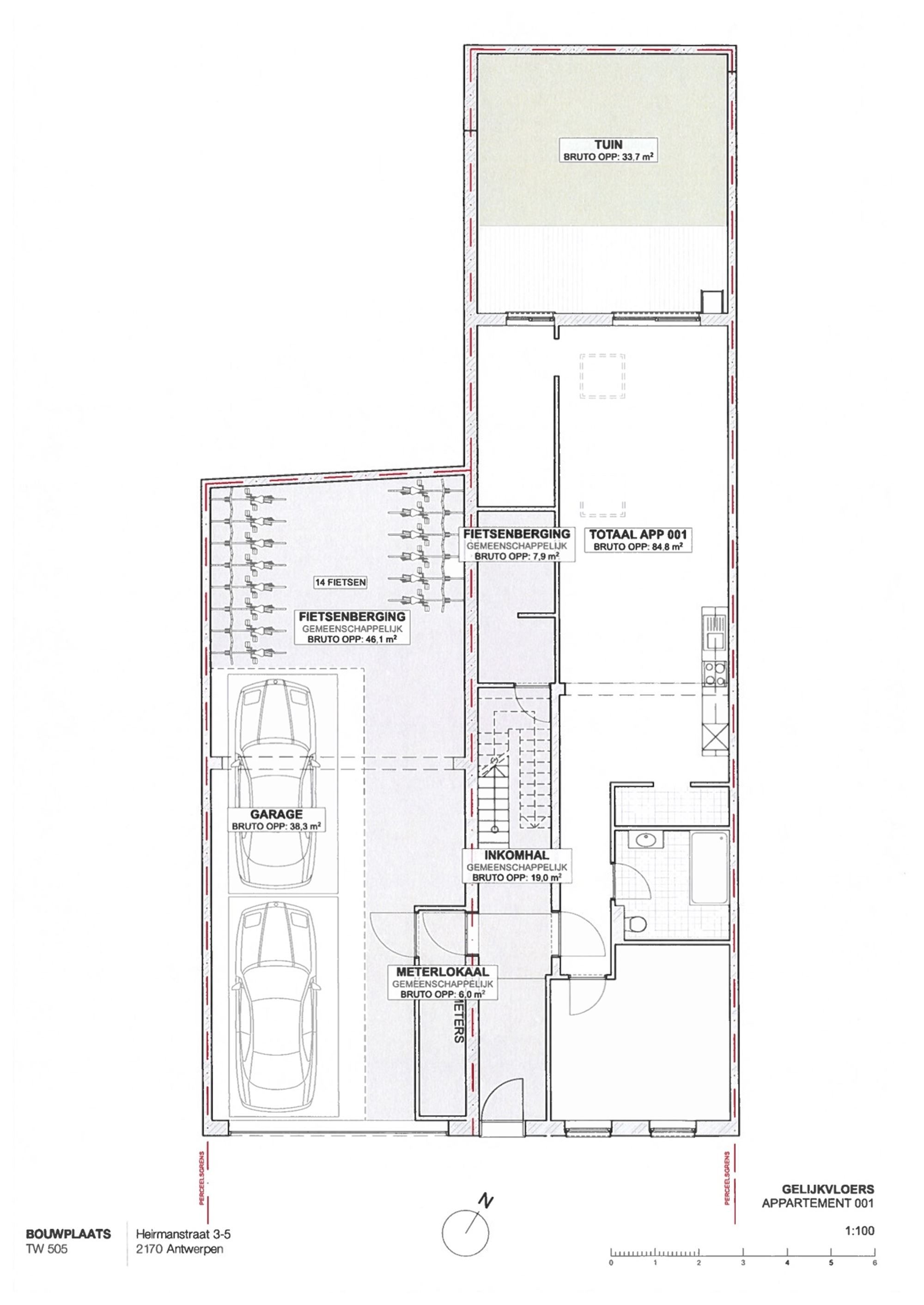
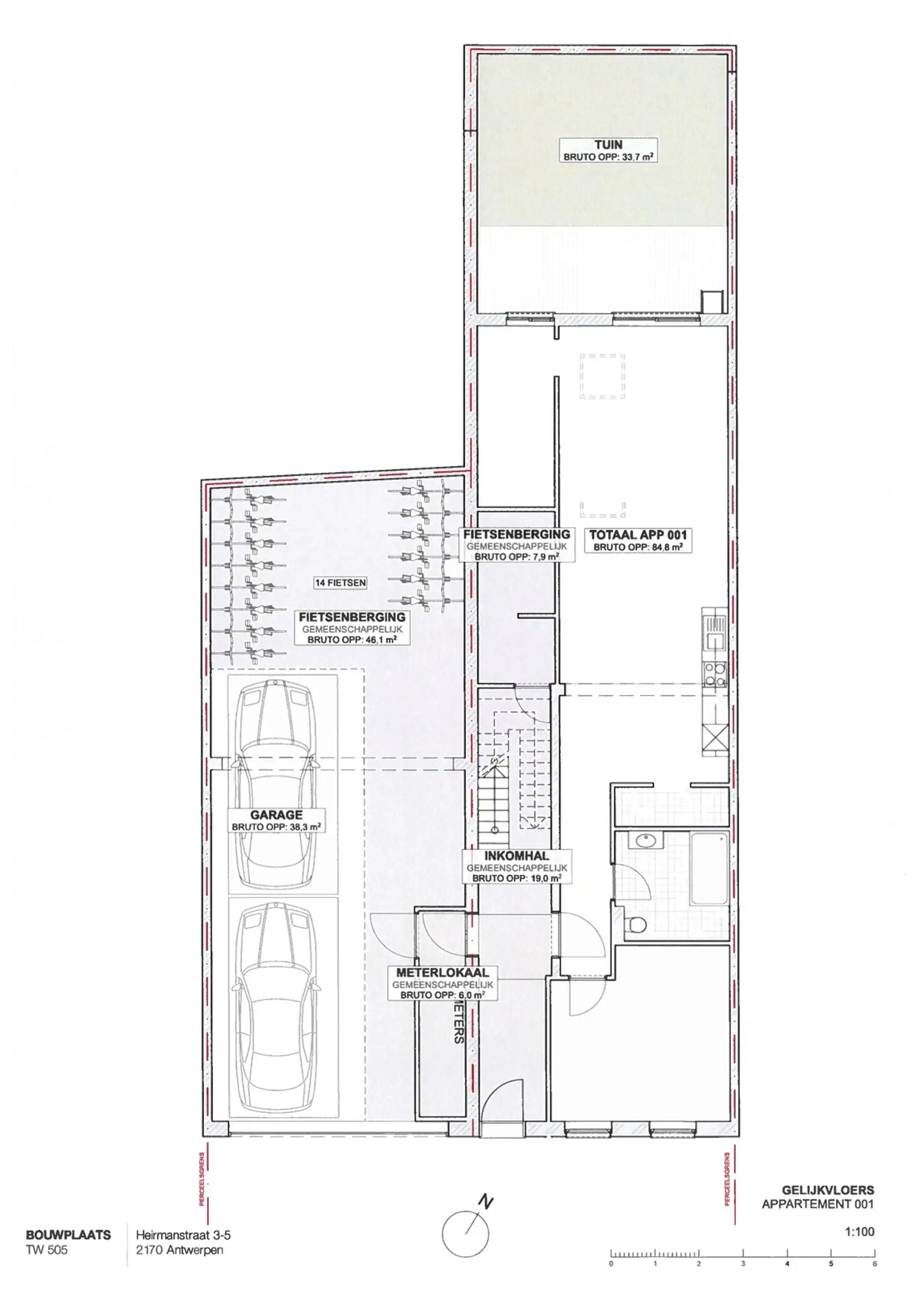
- gemeenschappelijke inkomhal met traphal (geen lift, dus geen kosten)
- verhuurd magazijn/garage van zo'n 85m², plaats voor 2-3 wagens en fietsen
- ruim gelijkvloers appartement (89m²) met 2 slaapkamers en tuin (34m²)
Eerste verdieping:
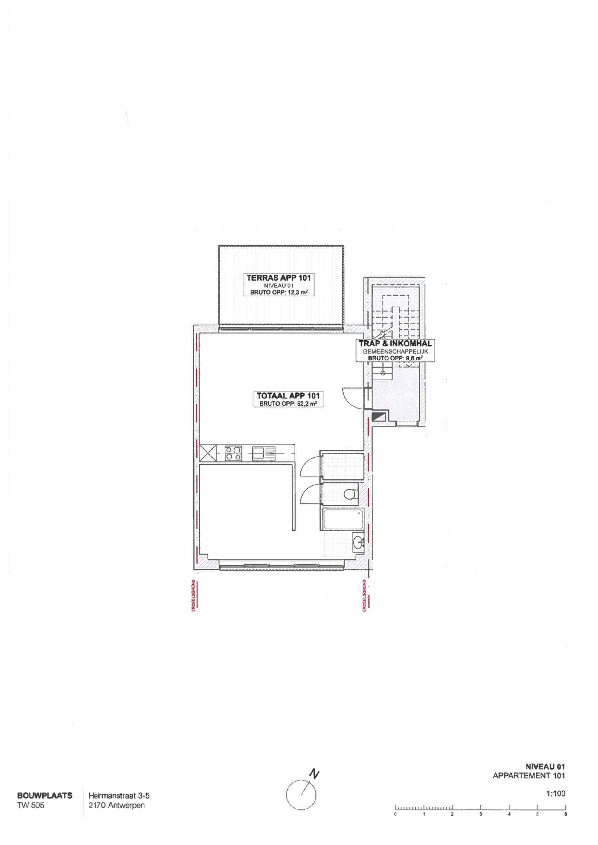
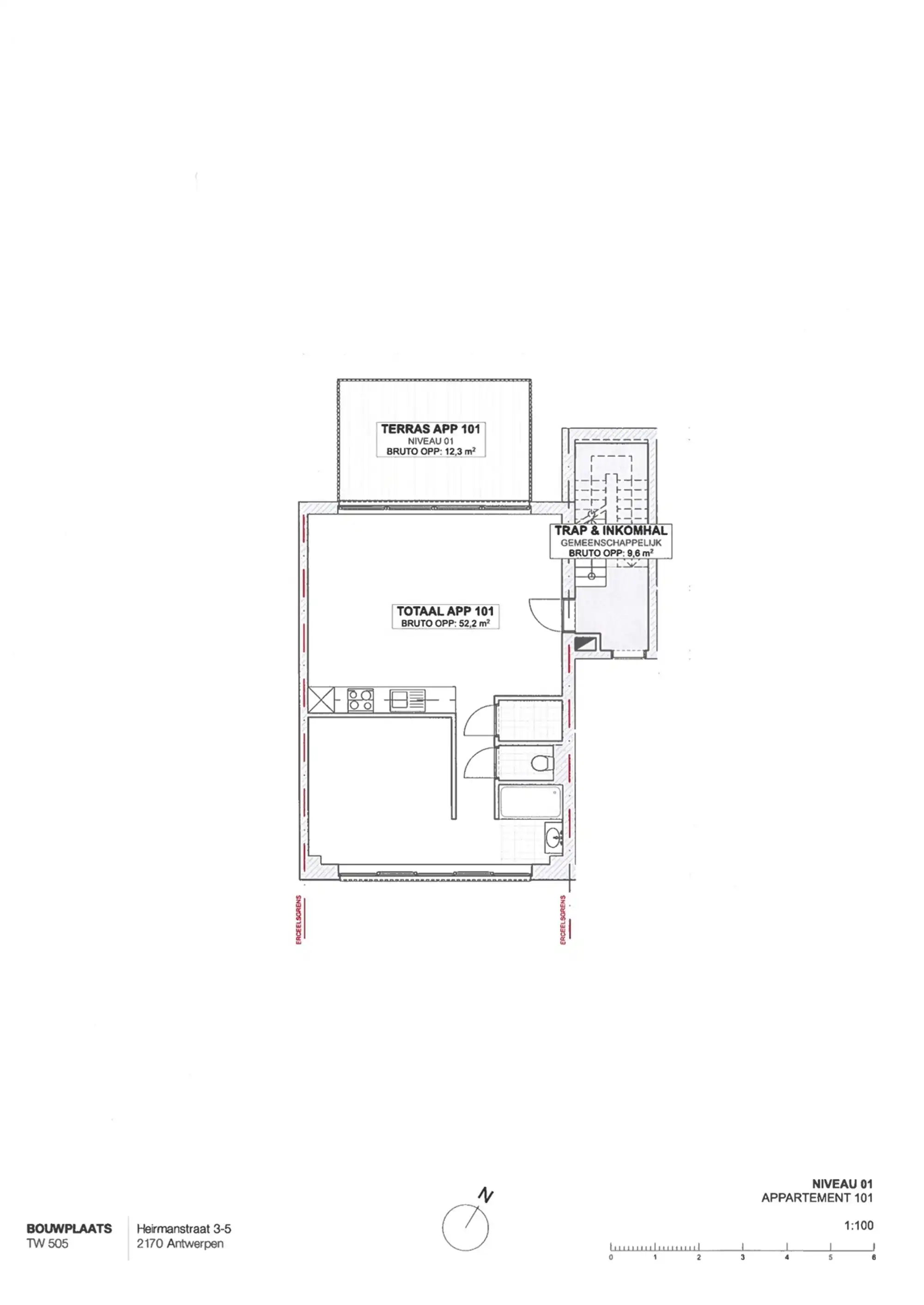
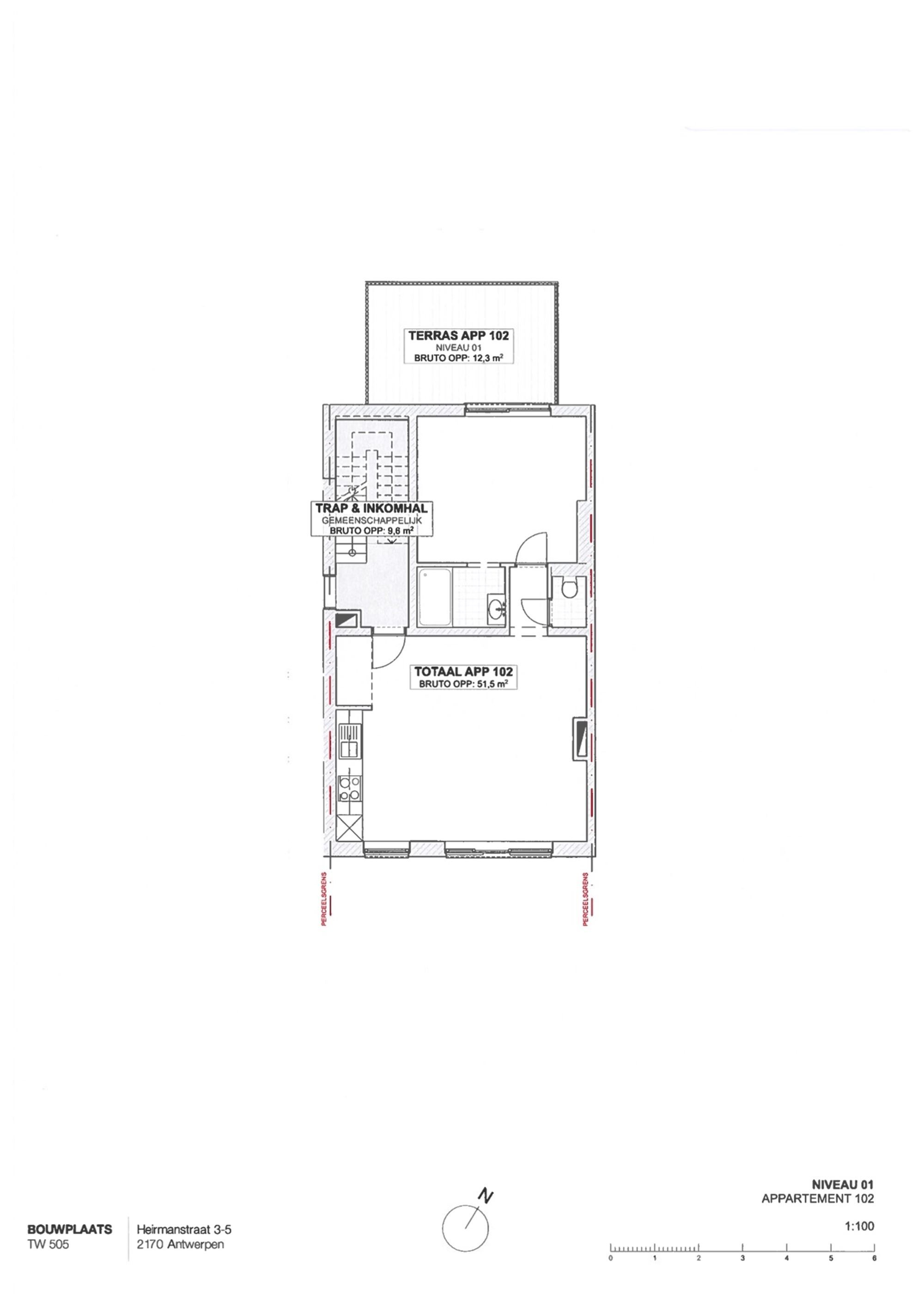
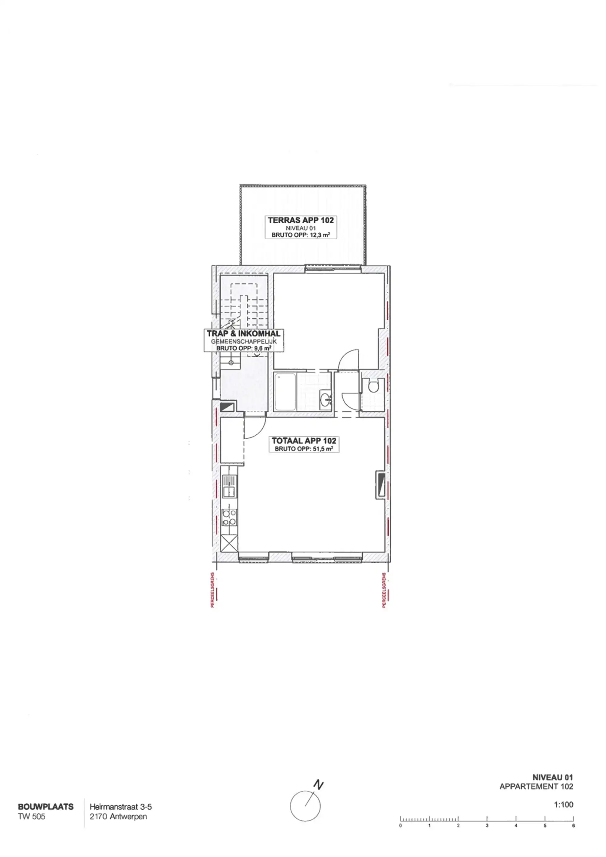
- appartement (55m²) met woonkamer, open keuken, terras (12m²), 1 slaapkamer en badkamer
- appartement (54m²) met woonkamer, open keuken, terras (12m²), 1 slaapkamer en badkamer
Tweede verdieping:
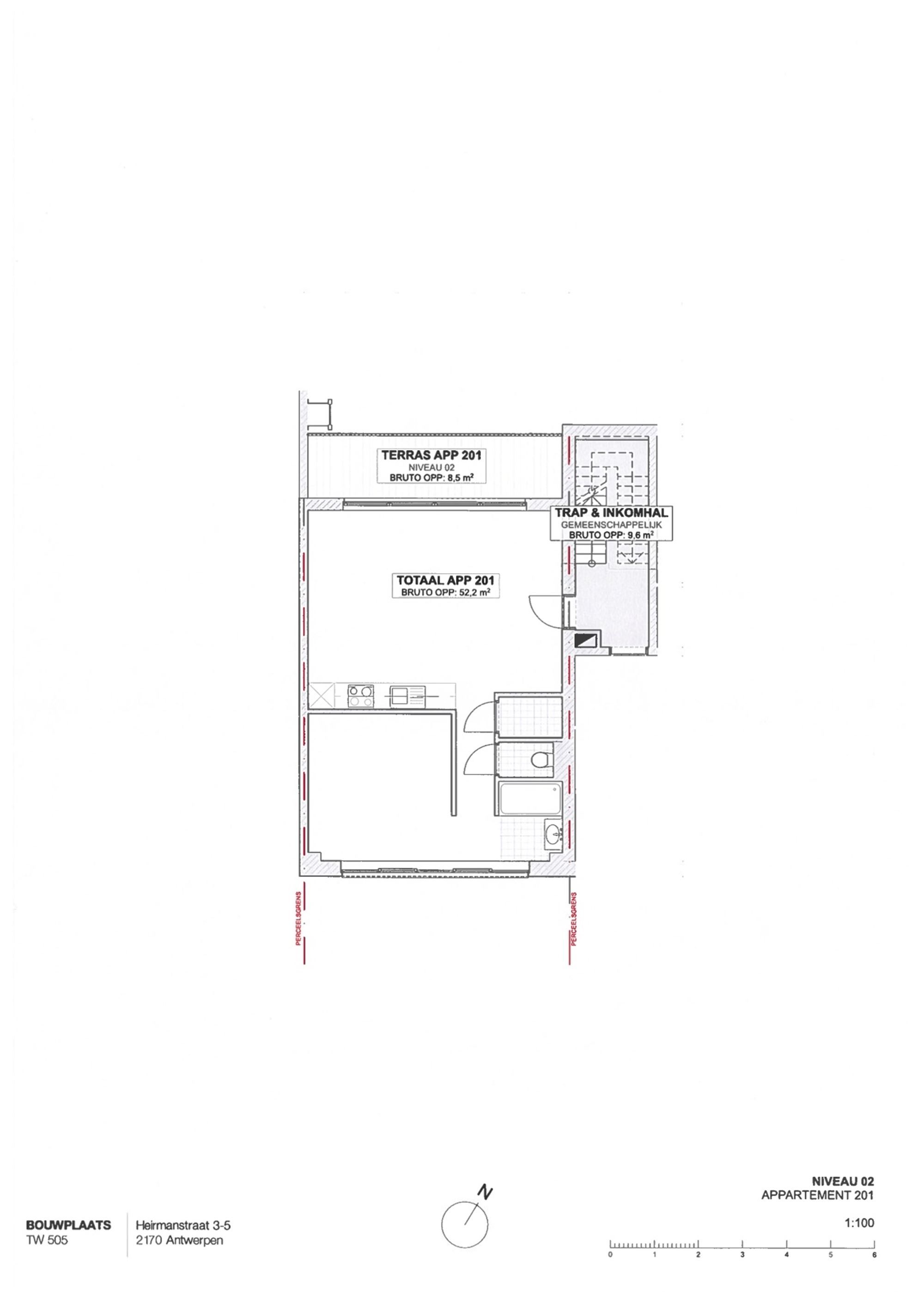
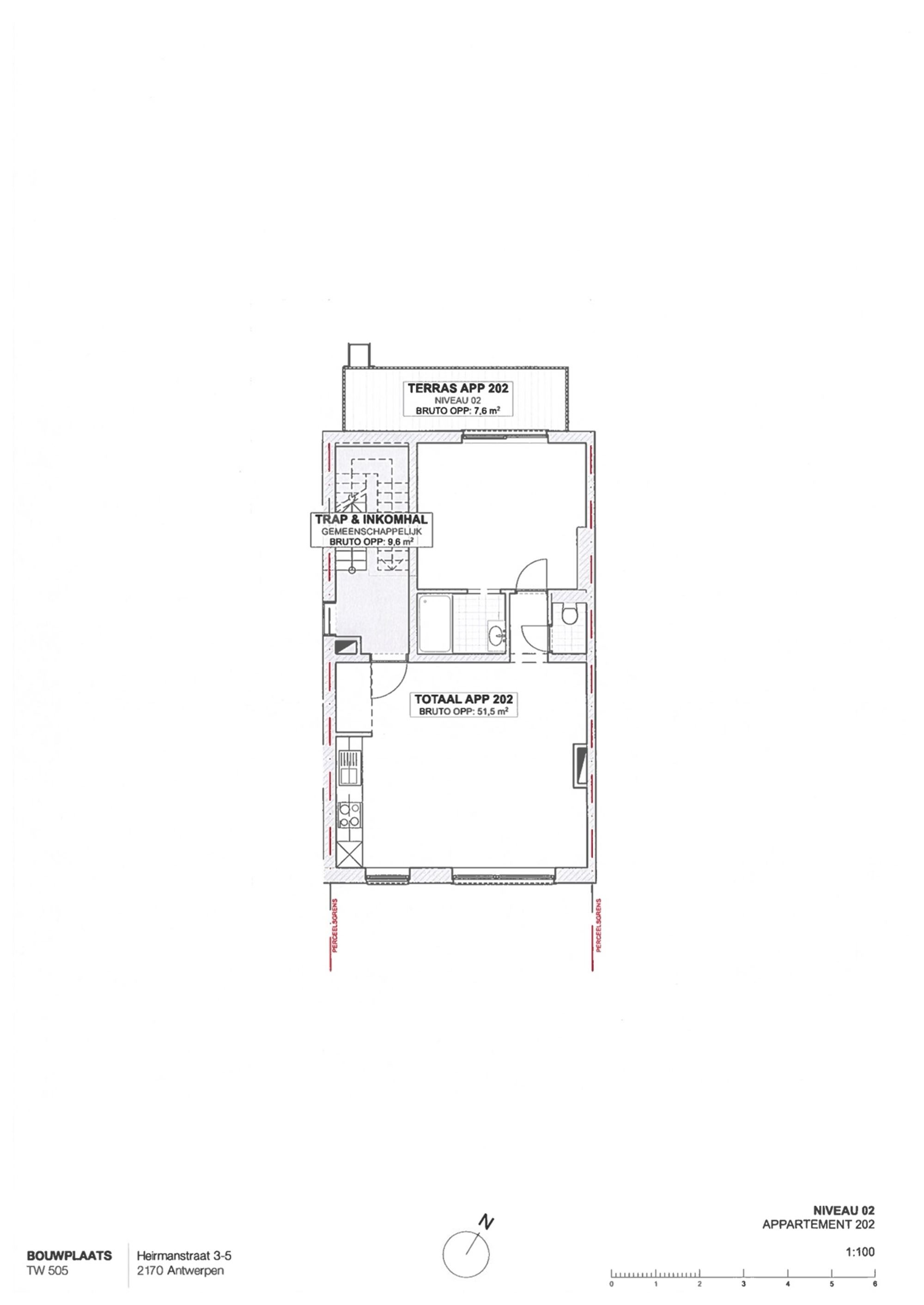
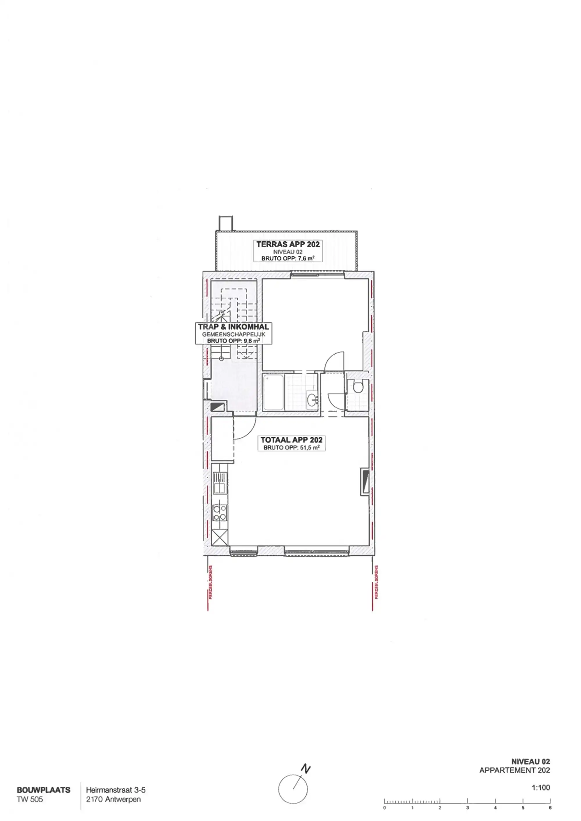
- appartement (55m²) met woonkamer, open keuken, terras (8,5m²), 1 slaapkamer en badkamer
- appartement (54m²) met woonkamer, open keuken, terras (8m²), 1 slaapkamer en badkamer
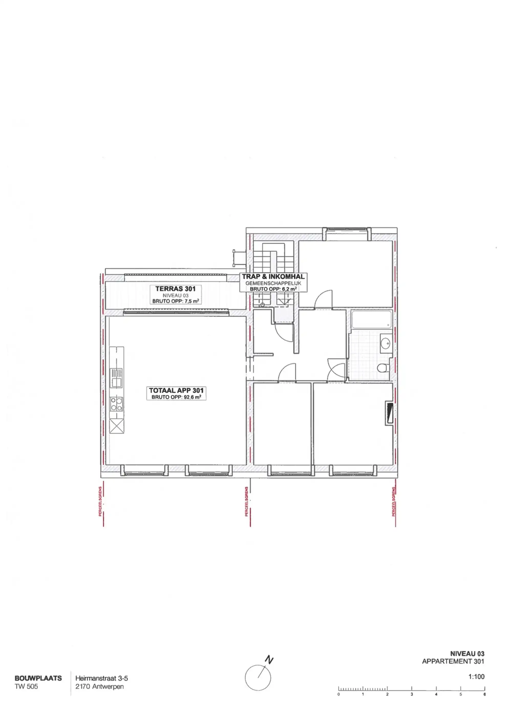
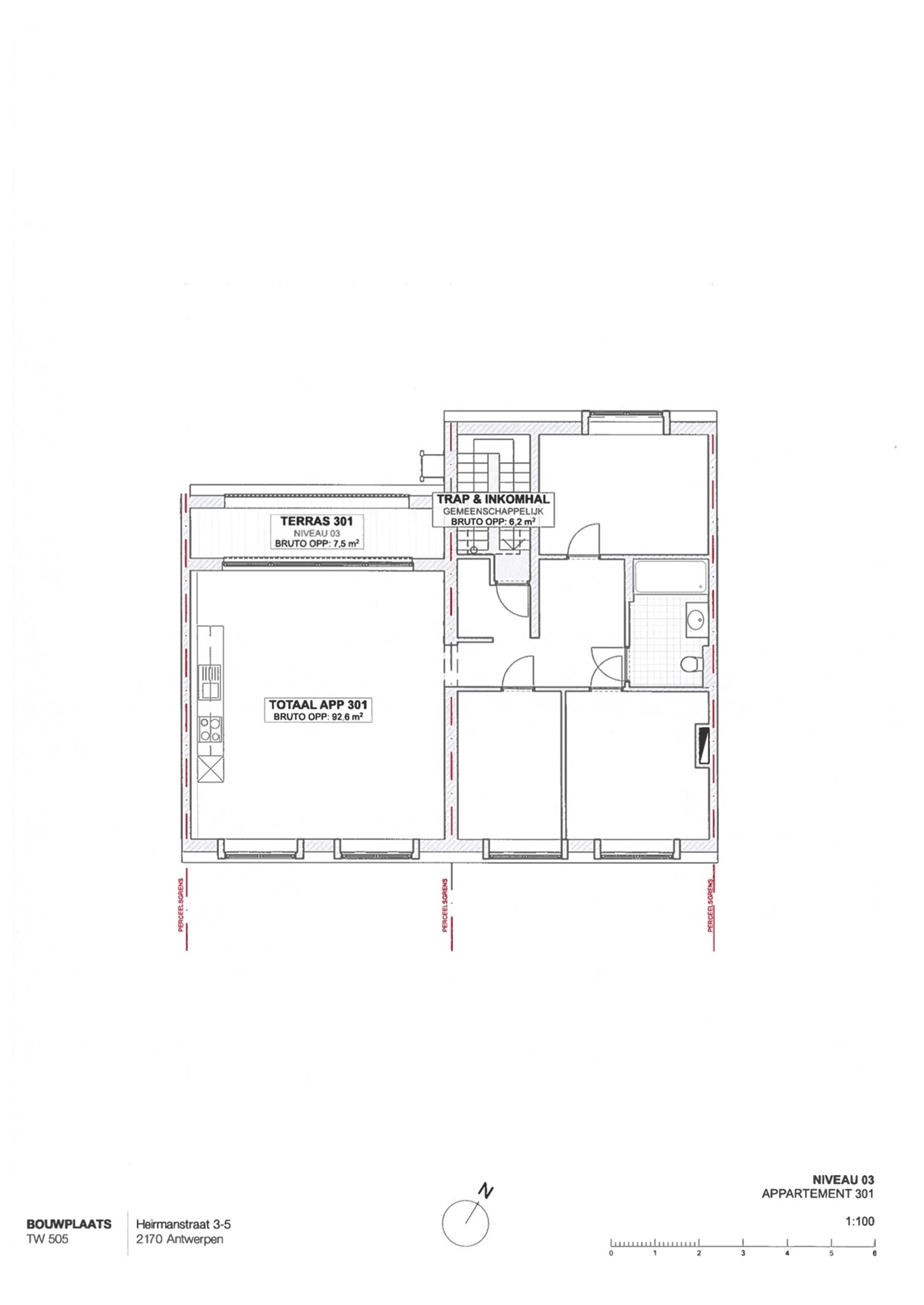
Derde verdieping:
- dakappartement (99m²) met woonkamer, open keuken, terras (7,6m²), 3 slaapkamers, badkamer en zo'n 12m² aan zonnepanelen
Bijzonderheden:
- volledig gerenoveerd in 2023
- individuele meters
- conforme elektriciteit
- gunstige EPC's (4 x label B, 2 x label C)
Ben jij geïnteresseerd in dit opbrengsteigendom in Merksem, ben je op zoek naar ander vastgoed of wens je de waarde van jouw eigendom te kennen? Dan ben je bij BOLT immo aan het juiste adres! Wij helpen jou graag verder.
Energie
![]() |
- Energieverbruik: 184 kWh/m²/jaar
- E-peil: E0
- Verwarming: Gas
- Beglazing: Standaard dubbel
Op de kaart

Financieel
| Prijs | |
|---|---|
| Kadastraal inkomen (niet geïndexeerd) | € 0 |
| Kadastraal inkomen (geïndexeerd) | € 0 |
Berekening kosten
Je aankoopkosten? Die heb je snel berekent via de knop hieronder.
Bijkomende info
Gebouw
| Staat | Goed onderhouden |
|---|---|
| Bouwcertificaat | Nee |
| Bewoonbaar (m²) | 500 |
| Verdieping | 0 |
| Gevelbreedte | 12 |
| Badkamers | 6 |
| Slaapkamers | 9 |
| Verdiepingen | 3 |
| Garages | 1 |
| Parkeerplaatsen | 2 |
| Doucheruimtes | 0 |
| Toiletten | 6 |
Faciliteiten
| Keuken uitrusting | Luxueus uitgerust |
|---|---|
| Materiaal ramenomlijstingen | PVC |
| Beglazing | Standaard dubbel |
| Brandstof primaire verwarming | Gas |
| Elektrisch keuringsattest | Ja |
Perceel
| Diepte (m) | 28 |
|---|---|
| Breedte (m) | 12 |
| Overstromingsgevoelig | Geen |
| P-score | B |
| G-score | B |
| Voorkeurrecht | Ja |
| Totale oppervlakte (m²) | 255 |
| Bebouwde oppervlakte (m²) | 220 |
| Tuin oppervlakte (m²) | 0 |
| Oppervlakte terras (m²) | 80 |
| Oriëntatie tuin | Noordwest |
Vergunning
| Vergunning | Vergunning beschikbaar |
|---|---|
| Verkavelingsvergunning | Geen beschikbaar |
Uitrusting
| Investeringspand | Ja |
|---|---|
| Geschikt voor praktijk | Nee |
| Parking | Ja |
| Garage | Ja |
| Thuiskantoor | Nee |
| Kelder | Nee |
| Zolder | Nee |
| Tuin | Ja |
| Terras | Ja |
| Lift | Nee |
| Rioolaansluiting | Ja |
| Gasaansluiting | Ja |
| Wateraansluiting | Ja |
| Elektriciteitsaansluiting | Ja |
| TV aansluiting | Ja |
| Internetaansluiting | Ja |
| Telefoonaansluiting | Ja |
Appartementsblok
| Aantal verdiepingen | 3 |
|---|---|
| Lift | Nee |
