Renovatieproject met potentieel
€ 199.000
Een pand van Immo Vasta
Overzicht
- 237 m² bewoonbaar
- 105 m² grond
- 2 Slaapkamer(s)
- 3 Badkamer(s)
- 4 Toilet(ten)
- 1 Tuin
Beschrijving
Op zoek naar een investering met potentieel? In de levendige Terlindenhofstraat, vlakbij de Bredabaan en op enkele minuten van de Antwerpse Ring, ligt dit pand die momenteel is ingedeeld als 3 studio’s met drie aparte meters. Ideaal voor wie op zoek is naar een pand om volledig op te frissen en naar eigen hand te zetten.
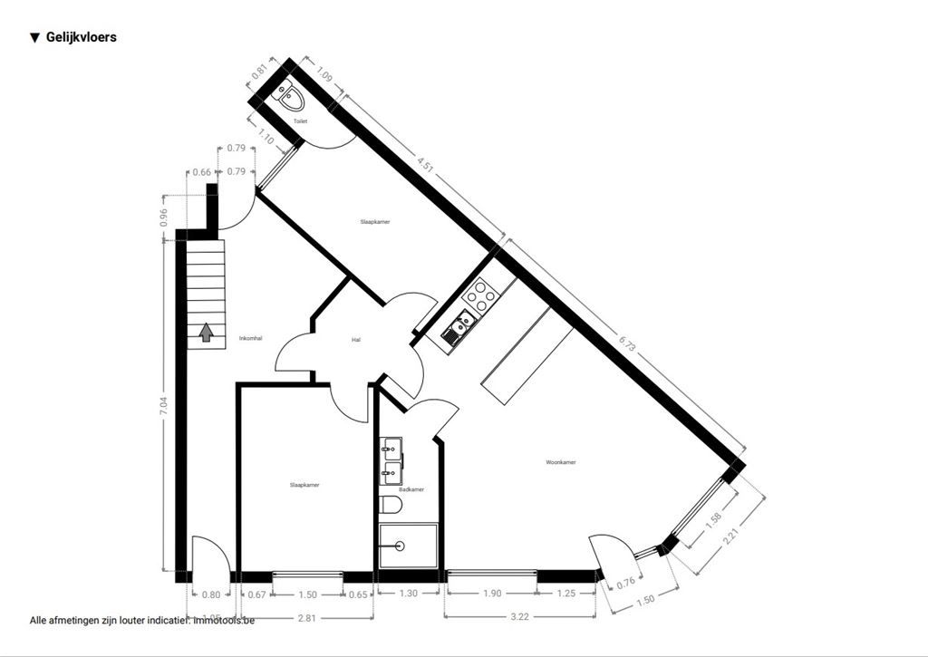
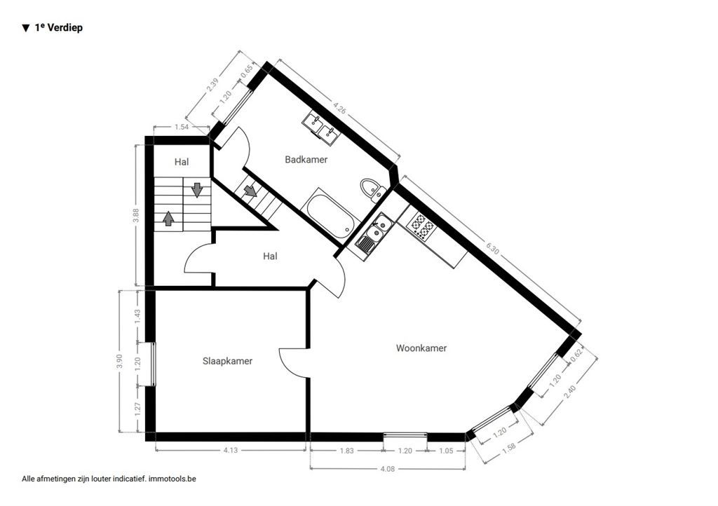
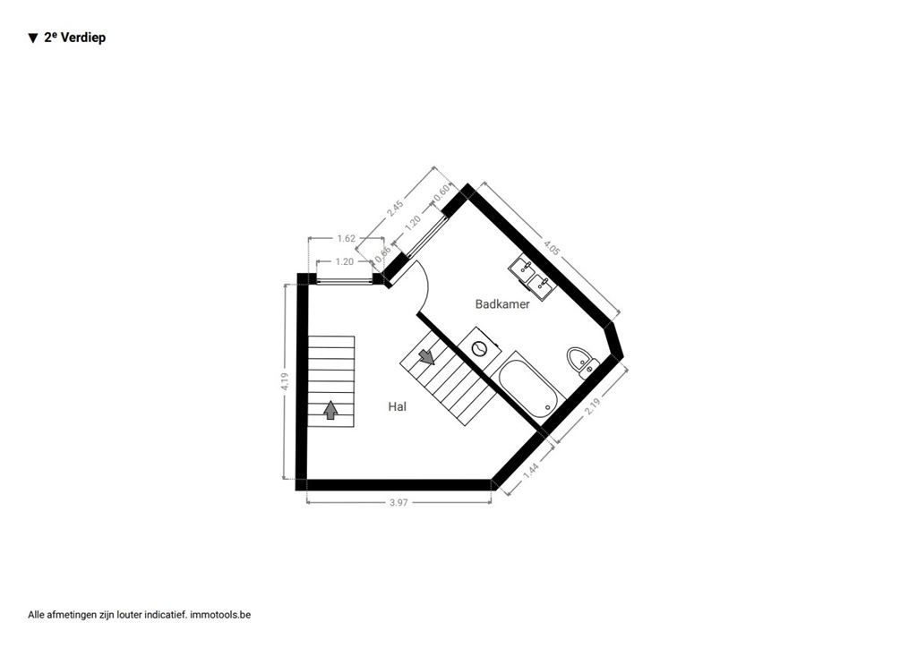
Ingedeeld als drie studio’s op drie verdiepingen
Het gebouw bestaat momenteel uit drie afzonderlijke studio’s verdeeld over drie verdiepingen. Elk met een eigen leefruimte, keuken, badkamer en nutsvoorzieningen. Er zijn drie aparte elektriciteits-, gas- en watermeters aanwezig. Je hebt een bewoonbare oppervlakte van 237 m² op een perceel van 103 m². Achteraan is er een kleine, maar bruikbare koer voor wat buitenruimte, en ondergronds vind je een volledige kelderverdieping. Erg handig als stockage of opbergruimte.
EPC GLV: E - 405 kWh/m²jaar
EPC 1V: D -319 kWh/m²jaar
EPC 2V: F - 617 kWh/m²jaar
Renovatieproject
Het pand staat momenteel op de onbewoonbaarheidslijst, wat betekent dat er een volledige renovatie nodig is. Voor wie handig is of renovatieprojecten niet schuwt, is dit een absolute buitenkans. Zeker een kijkje waard als investeringsproject. Dankzij de aparte meters en indeling, is het pand uitermate geschikt als opbrengsteigendom of co-housing project na renovatie mits het bekomen van de juiste vergunningen. Door de goede ligging en uitstekende bereikbaarheid, blijft de huurvraag in deze buurt zeer hoog.
Bereikbaar, levendig en groen
In Merksem woon je centraal, met de bruisende Bredabaan vlakbij voor al je winkels, horeca en diensten. Openbaar vervoer? Tram en bus vertrekken op wandelafstand en brengen je in 15 minuten naar het Centraal Station van Antwerpen. Met de Antwerpse Ring op minder dan 3 km zit je ook met de auto zo overal. Sporten of wandelen kan in het Bouckenborghpark of Fort van Merksem, allebei vlakbij.
Energie
![]() |
- EPC Certificaat: 20251116-0003734607-RES-1
- Energieverbruik: 319 kWh/m²/jaar
- E-peil: E0
- Verwarming: Gas
- Beglazing: Enkel
Extra budget nodig voor je renovatie?

Op de kaart

Financieel
| Prijs | |
|---|---|
| Kadastraal inkomen (niet geïndexeerd) | € 1.601 |
| Kadastraal inkomen (geïndexeerd) | € 0 |
Berekening kosten
Je aankoopkosten? Die heb je snel berekent via de knop hieronder.
Bijkomende info
Gebouw
| Bouwjaar | 1947 |
|---|---|
| Staat | Op te frissen |
| Bouwcertificaat | Nee |
| Bewoonbaar (m²) | 237 |
| Verdieping | 3 |
| Badkamers | 3 |
| Slaapkamers | 2 |
| Verdiepingen | 0 |
| Garages | 0 |
| Parkeerplaatsen | 0 |
| Doucheruimtes | 0 |
| Toiletten | 4 |
Faciliteiten
| Keuken uitrusting | Standaard |
|---|---|
| Materiaal ramenomlijstingen | Hout |
| Beglazing | Enkel |
| Brandstof primaire verwarming | Gas |
| Elektrisch keuringsattest | Nee |
Perceel
| Overstromingsgevoelig | Geen |
|---|---|
| P-score | B |
| G-score | B |
| Voorkeurrecht | Nee |
| Totale oppervlakte (m²) | 105 |
| Bebouwde oppervlakte (m²) | 93 |
| Tuin oppervlakte (m²) | 9 |
| Oppervlakte terras (m²) | 0 |
| Oriëntatie tuin | Oost |
Vergunning
| Vergunning | Vergunning beschikbaar |
|---|---|
| Verkavelingsvergunning | Geen beschikbaar |
Uitrusting
| Investeringspand | Nee |
|---|---|
| Geschikt voor praktijk | Nee |
| Parking | Nee |
| Garage | Nee |
| Thuiskantoor | Ja |
| Kelder | Ja |
| Zolder | Nee |
| Tuin | Ja |
| Terras | Nee |
| Lift | Nee |
| Rioolaansluiting | Ja |
| Gasaansluiting | Ja |
| Wateraansluiting | Ja |
| Elektriciteitsaansluiting | Ja |
| TV aansluiting | Nee |
| Internetaansluiting | Nee |
| Telefoonaansluiting | Ja |


