Nieuwbouw KMO-units in 'Heidelo-Park'
Een pand van EPMC NV
Favoriet
Jouw zoektocht
Jouw scoretabel voor dit pand
Aan het laden...
Jouw geplande bezichtigingen
Aan het laden...
Overzicht
- 325 m² bewoonbaar
Overstromingsgevaar perceel
Beschrijving
'Heidelo-Park' is een nieuwbouwontwikkeling (2025) gelegen te Heist-op-den-Berg.
De site geniet van een strategische locatie, met ontsluiting naar Antwerpen, Brussel en de Kempen.
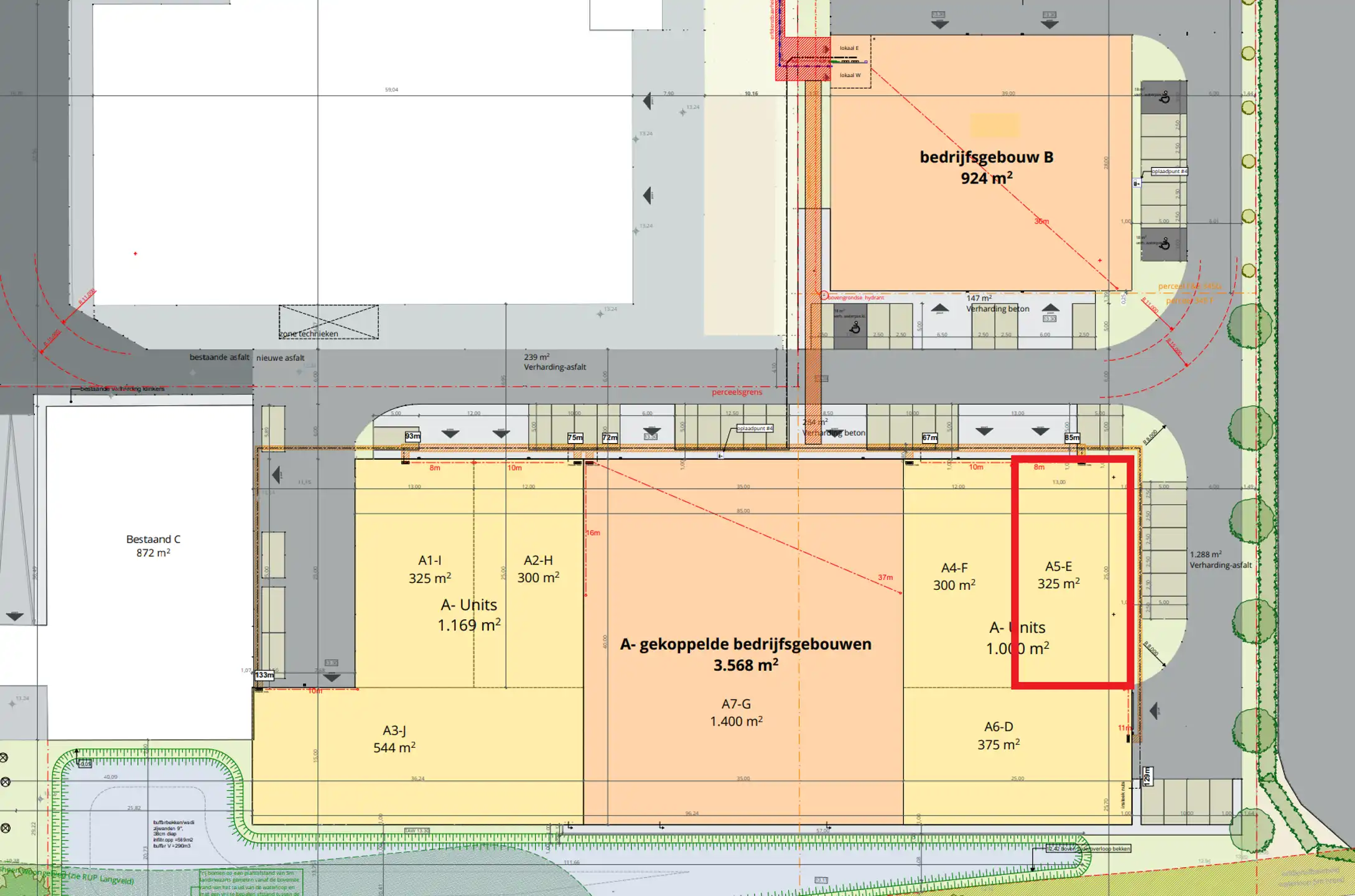
Unit A5 omvat ca. 325 m² opslagruimte/werkplaats, met een vrije hoogte van ca. 7 meter. De unit kan gecombineerd worden met naastgelegen bedrijfsruimtes tot maximaal ca. 3.569 m².
Toegang wordt verleend door middel van een gelijkvloerse sectionaalpoort.
De unit wordt uitgerust met alle gebruikelijke voorzieningen, waaronder elektriciteit, water en gas.
Parkeerplaatsen bij aan te kopen aan €5.000/stuk.
Het is tevens mogelijk om de unit te huren (voorwaarden te bespreken in onderling overleg).
Verkoopprijzen exclusief btw en aankoopkosten koper.
Gelieve ons te contacteren voor verder informatie of om een bezoek ter plaatse in te plannen.
De site geniet van een strategische locatie, met ontsluiting naar Antwerpen, Brussel en de Kempen.
Unit A5 omvat ca. 325 m² opslagruimte/werkplaats, met een vrije hoogte van ca. 7 meter. De unit kan gecombineerd worden met naastgelegen bedrijfsruimtes tot maximaal ca. 3.569 m².
Toegang wordt verleend door middel van een gelijkvloerse sectionaalpoort.
De unit wordt uitgerust met alle gebruikelijke voorzieningen, waaronder elektriciteit, water en gas.
Parkeerplaatsen bij aan te kopen aan €5.000/stuk.
Het is tevens mogelijk om de unit te huren (voorwaarden te bespreken in onderling overleg).
Verkoopprijzen exclusief btw en aankoopkosten koper.
Gelieve ons te contacteren voor verder informatie of om een bezoek ter plaatse in te plannen.
'Heidelo-Park' is een nieuwbouwontwikkeling (2025) gelegen te Heist-op-den-Berg.
De site geniet van een strategische locatie, met ontsluiting naar Antwerpen, Brussel en de Kempen.
Unit A5 omvat ca. 325 m² opslagruimte/werkplaats, met een vrije hoogte van ca. 7 meter. De unit kan gecombineerd worden met naastgelegen bedrijfsruimtes tot maximaal ca. 3.569 m².
Toegang wordt verleend door middel van een gelijkvloerse sectionaalpoort.
De unit wordt uitgerust met alle gebruikelijke voorzieningen, waaronder elektriciteit, water en gas.
Parkeerplaatsen bij aan te kopen aan €5.000/stuk.
Het is tevens mogelijk om de unit te huren (voorwaarden te bespreken in onderling overleg).
Verkoopprijzen exclusief btw en aankoopkosten koper.
Gelieve ons te contacteren voor verder informatie of om een bezoek ter plaatse in te plannen.
De site geniet van een strategische locatie, met ontsluiting naar Antwerpen, Brussel en de Kempen.
Unit A5 omvat ca. 325 m² opslagruimte/werkplaats, met een vrije hoogte van ca. 7 meter. De unit kan gecombineerd worden met naastgelegen bedrijfsruimtes tot maximaal ca. 3.569 m².
Toegang wordt verleend door middel van een gelijkvloerse sectionaalpoort.
De unit wordt uitgerust met alle gebruikelijke voorzieningen, waaronder elektriciteit, water en gas.
Parkeerplaatsen bij aan te kopen aan €5.000/stuk.
Het is tevens mogelijk om de unit te huren (voorwaarden te bespreken in onderling overleg).
Verkoopprijzen exclusief btw en aankoopkosten koper.
Gelieve ons te contacteren voor verder informatie of om een bezoek ter plaatse in te plannen.
Energie
Op de kaart

Financieel
| Prijs |
|---|
Bijkomende info
Gebouw
| Bouwjaar | 2025 |
|---|---|
| Staat | Nieuw |
| Bewoonbaar (m²) | 325 |
| Badkamers | 0 |
| Slaapkamers | 0 |
| Parkeerplaatsen | 0 |
Faciliteiten
| Type vloer | Beton |
|---|
Perceel
| P-score | D |
|---|---|
| G-score | B |
| Voorkeurrecht | Nee |
| Tuin oppervlakte (m²) | 0 |
Vergunning
| Vergunning | Vergunning beschikbaar |
|---|---|
| Verkavelingsvergunning | Geen beschikbaar |
| Bouwovertreding | Geen |
| Bouwovertreding dagvaardiging | Geen |
Uitrusting
| Parking | Nee |
|---|---|
| Garage | Nee |
| Tuin | Nee |
| Terras | Nee |
| Wateraansluiting | Ja |
| Elektriciteitsaansluiting | Ja |
| Telefoonaansluiting | Ja |
Een pand van
EPMC NV
EPMC : Ondernemers in Vastgoed!
Welkom bij de Ondernemers in Vastgoed
EPMC is reeds 40 jaar toonaangevend expert in de verkoop en verhuur van bedrijfsmatig vastgoed op de Antwerpse markt.
Wij focussen op industriële, administratieve en commerciële panden.
6506816
Leer meer over vastgoed
04 January 2026
Zoek je een kantoor, een magazijn of… iets ertussenin? Bedrijfsvastgoed uitgelegd
05 November 2024
Bedrijfsvastgoed in transitie: ontdek de toekomst van werkplekken
16 October 2024
Opbrengsteigendom: een slim pad naar passief inkomen en vermogensgroei
09 September 2024