Perfect instapklare woning met 4 slpks te Heist-op-den-Berg
Een pand van Immo Vercammen
Overzicht
- 223 m² bewoonbaar
- 463 m² grond
- 4 Slaapkamer(s)
- 1 Badkamer(s)
- 2 Toilet(ten)
- 1 Tuin
- 1 Garage(s)
Beschrijving
Perfect instapklare woning met 4 slaapkamers, gunstig gelegen te Heist-op-den-Berg.
Deze knappe woning werd grotendeels gemoderniseerd. Een gunstig EPC label B is hiervan het bewijs.
Op het gelijkvloers is er een ruime, lichtrijke leefruimte ingericht met gezellige gashaard. Aansluitend aan de leefruimte bevindt zich de keuken en de badkamer.
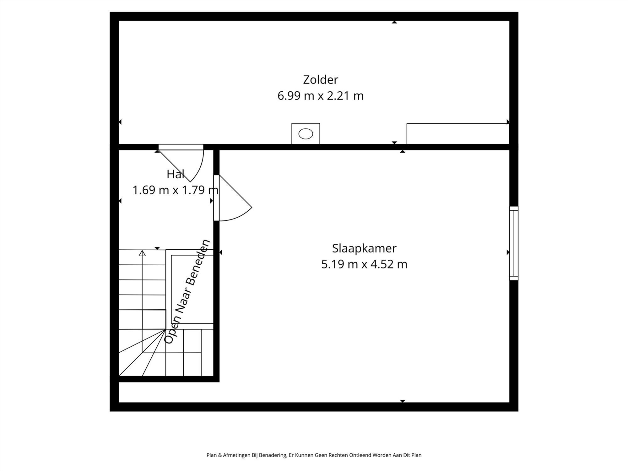
Op de eerste verdieping geeft de nachthal toegang tot 3 slaapkamers en een toilet. Op de tweede verdieping bevinden zich een vierde, ruime slaapkamer en een praktische bergzolder.
Buiten is het aangenaam tot rust komen op het zuidgerichte terras. Rondom de volledig omheinde woning is er meer dan voldoende ruimte voor de kinderen om zich uit te leven.
Een unieke kans voor wie een woning zoekt gelegen te Heist-op-den-Berg, op fietsafstand van het bruisende centrum, scholen en winkels, sport- en ontspanningsmogelijkheden.
Vlotte bereikbaarheid is tevens een troef: goed bereikbaar via belangrijke invalswegen en openbaar vervoer.
Bezoek enkel na afspraak, vrijblijvende info op kantoor: 015/755 444 of info@immovercammen.be
Energie
![]() |
- EPC Certificaat: 20250930-0003698054-RES-1
- Energieverbruik: 181 kWh/m²/jaar
- E-peil: E0
- Verwarming: Gas
- Beglazing: Standaard dubbel
Op de kaart

Virtual tour
Ontdek het hele pand alvorens je bezoek via de virtuele tour, werkelijkheid gemaakt door Walkly. Geen verassingen tijdens het bezoek!
Beleef de virtuele tourFinancieel
| Prijs | |
|---|---|
| Kadastraal inkomen (niet geïndexeerd) | € 904 |
| Kadastraal inkomen (geïndexeerd) | € 0 |
Berekening kosten
Je aankoopkosten? Die heb je snel berekent via de knop hieronder.
Bijkomende info
Gebouw
| Bouwjaar | 1965 |
|---|---|
| Staat | Goed onderhouden |
| Bouwcertificaat | Nee |
| Bewoonbaar (m²) | 223 |
| Verdieping | 0 |
| Badkamers | 1 |
| Slaapkamers | 4 |
| Verdiepingen | 0 |
| Garages | 1 |
| Parkeerplaatsen | 6 |
| Doucheruimtes | 0 |
| Toiletten | 2 |
Faciliteiten
| Materiaal ramenomlijstingen | PVC |
|---|---|
| Beglazing | Standaard dubbel |
| Brandstof primaire verwarming | Gas |
| Elektrisch keuringsattest | Ja |
Perceel
| Overstromingsgevoelig | Geen |
|---|---|
| P-score | A |
| G-score | A |
| Voorkeurrecht | Nee |
| Totale oppervlakte (m²) | 463 |
| Bebouwde oppervlakte (m²) | 0 |
| Tuin oppervlakte (m²) | 0 |
| Oppervlakte terras (m²) | 0 |
| Oriëntatie tuin | Zuid |
Vergunning
| Vergunning | Vergunning beschikbaar |
|---|---|
| Verkavelingsvergunning | Geen beschikbaar |
Uitrusting
| Investeringspand | Nee |
|---|---|
| Geschikt voor praktijk | Nee |
| Parking | Ja |
| Garage | Ja |
| Thuiskantoor | Nee |
| Kelder | Ja |
| Zolder | Ja |
| Tuin | Ja |
| Terras | Ja |
| Lift | Nee |
| Rioolaansluiting | Ja |
| Gasaansluiting | Ja |
| Wateraansluiting | Ja |
| Elektriciteitsaansluiting | Ja |
| TV aansluiting | Ja |
| Internetaansluiting | Ja |
| Telefoonaansluiting | Ja |
