Nieuwbouw Woning - 3/4 Slpk - Oplevering Casco - 6% BTW Mogelijk
Een pand van Dupont Vastgoed
Favoriet
Jouw zoektocht
Jouw scoretabel voor dit pand
Aan het laden...
Jouw geplande bezichtigingen
Aan het laden...
Overzicht
- 190 m² bewoonbaar
- 290 m² grond
- 3 Slaapkamer(s)
- 2 Badkamer(s)
- 2 Toilet(ten)
Beschrijving
Deze mooie nieuwbouw woning wordt casco te koop aangeboden, wat concreet betekent dat de ruwbouw werken afgerond zijn en de woning water en winddicht staat. Hierdoor hebt u als koper de mogelijkheid om de woning volledig naar eigen wens en smaak af te werken.
Deze goed gelegen woning met goede bereikbaarheid naar Lier - Aarschot - Heist-o/d-Berg en Putte / Mechelen is gebouwd op een perceel van 290m² met zuidgerichte tuin.
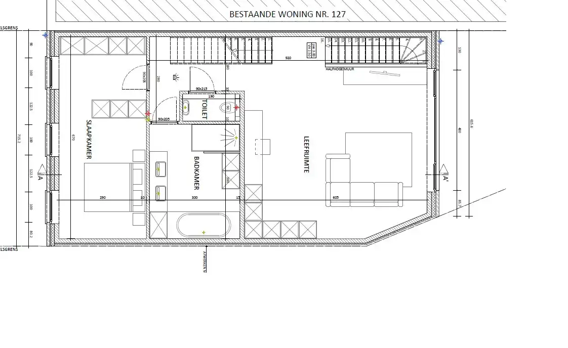
De woning is erg functioneel ingedeeld ingedeeld als volgt:
- Gelijkvloers: fietsenberging, carport, inkomhal, toilet, ruime leefkeuken van 40m²
- Eerste verdieping: woonkamer van 40m², slaapkamer met ruimte voor dressing, badkamer
- Tweede verdieping: 2 / 3 slaapkamers, badkamer
Deze ideale gezinswoning kan u nog helemaal afstemmen op uw wensen, en verder afwerken volgens eigen budget en ritme.
Mogelijkheid tot aankoop onder BTW 6%!
Kom deze woning ontdekken samen met ons, en laat u verrassen door het erg ruime en lichtrijke gevoel van de woonst.
Neem contact op met Dupont Vastgoed - Ken Vanthielen (BIV 514663) op ken@dupont-vastgoed.be of 0498/10.05.05.
Deze goed gelegen woning met goede bereikbaarheid naar Lier - Aarschot - Heist-o/d-Berg en Putte / Mechelen is gebouwd op een perceel van 290m² met zuidgerichte tuin.
De woning is erg functioneel ingedeeld ingedeeld als volgt:
- Gelijkvloers: fietsenberging, carport, inkomhal, toilet, ruime leefkeuken van 40m²
- Eerste verdieping: woonkamer van 40m², slaapkamer met ruimte voor dressing, badkamer
- Tweede verdieping: 2 / 3 slaapkamers, badkamer
Deze ideale gezinswoning kan u nog helemaal afstemmen op uw wensen, en verder afwerken volgens eigen budget en ritme.
Mogelijkheid tot aankoop onder BTW 6%!
Kom deze woning ontdekken samen met ons, en laat u verrassen door het erg ruime en lichtrijke gevoel van de woonst.
Neem contact op met Dupont Vastgoed - Ken Vanthielen (BIV 514663) op ken@dupont-vastgoed.be of 0498/10.05.05.
Energie
- E-peil: E0
- Beglazing: Standaard dubbel
Op de kaart

Financieel
| Prijs |
|---|
Berekening kosten
Je aankoopkosten? Die heb je snel berekend via de knop hieronder.
Bijkomende info
Gebouw
| Bouwjaar | 2025 |
|---|---|
| Staat | Nieuw |
| Bewoonbaar (m²) | 190 |
| Gevelbreedte | 7 |
| Badkamers | 2 |
| Slaapkamers | 3 |
| Verdiepingen | 0 |
| Garages | 0 |
| Parkeerplaatsen | 0 |
| Toiletten | 2 |
Faciliteiten
| Beglazing | Standaard dubbel |
|---|---|
| Septische tank | Nee |
Perceel
| Overstromingsgevoelig | Geen |
|---|---|
| Totale oppervlakte (m²) | 290 |
| Bebouwde oppervlakte (m²) | 0 |
| Oriëntatie tuin | Zuid |
Vergunning
| Verkavelingsvergunning | Geen beschikbaar |
|---|
Uitrusting
| Investeringspand | Nee |
|---|---|
| Parking | Nee |
| Garage | Nee |
| Thuiskantoor | Ja |
| Opslagruimte | Ja |
| Lift | Nee |
| Rioolaansluiting | Nee |
| Gasaansluiting | Nee |
| Wateraansluiting | Nee |
| Elektriciteitsaansluiting | Nee |
| Internetaansluiting | Nee |
| Telefoonaansluiting | Nee |
| Zonnepanelen | Nee |
| Zonneboiler | Nee |
| Alarm | Nee |
| Videofoon | Nee |
| Grondwaterput | Nee |
Een pand van
Dupont Vastgoed
Dupont Vastgoed
Bent u op zoek naar een nieuwe thuis? Of wenst u de waarde te kennen van uw eigendom om het aan te bieden op de vastgoedmarkt?
Dan is samenwerken met Dupont Vastgoed zeker de juiste beslissing.
Dupont Vastgoed is kiezen voor kwaliteit en professionaliteit!
U mag rekenen op een uitmuntende dienstverlening, een persoonlijk contact en een aanpak waarbij wij het verschil maken.
Wij zijn een kantoor met een oprechte manier van werken waarbij we zowel de koper als de verkoper zo goed mogelijk begeleiden.
Vlot verkopen aan de correcte prijs is onze prioriteit!
PV_HodB
Leer meer over vastgoed
23 March 2026
Op Spotto zoeken als een pro: 10 slimme tips
21 March 2026
Hoeveel kan ik lenen om een huis te kopen?
01 March 2026
Wanneer heb ik een bouwvergunning of omgevingsvergunning nodig?
17 February 2026