Magazijn / KMO Werkplaats met voorliggende Bouwgrond te Booischot
€ 503.200
Een pand van Dupont Vastgoed
Overzicht
- 630 m² grond
Beschrijving
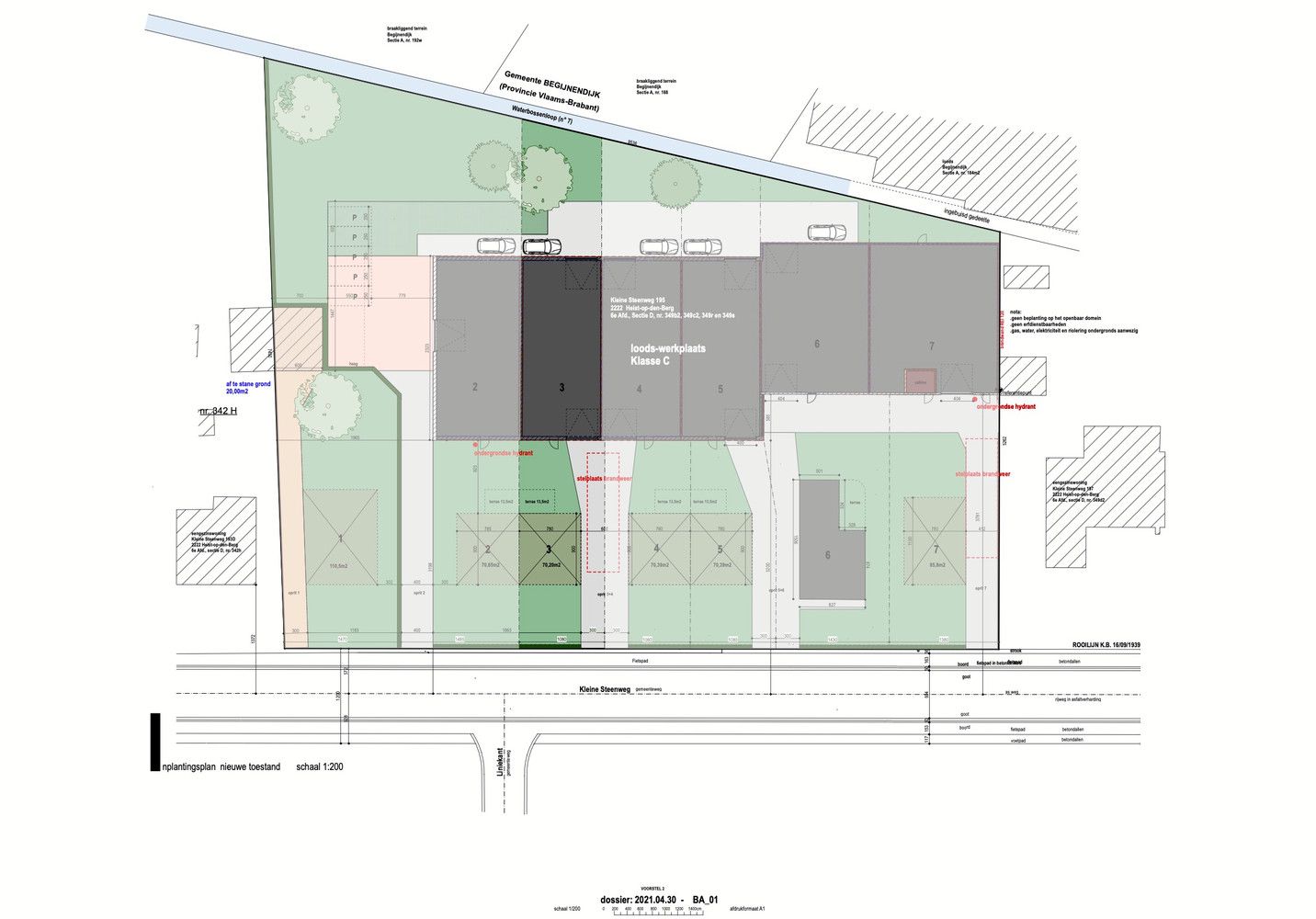
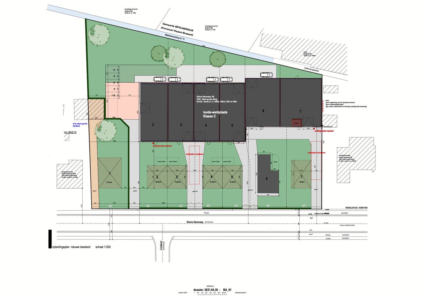
Gelegen in de "Busschotse Woon - Werk Site" langsheen de Kleine Steenweg te Booischot kunnen we u deze uitzonderlijke combinatie van wonen en werken aanbieden. De nabijheid van de N16 Aarschot - Lier zorgt voor een prima ontsluiting. Het station van Booischot bevindt zich bovendien op wandelafstand. Het totale perceel beslaat 630m². Het betreft lot 3 op bijgevoegd plan.
Achteraan het perceel bevindt zich een magazijnruimte / KMO werkplaats (informeer zeker naar de ruime mogelijkheden qua activiteiten) van circa 230m² ( 10m breedte x 23m lengte). Er is een ruime elektrische toegangspoort voorzien (vrije hoogte +4m), naast een brede toegangsdeur. Er is eveneens een toegang achteraan de magazijnruimte. Aansluiting elektriciteit en water wordt voorzien.
Vooraan het perceel is er een bouwgrond (zonder bouwverplichting) voorzien voor een halfopen bebouwing. De bouwbreedte bedraagt 7,8m en de bouwdiepte 9m. Er zijn 2 bouwlagen mogelijk. Afwerking met hellend of plat dak mogelijk. De visual geeft een beeld van een mogelijke ontwikkeling. Er is geen bouwverplichting! Indien u toch een woning zou bouwen kan dit zowel voor eigen bewoning als verhuur voorzien worden.
Voor verdere inlichtingen of een bezoek ter plaatse, contacteer Ken Vanthielen - Dupont Vastgoed op 0498 10 05 05.
Infomeer ook naar de exclusieve lanceringsvoorwaarden!
Achteraan het perceel bevindt zich een magazijnruimte / KMO werkplaats (informeer zeker naar de ruime mogelijkheden qua activiteiten) van circa 230m² ( 10m breedte x 23m lengte). Er is een ruime elektrische toegangspoort voorzien (vrije hoogte +4m), naast een brede toegangsdeur. Er is eveneens een toegang achteraan de magazijnruimte. Aansluiting elektriciteit en water wordt voorzien.
Vooraan het perceel is er een bouwgrond (zonder bouwverplichting) voorzien voor een halfopen bebouwing. De bouwbreedte bedraagt 7,8m en de bouwdiepte 9m. Er zijn 2 bouwlagen mogelijk. Afwerking met hellend of plat dak mogelijk. De visual geeft een beeld van een mogelijke ontwikkeling. Er is geen bouwverplichting! Indien u toch een woning zou bouwen kan dit zowel voor eigen bewoning als verhuur voorzien worden.
Voor verdere inlichtingen of een bezoek ter plaatse, contacteer Ken Vanthielen - Dupont Vastgoed op 0498 10 05 05.
Infomeer ook naar de exclusieve lanceringsvoorwaarden!
Energie
- E-peil: E0
- Beglazing: Onbekend
Op de kaart

Financieel
| Prijs |
|---|
Berekening kosten
Je aankoopkosten? Die heb je snel berekent via de knop hieronder.
Bijkomende info
Gebouw
| Badkamers | 0 |
|---|---|
| Slaapkamers | 0 |
| Verdiepingen | 0 |
| Garages | 0 |
| Parkeerplaatsen | 0 |
| Toiletten | 0 |
Faciliteiten
| Septische tank | Nee |
|---|
Perceel
| Totale oppervlakte (m²) | 630 |
|---|---|
| Bebouwde oppervlakte (m²) | 0 |
Vergunning
| Verkavelingsvergunning | Geen beschikbaar |
|---|
Uitrusting
| Investeringspand | Nee |
|---|---|
| Parking | Nee |
| Garage | Nee |
| Lift | Nee |
| Rioolaansluiting | Nee |
| Gasaansluiting | Nee |
| Wateraansluiting | Nee |
| Elektriciteitsaansluiting | Nee |
| Internetaansluiting | Nee |
| Telefoonaansluiting | Nee |
| Zonnepanelen | Nee |
| Zonneboiler | Nee |
| Alarm | Nee |
| Videofoon | Nee |
| Grondwaterput | Nee |
Appartementsblok
| Lift | Nee |
|---|---|
| Intercom | Nee |
Een pand van
Dupont Vastgoed
Dupont Vastgoed
Bent u op zoek naar een nieuwe thuis? Of wenst u de waarde te kennen van uw eigendom om het aan te bieden op de vastgoedmarkt?
Dan is samenwerken met Dupont Vastgoed zeker de juiste beslissing.
Dupont Vastgoed is kiezen voor kwaliteit en professionaliteit!
U mag rekenen op een uitmuntende dienstverlening, een persoonlijk contact en een aanpak waarbij wij het verschil maken.
Wij zijn een kantoor met een oprechte manier van werken waarbij we zowel de koper als de verkoper zo goed mogelijk begeleiden.
Vlot verkopen aan de correcte prijs is onze prioriteit!
KS195B
Leer meer over vastgoed
04 January 2026
Zoek je een kantoor, een magazijn of… iets ertussenin? Bedrijfsvastgoed uitgelegd
05 November 2024
Bedrijfsvastgoed in transitie: ontdek de toekomst van werkplekken
16 October 2024
Opbrengsteigendom: een slim pad naar passief inkomen en vermogensgroei
09 September 2024