VERGUND PROJECT: 4 woningen met achterliggende staanplaatsen
€ 360.000
Een pand van Dupont Vastgoed
Overzicht
- 821 m² grond
Beschrijving
Project gelegen te Heist-op-den-Berg, op wandelafstand van het station van Booischot. Met gunstige verbinding naar Aarschot en Heist centrum.
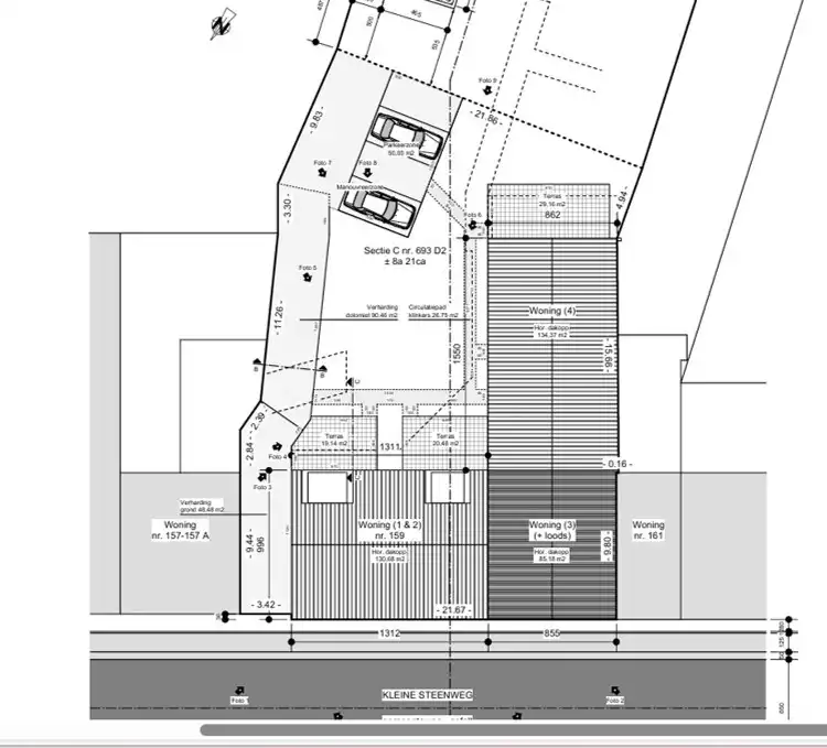
Dit vergund project omvat de verbouwing van een bestaande woning naar 4 grondgebonden woningen op een zuid oost gericht perceel van 8 are 21 centiare.
Momenteel staat er een woning met aanbouw op het perceel.
Dit mag totaal gerenoveerd worden en verbouwd worden tot volgende:
- 4 woningen waarvan 1 woning met loods
- Gemeenschappelijke fietsenstalling
- Gemeenschappelijke berging
- 4 staanplaatsen achteraan
Alle woningen beschikken over een zonnig terras, ruime slaapkamers.
Plannen en omgevingsvergunning kunnen verkregen worden via ons kantoor Dupont Vastgoed.
Contacteer ons voor meer inlichtingen op 015 15 15 15
Dit vergund project omvat de verbouwing van een bestaande woning naar 4 grondgebonden woningen op een zuid oost gericht perceel van 8 are 21 centiare.
Momenteel staat er een woning met aanbouw op het perceel.
Dit mag totaal gerenoveerd worden en verbouwd worden tot volgende:
- 4 woningen waarvan 1 woning met loods
- Gemeenschappelijke fietsenstalling
- Gemeenschappelijke berging
- 4 staanplaatsen achteraan
Alle woningen beschikken over een zonnig terras, ruime slaapkamers.
Plannen en omgevingsvergunning kunnen verkregen worden via ons kantoor Dupont Vastgoed.
Contacteer ons voor meer inlichtingen op 015 15 15 15
Energie
![]() |
- E-peil: E0
- Beglazing: Onbekend
Op de kaart

Financieel
| Prijs |
|---|
Berekening kosten
Je aankoopkosten? Die heb je snel berekent via de knop hieronder.
Bijkomende info
Perceel
| Overstromingsgevoelig | Geen |
|---|---|
| P-score | B |
| Totale oppervlakte (m²) | 821 |
| Oriëntatie tuin | ZuidOost |
Vergunning
| Verkavelingsvergunning | Geen beschikbaar |
|---|
Uitrusting
| Investeringspand | Nee |
|---|---|
| Rioolaansluiting | Nee |
| Gasaansluiting | Nee |
| Wateraansluiting | Nee |
| Elektriciteitsaansluiting | Nee |
| Internetaansluiting | Nee |
| Telefoonaansluiting | Nee |
Een pand van
Dupont Vastgoed
Dupont Vastgoed
Bent u op zoek naar een nieuwe thuis? Of wenst u de waarde te kennen van uw eigendom om het aan te bieden op de vastgoedmarkt?
Dan is samenwerken met Dupont Vastgoed zeker de juiste beslissing.
Dupont Vastgoed is kiezen voor kwaliteit en professionaliteit!
U mag rekenen op een uitmuntende dienstverlening, een persoonlijk contact en een aanpak waarbij wij het verschil maken.
Wij zijn een kantoor met een oprechte manier van werken waarbij we zowel de koper als de verkoper zo goed mogelijk begeleiden.
Vlot verkopen aan de correcte prijs is onze prioriteit!
Kleine Steenweg 159 Booischot aug 2025
Leer meer over vastgoed
Nieuw
24 November 2025
Uitgezocht voor jouw gemeente: Hoeveel stijgt de waarde van je woning door een renovatie?
22 October 2025
Hoeveel kan ik lenen om een huis te kopen?
11 June 2025
Huis kopen met bouwovertreding? Dit moet je weten
11 May 2025
