Te renoveren handelshuis met woonst gelegen te Schriek
€ 249.000
Een pand van Immo Vercammen
Jouw zoektocht
Overzicht
- 237 m² bewoonbaar
- 200 m² grond
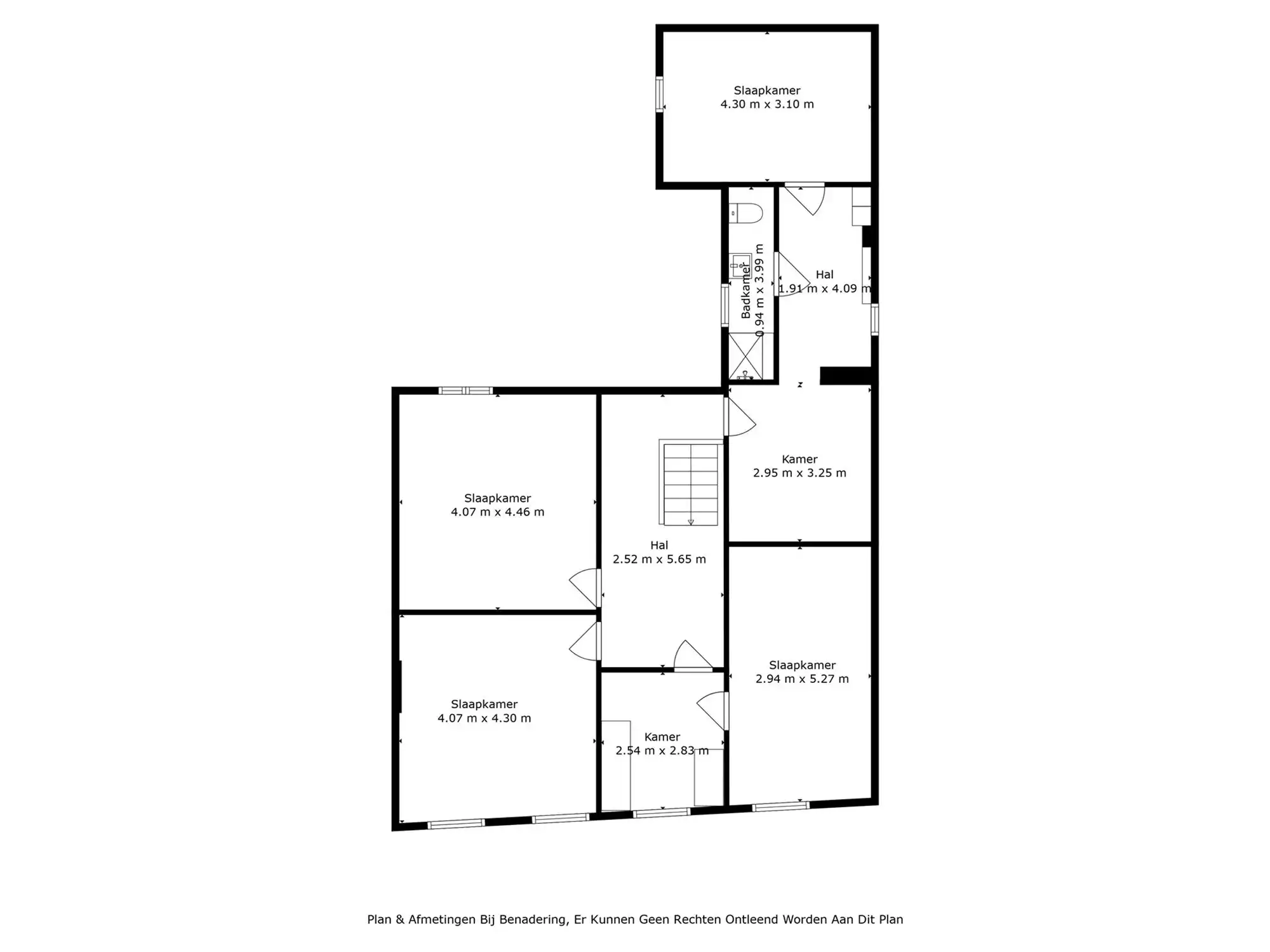
- 4 Slaapkamer(s)
- 1 Badkamer(s)
- 2 Toilet(ten)
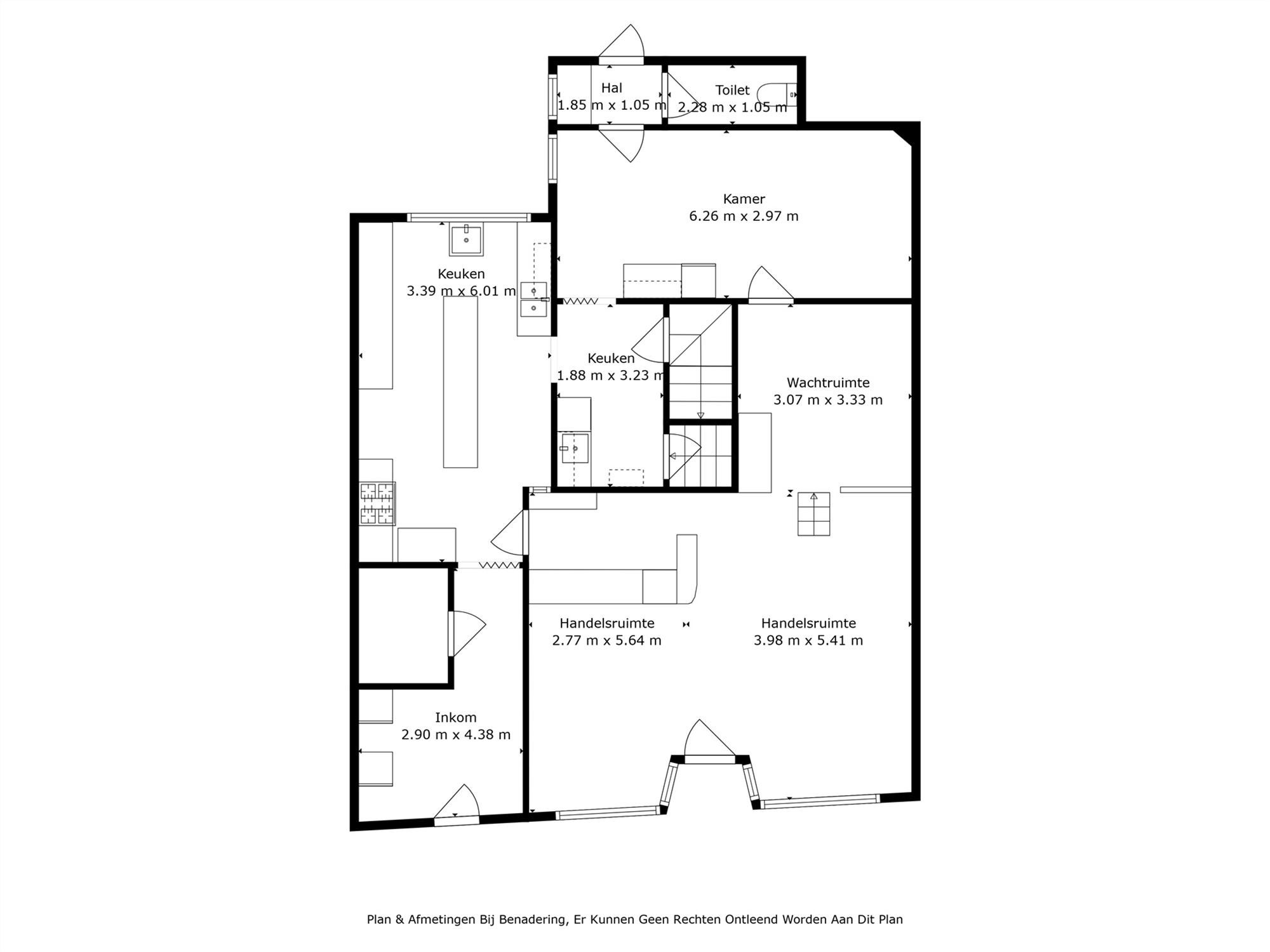
- 1 Garage(s)
Beschrijving
Voormalige horecazaak met woonst, gelegen op een toplocatie nabij het centrum van het gezellige Schriek, met winkels, scholen en openbaar vervoer in de directe omgeving.
Het pand heeft een bewoonbare oppervlakte van 237m² en is gelegen op een perceel van 200m². Met deze verrassend ruime bewoonbare oppervlakte en functionele indeling biedt het pand tal van mogelijkheden. Op de benedenverdieping bevindt zich het handelsgedeelte dat is opgesplitst in een winkelruimte met wachtplaats en een ruime keuken. Deze is toegankelijk via een afzonderlijke inkomhal die vandaag tegelijkertijd dienst doet als voorraadkamer. Het privé gedeelte op het gelijkvloers omvat een kleine keuken en een woonkamer die via een hal toegang geeft tot het toilet en het ommuurde en deels overdekte terras met ruime berging. Op de eerste verdieping vinden we een ruime nachthal, 7 kamers en 1 badkamer met douche, lavabo en toilet. Onder het privé gedeelte bevindt zich nog een kleine voorraadkelder.
Kom de troeven van deze woonst ter plaatse ontdekken en maak een afspraak: 015/755 444 of info@immovercammen.be
Renovatieplicht EPC: binnen 6 jaar na aankoop = verplichte renovatie tot label D of beter.
Energie
![]() |
- EPC Certificaat: 20221128-0002680031-RES-3
- Energieverbruik: 468 kWh/m²/jaar
- E-peil: E0
- Verwarming: Gas
- Beglazing: Standaard dubbel
Extra budget nodig voor je renovatie?

Op de kaart

Financieel
| Prijs | |
|---|---|
| Kadastraal inkomen (niet geïndexeerd) | € 649 |
| Kadastraal inkomen (geïndexeerd) | € 0 |
Berekening kosten
Je aankoopkosten? Die heb je snel berekend via de knop hieronder.
Bijkomende info
Gebouw
| Staat | Op te frissen |
|---|---|
| Bouwcertificaat | Nee |
| Bewoonbaar (m²) | 237 |
| Verdieping | 0 |
| Badkamers | 1 |
| Slaapkamers | 4 |
| Verdiepingen | 0 |
| Garages | 1 |
| Parkeerplaatsen | 0 |
| Doucheruimtes | 0 |
| Toiletten | 2 |
Faciliteiten
| Materiaal ramenomlijstingen | Aluminium |
|---|---|
| Beglazing | Standaard dubbel |
| Brandstof primaire verwarming | Gas |
| Elektrisch keuringsattest | Nee |
Perceel
| Overstromingsgevoelig | Geen |
|---|---|
| P-score | C |
| G-score | C |
| Voorkeurrecht | Nee |
| Totale oppervlakte (m²) | 200 |
| Bebouwde oppervlakte (m²) | 0 |
| Tuin oppervlakte (m²) | 0 |
| Oppervlakte terras (m²) | 0 |
Vergunning
| Vergunning | Geen beschikbaar |
|---|---|
| Verkavelingsvergunning | Geen beschikbaar |
Uitrusting
| Investeringspand | Nee |
|---|---|
| Geschikt voor praktijk | Nee |
| Parking | Nee |
| Garage | Ja |
| Thuiskantoor | Nee |
| Kelder | Ja |
| Zolder | Ja |
| Tuin | Nee |
| Terras | Ja |
| Lift | Nee |
| Rioolaansluiting | Ja |
| Gasaansluiting | Ja |
| Wateraansluiting | Ja |
| Elektriciteitsaansluiting | Ja |
| TV aansluiting | Ja |
| Internetaansluiting | Ja |
| Telefoonaansluiting | Ja |



