Nieuw
Te renoveren, zeer ruime open bebouwing te Herselt
€ 229.000
Een pand van Immo Persyn
Favoriet
Jouw zoektocht
Jouw scoretabel voor dit pand
Aan het laden...
Jouw geplande bezichtigingen
Aan het laden...
Overzicht
- 180 m² bewoonbaar
- 553 m² grond
- 3 Slaapkamer(s)
- 1 Badkamer(s)
- 1 Tuin
- 2 Garage(s)
Overstromingsgevaar perceel
Beschrijving
Deze zeer ruime woning, gelegen in het Kempische Herselt, wacht op een nieuwe eigenaar die er weer een warme thuis van wil maken.
Het mooie perceel biedt je een solide basis om jouw project te realiseren. Dankzij de authentieke uitstraling, de huidige ruimtes en volumes, en de mogelijkheid om extra leefruimte te creëren op de zolderruimte, kan je hier een prachtwoning creëren.
INDELING:
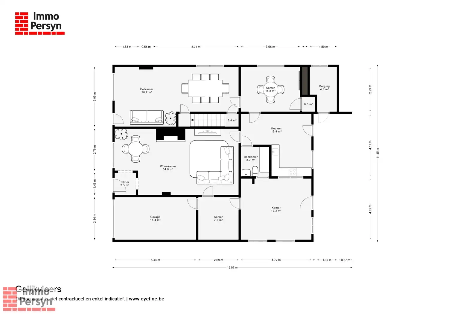
Gelijkvloers: twee woonkamers, salon, keuken, badkamer, berging
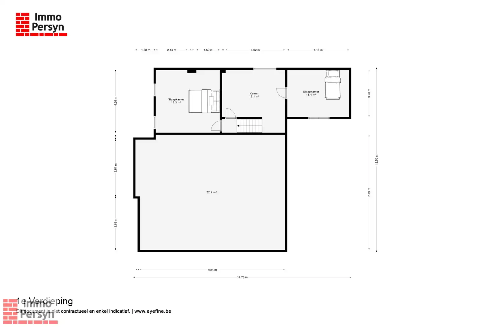
1ste verdieping: 3 slaapkamers en een ruime zolderruimte boven de garages.
Zolder: ja
Tuin: met tuinberging
Kelder: voorraadkelder
Ervaar zelf de vele voordelen van deze woning tijdens een persoonlijke rondleiding.
Maak vandaag nog je afspraak.
Mail naar info@immopersyn.be of bel 013 444 008.
Het mooie perceel biedt je een solide basis om jouw project te realiseren. Dankzij de authentieke uitstraling, de huidige ruimtes en volumes, en de mogelijkheid om extra leefruimte te creëren op de zolderruimte, kan je hier een prachtwoning creëren.
INDELING:
Gelijkvloers: twee woonkamers, salon, keuken, badkamer, berging
1ste verdieping: 3 slaapkamers en een ruime zolderruimte boven de garages.
Zolder: ja
Tuin: met tuinberging
Kelder: voorraadkelder
Ervaar zelf de vele voordelen van deze woning tijdens een persoonlijke rondleiding.
Maak vandaag nog je afspraak.
Mail naar info@immopersyn.be of bel 013 444 008.
Energie
![]() |
- EPC Certificaat: 20260306-0003818398-RES-1
- Energieverbruik: 773 kWh/m²/jaar
- E-peil: E0
- Beglazing: Onbekend
Let op, de renovatieverplichting in Vlaanderen verplicht de koper om deze woning na aankoop te renoveren tot een betere energieprestatie. Lees er alles over in dit artikel
Extra budget nodig voor je renovatie?
De overheid helpt je dit pand energetisch te renoveren! Hieronder zie je het premiebedrag dat je mogelijks van de overheid krijgt.
Het huidige EPC-label is:

Op de kaart

Financieel
| Prijs | |
|---|---|
| Kadastraal inkomen (niet geïndexeerd) | € 446 |
Berekening kosten
Je aankoopkosten? Die heb je snel berekend via de knop hieronder.
Bijkomende info
Gebouw
| Bouwjaar | 1920 |
|---|---|
| Staat | Te renoveren |
| Bewoonbaar (m²) | 180 |
| Gevelbreedte | 12 |
| Badkamers | 1 |
| Slaapkamers | 3 |
| Verdiepingen | 2 |
| Garages | 2 |
| Parkeerplaatsen | 0 |
| Toiletten | 0 |
Faciliteiten
| Septische tank | Ja |
|---|
Perceel
| Diepte (m) | 28 |
|---|---|
| Breedte (m) | 16 |
| Overstromingsgevoelig | Geen |
| P-score | D |
| G-score | A |
| Totale oppervlakte (m²) | 553 |
| Bebouwde oppervlakte (m²) | 0 |
| Tuin oppervlakte (m²) | 0 |
| Oriëntatie tuin | West |
Vergunning
| Verkavelingsvergunning | Geen beschikbaar |
|---|
Uitrusting
| Investeringspand | Nee |
|---|---|
| Parking | Nee |
| Garage | Ja |
| Kelder | Ja |
| Zolder | Ja |
| Opslagruimte | Ja |
| Tuin | Ja |
| Lift | Nee |
| Rioolaansluiting | Nee |
| Gasaansluiting | Nee |
| Wateraansluiting | Ja |
| Elektriciteitsaansluiting | Ja |
| Internetaansluiting | Nee |
| Telefoonaansluiting | Ja |
| Zonnepanelen | Nee |
| Zonneboiler | Nee |
| Alarm | Nee |
| Videofoon | Nee |
| Grondwaterput | Ja |
Een pand van
Immo Persyn
Wij staan voor u klaar om u te begeleiden in de zoektocht naar uw thuis
U, als klant, staat bij ons centraal.
Wij maken graag tijd voor u.
Wij stellen onze expertise ten dienste van u.
Wij gaan niet voor kwantiteit, maar voor kwaliteit.
Daarom dat wij ook ’s avonds en op zaterdag beschikbaar zijn voor u.
HERAAR271CC
Leer meer over vastgoed
23 March 2026
Op Spotto zoeken als een pro: 10 slimme tips
21 March 2026
Hoeveel kan ik lenen om een huis te kopen?
01 March 2026
Wanneer heb ik een bouwvergunning of omgevingsvergunning nodig?
17 February 2026



