Beschrijving
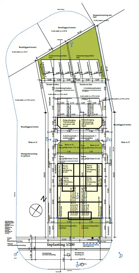
Zes stijlvolle, nieuwbouw BEN (E20) appartementen pal in het centrum gelegen. Eén, twee en drie slaapkamerappartementen voorzien van warmtepomp, zonnepanelen en inclusief bovengrondse staanplaats. Prijzen vanaf €222.000,- excl. kosten.
Info/plaatsbezoek
Info/plaatsbezoek
Panden
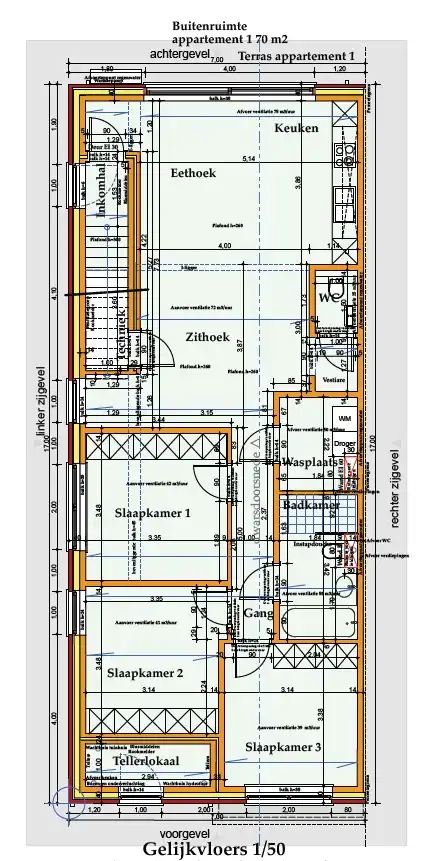
| Appartement | Gelijkvloers | 3 slaapkamer(s) | 119 m² | € 329.000 | |
| Appartement | Verdieping 2 | 1 slaapkamer(s) | 72 m² | - | Verkocht |
Energie
Op de kaart

Financieel
Bijkomende info
Leer meer over vastgoed
Nieuw
24 November 2025
Uitgezocht voor jouw gemeente: Hoeveel stijgt de waarde van je woning door een renovatie?
22 October 2025
Hoeveel kan ik lenen om een huis te kopen?
11 June 2025
Huis kopen met bouwovertreding? Dit moet je weten
11 May 2025