Overzicht
- 182 m² bewoonbaar
- 952 m² grond
- 3 Slaapkamer(s)
- 1 Badkamer(s)
- 2 Toilet(ten)
Beschrijving
Vrijstaande woning gelegen in een rustige straat op wandelafstand van het dorpscentrum op een mooi perceel van 952m².
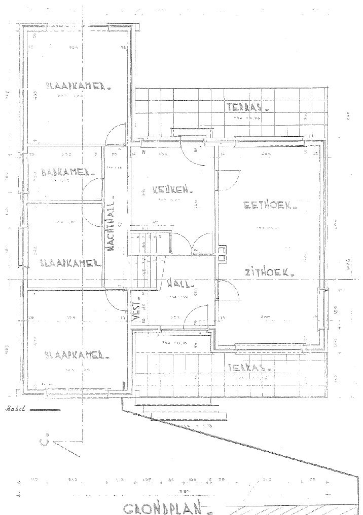
Woning voorzien in o.a. ruime garage met aanpalend sanitair, bergruimte en atelier op benedenverdieping, lichtrijke leefruimte en ingerichte keuken met directe toegang tot terras en tuin op de split-level verdieping en 3 slpks en badkamer op de bovenverdieping.
Deels onderkelderd, deels kruipruimte, trapluik naar bergzolder.
Indelingsplannen rechts onderaan bij downloads.
Info/plaatsbezoek 0473/245102 of info@vandenvonder-decat.be.
Woning voorzien in o.a. ruime garage met aanpalend sanitair, bergruimte en atelier op benedenverdieping, lichtrijke leefruimte en ingerichte keuken met directe toegang tot terras en tuin op de split-level verdieping en 3 slpks en badkamer op de bovenverdieping.
Deels onderkelderd, deels kruipruimte, trapluik naar bergzolder.
Indelingsplannen rechts onderaan bij downloads.
Info/plaatsbezoek 0473/245102 of info@vandenvonder-decat.be.
Energie
- Energieverbruik: 535 kWh/m²/jaar
- Beglazing: Standaard dubbel
Let op, de renovatieverplichting in Vlaanderen verplicht de koper om deze woning na aankoop te renoveren tot een betere energieprestatie. Lees er alles over in dit artikel
Op de kaart

Financieel
| Prijs | |
|---|---|
| Kadastraal inkomen (niet geïndexeerd) | € 875 |
Berekening kosten
Je aankoopkosten? Die heb je snel berekent via de knop hieronder.
Bijkomende info
Gebouw
| Bouwjaar | 1979 |
|---|---|
| Bewoonbaar (m²) | 182 |
| Badkamers | 1 |
| Slaapkamers | 3 |
| Toiletten | 2 |
Faciliteiten
| Keuken uitrusting | Goed uitgerust |
|---|---|
| Beglazing | Standaard dubbel |
| Luiken | Ja |
| Septische tank | Nee |
Perceel
| Overstromingsgevoelig | Geen |
|---|---|
| P-score | A |
| G-score | A |
| Totale oppervlakte (m²) | 952 |
Vergunning
| Verkavelingsvergunning | Geen beschikbaar |
|---|
Uitrusting
| Investeringspand | Nee |
|---|---|
| Parking | Nee |
| Garage | Nee |
| Tuin | Nee |
| Lift | Nee |
| Rioolaansluiting | Nee |
| Gasaansluiting | Nee |
| Wateraansluiting | Nee |
| Elektriciteitsaansluiting | Nee |
| Internetaansluiting | Nee |
| Telefoonaansluiting | Nee |
| Zonnepanelen | Nee |
| Zonneboiler | Nee |
| Alarm | Nee |
| Zwembad | Nee |
| Videofoon | Nee |
| Grondwaterput | Nee |
Leer meer over vastgoed
Nieuw
24 November 2025
Uitgezocht voor jouw gemeente: Hoeveel stijgt de waarde van je woning door een renovatie?
22 October 2025
Hoeveel kan ik lenen om een huis te kopen?
11 June 2025
Huis kopen met bouwovertreding? Dit moet je weten
11 May 2025