Iconisch wonen.
€ 560.000
Een pand van Immo Kong
Favoriet
Jouw zoektocht
Jouw scoretabel voor dit pand
Aan het laden...
Jouw geplande bezichtigingen
Aan het laden...
Overzicht
- 225 m² bewoonbaar
- 4 Slaapkamer(s)
- 1 Badkamer(s)
- 1 Tuin
- 1 Garage(s)
Overstromingsgevaar perceel
Beschrijving
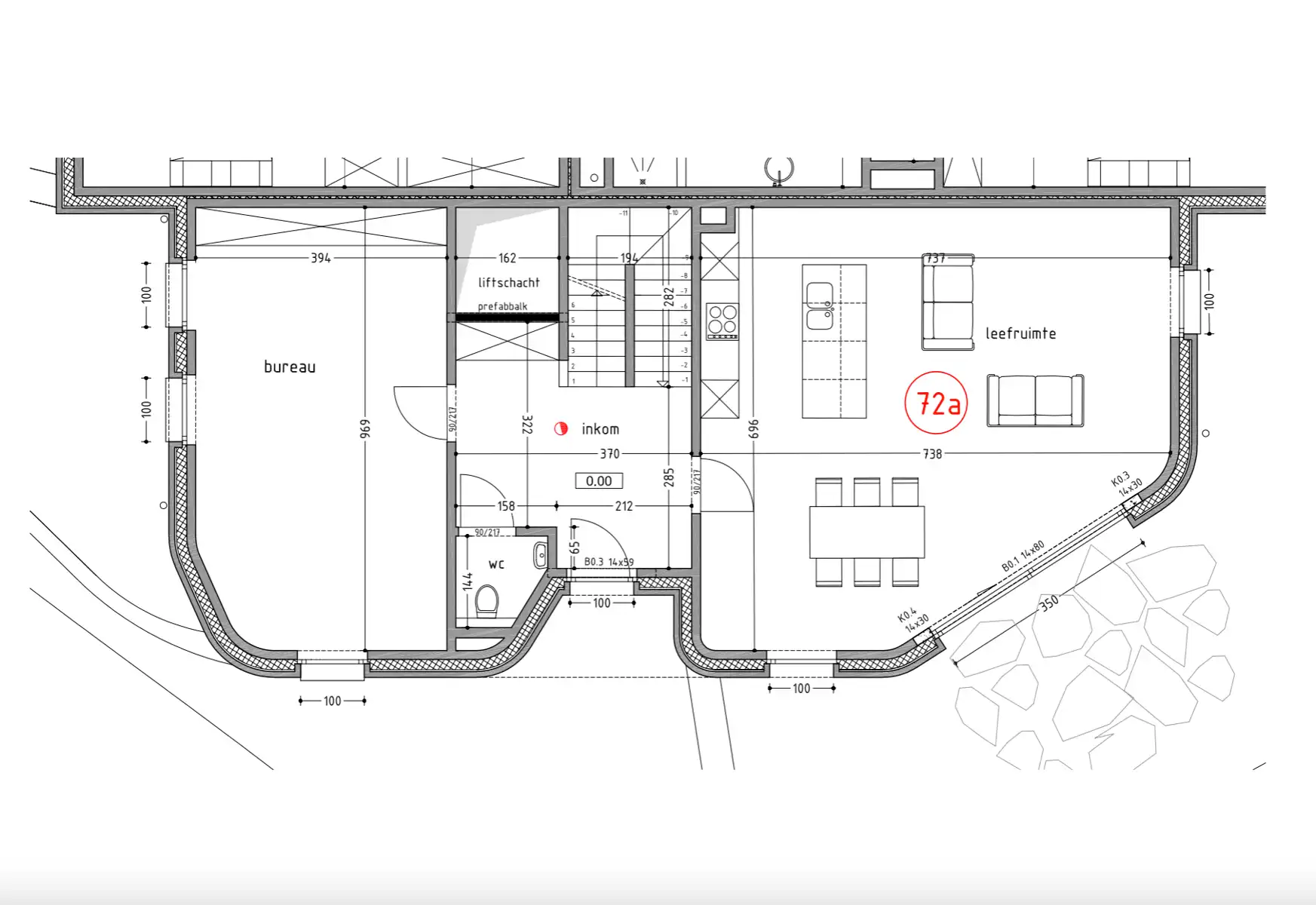
Unit 72A is een royal duplex tuinappartement met handelsruimte. Samen goed voor een oppervlakte van 225 m² en 4 slaapkamers, ideaal voor wie wonen en werken wil combineren. De woonst beschikt over een privatieve tuin van 120 m², met een tuinzone aan zowel de woonst als de handelsruimte, en een terras op de eerste verdieping. Deze indeling creëert een oase van rust met ruime leefzones. De handels- heeft een eigen inkom en groenzicht. De woning behaalt bovendien een S-peil van 21 en een E-peil van 3, goed voor een EPC-label A, wat staat voor een energiezuinige en toekomstgerichte woonst.
In Hof Marly staan comfort, rust en energiezuinigheid centraal. Vloerverwarming via een individuele warmtepomp garandeert een aangenaam binnenklimaat met laag verbruik, terwijl zonnepanelen voorzien in de eigen energiebehoefte. Bovendien genieten bewoners vijf jaar vrijstelling van onroerende voorheffing.
Het project is doordacht uitgewerkt met een ruime ondergrondse parkeergarage, zeer brede autostaanplaatsen met privatieve berging en aparte fietsparkeerzones per blok. Via meerdere trappenhallen en liften bereik je vlot de woonentiteiten en het binnenpark.
Ook bouwtechnisch scoort Hof Marly hoog, met een vijfsterrenlabel voor akoestiek en afwerking dankzij performante isolatie en doordachte ontkoppeling van de entiteiten.
In Hof Marly staan comfort, rust en energiezuinigheid centraal. Vloerverwarming via een individuele warmtepomp garandeert een aangenaam binnenklimaat met laag verbruik, terwijl zonnepanelen voorzien in de eigen energiebehoefte. Bovendien genieten bewoners vijf jaar vrijstelling van onroerende voorheffing.
Het project is doordacht uitgewerkt met een ruime ondergrondse parkeergarage, zeer brede autostaanplaatsen met privatieve berging en aparte fietsparkeerzones per blok. Via meerdere trappenhallen en liften bereik je vlot de woonentiteiten en het binnenpark.
Ook bouwtechnisch scoort Hof Marly hoog, met een vijfsterrenlabel voor akoestiek en afwerking dankzij performante isolatie en doordachte ontkoppeling van de entiteiten.
Unit 72A is een royal duplex tuinappartement met handelsruimte. Samen goed voor een oppervlakte van 225 m² en 4 slaapkamers, ideaal voor wie wonen en werken wil combineren. De woonst beschikt over een privatieve tuin van 120 m², met een tuinzone aan zowel de woonst als de handelsruimte, en een terras op de eerste verdieping. Deze indeling creëert een oase van rust met ruime leefzones. De handels- heeft een eigen inkom en groenzicht. De woning behaalt bovendien een S-peil van 21 en een E-peil van 3, goed voor een EPC-label A, wat staat voor een energiezuinige en toekomstgerichte woonst.
In Hof Marly staan comfort, rust en energiezuinigheid centraal. Vloerverwarming via een individuele warmtepomp garandeert een aangenaam binnenklimaat met laag verbruik, terwijl zonnepanelen voorzien in de eigen energiebehoefte. Bovendien genieten bewoners vijf jaar vrijstelling van onroerende voorheffing.
Het project is doordacht uitgewerkt met een ruime ondergrondse parkeergarage, zeer brede autostaanplaatsen met privatieve berging en aparte fietsparkeerzones per blok. Via meerdere trappenhallen en liften bereik je vlot de woonentiteiten en het binnenpark.
Ook bouwtechnisch scoort Hof Marly hoog, met een vijfsterrenlabel voor akoestiek en afwerking dankzij performante isolatie en doordachte ontkoppeling van de entiteiten.
In Hof Marly staan comfort, rust en energiezuinigheid centraal. Vloerverwarming via een individuele warmtepomp garandeert een aangenaam binnenklimaat met laag verbruik, terwijl zonnepanelen voorzien in de eigen energiebehoefte. Bovendien genieten bewoners vijf jaar vrijstelling van onroerende voorheffing.
Het project is doordacht uitgewerkt met een ruime ondergrondse parkeergarage, zeer brede autostaanplaatsen met privatieve berging en aparte fietsparkeerzones per blok. Via meerdere trappenhallen en liften bereik je vlot de woonentiteiten en het binnenpark.
Ook bouwtechnisch scoort Hof Marly hoog, met een vijfsterrenlabel voor akoestiek en afwerking dankzij performante isolatie en doordachte ontkoppeling van de entiteiten.
Energie
![]() |
Op de kaart

Downloads
- A l blok B.pdf (pdf)
Financieel
| Prijs |
|---|
Bijkomende info
Gebouw
| Bouwjaar | 2027 |
|---|---|
| Bewoonbaar (m²) | 225 |
| Verdieping | 0 |
| Gevels | 3 |
| Badkamers | 1 |
| Slaapkamers | 4 |
| Verdiepingen | 2 |
| Garages | 1 |
| Parkeerplaatsen | 1 |
Faciliteiten
| Type vloer | |
|---|---|
| Keuken uitrusting | Luxueus uitgerust |
| Elektrisch keuringsattest | Ja |
Perceel
| P-score | D |
|---|---|
| Voorkeurrecht | Nee |
| Tuin oppervlakte (m²) | 120 |
| Oriëntatie voorgevel | Zuidwest |
Vergunning
| Vergunning | Vergunning beschikbaar |
|---|---|
| Verkavelingsvergunning | Geen beschikbaar |
| Bouwovertreding | Geen |
| Bouwovertreding dagvaardiging | Geen |
Uitrusting
| Geschikt voor rolstoelgebruikers | Ja |
|---|---|
| Geschikt voor praktijk | Ja |
| Parking | Ja |
| Garage | Nee |
| Kelder | Ja |
| Tuin | Ja |
| Terras | Ja |
| Wateraansluiting | Ja |
| Elektriciteitsaansluiting | Ja |
Een pand van
Immo Kong
Immo Kong biedt door zijn kleinschaligheid en persoonlijke aanpak tegenwicht aan de grote spelers op de markt.
- One point of contact, Bob zorgt voor een goed gevoel bij koper & verkoper.
- Facts & figures, een objectieve weergave van de situatie.
- Transparantie, dus geen verborgen gebreken.
- What you see is what you get: objectieve beoordeling, open communicatie.
- Efficiënt: zo weinig mogelijk tussenstappen van aanvraag tot verkoop.
- Enkel kwalitatieve leads: zo bespaart iedereen kostbare tijd.
7306533
Leer meer over vastgoed
24 April 2026
Duurzaam gelegen woning? Check je Mobiscore
23 March 2026
Op Spotto zoeken als een pro: 10 slimme tips
21 March 2026
Hoeveel kan ik lenen om een huis te kopen?
01 March 2026
