Nieuw
Iconisch wonen.
€ 586.000
Een pand van Immo Kong
Overzicht
- 183 m² bewoonbaar
- 4 Slaapkamer(s)
- 1 Badkamer(s)
- 1 Tuin
- 1 Garage(s)
Overstromingsgevaar gebouw
Overstromingsgevaar perceel
Beschrijving
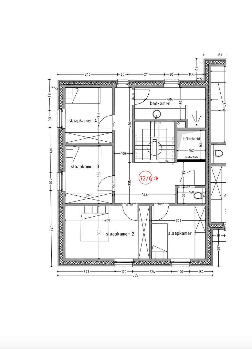
Unit 72/6 is een unieke tuinwoning van 183 m² met 4 slaapkamers, die zich onderscheidt door zijn uitzonderlijke buitenruimte. De riante privatieve tuin van 230 m², gelegen aan het binnenpark, biedt zicht op en een directe aansluiting met het groen. Zowel het ochtendzonterras als het avondzonterras bevinden zich in de tuin, waardoor je de hele dag door van zon, ruimte en rust geniet. De woning is bovendien voorzien van een XL liftschachtvoorbereiding, wat extra toekomstgericht wooncomfort biedt. Met een S-peil van 24 en een E-peil van 6, goed voor een EPC-label A, betreft het een energiezuinige en duurzame woonst.
In Hof Marly staan comfort, rust en energiezuinigheid centraal. Vloerverwarming via een individuele warmtepomp garandeert een aangenaam binnenklimaat met laag verbruik, terwijl zonnepanelen voorzien in de eigen energiebehoefte. Bovendien genieten bewoners vijf jaar vrijstelling van onroerende voorheffing.
Het project is doordacht uitgewerkt met een ruime ondergrondse parkeergarage, zeer brede autostaanplaatsen met privatieve berging en aparte fietsparkeerzones per blok. Via meerdere trappenhallen en liften bereik je vlot de woonentiteiten en het binnenpark.
Ook bouwtechnisch scoort Hof Marly hoog, met een vijfsterrenlabel voor akoestiek en afwerking dankzij performante isolatie en doordachte ontkoppeling van de entiteiten.
In Hof Marly staan comfort, rust en energiezuinigheid centraal. Vloerverwarming via een individuele warmtepomp garandeert een aangenaam binnenklimaat met laag verbruik, terwijl zonnepanelen voorzien in de eigen energiebehoefte. Bovendien genieten bewoners vijf jaar vrijstelling van onroerende voorheffing.
Het project is doordacht uitgewerkt met een ruime ondergrondse parkeergarage, zeer brede autostaanplaatsen met privatieve berging en aparte fietsparkeerzones per blok. Via meerdere trappenhallen en liften bereik je vlot de woonentiteiten en het binnenpark.
Ook bouwtechnisch scoort Hof Marly hoog, met een vijfsterrenlabel voor akoestiek en afwerking dankzij performante isolatie en doordachte ontkoppeling van de entiteiten.
Unit 72/6 is een unieke tuinwoning van 183 m² met 4 slaapkamers, die zich onderscheidt door zijn uitzonderlijke buitenruimte. De riante privatieve tuin van 230 m², gelegen aan het binnenpark, biedt zicht op en een directe aansluiting met het groen. Zowel het ochtendzonterras als het avondzonterras bevinden zich in de tuin, waardoor je de hele dag door van zon, ruimte en rust geniet. De woning is bovendien voorzien van een XL liftschachtvoorbereiding, wat extra toekomstgericht wooncomfort biedt. Met een S-peil van 24 en een E-peil van 6, goed voor een EPC-label A, betreft het een energiezuinige en duurzame woonst.
In Hof Marly staan comfort, rust en energiezuinigheid centraal. Vloerverwarming via een individuele warmtepomp garandeert een aangenaam binnenklimaat met laag verbruik, terwijl zonnepanelen voorzien in de eigen energiebehoefte. Bovendien genieten bewoners vijf jaar vrijstelling van onroerende voorheffing.
Het project is doordacht uitgewerkt met een ruime ondergrondse parkeergarage, zeer brede autostaanplaatsen met privatieve berging en aparte fietsparkeerzones per blok. Via meerdere trappenhallen en liften bereik je vlot de woonentiteiten en het binnenpark.
Ook bouwtechnisch scoort Hof Marly hoog, met een vijfsterrenlabel voor akoestiek en afwerking dankzij performante isolatie en doordachte ontkoppeling van de entiteiten.
In Hof Marly staan comfort, rust en energiezuinigheid centraal. Vloerverwarming via een individuele warmtepomp garandeert een aangenaam binnenklimaat met laag verbruik, terwijl zonnepanelen voorzien in de eigen energiebehoefte. Bovendien genieten bewoners vijf jaar vrijstelling van onroerende voorheffing.
Het project is doordacht uitgewerkt met een ruime ondergrondse parkeergarage, zeer brede autostaanplaatsen met privatieve berging en aparte fietsparkeerzones per blok. Via meerdere trappenhallen en liften bereik je vlot de woonentiteiten en het binnenpark.
Ook bouwtechnisch scoort Hof Marly hoog, met een vijfsterrenlabel voor akoestiek en afwerking dankzij performante isolatie en doordachte ontkoppeling van de entiteiten.
Energie
![]() |
Op de kaart

Downloads
Financieel
| Prijs |
|---|
Bijkomende info
Gebouw
| Bouwjaar | 2027 |
|---|---|
| Bewoonbaar (m²) | 183 |
| Verdieping | 2 |
| Gevels | 3 |
| Badkamers | 1 |
| Slaapkamers | 4 |
| Verdiepingen | 2 |
| Garages | 1 |
| Parkeerplaatsen | 1 |
Faciliteiten
| Type vloer | |
|---|---|
| Keuken uitrusting | Luxueus uitgerust |
| Elektrisch keuringsattest | Ja |
Perceel
| P-score | D |
|---|---|
| G-score | D |
| Voorkeurrecht | Nee |
| Tuin oppervlakte (m²) | 183 |
| Oriëntatie voorgevel | West |
Vergunning
| Vergunning | Vergunning beschikbaar |
|---|---|
| Verkavelingsvergunning | Geen beschikbaar |
| Bouwovertreding | Geen |
| Bouwovertreding dagvaardiging | Geen |
Uitrusting
| Geschikt voor rolstoelgebruikers | Ja |
|---|---|
| Parking | Nee |
| Garage | Nee |
| Kelder | Ja |
| Tuin | Ja |
| Terras | Ja |
| Wateraansluiting | Ja |
| Elektriciteitsaansluiting | Ja |
| Regenwaterput | Ja |
Een pand van
Immo Kong
Immo Kong biedt door zijn kleinschaligheid en persoonlijke aanpak tegenwicht aan de grote spelers op de markt.
- One point of contact, Bob zorgt voor een goed gevoel bij koper & verkoper.
- Facts & figures, een objectieve weergave van de situatie.
- Transparantie, dus geen verborgen gebreken.
- What you see is what you get: objectieve beoordeling, open communicatie.
- Efficiënt: zo weinig mogelijk tussenstappen van aanvraag tot verkoop.
- Enkel kwalitatieve leads: zo bespaart iedereen kostbare tijd.
7229172
Leer meer over vastgoed
Nieuw
01 March 2026
Wanneer heb ik een bouwvergunning of omgevingsvergunning nodig?
17 February 2026
Hoe breng ik een bod uit op een woning?
24 November 2025
Uitgezocht voor jouw gemeente: Hoeveel stijgt de waarde van je woning door een renovatie?
22 October 2025
