Nieuw Virtual tour
Unieke kans Futereproof bedrijfspand met bewezen succesformule
€ 1.240.000
Een pand van Immo Kong
Overzicht
- 650 m² bewoonbaar
- 1502 m² grond
- 10 Slaapkamer(s)
- 6 Toilet(ten)
Beschrijving
Unieke kans: Futureproof bedrijfspand met bewezen succesformule!
‘De Regio’, een modern businesscenter ontworpen om ondernemingen te laten groeien, nu beschikbaar voor overname.
Het prestigieuze pand, in gebruik sinds 2019, ligt strategisch langs de Olenseweg in Oosterwijk, de verbindingsas tussen Herentals en Aarschot, met meer dan 20.000 passerende voertuigen per dag. Een zichtlocatie met uitstekende bereikbaarheid en ruime parkeermogelijkheden.
Het gebouw
Met 650m² binnenruimte en 250m² buitenruimte is het pand slim ingedeeld voor maximale functionaliteit.
Uitgerust met warmtepompen, airconditioning en ventilatie voor een energiezuinig, aangenaam binnenklimaat.
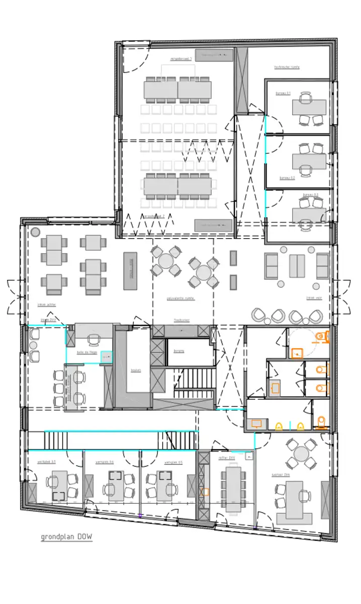
Gelijkvloers (388m²)
Representatieve inkomhal en ontmoetingsruimte (85m²)
Professionele keuken, berging en sanitaire voorzieningen
Vergaderzaal (70m²) met aansluitend terras (110m²)
3 aparte kantoren (ca. 10m² elk)
Afzonderlijk kantoorvolume met onthaal, wachtruimte en 8 kantoren (10 - 24m²)
Eetruimte en administratieve zone
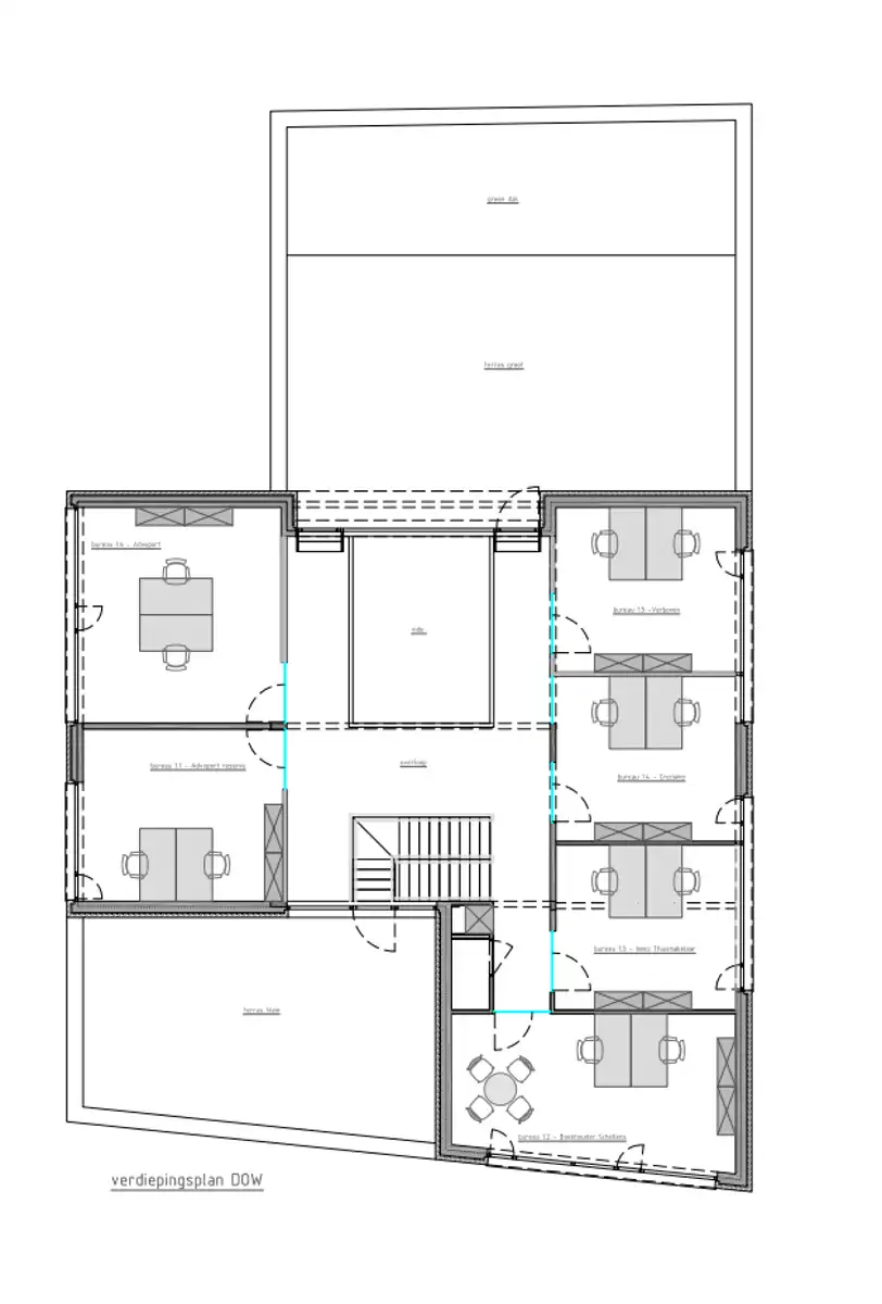
Verdieping (220m²)
Lichtrijke kantoren met privacy
Twee dakterrassen (125m²)
Vide met open zicht
Buitenruimte
Meer dan 22 parkeerplaatsen, incl. 2 brede
Laadpalen voor elektrische wagens
Onderhoudsarme, groene aanleg
Highlights
Modern, licht en professioneel gebouw
Efficiënte indeling en optimaal gebruikscomfort
Diverse kantoor- en vergaderruimtes
Lunchruimtes met professionele keuken
Topligging met sterke zichtbaarheid
Verkoop in de vorm v overname aandelen
‘De Regio’, een modern businesscenter ontworpen om ondernemingen te laten groeien, nu beschikbaar voor overname.
Het prestigieuze pand, in gebruik sinds 2019, ligt strategisch langs de Olenseweg in Oosterwijk, de verbindingsas tussen Herentals en Aarschot, met meer dan 20.000 passerende voertuigen per dag. Een zichtlocatie met uitstekende bereikbaarheid en ruime parkeermogelijkheden.
Het gebouw
Met 650m² binnenruimte en 250m² buitenruimte is het pand slim ingedeeld voor maximale functionaliteit.
Uitgerust met warmtepompen, airconditioning en ventilatie voor een energiezuinig, aangenaam binnenklimaat.
Gelijkvloers (388m²)
Representatieve inkomhal en ontmoetingsruimte (85m²)
Professionele keuken, berging en sanitaire voorzieningen
Vergaderzaal (70m²) met aansluitend terras (110m²)
3 aparte kantoren (ca. 10m² elk)
Afzonderlijk kantoorvolume met onthaal, wachtruimte en 8 kantoren (10 - 24m²)
Eetruimte en administratieve zone
Verdieping (220m²)
Lichtrijke kantoren met privacy
Twee dakterrassen (125m²)
Vide met open zicht
Buitenruimte
Meer dan 22 parkeerplaatsen, incl. 2 brede
Laadpalen voor elektrische wagens
Onderhoudsarme, groene aanleg
Highlights
Modern, licht en professioneel gebouw
Efficiënte indeling en optimaal gebruikscomfort
Diverse kantoor- en vergaderruimtes
Lunchruimtes met professionele keuken
Topligging met sterke zichtbaarheid
Verkoop in de vorm v overname aandelen
Unieke kans: Futereproof bedrijfspand met bewezen succesformule, nu te koop!
De Regio, een modern businesscenter dat ontworpen is om ondernemingen te laten groeien, nu beschikbaar voor overname.
Dit prestigieuze pand werd in gebruik genomen in 2019 en is strategisch gelegen langs de Olenseweg in Oosterwijk, de verbindingsas tussen Herentals en Aarschot, met meer dan 20.000 passerende voertuigen per dag.
Een toplocatie met uitstekende zichtbaarheid, vlotte bereikbaarheid en ruime parkeermogelijkheden.
Het gebouw
Totaal 650m² binnenruimte en 250m² buitenruimte, slim ingedeeld voor maximale functionaliteit en comfort.
Voorzien van de modernste technieken: warmtepompen, airconditioning en ventilatie zorgen voor een energiezuinig, aangenaam binnenklimaat het hele jaar door.
Gelijkvloers (388m²)
• Stijlvolle inkomhal en centrale ontmoetingsruimte (85m²) voor lunch, overleg of events
• Professionele keuken, berging en moderne sanitaire voorzieningen
• Modulaire vergaderzaal (70m²) met aansluitend ruim buitenterras (110m²)
• 3 afzonderlijke kantoorruimtes (elk ca. 10m²)
• Aan de andere zijde: een apart kantoorvolume in twee niveaus met eigen onthaaldesk, wachtruimte en 8 kantoren (10 - 24 m²)
• Gezellige eetruimte en administratieve kantoorzone
Uw bedrijf kan zich geen betere eerste indruk wensen.
Verdieping (220m²)
• Lichtrijke kantoren met veel privacy
• Twee zonnige dakterrassen (125m²), ideaal voor informele meetings of pauzes
• Vide met visueel contact naar de benedenverdieping, wat extra ruimtelijkheid en connectie creëert
Buitenruimte
• Meer dan 22 parkeerplaatsen, inclusief 2 extra brede plaatsen
• Laadpalen voor elektrische voertuigen aanwezig
• Onderhoudsarme, groene aanleg met een aangename uitstraling
Highlights
• Superruim en licht gebouw met moderne, professionele look
• Doordachte indeling met optimale gebruiksflow
• Diverse kantoorruimtes en vergadermogelijkheden
• Gemeenschappelijke lunchruimtes met keukenfaciliteiten
• Kwalitatieve afwerking en hedendaags comfort
• TOP ligging met zichtlocatie en bereikbaarheid
Concept ‘De Regio’ een gevestigde waarde
• Sterk merk met naamsbekendheid in de ruime regio
• Bestaande klantenkring van vaste huurders en terugkerende vergaderklanten
• Volledig uitgewerkt co-workingmodel met community-aspect
• Professionele branding, website en huisstijl
• Ideaal voor franchise, expansie of verdere uitbouw
• Combineert vastgoedwaarde met een winstgevend businessmodel
• Lage instaprisico’s dankzij bestaande infrastructuur en reputatie
• Overname van roerende goederen bespreekbaar
Kortom:
‘De Regio’ biedt een zeldzame kans om een modern, instapklaar en rendabel businesscentrum over te nemen op een toplocatie.
Een futureproof hub waar ondernemen, ontmoeten en groeien centraal staan.
De vraagprijs betreft de overname van de vennootschap door middel van de aankoop van aandelen.
De Regio, een modern businesscenter dat ontworpen is om ondernemingen te laten groeien, nu beschikbaar voor overname.
Dit prestigieuze pand werd in gebruik genomen in 2019 en is strategisch gelegen langs de Olenseweg in Oosterwijk, de verbindingsas tussen Herentals en Aarschot, met meer dan 20.000 passerende voertuigen per dag.
Een toplocatie met uitstekende zichtbaarheid, vlotte bereikbaarheid en ruime parkeermogelijkheden.
Het gebouw
Totaal 650m² binnenruimte en 250m² buitenruimte, slim ingedeeld voor maximale functionaliteit en comfort.
Voorzien van de modernste technieken: warmtepompen, airconditioning en ventilatie zorgen voor een energiezuinig, aangenaam binnenklimaat het hele jaar door.
Gelijkvloers (388m²)
• Stijlvolle inkomhal en centrale ontmoetingsruimte (85m²) voor lunch, overleg of events
• Professionele keuken, berging en moderne sanitaire voorzieningen
• Modulaire vergaderzaal (70m²) met aansluitend ruim buitenterras (110m²)
• 3 afzonderlijke kantoorruimtes (elk ca. 10m²)
• Aan de andere zijde: een apart kantoorvolume in twee niveaus met eigen onthaaldesk, wachtruimte en 8 kantoren (10 - 24 m²)
• Gezellige eetruimte en administratieve kantoorzone
Uw bedrijf kan zich geen betere eerste indruk wensen.
Verdieping (220m²)
• Lichtrijke kantoren met veel privacy
• Twee zonnige dakterrassen (125m²), ideaal voor informele meetings of pauzes
• Vide met visueel contact naar de benedenverdieping, wat extra ruimtelijkheid en connectie creëert
Buitenruimte
• Meer dan 22 parkeerplaatsen, inclusief 2 extra brede plaatsen
• Laadpalen voor elektrische voertuigen aanwezig
• Onderhoudsarme, groene aanleg met een aangename uitstraling
Highlights
• Superruim en licht gebouw met moderne, professionele look
• Doordachte indeling met optimale gebruiksflow
• Diverse kantoorruimtes en vergadermogelijkheden
• Gemeenschappelijke lunchruimtes met keukenfaciliteiten
• Kwalitatieve afwerking en hedendaags comfort
• TOP ligging met zichtlocatie en bereikbaarheid
Concept ‘De Regio’ een gevestigde waarde
• Sterk merk met naamsbekendheid in de ruime regio
• Bestaande klantenkring van vaste huurders en terugkerende vergaderklanten
• Volledig uitgewerkt co-workingmodel met community-aspect
• Professionele branding, website en huisstijl
• Ideaal voor franchise, expansie of verdere uitbouw
• Combineert vastgoedwaarde met een winstgevend businessmodel
• Lage instaprisico’s dankzij bestaande infrastructuur en reputatie
• Overname van roerende goederen bespreekbaar
Kortom:
‘De Regio’ biedt een zeldzame kans om een modern, instapklaar en rendabel businesscentrum over te nemen op een toplocatie.
Een futureproof hub waar ondernemen, ontmoeten en groeien centraal staan.
De vraagprijs betreft de overname van de vennootschap door middel van de aankoop van aandelen.
Energie
![]() |
- EPC Certificaat: 13049-G-DBA_2017019863/EP03093/A183/D01/SD001
- Energieverbruik: 152 kWh/m²/jaar
Op de kaart

Financieel
| Prijs |
|---|
Berekening kosten
Je aankoopkosten? Die heb je snel berekend via de knop hieronder.
Bijkomende info
Gebouw
| Bouwjaar | 2019 |
|---|---|
| Staat | Zo goed als nieuw |
| Bewoonbaar (m²) | 650 |
| Gevels | 4 |
| Badkamers | 0 |
| Slaapkamers | 10 |
| Parkeerplaatsen | 0 |
| Toiletten | 6 |
Faciliteiten
| Type vloer | |
|---|---|
| Elektrisch keuringsattest | Ja |
Perceel
| Overstromingsgevoelig | Geen |
|---|---|
| P-score | A |
| G-score | A |
| Totale oppervlakte (m²) | 1502 |
| Bebouwde oppervlakte (m²) | 400 |
| Tuin oppervlakte (m²) | 0 |
Vergunning
| Vergunning | Vergunning beschikbaar |
|---|---|
| Verkavelingsvergunning | Geen beschikbaar |
| Bouwovertreding | Geen |
| Bouwovertreding dagvaardiging | Geen |
Uitrusting
| Geschikt voor rolstoelgebruikers | Ja |
|---|---|
| Geschikt voor praktijk | Ja |
| Parking | Ja |
| Garage | Nee |
| Tuin | Nee |
| Terras | Nee |
| Wateraansluiting | Ja |
| Elektriciteitsaansluiting | Ja |
| Telefoonaansluiting | Ja |
| Alarm | Ja |
Een pand van
Immo Kong
Immo Kong biedt door zijn kleinschaligheid en persoonlijke aanpak tegenwicht aan de grote spelers op de markt.
- One point of contact, Bob zorgt voor een goed gevoel bij koper & verkoper.
- Facts & figures, een objectieve weergave van de situatie.
- Transparantie, dus geen verborgen gebreken.
- What you see is what you get: objectieve beoordeling, open communicatie.
- Efficiënt: zo weinig mogelijk tussenstappen van aanvraag tot verkoop.
- Enkel kwalitatieve leads: zo bespaart iedereen kostbare tijd.
7330178
Leer meer over vastgoed
24 November 2025
Uitgezocht voor jouw gemeente: Hoeveel stijgt de waarde van je woning door een renovatie?
22 October 2025
Hoeveel kan ik lenen om een huis te kopen?
11 June 2025
Huis kopen met bouwovertreding? Dit moet je weten
11 May 2025
