Nieuw te bouwen open bebouwing
 € 466.261  
Een pand van Incigno Real Estate
Overzicht
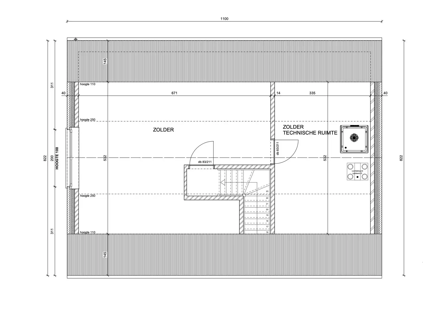
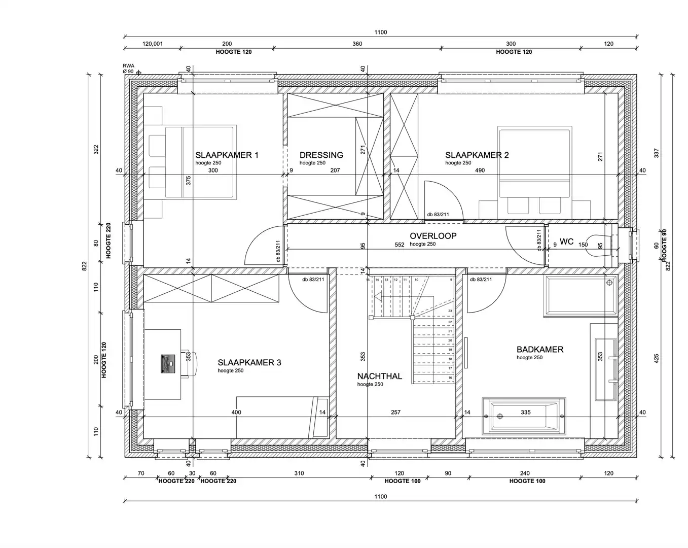
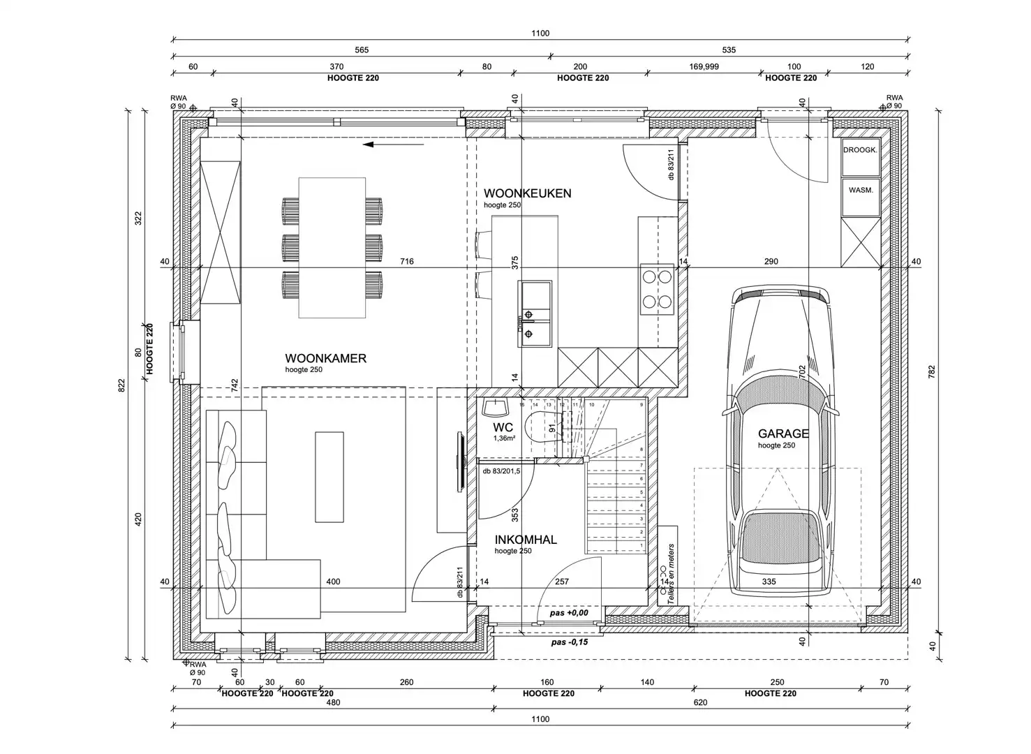
- 235.78 m² bewoonbaar
- 368 m² grond
- 3 Slaapkamer(s)
- 1 Badkamer(s)
- 1 Garage(s)
Beschrijving
Ontdek deze prachtige nieuwbouwwoning, gelegen in een rustige verkaveling vlakbij Westerlo. Deze woning is perfect voor wie op zoek is naar een moderne en energiezuinige thuisbasis, met alle nieuwste energienormen in acht genomen.
Met 3 ruime slaapkamers biedt deze woning voldoende ruimte voor gezinnen of voor diegenen die extra werk- of hobbyruimte wensen. De inpandige garage zorgt voor extra gemak en veiligheid voor uw voertuig en biedt tevens extra opslagmogelijkheden.
De rustige ligging van de woning garandeert een serene woonomgeving, terwijl u toch profiteert van uitstekende verbindingen naar omliggende steden en gemeenten. Dit maakt het de ideale keuze voor zowel werkende professionals als gezinnen die op zoek zijn naar een balans tussen rust en bereikbaarheid.
Mis deze unieke kans niet om een nieuwbouwwoning te verwerven die aan al uw wensen voldoet! Neem vandaag nog contact met ons op voor meer informatie of om een bezichtiging in te plannen.
Voor verdere detailbespreking maken wij graag een vrijblijvende afspraak met onze nieuwbouw expert om dit project in detail toe te lichten.
Een "Incigno Build Signature " woning is ontstaan vanuit meer dan 20 jaar expertise & passie in nieuwbouw ontwikkelingen woningbouw waarbij u volledig en in alle openheid zal ontzorgd & begeleid worden in het bouwprocess. Bel of mail Incigno Real Estate voor verdere toelichting: realestate@incigno.be - 0472/585 000 of 0473/ 75 82 47.
Met 3 ruime slaapkamers biedt deze woning voldoende ruimte voor gezinnen of voor diegenen die extra werk- of hobbyruimte wensen. De inpandige garage zorgt voor extra gemak en veiligheid voor uw voertuig en biedt tevens extra opslagmogelijkheden.
De rustige ligging van de woning garandeert een serene woonomgeving, terwijl u toch profiteert van uitstekende verbindingen naar omliggende steden en gemeenten. Dit maakt het de ideale keuze voor zowel werkende professionals als gezinnen die op zoek zijn naar een balans tussen rust en bereikbaarheid.
Mis deze unieke kans niet om een nieuwbouwwoning te verwerven die aan al uw wensen voldoet! Neem vandaag nog contact met ons op voor meer informatie of om een bezichtiging in te plannen.
Voor verdere detailbespreking maken wij graag een vrijblijvende afspraak met onze nieuwbouw expert om dit project in detail toe te lichten.
Een "Incigno Build Signature " woning is ontstaan vanuit meer dan 20 jaar expertise & passie in nieuwbouw ontwikkelingen woningbouw waarbij u volledig en in alle openheid zal ontzorgd & begeleid worden in het bouwprocess. Bel of mail Incigno Real Estate voor verdere toelichting: realestate@incigno.be - 0472/585 000 of 0473/ 75 82 47.
Energie
|  | 
- E-peil: E0
- Beglazing: Standaard dubbel
Op de kaart

Financieel
| Prijs | 
|---|
Bijkomende info
Gebouw
| Bouwjaar | 2025 | 
|---|---|
| Staat | Nieuw | 
| Bouwcertificaat | Nee | 
| Bewoonbaar (m²) | 235.78 | 
| Gevelbreedte | 11 | 
| Badkamers | 1 | 
| Slaapkamers | 3 | 
| Verdiepingen | 0 | 
| Garages | 1 | 
| Parkeerplaatsen | 0 | 
| Toiletten | 0 | 
Faciliteiten
| Keuken uitrusting | Basis | 
|---|---|
| Beglazing | Standaard dubbel | 
| Septische tank | Nee | 
Perceel
| Diepte (m) | 24 | 
|---|---|
| Breedte (m) | 17 | 
| P-score | A | 
| G-score | A | 
| Totale oppervlakte (m²) | 368 | 
| Bebouwde oppervlakte (m²) | 0 | 
Vergunning
| Verkavelingsvergunning | Vergunning beschikbaar | 
|---|
Uitrusting
| Investeringspand | Nee | 
|---|---|
| Parking | Nee | 
| Garage | Ja | 
| Lift | Nee | 
| Rioolaansluiting | Ja | 
| Gasaansluiting | Nee | 
| Wateraansluiting | Ja | 
| Elektriciteitsaansluiting | Ja | 
| Internetaansluiting | Ja | 
| Telefoonaansluiting | Nee | 
| Zonnepanelen | Ja | 
| Zonneboiler | Nee | 
| Alarm | Nee | 
| Videofoon | Nee | 
| Grondwaterput | Ja | 
Een pand van
Incigno Real Estate
 Incigno Real Estate 
 Uw woning onze zorg. 
Door kennis, netwerk & strategie verbinden wij mensen met vastgoed.
Incigno Real Estate is actief in een ruime regio & in alle segmenten van het vastgoed.
Van bouwgrond tot villa, van renovatieproject tot nieuwbouwontwikkeling, van woondroom tot beleggingspand.
Ons doel is het succesvol samenbrengen van kopers en verkopers, huurders en verhuurders door het toepassen van een gepaste marktstrategie, weloverwogen prijszetting en sluitend juridisch dossier.
Tevens diversifiëren wij ons van klassieke vastgoedtransacties door onze aankoopbegeleiding van vastgoed, financiële & fiscale kennis en samenwerkingen met een ruim & betrouwbaar netwerk.
Voor u betekent dit een zorgeloos aankoop- of verkoopproces met het maximaal gewenste eindresultaat.
 
 OJ/ottersweier 
Leer meer over vastgoed
 Nieuw 
 22 October 2025 
Hoeveel kan ik lenen om een huis te kopen?
 11 June 2025 
Huis kopen met bouwovertreding? Dit moet je weten
 11 May 2025 
Renoveren? Vraag je Mijn VerbouwPremie aan
 22 April 2025