Makkelijk te renoveren PAREL
€ 339.000
Een pand van Immo Kong
Overzicht
- 200 m² bewoonbaar
- 576 m² grond
- 4 Slaapkamer(s)
- 2 Badkamer(s)
- 1 Tuin
Beschrijving
U komt binnen in deze charmante woning via een ruime inkomhal die toegang biedt tot de lichtrijke living. Vanuit de living komt u in de keuken, die is voorzien van een praktische en ruime berging. Achteraan vindt u de riante wasplaats, compleet met douche en apart toilet.
EERSTE VERDIEPING
Op de eerste verdieping beschikt de woning over drie comfortabele slaapkamers en een badkamer. De propere zolder biedt een grote open ruimte die u volledig naar wens kunt inrichten: extra slaapkamers, een hobbyruimte of handige opslagmogelijkheden.
TUIN
De langgestrekte zuid georiënteerde tuin biedt veel ruimte voor ontspanning. Hier bevindt zich nog een groot bijgebouw (45m²) dat in het verleden dienst gedaan heeft als woonst.
HIGHLIGHTS:
- Rustig gelegen
- Dicht bij de autostrade
- Makkelijk te renoveren parel
- Ruime tuin
- Grote zolder
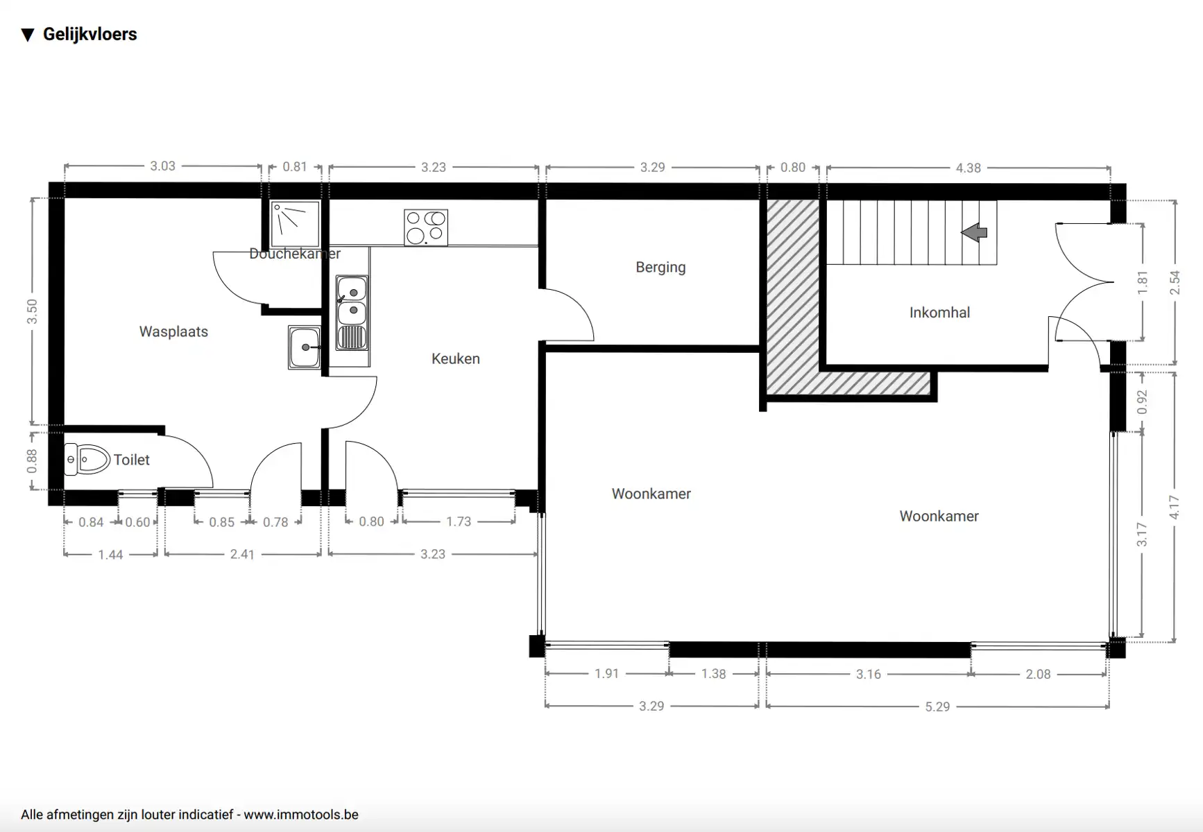
GELIJKVLOERS
U komt binnen in deze charmante woning via een ruime inkomhal die toegang biedt tot de lichtrijke living. Vanuit de living komt u in de keuken, die is voorzien van een praktische en ruime berging. Achteraan vindt u de riante wasplaats, compleet met douche en apart toilet.
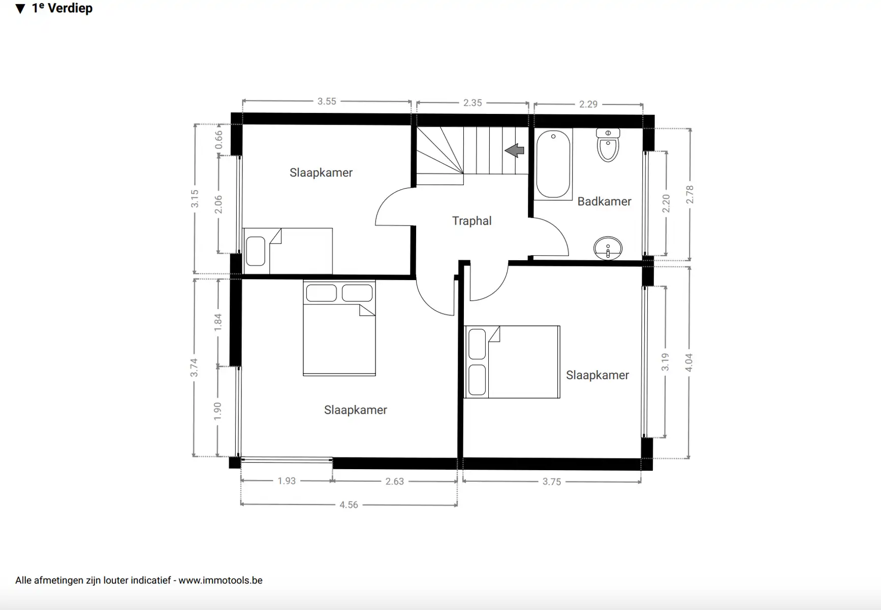
EERSTE VERDIEPING
Op de eerste verdieping beschikt de woning over drie comfortabele slaapkamers en een badkamer. De propere zolder biedt een grote open ruimte die u volledig naar wens kunt inrichten: extra slaapkamers, een hobbyruimte of handige opslagmogelijkheden.
TUIN
De langgestrekte zuid georiënteerde tuin biedt veel ruimte voor ontspanning. Hier bevindt zich nog een groot bijgebouw (45m²) dat in het verleden dienst gedaan heeft als woonst.
HIGHLIGHTS:
- Rustig gelegen
- Dicht bij de autostrade
- Makkelijk te renoveren parel
- Ruime tuin
- Grote zolder
Energie
![]() |
- EPC Certificaat: 20251104-0003266255-RES-3
- Energieverbruik: 576 kWh/m²/jaar
Extra budget nodig voor je renovatie?

Op de kaart

Financieel
| Prijs | |
|---|---|
| Kadastraal inkomen (geïndexeerd) | € 1.117 |
Berekening kosten
Je aankoopkosten? Die heb je snel berekent via de knop hieronder.
Bijkomende info
Gebouw
| Bewoonbaar (m²) | 200 |
|---|---|
| Gevels | 3 |
| Gevelbreedte | 7 |
| Badkamers | 2 |
| Slaapkamers | 4 |
| Parkeerplaatsen | 0 |
Faciliteiten
| Type vloer | |
|---|---|
| Elektrisch keuringsattest | Nee |
Perceel
| P-score | C |
|---|---|
| G-score | C |
| Totale oppervlakte (m²) | 576 |
| Bebouwde oppervlakte (m²) | 170 |
| Tuin oppervlakte (m²) | 0 |
| Oriëntatie voorgevel | Noord |
| Oriëntatie terras | Zuid |
Vergunning
| Vergunning | Geen beschikbaar |
|---|---|
| Verkavelingsvergunning | Geen beschikbaar |
| Bouwovertreding | Geen |
| Bouwovertreding dagvaardiging | Geen |
Uitrusting
| Parking | Nee |
|---|---|
| Garage | Nee |
| Tuin | Ja |
| Terras | Nee |



