In optie Virtual tour
Woning in doodlopende straat met 2 slk, 2 badk en tuin op een perceel van 379 m².
€ 285.000
Een pand van De Boer & Partners Koningshooikt
Overzicht
- 100 m² bewoonbaar
- 379 m² grond
- 2 Slaapkamer(s)
- 2 Badkamer(s)
- 2 Toilet(ten)
- 1 Tuin
Beschrijving
Woning in doodlopende straat met 2 slk, 2 badk en tuin op een perceel van 379 m².
SPECIFIEKE KENMERKEN:
• Volledig gestript en gerenoveerd in 2010
• Ideaal als investering of opbrengsteigendom (momenteel verhuurd)
• Vlotte bereikbaarheid naar scholen, winkels, openbaar vervoer en de E313
• Omheinde tuin met terras en tuinhuis
• Autostaanplaats vooraan
TECHNISCHE KENMERKEN:
• Gunstige EPC-score van 191 kWh/(m²/jaar) – Label B
• Elektrische installatie conform het AREI
• Asbestveilig
• Verwarming op aardgas
• PVC-ramen met hoogrendementsglas
• Voorzien van rolluiken
INDELING:
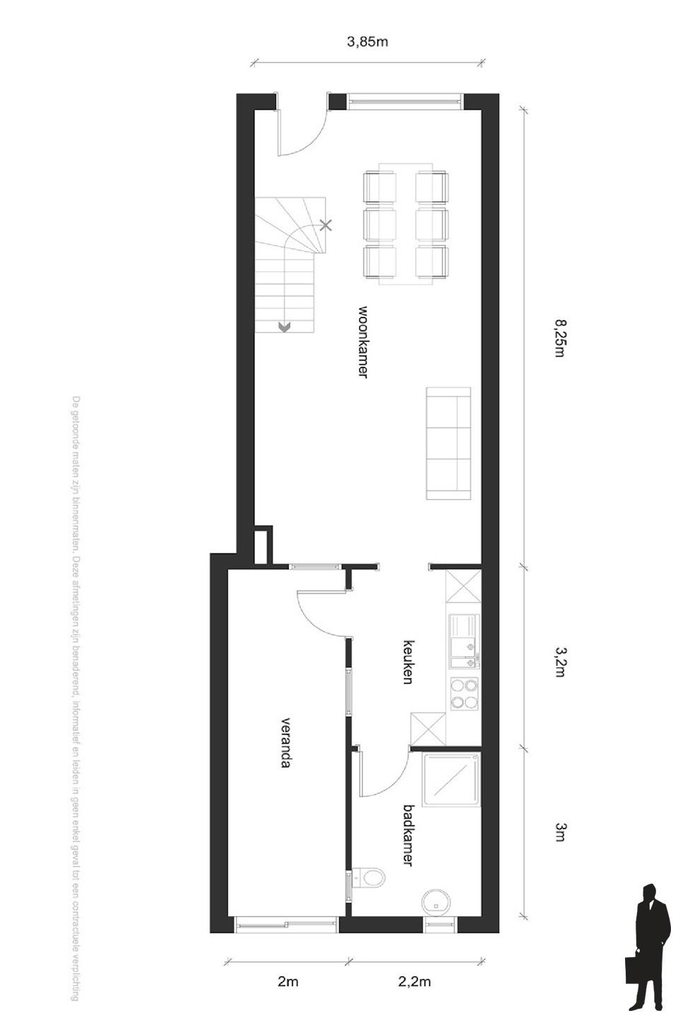
Gelijkvloers:
• Lichtrijke en aangename leefruimte van 38 m²
• Volledig uitgeruste keuken met gasvuur, oven, microgolf, afwasmachine, koelkast en diepvriezer
• Badkamer met douche, toilet en lavabo
• Veranda met toegang tot de tuin
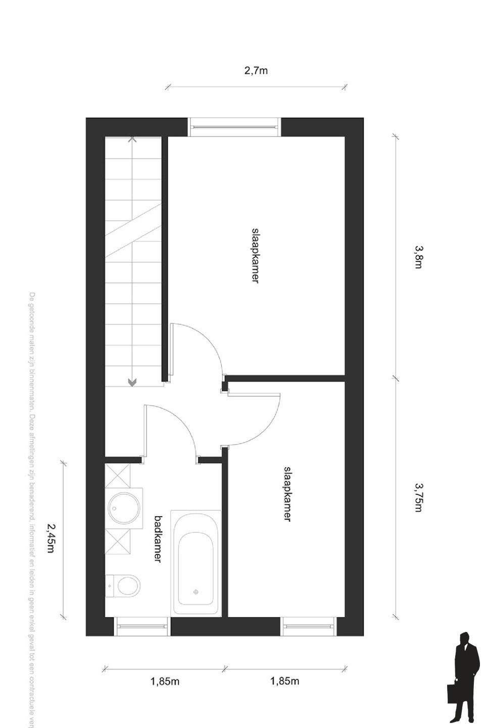
1e Verdieping:
• 2 comfortabele slaapkamers
• Tweede badkamer voorzien van ligbad, toilet en lavabo
Tuin:
• Volledig afgesloten
• Voorzien van een tuinhuis
SPECIFIEKE KENMERKEN:
• Volledig gestript en gerenoveerd in 2010
• Ideaal als investering of opbrengsteigendom (momenteel verhuurd)
• Vlotte bereikbaarheid naar scholen, winkels, openbaar vervoer en de E313
• Omheinde tuin met terras en tuinhuis
• Autostaanplaats vooraan
TECHNISCHE KENMERKEN:
• Gunstige EPC-score van 191 kWh/(m²/jaar) – Label B
• Elektrische installatie conform het AREI
• Asbestveilig
• Verwarming op aardgas
• PVC-ramen met hoogrendementsglas
• Voorzien van rolluiken
INDELING:
Gelijkvloers:
• Lichtrijke en aangename leefruimte van 38 m²
• Volledig uitgeruste keuken met gasvuur, oven, microgolf, afwasmachine, koelkast en diepvriezer
• Badkamer met douche, toilet en lavabo
• Veranda met toegang tot de tuin
1e Verdieping:
• 2 comfortabele slaapkamers
• Tweede badkamer voorzien van ligbad, toilet en lavabo
Tuin:
• Volledig afgesloten
• Voorzien van een tuinhuis
Woning in doodlopende straat met 2 slk, 2 badk en tuin op een perceel van 379 m².
SPECIFIEKE KENMERKEN:
- Volledig gestript en gerenoveerd in 2010
- Ideaal als investering of opbrengsteigendom
- Vlotte bereikbaarheid naar scholen, winkels, openbaar vervoer en de E313
- Omheinde tuin met terras en tuinhuis
- Autostaanplaats vooraan
TECHNISCHE KENMERKEN:
- Gunstige EPC-score van 191 kWh/(m²/jaar) – Label B
- Elektrische installatie conform het AREI
- Asbestveilig
- Verwarming op aardgas
- PVC-ramen met hoogrendementsglas
- Voorzien van rolluiken
INDELING:
Gelijkvloers:
- Lichtrijke en aangename leefruimte van 38 m²
- Volledig uitgeruste keuken met gasvuur, oven, microgolf, afwasmachine, koelkast en diepvriezer
- Badkamer met douche, toilet en lavabo
- Veranda met toegang tot de tuin
1e Verdieping:
- 2 comfortabele slaapkamers
- Tweede badkamer voorzien van ligbad, toilet en lavabo
Tuin:
- Volledig afgesloten
- Voorzien van een tuinhuis
Energie
![]() |
- EPC Certificaat: 0003622579
- Energieverbruik: 191 kWh/m²/jaar
Op de kaart

Financieel
Prijs | |
---|---|
Kadastraal inkomen (niet geïndexeerd) | € 503 |
Berekening kosten
Je aankoopkosten? Die heb je snel berekent via de knop hieronder.
Bijkomende info
Gebouw
Bouwjaar | 1938 |
---|---|
Renovatie jaar | 2010 |
Bewoonbaar (m²) | 100 |
Gevels | 3 |
Gevelbreedte | 4 |
Badkamers | 2 |
Slaapkamers | 2 |
Parkeerplaatsen | 1 |
Toiletten | 2 |
Faciliteiten
Type vloer | |
---|---|
Keuken uitrusting | Luxueus uitgerust |
Elektrisch keuringsattest | Ja |
Perceel
P-score | B |
---|---|
G-score | A |
Voorkeurrecht | Nee |
Totale oppervlakte (m²) | 379 |
Bebouwde oppervlakte (m²) | 75 |
Tuin oppervlakte (m²) | 0 |
Oriëntatie voorgevel | Zuid |
Vergunning
Vergunning | Vergunning beschikbaar |
---|---|
Verkavelingsvergunning | Geen beschikbaar |
Bouwovertreding | Geen |
Bouwovertreding dagvaardiging | Geen |
Uitrusting
Parking | Ja |
---|---|
Garage | Nee |
Zolder | Ja |
Tuin | Ja |
Terras | Ja |
Gasaansluiting | Ja |
Wateraansluiting | Ja |
Elektriciteitsaansluiting | Ja |
TV aansluiting | Ja |
Telefoonaansluiting | Ja |
Een pand van
De Boer & Partners Koningshooikt
De Boer & Partners Koningshooikt
Met meer dan 40 jaar ervaring en 17 kantoren zijn we zonder twijfel uitgegroeid tot een vaste waarde op de vastgoedmarkt in België. Een persoonlijke aanpak is voor ons heel belangrijk, we garanderen een persoonlijke en professionele service waar een grote passie altijd aanwezig is. Onze medewerkers kennen hun regio door en door en staan klaar om u met enthousiasme te begeleiden bij de aankoop, verkoop en verhuur van uw eigendom. We hebben een grote en diverse verkoopportefeuille en zijn thuis in elk marktsegment. Wij staan niet voor een bepaalde prijsklasse, wel voor persoonlijke service en kwaliteit.
7018337
Leer meer over vastgoed
11 June 2025
Huis kopen met bouwovertreding? Dit moet je weten
11 May 2025
Renoveren? Vraag je Mijn VerbouwPremie aan
22 April 2025
Je allereerste renovatieproject selecteren én budgetteren: met de praktische hulp van Spotto
17 February 2025