In optie
Ruim(120m²) 2 slpk appartement inclusief garagebox.
€ 239.500
Een pand van Vivendi Vastgoed Turnhout
Favoriet
Jouw zoektocht
Jouw scoretabel voor dit pand
Aan het laden...
Jouw geplande bezichtigingen
Aan het laden...
Overzicht
- 120 m² bewoonbaar
- 1590 m² grond
- 2 Slaapkamer(s)
- 1 Badkamer(s)
- 1 Toilet(ten)
- 1 Garage(s)
Overstromingsgevaar gebouw
Overstromingsgevaar perceel
Beschrijving
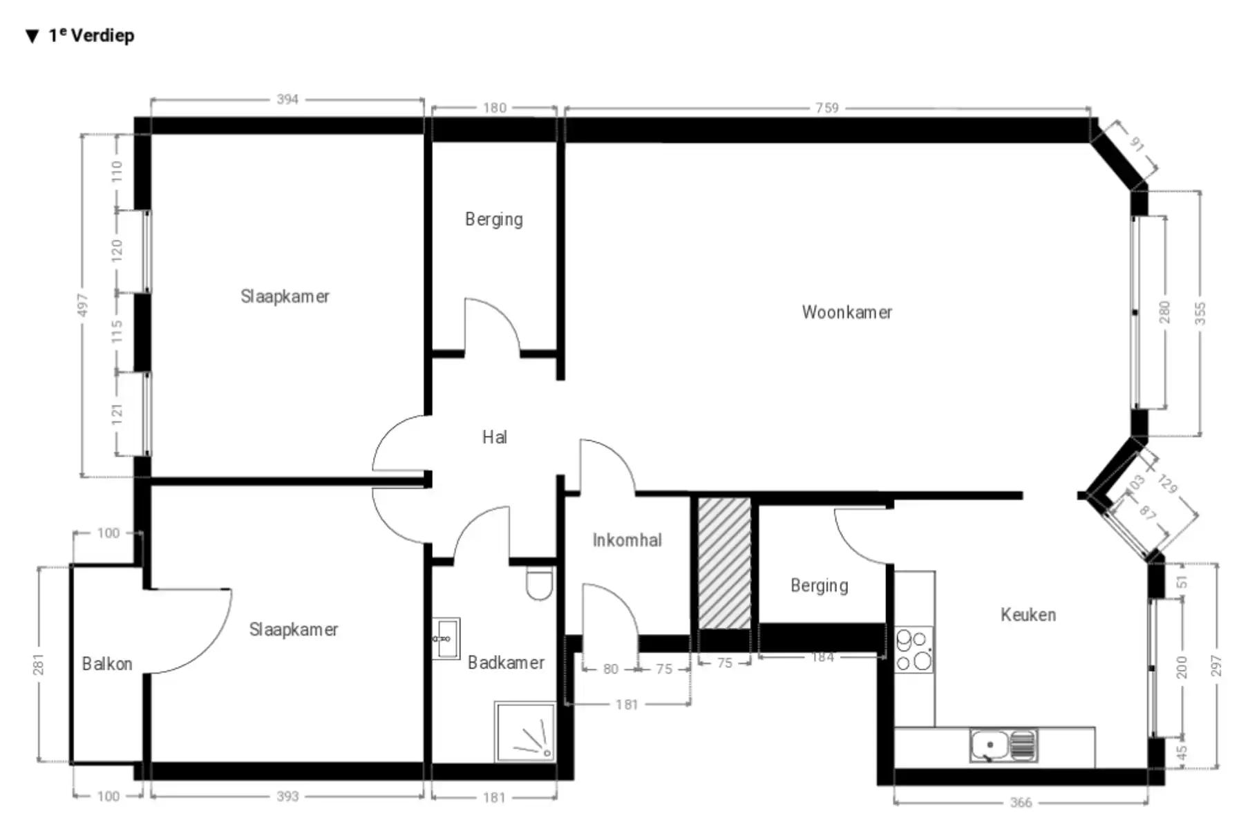
Wonen als een koning(in)op 120m² – mét garage voor je stalen ros
Op zoek naar ruimte, licht en comfort zonder je buren op schoot? Dit royale 2-slaapkamerappartement van maar liefst 120m² heeft alles wat je nodig hebt — en nog wat extra vierkante meters om in rond te draaien. Gelegen op de eerste verdieping (bereikbaar via lift én trap — voor de sportieve dagen) vind je hier rust vlakbij het centrum. Via de afgesloten inkomhal kom je in een gigantische leefruimte van 42m² — groot genoeg voor een salon, eetplaats. Aansluitend ligt een ruime eetkeuken van 15m² met aparte wasplaats/berging: koken zonder chaos = mogelijk. De nachthal leidt naar 2 forse slaapkamers (16m² en 20m² — ja, echt groot), een terras aan één van de kamers voor ochtendkoffie of avondlucht, een koele berging (perfect voor voorraad of geheime snacks) en de badkamer met douche, lavabomeubel en toilet. Achteraan het gebouw treft een ruime garagebox met elektriciteit — je auto, fiets en hobbyprojecten zullen je dankbaar zijn. Extra bonuspunten: EPC label B (110 kWh/m²) — energiezuinig zonder truien in huis. Elektrische keuring goedgekeurd — geen verrassingen. Rustige ligging, toch dicht bij alles. Kortom: veel ruimte, veel licht, weinig zorgen. Alleen jij ontbreekt nog.
Wg, Vg, Gvkr
Op zoek naar ruimte, licht en comfort zonder je buren op schoot? Dit royale 2-slaapkamerappartement van maar liefst 120m² heeft alles wat je nodig hebt — en nog wat extra vierkante meters om in rond te draaien. Gelegen op de eerste verdieping (bereikbaar via lift én trap — voor de sportieve dagen) vind je hier rust vlakbij het centrum. Via de afgesloten inkomhal kom je in een gigantische leefruimte van 42m² — groot genoeg voor een salon, eetplaats. Aansluitend ligt een ruime eetkeuken van 15m² met aparte wasplaats/berging: koken zonder chaos = mogelijk. De nachthal leidt naar 2 forse slaapkamers (16m² en 20m² — ja, echt groot), een terras aan één van de kamers voor ochtendkoffie of avondlucht, een koele berging (perfect voor voorraad of geheime snacks) en de badkamer met douche, lavabomeubel en toilet. Achteraan het gebouw treft een ruime garagebox met elektriciteit — je auto, fiets en hobbyprojecten zullen je dankbaar zijn. Extra bonuspunten: EPC label B (110 kWh/m²) — energiezuinig zonder truien in huis. Elektrische keuring goedgekeurd — geen verrassingen. Rustige ligging, toch dicht bij alles. Kortom: veel ruimte, veel licht, weinig zorgen. Alleen jij ontbreekt nog.
Wg, Vg, Gvkr
Wonen als een koning(in)op 120m² – mét garage voor je stalen ros
Op zoek naar ruimte, licht en comfort zonder je buren op schoot? Dit royale 2-slaapkamerappartement van maar liefst 120m² heeft alles wat je nodig hebt — en nog wat extra vierkante meters om in rond te draaien. Gelegen op de eerste verdieping (bereikbaar via lift én trap — voor de sportieve dagen) vind je hier rust vlakbij het centrum. Via de afgesloten inkomhal kom je in een gigantische leefruimte van 42m² — groot genoeg voor een salon, eetplaats. Aansluitend ligt een ruime eetkeuken van 15m² met aparte wasplaats/berging: koken zonder chaos = mogelijk. De nachthal leidt naar 2 forse slaapkamers (16m² en 20m² — ja, echt groot), een terras aan één van de kamers voor ochtendkoffie of avondlucht, een koele berging (perfect voor voorraad of geheime snacks) en de badkamer met douche, lavabomeubel en toilet. Achteraan het gebouw treft een ruime garagebox met elektriciteit — je auto, fiets en hobbyprojecten zullen je dankbaar zijn. Extra bonuspunten: EPC label B (110 kWh/m²) — energiezuinig zonder truien in huis. Elektrische keuring goedgekeurd — geen verrassingen. Rustige ligging, toch dicht bij alles. Kortom: veel ruimte, veel licht, weinig zorgen. Alleen jij ontbreekt nog.
Wg, Vg, Gvkr
Op zoek naar ruimte, licht en comfort zonder je buren op schoot? Dit royale 2-slaapkamerappartement van maar liefst 120m² heeft alles wat je nodig hebt — en nog wat extra vierkante meters om in rond te draaien. Gelegen op de eerste verdieping (bereikbaar via lift én trap — voor de sportieve dagen) vind je hier rust vlakbij het centrum. Via de afgesloten inkomhal kom je in een gigantische leefruimte van 42m² — groot genoeg voor een salon, eetplaats. Aansluitend ligt een ruime eetkeuken van 15m² met aparte wasplaats/berging: koken zonder chaos = mogelijk. De nachthal leidt naar 2 forse slaapkamers (16m² en 20m² — ja, echt groot), een terras aan één van de kamers voor ochtendkoffie of avondlucht, een koele berging (perfect voor voorraad of geheime snacks) en de badkamer met douche, lavabomeubel en toilet. Achteraan het gebouw treft een ruime garagebox met elektriciteit — je auto, fiets en hobbyprojecten zullen je dankbaar zijn. Extra bonuspunten: EPC label B (110 kWh/m²) — energiezuinig zonder truien in huis. Elektrische keuring goedgekeurd — geen verrassingen. Rustige ligging, toch dicht bij alles. Kortom: veel ruimte, veel licht, weinig zorgen. Alleen jij ontbreekt nog.
Wg, Vg, Gvkr
Energie
![]() |
- EPC Certificaat: 20200129-0002241965-RES-1
- Energieverbruik: 110 kWh/m²/jaar
Op de kaart

Financieel
| Prijs |
|---|
Berekening kosten
Je aankoopkosten? Die heb je snel berekend via de knop hieronder.
Bijkomende info
Gebouw
| Bouwjaar | 1994 |
|---|---|
| Staat | Zo goed als nieuw |
| Bewoonbaar (m²) | 120 |
| Verdieping | 1 |
| Gevels | 2 |
| Badkamers | 1 |
| Slaapkamers | 2 |
| Garages | 1 |
| Parkeerplaatsen | 1 |
| Toiletten | 1 |
Faciliteiten
| Type vloer | |
|---|---|
| Keuken uitrusting | Luxueus uitgerust |
| Elektrisch keuringsattest | Ja |
Perceel
| Overstromingsgevoelig | Geen |
|---|---|
| P-score | D |
| G-score | D |
| Voorkeurrecht | Nee |
| Totale oppervlakte (m²) | 1590 |
| Tuin oppervlakte (m²) | 0 |
Vergunning
| Vergunning | Vergunning beschikbaar |
|---|---|
| Verkavelingsvergunning | Geen beschikbaar |
| Bouwovertreding | Geen |
| Bouwovertreding dagvaardiging | Geen |
Uitrusting
| Geschikt voor rolstoelgebruikers | Ja |
|---|---|
| Parking | Nee |
| Garage | Ja |
| Tuin | Nee |
| Terras | Ja |
| Lift | Ja |
| Gasaansluiting | Ja |
| Wateraansluiting | Ja |
| Elektriciteitsaansluiting | Ja |
| Telefoonaansluiting | Ja |
| Zwembad | Nee |
| Zwemvijver | Nee |
Een pand van
Vivendi Vastgoed Turnhout
Vivendi Vastgoed Turnhout uw betrouwbare makelaar in Turnhout en de Kempen.
Ons kantoor is gespecialiseerd in het bemiddelen bij de verkoop en verhuur van uw residentieel- en commercieel onroerend goed, alsook van nieuwbouwprojecten.
Indien u vragen heeft over het kopen, verkopen, huren of verhuren van woningen, villa's, appartementen, gronden of handelszaken,
aarzel dan niet ons te contacteren.
Ons professioneel team staat steeds voor u klaar.
7550257
Leer meer over vastgoed
Nieuw
23 March 2026
Op Spotto zoeken als een pro: 10 slimme tips
Nieuw
21 March 2026
Hoeveel kan ik lenen om een huis te kopen?
01 March 2026
Wanneer heb ik een bouwvergunning of omgevingsvergunning nodig?
17 February 2026
