Instapklaar en energiezuinig appartement (EPC A)
€ 329.000
Een pand van Home-ID Lauwers
Overzicht
- 100 m² bewoonbaar
- 2 Slaapkamer(s)
- 1 Badkamer(s)
- 1 Toilet(ten)
Overstromingsgevaar gebouw
Overstromingsgevaar perceel
Beschrijving
OPEN HUIZEN DAG – ZAT. 14/03 | 12u–13u
Vrij bezoekmoment. Kom langs en ontdek deze woning zonder afspraak!
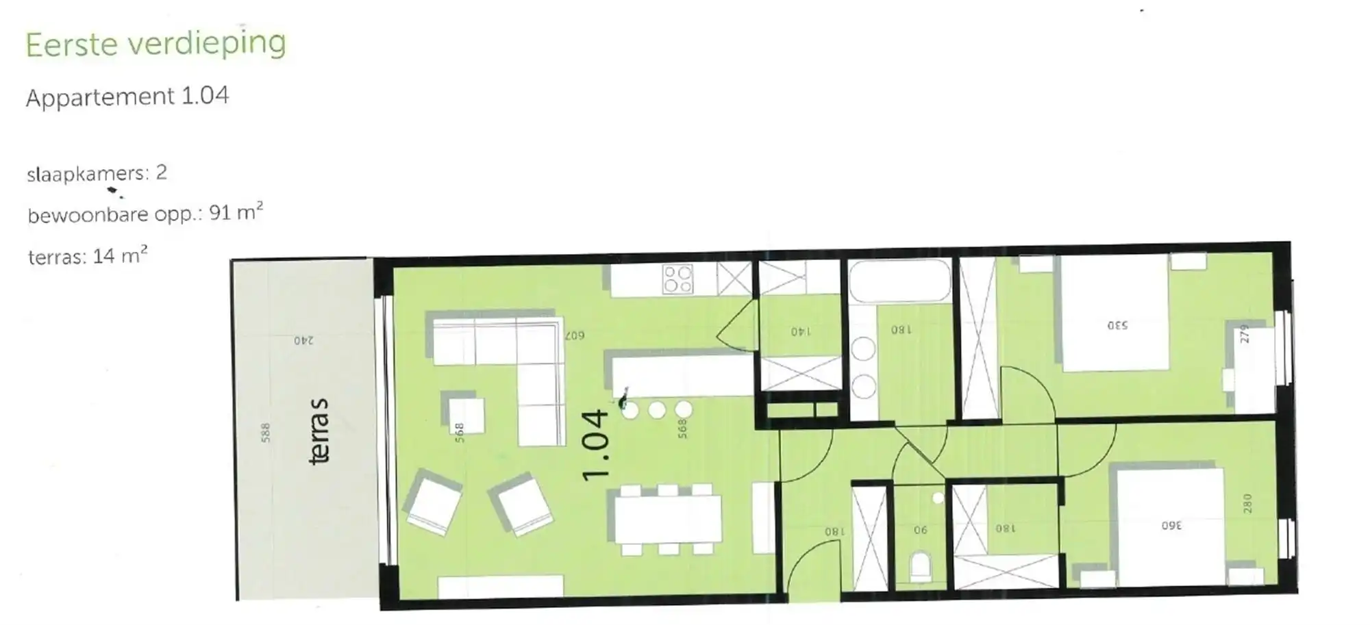
Dit verzorgd appartement met een bewoonbare oppervlakte van 91 m² combineert licht en energiezuinig comfort op een rustige en tegelijk centrale ligging, in een goed onderhouden residentie met lift.
De lichtrijke leefruimte met open karakter vormt het centrale hart van de woning en geeft directe toegang tot het ruime, zuidgerichte terras van 14 m². Dit terras biedt voldoende plaats om comfortabel buiten te zitten en gasten te ontvangen, met optimale zonoriëntatie. De woning beschikt over twee volwaardige slaapkamers, een comfortabele badkamer en een afzonderlijk toilet. De functioneel ingerichte keuken sluit naadloos aan op de leefruimte en ondersteunt een aangename en praktische woonervaring.
Een belangrijke meerwaarde is de private binnenparking met bijhorende bergruimte (verplicht aan te kopen aan €20.000), wat zorgt voor extra comfort, veiligheid en praktische opslagruimte. Met een EPC-label A geniet u bovendien van een bijzonder energiezuinige woning, wat resulteert in lagere energiekosten en een toekomstgerichte investering.
Troeven:
• Bewoonbare oppervlakte: 100 m²
• Zuidgericht terras van 14 m²
• 2 volwaardige slaapkamers
• EPC-label A – energiezuinig en toekomstbestendig
• Private binnenparking met bergruimte
• Residentie met lift
• Rustige en aangename woonomgeving
• Ideaal als eigen woonst of investering
Stedenbouw is in aanvraag Alle informatie is steeds onder voorbehoud van materiële vergissingen en/of wijzigingen. De vermelde oppervlaktes zijn louter indicatief.
Energie
![]() |
- Energieverbruik: 20 kWh/m²/jaar
- E-peil: E0
- Verwarming: Elektriciteit
- Beglazing: Standaard dubbel
Op de kaart

Financieel
| Prijs | |
|---|---|
| Kadastraal inkomen (niet geïndexeerd) | € 931 |
| Kadastraal inkomen (geïndexeerd) | € 0 |
Berekening kosten
Je aankoopkosten? Die heb je snel berekend via de knop hieronder.
Bijkomende info
Gebouw
| Bouwjaar | 2020 |
|---|---|
| Staat | Nieuw |
| Bouwcertificaat | Nee |
| Bewoonbaar (m²) | 100 |
| Verdieping | 1 |
| Badkamers | 1 |
| Slaapkamers | 2 |
| Verdiepingen | 3 |
| Garages | 0 |
| Parkeerplaatsen | 1 |
| Doucheruimtes | 0 |
| Toiletten | 1 |
Faciliteiten
| Materiaal ramenomlijstingen | PVC |
|---|---|
| Beglazing | Standaard dubbel |
| Brandstof primaire verwarming | Elektriciteit |
| Elektrisch keuringsattest | Ja |
Perceel
| Overstromingsgevoelig | Geen |
|---|---|
| P-score | D |
| G-score | D |
| Voorkeurrecht | Nee |
| Bebouwde oppervlakte (m²) | 0 |
| Tuin oppervlakte (m²) | 0 |
| Oppervlakte terras (m²) | 14 |
| Oriëntatie tuin | Zuidwest |
Vergunning
| Vergunning | Vergunning beschikbaar |
|---|---|
| Verkavelingsvergunning | Geen beschikbaar |
Uitrusting
| Investeringspand | Nee |
|---|---|
| Geschikt voor praktijk | Nee |
| Parking | Ja |
| Garage | Nee |
| Thuiskantoor | Nee |
| Kelder | Nee |
| Zolder | Nee |
| Tuin | Nee |
| Terras | Ja |
| Lift | Ja |
| Rioolaansluiting | Ja |
| Gasaansluiting | Nee |
| Wateraansluiting | Ja |
| Elektriciteitsaansluiting | Ja |
| TV aansluiting | Ja |
| Internetaansluiting | Ja |
| Telefoonaansluiting | Ja |
Appartementsblok
| Aantal verdiepingen | 3 |
|---|---|
| Lift | Ja |
