Instapklaar handelspand met woonst en tuin
€ 349.000
Een pand van Immo Vasta
Overzicht
- 261 m² bewoonbaar
- 219 m² grond
- 4 Slaapkamer(s)
- 1 Badkamer(s)
- 4 Toilet(ten)
- 1 Tuin
Beschrijving
Charmant handelspand met woonst in een recent vernieuwde straat, mét prachtige gevel en enorm veel potentieel, letterlijk op een steenworp van de Grote Markt. Dit ruime pand combineert een instapklare, uitgeruste frituur met een lichtrijke woonst erboven – ideaal voor zelfstandigen, investeerders of wie graag wonen & werken slim wil combineren. De stad gaf bovendien een positief advies voor functiewijziging naar woonst, detailhandel of kantoor (mits vergunning). Mooie bonus: een grote tuin én extra bijgebouw achteraan.
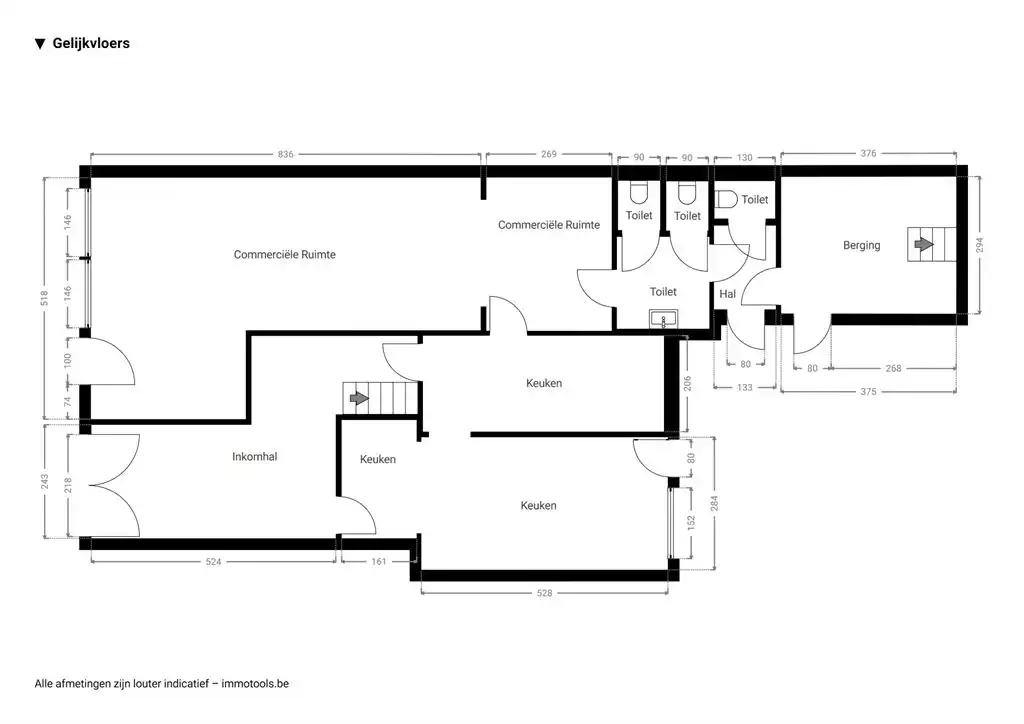
Handelspand met mogelijkheden
De aparte inkom voor de frituur brengt je in een commerciële ruimte van ca. 110 m², volledig ingericht en 14 jaar geleden gerenoveerd. Alle apparatuur is aanwezig en klaar voor gebruik. Je hebt hier plaats voor 10 à 15 zitplaatsen, grote toog, een overzichtelijke counter en ingebouwde kasten. Achteraan bevindt zich de professionele keuken, met o.a. dubbele spoelbakken, groot gasfornuis, meerdere ovens, koelingen en veel opbergruimte. Via de achterdeur wandel je naar de grote, onderhoudsvriendelijke tuin, ideaal als extra zitruimte in de zomermaanden.
Het bijgebouw achteraan – met pas vernieuwd dak – is perfect als opslag of zelfs buitentoog.
Woonst met licht, charme & ruimte
Via de brede traphal kom je op de eerste verdieping in een verrassend lichte en aangename leefruimte, waar de authentieke plankenvloer en hoge plafonds meteen zorgen voor een warme sfeer. De grote ramen langs beide kanten laten veel natuurlijk licht binnen, waardoor dit een heerlijke plek is om te ontspannen of te ontvangen. Rechts van de leefruimte bevindt zich de open keuken, volledig geïnstalleerd en uitgerust met o.a. een oven, koelkast, diepvries, gasvuur, dampkap en anderhalve spoelbak. Dankzij het compacte ontbijthoekje heb je hier een gezellige plek voor je eerste koffie van de dag. Links van de leefruimte ligt een slaapkamer die zeker kan dienen als kinderkamer, logeerkamer of thuiskantoor.
Een verdieping waar rust & ruimte samenkomen
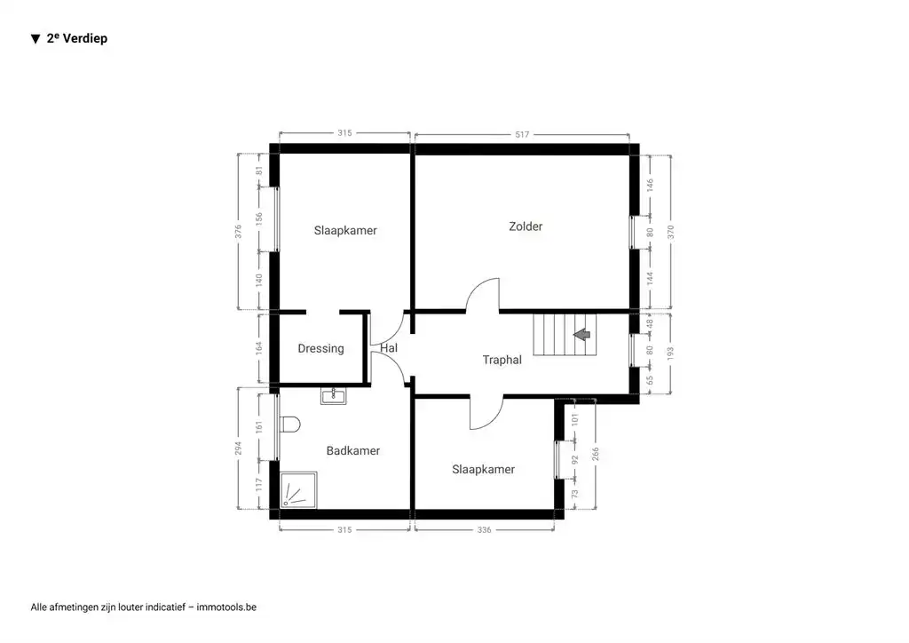
Op de tweede verdieping vind je een volwaardige slaapverdieping met drie kamers, een dressing en een badkamer. De grootste kamer – 20 m² – doet dankzij het open dakvolume denken aan een kleine loft en kan perfect dienstdoen als master bedroom, studio of hobbyruimte. Daarnaast is er nog een slaapkamer met een handige ensuite dressing, en een derde slaapkamer met witgeschilderde plankenvloer die meteen gezellig aanvoelt. De badkamer is praktisch ingericht met een douche, toilet en ruim lavabomeubel en vormt een centrale, handige ruimte op deze verdieping.
Wonen in de schaduw van de Grote Markt
Je woont én werkt hier pal in het centrum, vlakbij de Grote Markt. De Otterstraat werd recent volledig vernieuwd, waardoor je hier in een frisse, mooi aangelegde straat zit. Alle winkels, horeca, scholen en openbaar vervoer liggen letterlijk om de hoek – beter wordt het niet voor wie graag leeft in de bruisende kern.
Energie
![]() |
- EPC Certificaat: 20220926-0002682946-KNR-2
- E-peil: E0
- Verwarming: Gas
- Beglazing: Standaard dubbel
Extra budget nodig voor je renovatie?

Op de kaart

Financieel
| Prijs | |
|---|---|
| Kadastraal inkomen (niet geïndexeerd) | € 0 |
| Kadastraal inkomen (geïndexeerd) | € 0 |
Berekening kosten
Je aankoopkosten? Die heb je snel berekend via de knop hieronder.
Bijkomende info
Gebouw
| Staat | Goed onderhouden |
|---|---|
| Bouwcertificaat | Nee |
| Bewoonbaar (m²) | 261 |
| Verdieping | 0 |
| Badkamers | 1 |
| Slaapkamers | 4 |
| Verdiepingen | 2 |
| Garages | 0 |
| Parkeerplaatsen | 0 |
| Doucheruimtes | 0 |
| Toiletten | 4 |
Faciliteiten
| Keuken uitrusting | Luxueus uitgerust |
|---|---|
| Materiaal ramenomlijstingen | PVC |
| Beglazing | Standaard dubbel |
| Brandstof primaire verwarming | Gas |
| Elektrisch keuringsattest | Nee |
Perceel
| Overstromingsgevoelig | Geen |
|---|---|
| P-score | A |
| G-score | A |
| Voorkeurrecht | Nee |
| Totale oppervlakte (m²) | 219 |
| Bebouwde oppervlakte (m²) | 0 |
| Tuin oppervlakte (m²) | 82 |
| Oppervlakte terras (m²) | 0 |
Vergunning
| Type gebied | Stedelijk |
|---|
Uitrusting
| Investeringspand | Nee |
|---|---|
| Geschikt voor praktijk | Nee |
| Parking | Nee |
| Garage | Nee |
| Thuiskantoor | Nee |
| Kelder | Ja |
| Zolder | Nee |
| Tuin | Ja |
| Terras | Nee |
| Lift | Nee |
| Rioolaansluiting | Nee |
| Gasaansluiting | Nee |
| Wateraansluiting | Nee |
| Elektriciteitsaansluiting | Nee |
| TV aansluiting | Nee |
| Internetaansluiting | Nee |
| Telefoonaansluiting | Nee |



