Koppelvilla architect "BOLS" op 553 m² met centrale ligging
€ 500.000
Een pand van Home-ID Lauwers
Jouw zoektocht
Overzicht
- 270 m² bewoonbaar
- 553 m² grond
- 4 Slaapkamer(s)
- 1 Badkamer(s)
- 3 Toilet(ten)
- 1 Tuin
- 1 Garage(s)
Beschrijving
Zeldzame grootse stads-koppelvilla van de zeer gegeerde architect BOLS op 553 m² op centrale en zeer rustige ligging nabij het centrum.
Deze aanbieding heeft niet alleen een elegante gevel met een wauw-effect, maar zeker ook binnen sta je verwonderd over de stijlvolle inrichting. Invulmogelijkheden te over, want er zijn vele kamers en mogelijkheden. Met een wooninhoud van bijna 300 m² kan deze woonst ook als praktijkwoning of kangoeroewoning kunnen worden gebruikt.
Op de oprit kunnen tot 3 wagens worden geparkeerd en ook 1 wagen in de garage. Op de uitnodiging om binnen te komen gaan we graag in en via de gastvrije inkomtraphal met 2 gastentoiletten hebben we toegang tot een uiterst genietbare lounchekamer of praktijkruimte, alsook een tweede kamer die als bureel kan worden ingericht, hier als slaapkamers in te richten is ook zeker aan te bevelen, beiden met zicht op de voortuin. Achteraan is een woonkamer met uitzicht pal op de tuin met aansluitend een praktische en luxueuze eetkeuken dewelke is voorzien van alle toestellen om heerlijk te kunnen kokkerellen en gasten te kunnen ontvangen. Die zullen zeker graag plaatsnemen in de ernaast gelegen knusse eetkamer. De waskamer is ook ingericht als extra badkamer met een douche. De ruime kelderverdieping met verschillende kamers zijn ideaal voor een koele berging.
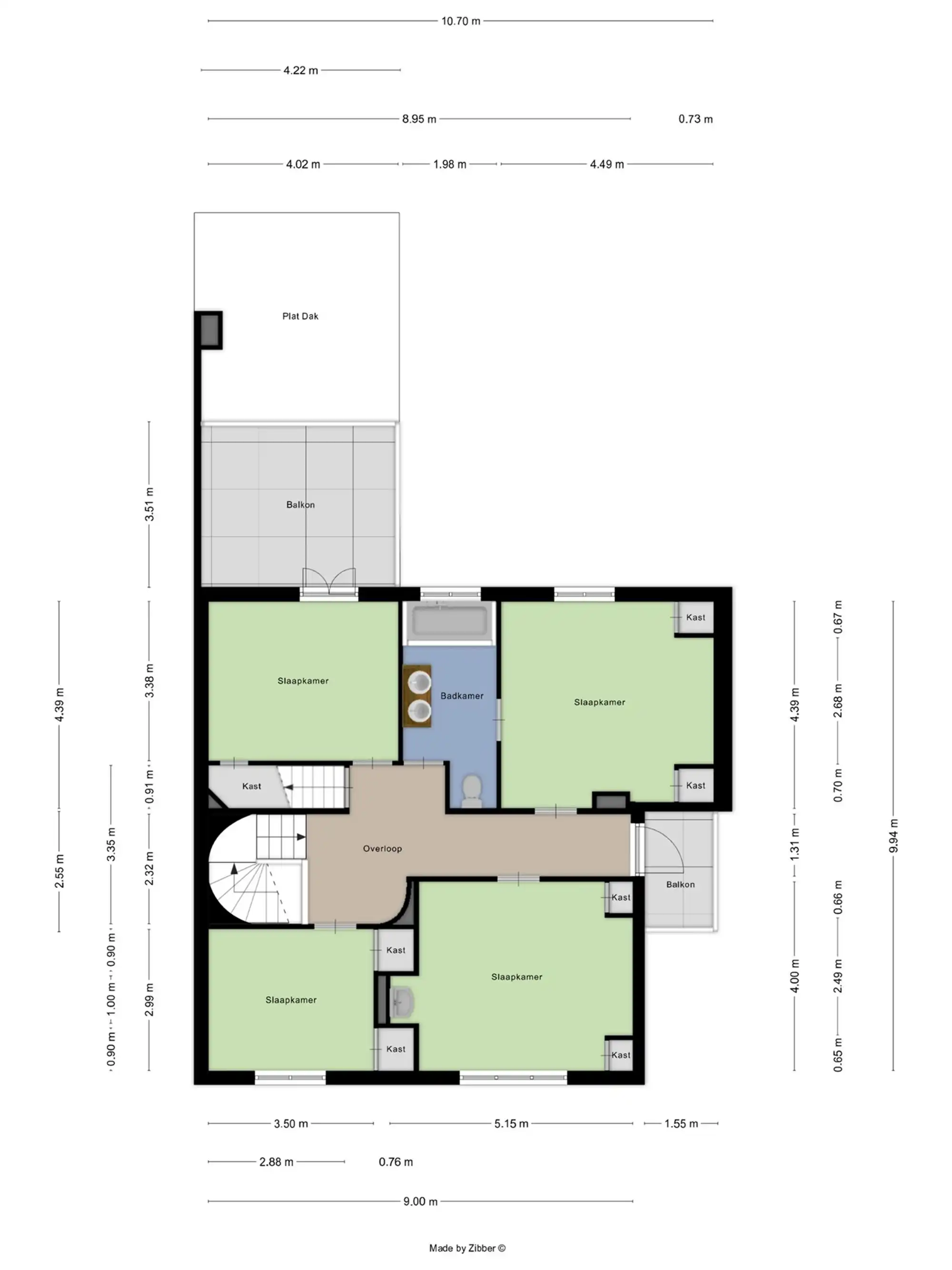
De statige trap brengt ons op de overloop met 4 grote slaapkamers, deels voorzien van wastafels en ingebouwde kasten, 2 balkons en een gezellige badkamer. Extra woon-of slaapruime is te vinden in de dakverdieping met vaste trap en ingedeeld in 3 kamers. Dus tot 9 slaapkamers zou je mogen rekenen. In de achtertuin is het aangenaam vertoeven op het aangename terras met een zalige sfeeropname van de indrukwekkende achtergevel en de tuin.
Helemaal top en kortelings vrij.
Bijzondere troeven ✔ Elektriciteit conform ✔ Droge kelder ✔ Energiezuinig (lage EPC label C) ✔ 18 zonnepanelen met batterij - Bureelruimte (plaats voor vrij beroep) - perceelbreedte is 15 meter en de gevelbreedte 12 meter! - muren en platte daken zijn ook geïsoleerd - recente CV-installatie
Infoplicht: Vg, Wg, Gvkr, Gvv, Gmo, P-score: A, G-score: A. Dit is geen aanbod. Alle informatie is onder voorbehoud van materiële vergissingen en/of wijzigingen. De vermelde oppervlaktes zijn louter indicatief.
Energie
![]() |
- EPC Certificaat: 3791795-RES-1
- Energieverbruik: 295 kWh/m²/jaar
- E-peil: E0
- Verwarming: Gas
- Beglazing: Standaard dubbel
Op de kaart

Financieel
| Prijs | |
|---|---|
| Kadastraal inkomen (niet geïndexeerd) | € 1.383 |
| Kadastraal inkomen (geïndexeerd) | € 0 |
Berekening kosten
Je aankoopkosten? Die heb je snel berekend via de knop hieronder.
Bijkomende info
Gebouw
| Bouwjaar | 1963 |
|---|---|
| Staat | Goed onderhouden |
| Bouwcertificaat | Nee |
| Bewoonbaar (m²) | 270 |
| Verdieping | 0 |
| Gevelbreedte | 12 |
| Badkamers | 1 |
| Slaapkamers | 4 |
| Verdiepingen | 3 |
| Garages | 1 |
| Parkeerplaatsen | 4 |
| Doucheruimtes | 0 |
| Toiletten | 3 |
Faciliteiten
| Keuken uitrusting | Luxueus uitgerust |
|---|---|
| Materiaal ramenomlijstingen | PVC |
| Beglazing | Standaard dubbel |
| Brandstof primaire verwarming | Gas |
| Elektrisch keuringsattest | Ja |
Perceel
| Diepte (m) | 19 |
|---|---|
| Breedte (m) | 15 |
| Overstromingsgevoelig | Geen |
| P-score | A |
| G-score | A |
| Voorkeurrecht | Nee |
| Totale oppervlakte (m²) | 553 |
| Bebouwde oppervlakte (m²) | 0 |
| Tuin oppervlakte (m²) | 0 |
| Oppervlakte terras (m²) | 0 |
Vergunning
| Vergunning | Vergunning beschikbaar |
|---|
Uitrusting
| Investeringspand | Nee |
|---|---|
| Geschikt voor praktijk | Nee |
| Parking | Ja |
| Garage | Ja |
| Thuiskantoor | Nee |
| Kelder | Ja |
| Zolder | Ja |
| Tuin | Ja |
| Terras | Ja |
| Lift | Nee |
| Rioolaansluiting | Ja |
| Gasaansluiting | Ja |
| Wateraansluiting | Ja |
| Elektriciteitsaansluiting | Ja |
| TV aansluiting | Ja |
| Internetaansluiting | Ja |
| Telefoonaansluiting | Ja |
