Te Koop Kmo-Unit 12 bus 25
€ 299.500
Een pand van Mertens Vastgoed
Jouw zoektocht
Overzicht
- 201 m² bewoonbaar
Beschrijving
www.zuiderdijk6.be
Dit project zal in fases gebouwd worden:
Start Fase 1 (units 21 tot en met 26) samen met Fase 2 (units 13 tot en met 17): Opgeleverd
Fase 3: units 1+2+18+19+20: Opgeleverd
Fase 4: units 3 tot en met 7: Oplevering 2026
Fase 5: units 8 tot en met 12: Oplevering 2026
Voor verdere technische details kan men het gedetailleerde lastenboek opvragen.
Vastgoedinformatie
Stedenbouwkundige vergunning: uitgereikt
Stedenbouwkundige bestemming: Industriegebied
Dagvaardigen: geen dagvaardiging uitgebracht
Voorkooprecht: voorkooprecht vlaamse waterweg nv
Verkavelingsvergunning: verkavelingsvergunning aanwezig
Watertoets
P score: A
G Score: A
Afgebakend overstromingsgebied: nee
Afbakende oeverzone: nee
Risicozone voor overstroming: nee
www.zuiderdijk6.be
Dit project zal in fases gebouwd worden:
Start Fase 1 (units 21 tot en met 26) samen met Fase 2 (units 13 tot en met 17): Opgeleverd
Fase 3: units 1+2+18+19+20: Opgeleverd
Fase 4: units 3 tot en met 7: Oplevering 2026
Fase 5: units 8 tot en met 12: Oplevering 2026
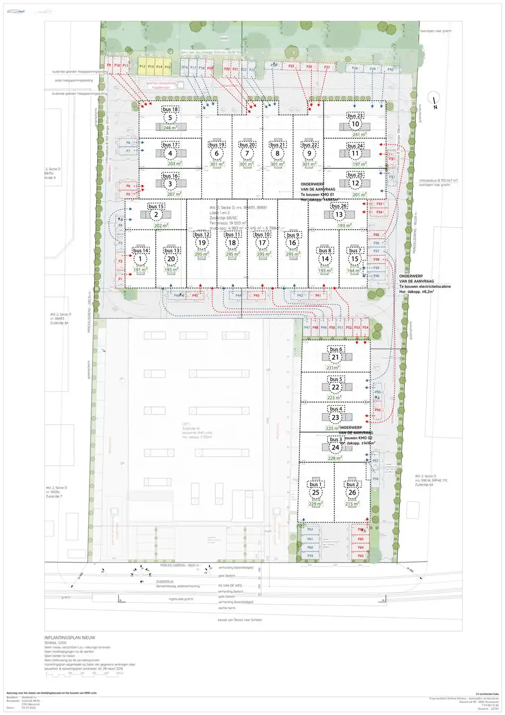
UNIT | BP | TOTAAL | MAGAZIJN | KANTOOR | OPT VERD* | GROND | CONSTRUCTIE | PRIJS |
Unit 12 | 32, 36 | 201 m² | 201 m² | 0 | 67 m2 | € 107.500,00 | € 192.000,00 | € 299.500,00 |
OPTIE VERDIEPING* zit niet in het totaal oppervlakte
Voor verdere technische details kan men het gedetailleerde lastenboek opvragen.
EXTRA PARKEERPLAATSEN TE KOOP
ALLE PRIJZEN ZIJN EXCLUSIEF BTW
Vastgoedinformatie
Stedenbouwkundige vergunning: uitgereikt
Stedenbouwkundige bestemming: Industriegebied
Dagvaardigen: geen dagvaardiging uitgebracht
Voorkooprecht: voorkooprecht vlaamse waterweg nv
Verkavelingsvergunning: verkavelingsvergunning aanwezig
Watertoets
P score: A
G Score: A
Afgebakend overstromingsgebied: nee
Afbakende oeverzone: nee
Risicozone voor overstroming: nee
Energie
Op de kaart

Financieel
| Prijs |
|---|
Berekening kosten
Je aankoopkosten? Die heb je snel berekend via de knop hieronder.
Bijkomende info
Gebouw
| Bewoonbaar (m²) | 201 |
|---|---|
| Badkamers | 0 |
| Slaapkamers | 0 |
| Parkeerplaatsen | 0 |
Faciliteiten
| Type vloer |
|---|
Perceel
| Tuin oppervlakte (m²) | 0 |
|---|
Vergunning
| Vergunning | Geen beschikbaar |
|---|---|
| Verkavelingsvergunning | Geen beschikbaar |
Uitrusting
| Parking | Ja |
|---|---|
| Garage | Nee |
| Tuin | Nee |
| Terras | Nee |