Nieuwbouw KMO-park te Beerse
€ 680.450
Een pand van EPMC NV
Favoriet
Jouw zoektocht
Jouw scoretabel voor dit pand
Aan het laden...
Jouw geplande bezichtigingen
Aan het laden...
Overzicht
- 439 m² bewoonbaar
- 439 m² grond
Beschrijving
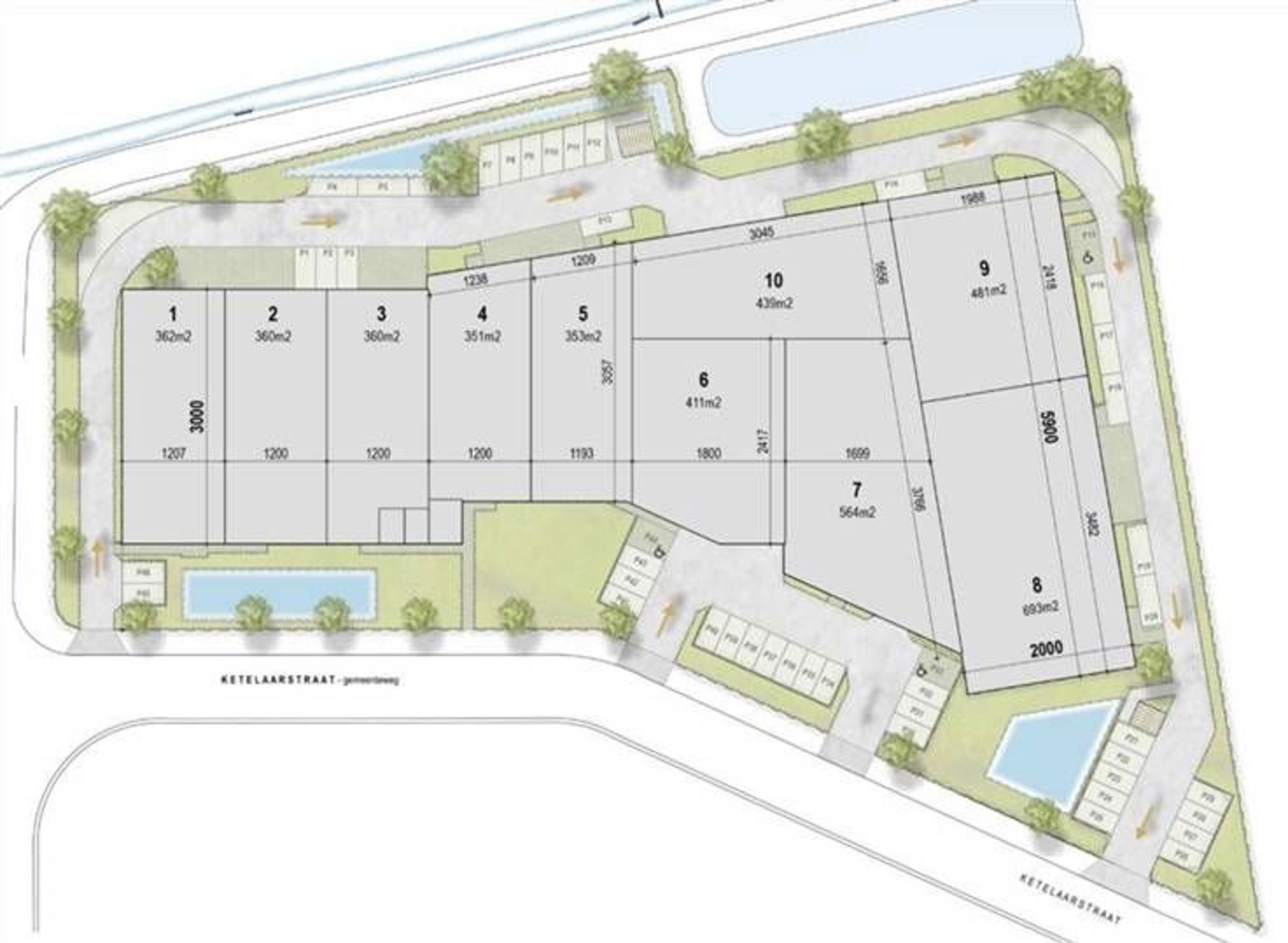
Gelegen langsheen het kanaal te Beerse, bieden wij nieuwbouw KMO-units in koop aan.
De unit omvat ca. 439 m² opslagruimte/werkplaats met een vrije hoogte van ca. 7 meter.
Toegang wordt verleend door middel van een gelijkvloerse sectionaalpoort.
Kantoorruimten en mezzanine kan worden ingebouwd in onderling overleg.
Parkeerratio van 1 parkeerplaats per 100 m².
Oplevering voorzien Q1 2026.
Verkoopprijzen exclusief registratierechten (grond), btw (constructie) en aankoopkosten koper.
Gelieve ons te contacteren voor verdere informatie of om een bezoek ter plaatse in te plannen.
De unit omvat ca. 439 m² opslagruimte/werkplaats met een vrije hoogte van ca. 7 meter.
Toegang wordt verleend door middel van een gelijkvloerse sectionaalpoort.
Kantoorruimten en mezzanine kan worden ingebouwd in onderling overleg.
Parkeerratio van 1 parkeerplaats per 100 m².
Oplevering voorzien Q1 2026.
Verkoopprijzen exclusief registratierechten (grond), btw (constructie) en aankoopkosten koper.
Gelieve ons te contacteren voor verdere informatie of om een bezoek ter plaatse in te plannen.
Gelegen langsheen het kanaal te Beerse, bieden wij nieuwbouw KMO-units in koop aan.
De unit omvat ca. 439 m² opslagruimte/werkplaats met een vrije hoogte van ca. 7 meter.
Toegang wordt verleend door middel van een gelijkvloerse sectionaalpoort.
Kantoorruimten en mezzanine kan worden ingebouwd in onderling overleg.
Parkeerratio van 1 parkeerplaats per 100 m².
Oplevering voorzien Q1 2026.
Verkoopprijzen exclusief registratierechten (grond), btw (constructie) en aankoopkosten koper.
Gelieve ons te contacteren voor verdere informatie of om een bezoek ter plaatse in te plannen.
De unit omvat ca. 439 m² opslagruimte/werkplaats met een vrije hoogte van ca. 7 meter.
Toegang wordt verleend door middel van een gelijkvloerse sectionaalpoort.
Kantoorruimten en mezzanine kan worden ingebouwd in onderling overleg.
Parkeerratio van 1 parkeerplaats per 100 m².
Oplevering voorzien Q1 2026.
Verkoopprijzen exclusief registratierechten (grond), btw (constructie) en aankoopkosten koper.
Gelieve ons te contacteren voor verdere informatie of om een bezoek ter plaatse in te plannen.
Energie
Op de kaart

Financieel
| Prijs |
|---|
Berekening kosten
Je aankoopkosten? Die heb je snel berekend via de knop hieronder.
Bijkomende info
Gebouw
| Bouwjaar | 2026 |
|---|---|
| Staat | Nieuw |
| Bewoonbaar (m²) | 439 |
| Badkamers | 0 |
| Slaapkamers | 0 |
| Parkeerplaatsen | 0 |
Faciliteiten
| Type vloer | Beton |
|---|
Perceel
| P-score | A |
|---|---|
| G-score | A |
| Voorkeurrecht | Ja |
| Totale oppervlakte (m²) | 439 |
| Tuin oppervlakte (m²) | 0 |
Vergunning
| Vergunning | Vergunning beschikbaar |
|---|---|
| Verkavelingsvergunning | Geen beschikbaar |
| Bouwovertreding | Geen |
| Bouwovertreding dagvaardiging | Geen |
Uitrusting
| Parking | Nee |
|---|---|
| Garage | Nee |
| Tuin | Nee |
| Terras | Nee |
| Wateraansluiting | Ja |
| Elektriciteitsaansluiting | Ja |
| Telefoonaansluiting | Ja |
Een pand van
EPMC NV
EPMC : Ondernemers in Vastgoed!
Welkom bij de Ondernemers in Vastgoed
EPMC is reeds 40 jaar toonaangevend expert in de verkoop en verhuur van bedrijfsmatig vastgoed op de Antwerpse markt.
Wij focussen op industriële, administratieve en commerciële panden.
7118759
Leer meer over vastgoed
04 January 2026
Zoek je een kantoor, een magazijn of… iets ertussenin? Bedrijfsvastgoed uitgelegd
05 November 2024
Bedrijfsvastgoed in transitie: ontdek de toekomst van werkplekken
16 October 2024
Opbrengsteigendom: een slim pad naar passief inkomen en vermogensgroei
09 September 2024