Project Gilshof - 7 landelijk gelegen BEN-nieuwbouwwoningen op wandelafstand van het centrum
Een pand van IMMO POINT VERHOEVEN
Beschrijving
Energiezuinige nieuwbouwwoningen (zonnepanelen en warmtepomp (verwarming én koeling))
Gelegen in een landelijke omgeving met mooi zicht over de weilanden
Op wandelafstand van het centrum en van de natuur
Mogelijkheid tot aankoop van een extra autostaanplaats
Geen voorschot te betalen bij aankoop - onmiddellijk beschikbaar
Gelegen in een landelijke omgeving met mooi zicht over de weilanden
Op wandelafstand van het centrum en van de natuur
Mogelijkheid tot aankoop van een extra autostaanplaats
Geen voorschot te betalen bij aankoop - onmiddellijk beschikbaar
ROJECT GILSHOF- 7 LANDELIJK GELEGEN BEN-WONINGEN OP WANDELAFSTAND VAN HET CENTRUM
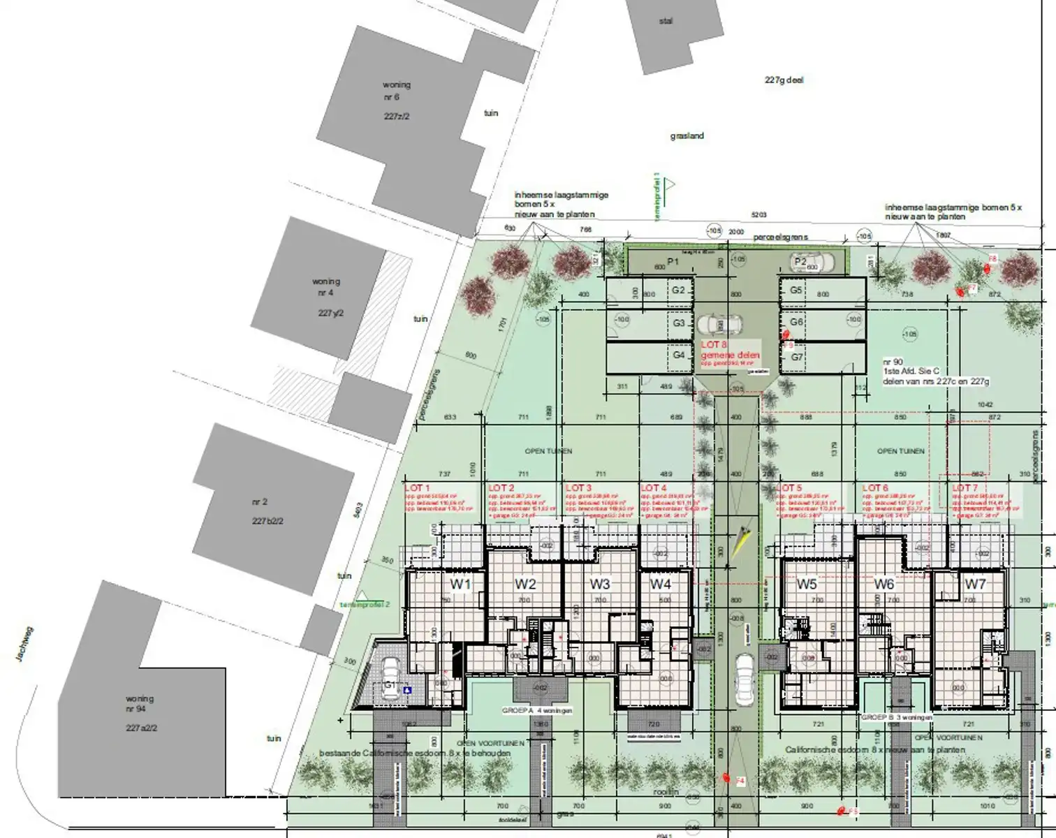
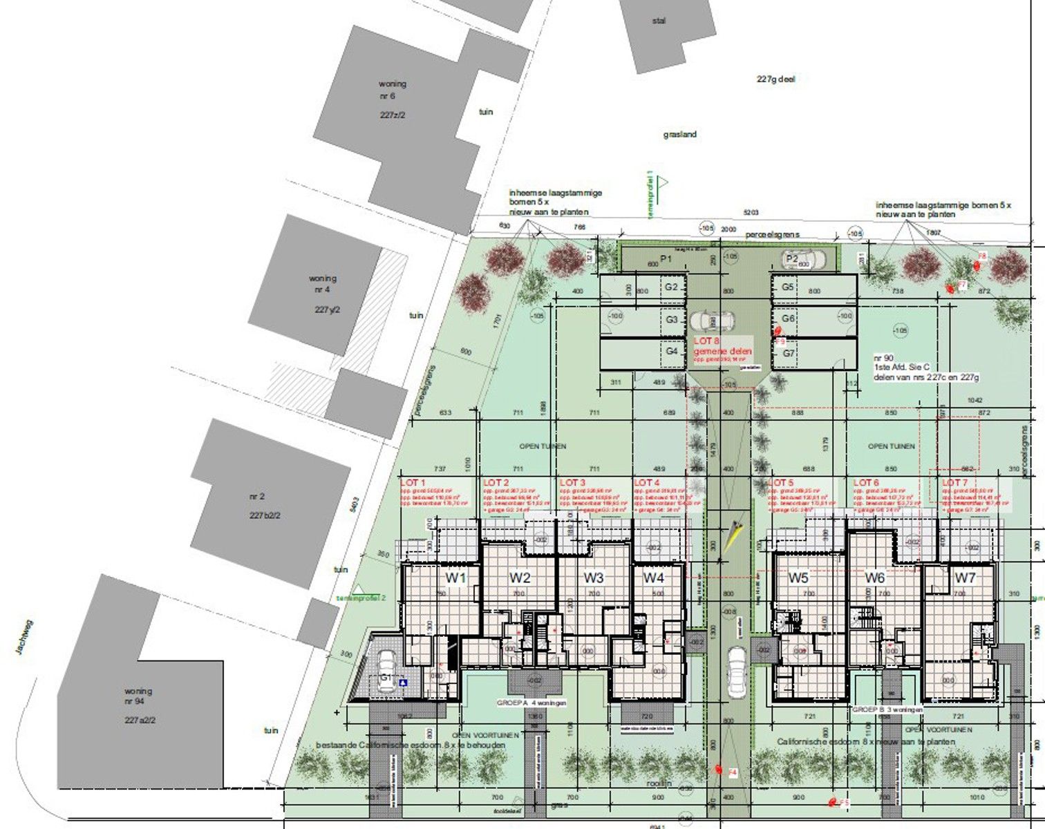
Op Gilseinde, op een boogscheut van het centrum van Ravels, zijn er 7 stijlvolle BEN-woningen gebouwd met een E-peil < E20. De woningen zijn gelegen op wandelafstand van de nodige voorzieningen (bakker, scholen, supermarkt, apotheek,...), doch met een open zicht over de achtergelegen weilanden.
Alle woningen worden voorzien van 3 of 4 slaapkamers en een inpandige garage of een overdekte carport met fietsenberging. De zuid- georiënteerde percelen variëren van 319m² tot 540m² waarbij men achteraan kan genieten van een prachtig zicht over de weilanden.
De woningen worden volledig afgewerkt opgeleverd inclusief de buitenaanleg en worden gebouwd met kwaliteitsvolle materialen om garant te staan voor een hoogwaardige afwerking.
Er is de mogelijkheid tot aankoop van een extra autostaanplaats.
Project en uitvoering: Ludo Van Calster BV te Hoogstraten.
Prijzen zijn exclusief BTW en registratierechten.
Contacteer ons voor meer informatie of een bezoek ter plaatse.
Op Gilseinde, op een boogscheut van het centrum van Ravels, zijn er 7 stijlvolle BEN-woningen gebouwd met een E-peil < E20. De woningen zijn gelegen op wandelafstand van de nodige voorzieningen (bakker, scholen, supermarkt, apotheek,...), doch met een open zicht over de achtergelegen weilanden.
Alle woningen worden voorzien van 3 of 4 slaapkamers en een inpandige garage of een overdekte carport met fietsenberging. De zuid- georiënteerde percelen variëren van 319m² tot 540m² waarbij men achteraan kan genieten van een prachtig zicht over de weilanden.
De woningen worden volledig afgewerkt opgeleverd inclusief de buitenaanleg en worden gebouwd met kwaliteitsvolle materialen om garant te staan voor een hoogwaardige afwerking.
Er is de mogelijkheid tot aankoop van een extra autostaanplaats.
Project en uitvoering: Ludo Van Calster BV te Hoogstraten.
Prijzen zijn exclusief BTW en registratierechten.
Contacteer ons voor meer informatie of een bezoek ter plaatse.
Energie
Op de kaart

Financieel
| Prijs |
|---|
Bijkomende info
Gebouw
| Bouwjaar | 2025 |
|---|---|
| Staat | Nieuw |
| Badkamers | 0 |
| Slaapkamers | 0 |
| Parkeerplaatsen | 0 |
Faciliteiten
| Type vloer | |
|---|---|
| Keuken uitrusting | Luxueus uitgerust |
| Elektrisch keuringsattest | Ja |
Perceel
| Overstromingsgevoelig | Geen |
|---|---|
| P-score | A |
| G-score | A |
| Voorkeurrecht | Nee |
| Tuin oppervlakte (m²) | 0 |
| Oriëntatie tuin | Zuid |
Vergunning
| Vergunning | Vergunning beschikbaar |
|---|---|
| Verkavelingsvergunning | Vergunning beschikbaar |
| Bouwovertreding | Geen |
| Bouwovertreding dagvaardiging | Geen |
Uitrusting
| Parking | Nee |
|---|---|
| Garage | Nee |
| Tuin | Nee |
| Terras | Nee |
| Wateraansluiting | Ja |
| Elektriciteitsaansluiting | Ja |
| TV aansluiting | Ja |
| Telefoonaansluiting | Ja |
| Zonnepanelen | Ja |
Een pand van
IMMO POINT VERHOEVEN
Uw vastgoedadviseur!
Immo Point Verhoeven is sinds 2007 actief en maakt deel uit van een netwerk van 20 kantoren in de provincies Antwerpen en Oost-Vlaanderen. We delen ons vastgoedadvies met jou! Dankzij onze jarenlange expertise staan we je bij met juridisch en commercieel advies bij de aankoop, verkoop of verhuur van vastgoed. En ook over het energiezuinig maken van je woning hebben wij heel wat te vertellen. Spring binnen voor een koffie en krijg het advies dat jij nodig hebt.
Leer meer over vastgoed
01 March 2026
Wanneer heb ik een bouwvergunning of omgevingsvergunning nodig?
17 February 2026
Hoe breng ik een bod uit op een woning?
24 November 2025
Uitgezocht voor jouw gemeente: Hoeveel stijgt de waarde van je woning door een renovatie?
22 October 2025