2 bedrijfsunits met kantoren parkeerplaatsen te Malle
€ 1.633.800
Een pand van CEUSTERS
Jouw zoektocht
Overzicht
- 1167 m² bewoonbaar
Beschrijving
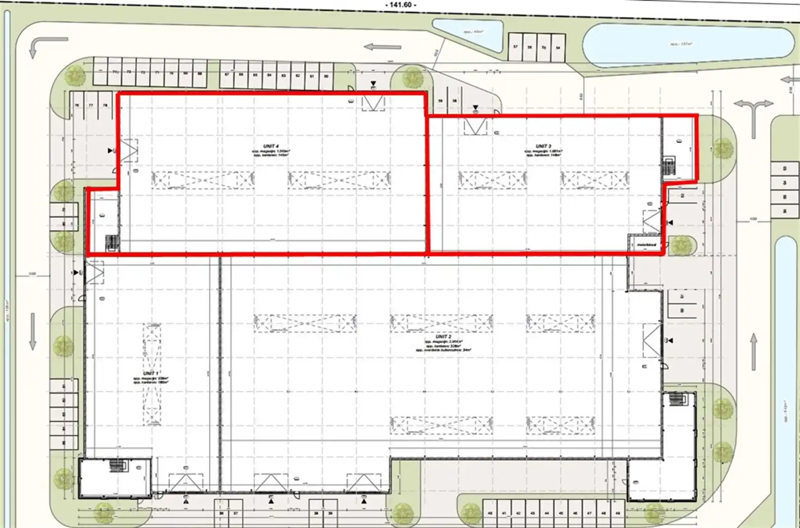
Bedrijvenpark Steenoven in Malle. Op een grondstuk van ca 15.000 m² zal het park bestaan uit verschillende bedrijfsgebouwen op maat met units vanaf ca. 900 m2 tot ca. 3.000 m2. Het bedrijvenpark is centraal gelegen tussen de E34 en de E19.
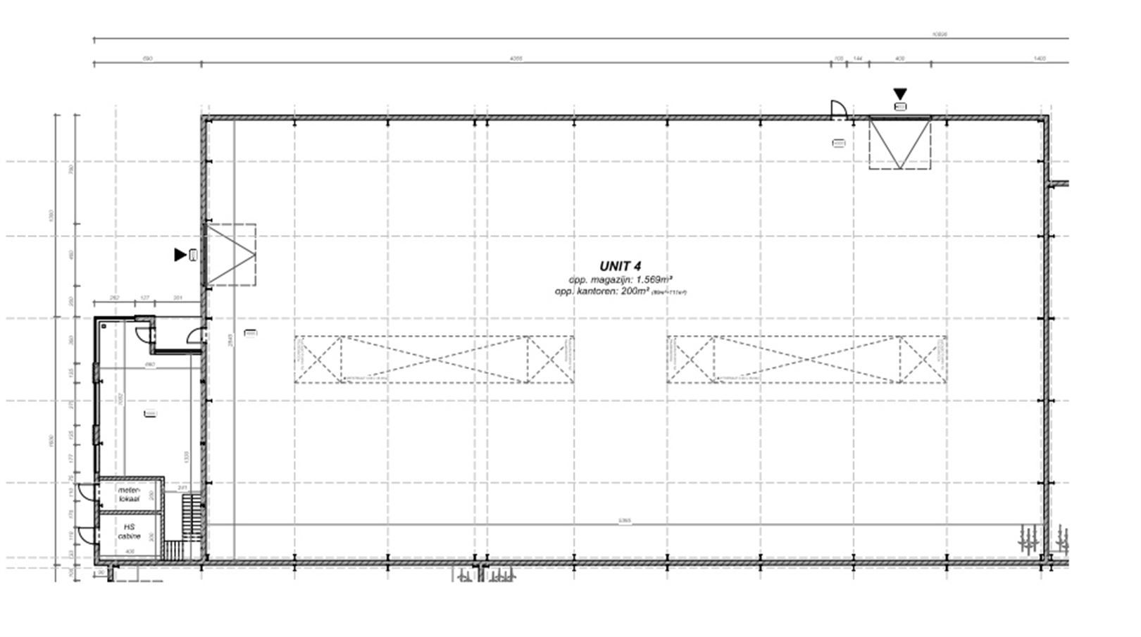
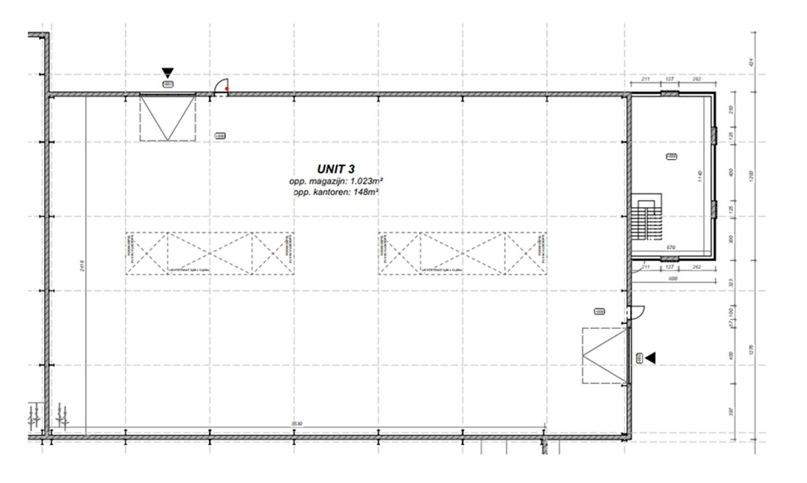
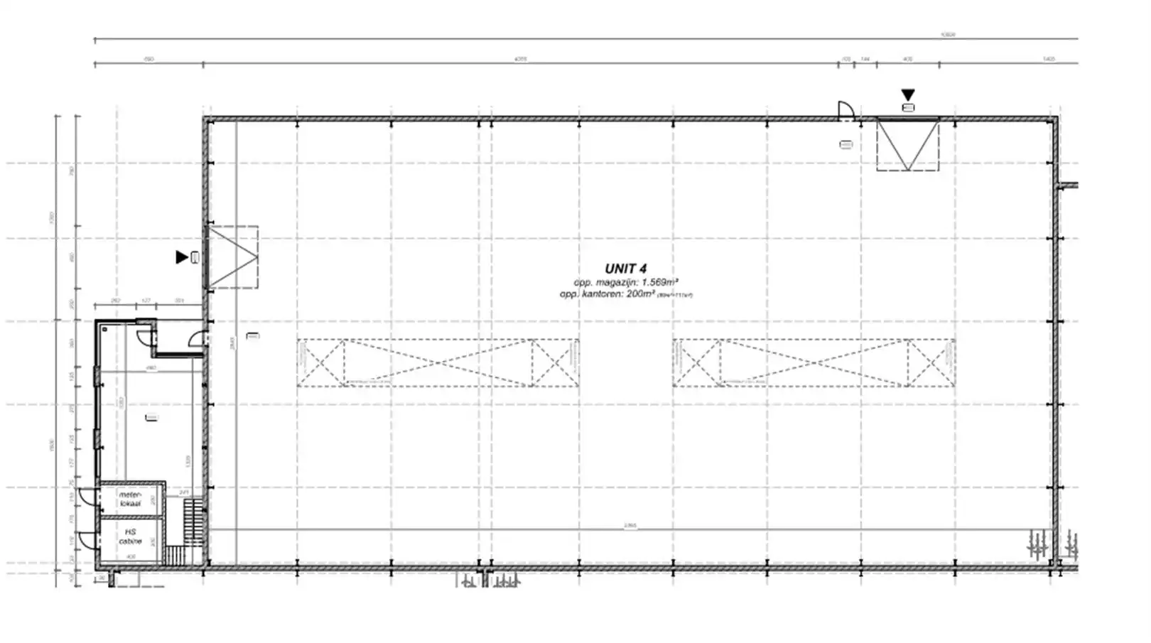
Nog 2 units met kantoren beschikbaar:
Unit 3: 1.023m² +144m² kantoren
Unit 4: 1.569m² + 200m² kantoren
Eigenschappen:
- Staalstructuur
- Gevelbekleding in beton en sandwichpanelen
- Scheidingswanden in beton
- Buitenschrijnwerk in aluminium met isolerende beglazing
- Automatische geïsoleerde sectionaalpoorten
- Steeldeck, geïsoleerd met lichtstraten en rookluiken
- Betonvloer
- Maximale belasting: 3T/m² (500kg/m² voor de kantoren)
- Betonnen trap naar de kantoren
- 1 regenwaterput/unit van 10.000 liter
- 1 septische put/unit van 2.000 liter
Buiteninrichting:
- Rijweg rond het gebouw in asfalt
- Parkeerplaatsen
- Onderhoudsarme groenzones
- Brievenbussen
- Buitenverlichting
Vermelde prijzen zijn indicatief, vrijblijvend en steeds excl. BTW, notaris- en overdrachtskosten en incl. de kosten van afwerking park (oa totem, brievenbussen, belijning, parkingborden, verkeersborden, groenaanleg, ...)
Enkel de logo's op gevel/totem/brievenbussen/parkingbordjes… blijven ten laste van de koper
Voor de nutsvoorzieningen wordt een forfait gerekend per unit/aansluiting van 25.000 € excl. BTW voor de standaardaansluitingen
Voor de kosten van de basisakte wordt een forfait gerekend per unit van 1.450 € excl. BTW
Voor de kosten van de opmeting wordt een forfait gerekend per unit 2.250 € excl. BTW
Gedetailleerde plannen en verkoopslastenboek (PDF) verkrijgbaar op verzoek
Energie
- E-peil: E0
- Beglazing: Onbekend
Op de kaart

Financieel
| Prijs | |
|---|---|
| Kadastraal inkomen (niet geïndexeerd) | € 0 |
| Kadastraal inkomen (geïndexeerd) | € 0 |
Berekening kosten
Je aankoopkosten? Die heb je snel berekend via de knop hieronder.
Bijkomende info
Gebouw
| Bouwcertificaat | Nee |
|---|---|
| Bewoonbaar (m²) | 1167 |
| Verdieping | 0 |
| Badkamers | 0 |
| Slaapkamers | 0 |
| Verdiepingen | 0 |
| Garages | 0 |
| Parkeerplaatsen | 0 |
| Doucheruimtes | 0 |
| Toiletten | 0 |
Faciliteiten
| Elektrisch keuringsattest | Nee |
|---|
Perceel
| Overstromingsgevoelig | Geen |
|---|---|
| P-score | A |
| G-score | A |
| Voorkeurrecht | Nee |
| Bebouwde oppervlakte (m²) | 0 |
| Tuin oppervlakte (m²) | 0 |
| Oppervlakte terras (m²) | 0 |
Vergunning
| Vergunning | Geen beschikbaar |
|---|
Uitrusting
| Investeringspand | Nee |
|---|---|
| Geschikt voor praktijk | Nee |
| Parking | Nee |
| Garage | Nee |
| Thuiskantoor | Nee |
| Kelder | Nee |
| Zolder | Nee |
| Tuin | Nee |
| Terras | Nee |
| Lift | Nee |
| Rioolaansluiting | Ja |
| Gasaansluiting | Nee |
| Wateraansluiting | Ja |
| Elektriciteitsaansluiting | Ja |
| TV aansluiting | Ja |
| Internetaansluiting | Ja |
| Telefoonaansluiting | Ja |
Appartementsblok
| Lift | Nee |
|---|