Mooie bouwgrond in prachtige verkaveling te koop!
€ 195.000
Een pand van Vastgoed Fransen BV
Favoriet
Jouw zoektocht
Jouw scoretabel voor dit pand
Aan het laden...
Jouw geplande bezichtigingen
Aan het laden...
Overzicht
- 690 m² grond
Beschrijving
Mooie bouwgrond in prachtige verkaveling te koop!
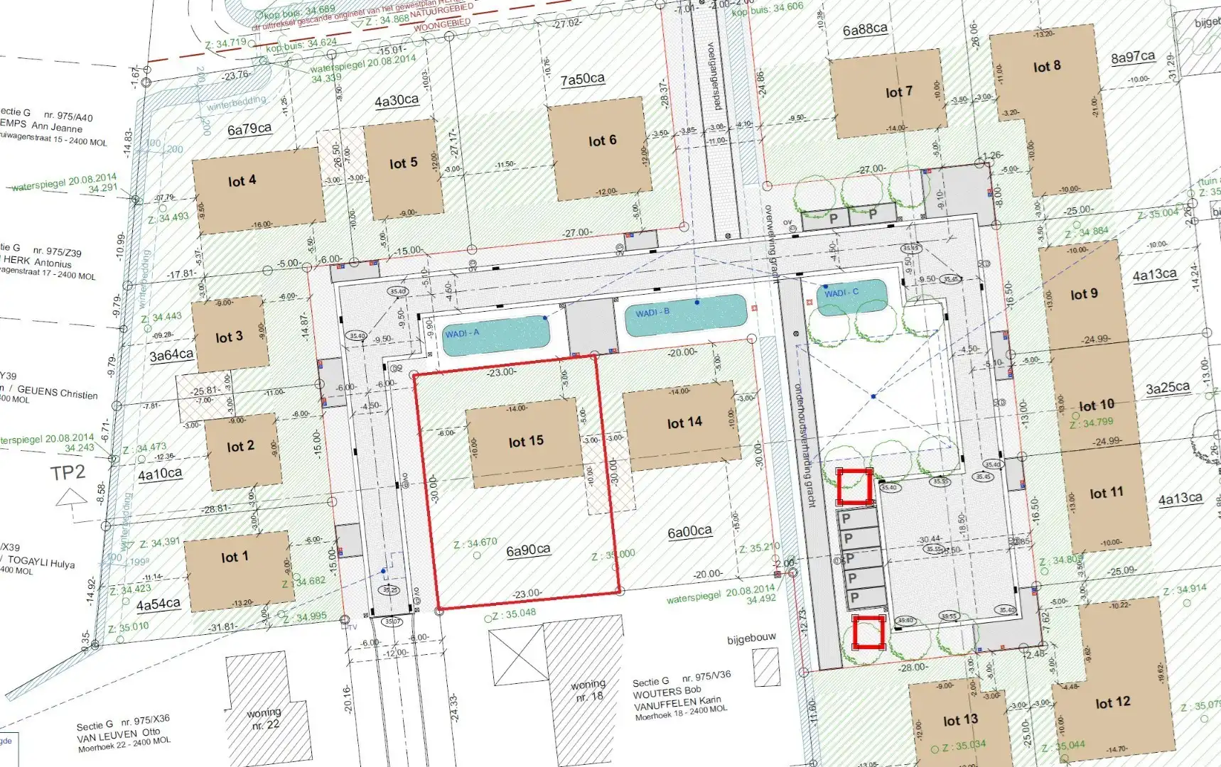
Deze bouwgrond, met een straatbreedte van 23 meter en 30 meter diep, levert een mooie oppervlakte op van 690m². Zoals u ziet op het verkavelingsplan, kan er een woning opgericht worden met een gevelbreedte van maar liefst 14 meter!
Verder kan er 10 meter diep gebouwd worden en mag er een koppelelement van 3 meter bij 10 meter geplaatst worden.
De bouwgrond ligt in een rustige en zeer mooie verkaveling, voorzien van knappe woningen. Het is zeer rustig en groen wonen, waardoor er geen gebrek is aan genot.
Bent u geïnteresseerd?
Bel of mail ons via 011 64 55 00 of info@vastgoedfransen.be.
Deze bouwgrond, met een straatbreedte van 23 meter en 30 meter diep, levert een mooie oppervlakte op van 690m². Zoals u ziet op het verkavelingsplan, kan er een woning opgericht worden met een gevelbreedte van maar liefst 14 meter!
Verder kan er 10 meter diep gebouwd worden en mag er een koppelelement van 3 meter bij 10 meter geplaatst worden.
De bouwgrond ligt in een rustige en zeer mooie verkaveling, voorzien van knappe woningen. Het is zeer rustig en groen wonen, waardoor er geen gebrek is aan genot.
Bent u geïnteresseerd?
Bel of mail ons via 011 64 55 00 of info@vastgoedfransen.be.
Energie
- Verwarming: Geen
- Beglazing: Onbekend
Op de kaart

Financieel
| Prijs | |
|---|---|
| Kadastraal inkomen (niet geïndexeerd) | € 0 |
| Kadastraal inkomen (geïndexeerd) | € 0 |
Berekening kosten
Je aankoopkosten? Die heb je snel berekend via de knop hieronder.
Bijkomende info
Gebouw
| Is beschermd | Nee |
|---|
Perceel
| Overstromingsgevoelig | Geen |
|---|---|
| P-score | A |
| Voorkeurrecht | Nee |
| Totale oppervlakte (m²) | 690 |
Vergunning
| Vergunning | Vergunning beschikbaar |
|---|---|
| Verkavelingsvergunning | Vergunning beschikbaar |
| Bouwovertreding dagvaardiging | Geen |
Uitrusting
| Meerdere eigenaars | Nee |
|---|---|
| Rioolaansluiting | Nee |
| Gasaansluiting | Nee |
| Wateraansluiting | Nee |
| Elektriciteitsaansluiting | Nee |
| TV aansluiting | Nee |
| Internetaansluiting | Nee |
Een pand van
Vastgoed Fransen BV
Vastgoed Fransen - Een team van mensen met een passie voor vastgoed!
Vastgoed Fransen is uw vastgoedmakelaar met een kantoor te Kerkstraat 19 in Pelt. We focussen ons op diensten zoals het verkopen, verhuren en beheren van huizen, appartementen, nieuwbouwwoningen en gronden. Ook als koper of huurder bent u bij Vastgoed Fransen aan het juiste adres en begeleiden we u graag naar een nieuwe woonplaats.
Leer meer over vastgoed
23 March 2026
Op Spotto zoeken als een pro: 10 slimme tips
21 March 2026
Hoeveel kan ik lenen om een huis te kopen?
01 March 2026
Wanneer heb ik een bouwvergunning of omgevingsvergunning nodig?
17 February 2026