ENERGIE ZUINIGE NIEUWBOUW WONING (3 slpka) IN NIEUWE VERKAVELING OP PERCEEL VAN 3a35ca
€ 457.000
Een pand van BVBA KRIAN
Overzicht
- 335 m² grond
- 3 Slaapkamer(s)
- 1 Badkamer(s)
- 2 Toilet(ten)
Beschrijving
Nabij centrum Geel, in nieuwe verkaveling (zijstraat Heistraat/project van 9 woningen) op wandelafstand van scholen, station,/openbaar vervoer winkelstraten vindt u deze prachtige half open, afgewerkte nieuwbouwwoning gelegen in een doodlopende straat. E-peil: 9!!!! Zonnepanelen, luchtwarmtepomp met actieve koeling, vloerverwarming en bijkomend in badkamer sierradiator!
Woning bestaat uit:
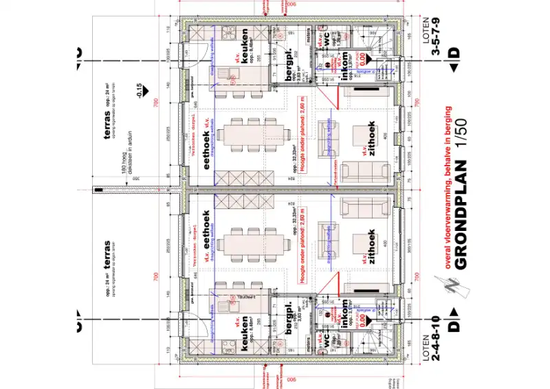
GELIJKVLOERS: inkomhal, toilet, zithoek, eethoek, keuken, bergplaats.
VERDIEP: trap; nachthal, 3 ruime slaapkamers, toilet, technische ruimte, badkamer.
Zolder.
Aanleg tuin/terras en schilderwerken niet inbegrepen in de prijs.
Verkoop : grondaandeel 142.375-euro onder 12% registratierechten en constructiewaarde 314.625-euro onder 21%BTW.
Aansluitkosten nutsvoorzieningen zijn ten laste van koper.
Lastenboek kan u bekomen via ons kantoor.
KIJKWONING kan bekeken worden na afspraak met kantoor.
Beschikbaar bij akte.
Woning bestaat uit:
GELIJKVLOERS: inkomhal, toilet, zithoek, eethoek, keuken, bergplaats.
VERDIEP: trap; nachthal, 3 ruime slaapkamers, toilet, technische ruimte, badkamer.
Zolder.
Aanleg tuin/terras en schilderwerken niet inbegrepen in de prijs.
Verkoop : grondaandeel 142.375-euro onder 12% registratierechten en constructiewaarde 314.625-euro onder 21%BTW.
Aansluitkosten nutsvoorzieningen zijn ten laste van koper.
Lastenboek kan u bekomen via ons kantoor.
KIJKWONING kan bekeken worden na afspraak met kantoor.
Beschikbaar bij akte.
Energie
- EPC Certificaat: nieuwbouw en wordt voorzien bij PID
- E-peil: E8
- Beglazing: Onbekend
Op de kaart

Financieel
| Prijs |
|---|
Bijkomende info
Gebouw
| Bouwjaar | 2024 |
|---|---|
| Staat | Nieuw |
| Bouwcertificaat | Nee |
| Badkamers | 1 |
| Slaapkamers | 3 |
| Verdiepingen | 0 |
| Garages | 0 |
| Parkeerplaatsen | 0 |
| Toiletten | 2 |
Faciliteiten
| Septische tank | Nee |
|---|
Perceel
| Overstromingsgevoelig | Geen |
|---|---|
| Totale oppervlakte (m²) | 335 |
| Bebouwde oppervlakte (m²) | 0 |
| Oriëntatie tuin | Zuidwest |
Vergunning
| Verkavelingsvergunning | Vergunning beschikbaar |
|---|
Uitrusting
| Investeringspand | Nee |
|---|---|
| Parking | Nee |
| Garage | Nee |
| Zolder | Ja |
| Opslagruimte | Ja |
| Lift | Nee |
| Rioolaansluiting | Nee |
| Gasaansluiting | Nee |
| Wateraansluiting | Nee |
| Elektriciteitsaansluiting | Nee |
| Internetaansluiting | Nee |
| Telefoonaansluiting | Nee |
| Zonnepanelen | Nee |
| Zonneboiler | Nee |
| Alarm | Nee |
| Videofoon | Nee |
| Grondwaterput | Nee |
Een pand van
BVBA KRIAN
WAAROM KIEZEN VOOR KRIAN?
Krian Vastgoed is een juridisch onderlegd immobiliënkantoor en begeleidt u in het verkopen en kopen, verhuren of huren van uw pand. Onze manier van werken baseert zich op een gemoedelijke en vertrouwelijke basis. Elke klant wordt persoonlijk begeleid door ons Krian-team. Wij garanderen uw zaken adequaat, vertrouwelijk en gefundeerd te behartigen zodat u een duidelijke en snelle dienstverlening verkrijgt. Dit tegen transparante en vooraf overeengekomen tarieven.
TK BADGEEFSTERSTRAAT 4 lot 7
Leer meer over vastgoed
24 November 2025
Uitgezocht voor jouw gemeente: Hoeveel stijgt de waarde van je woning door een renovatie?
22 October 2025
Hoeveel kan ik lenen om een huis te kopen?
11 June 2025
Huis kopen met bouwovertreding? Dit moet je weten
11 May 2025