Te Koop Europese wijk Belgiëlaan 24 2440 Geel nabij Europese school
€ 425.000
Overzicht
- 303 m² bewoonbaar
- 1710 m² grond
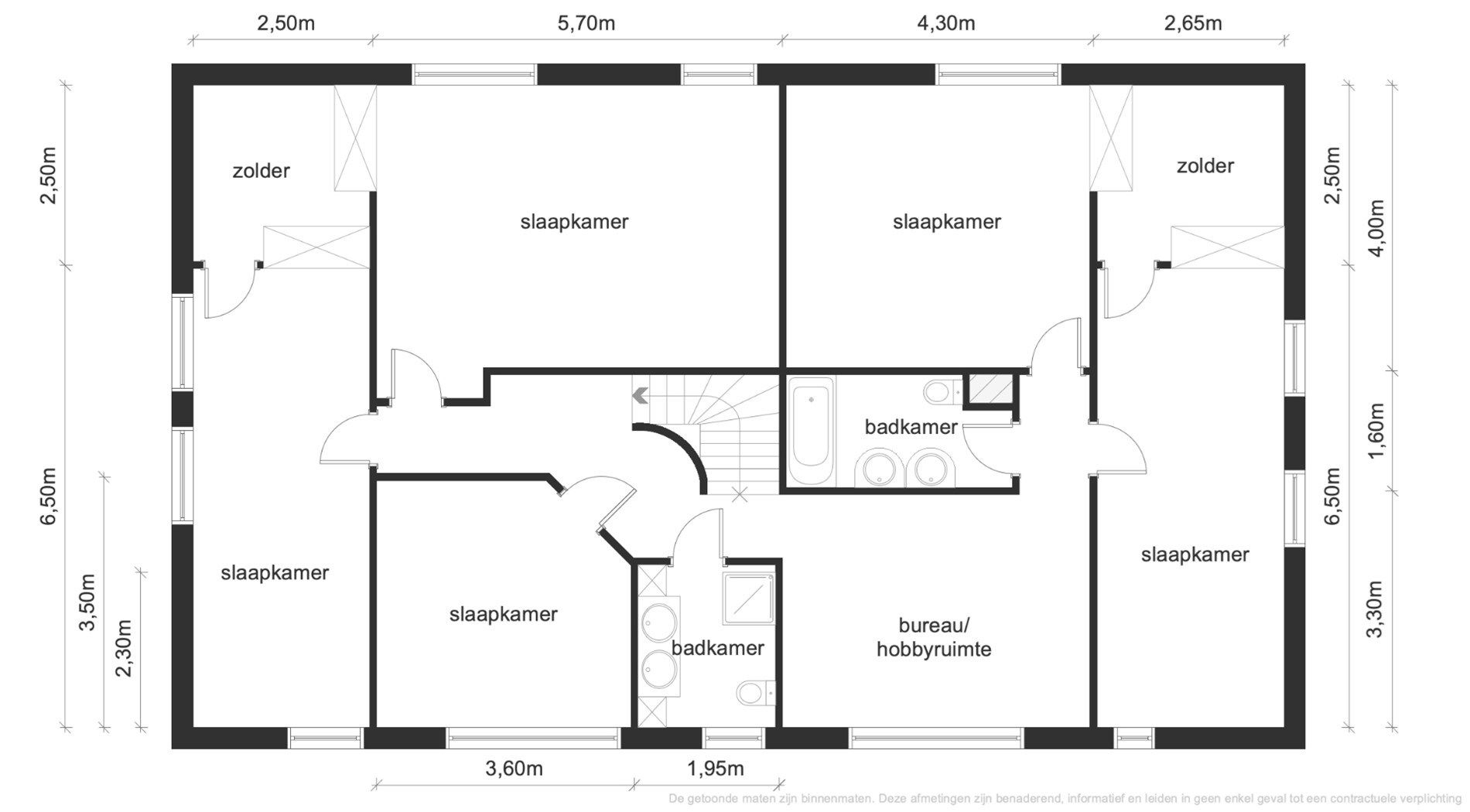
- 5 Slaapkamer(s)
- 2 Badkamer(s)
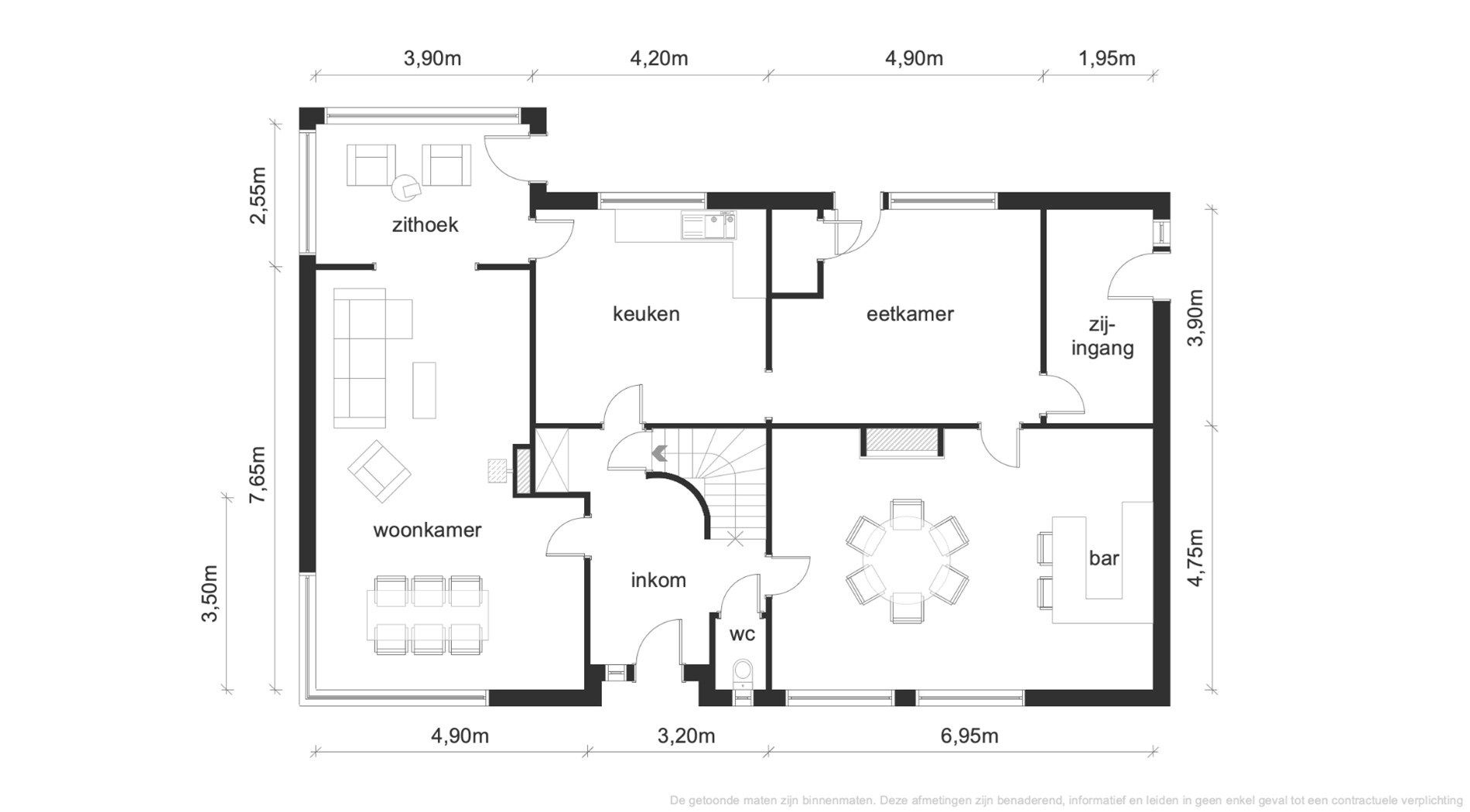
- 1 Living(s)
- 1 Tuin
Beschrijving
Te renoveren woning op royaal perceel van 1.710 m² – tal van mogelijkheden!
Ontdek deze ruime woning, gelegen in de Europese wijk van Geel (Belgiëlaan 24, 2440 Geel), op een residentiële toplocatie. Het perceel van maar liefst 1.710 m² met een indrukwekkende straatbreedte van 37 meter biedt bijzonder veel potentieel voor wie op zoek is naar een renovatieproject met diverse indelingsmogelijkheden.
De woning beschikt over 5 slaapkamers, 2 keukens en 2 badkamers, wat ze uitermate geschikt maakt voor dubbele bewoning, co-housing, kangoeroe wonen of een combinatie van wonen en werken. Mits de nodige renovatiewerken kan dit pand omgevormd worden tot een echte parel, volledig naar eigen smaak en noden. Doordat het een houtskelet woning is kan je nog alle kanten uit met de indeling
🔹 Troeven:
Gelegen in de Europese wijk – Belgiëlaan 24, 2440 Geel
Groot perceel van 1.710 m²
37 meter straatbreedte
5 slaapkamers
2 keukens & 2 badkamers
Mogelijkheid tot opsplitsen in twee wooneenheden
Rustige, residentiële ligging
📞 Voor meer informatie of een bezoek: Rob Deliën
🌐 Meer info op: www.immodelien.be
(alle attesten vind u terug op mijn website onder documenten)
📧 Mail naar: info@immodelien.be
📱 Bel of WhatsApp: 0483 73 79 00
💬 Overweegt u uw eigen woning te verkopen? Neem gerust vrijblijvend contact op!
Ontdek deze ruime woning, gelegen in de Europese wijk van Geel (Belgiëlaan 24, 2440 Geel), op een residentiële toplocatie. Het perceel van maar liefst 1.710 m² met een indrukwekkende straatbreedte van 37 meter biedt bijzonder veel potentieel voor wie op zoek is naar een renovatieproject met diverse indelingsmogelijkheden.
De woning beschikt over 5 slaapkamers, 2 keukens en 2 badkamers, wat ze uitermate geschikt maakt voor dubbele bewoning, co-housing, kangoeroe wonen of een combinatie van wonen en werken. Mits de nodige renovatiewerken kan dit pand omgevormd worden tot een echte parel, volledig naar eigen smaak en noden. Doordat het een houtskelet woning is kan je nog alle kanten uit met de indeling
🔹 Troeven:
Gelegen in de Europese wijk – Belgiëlaan 24, 2440 Geel
Groot perceel van 1.710 m²
37 meter straatbreedte
5 slaapkamers
2 keukens & 2 badkamers
Mogelijkheid tot opsplitsen in twee wooneenheden
Rustige, residentiële ligging
📞 Voor meer informatie of een bezoek: Rob Deliën
🌐 Meer info op: www.immodelien.be
(alle attesten vind u terug op mijn website onder documenten)
📧 Mail naar: info@immodelien.be
📱 Bel of WhatsApp: 0483 73 79 00
💬 Overweegt u uw eigen woning te verkopen? Neem gerust vrijblijvend contact op!
Energie
![]() |
- Energieverbruik: 450 kWh/m²/jaar
- Verwarming: Gas
- Beglazing: Enkel
Let op, de renovatieverplichting in Vlaanderen verplicht de koper om deze woning na aankoop te renoveren tot een betere energieprestatie. Lees er alles over in dit artikel
Op de kaart

Financieel
| Prijs | |
|---|---|
| Kadastraal inkomen (niet geïndexeerd) | € 2.335 |
Berekening kosten
Je aankoopkosten? Die heb je snel berekent via de knop hieronder.
Bijkomende info
Gebouw
| Bouwjaar | 1971 |
|---|---|
| Is beschermd | Nee |
| Bewoonbaar (m²) | 303 |
| Gevelbreedte | 15 |
| Badkamers | 2 |
| Slaapkamers | 5 |
| Leefruimtes | 1 |
| Parkeerplaatsen | 5 |
Ruimtes
| Leefruimte | 2 m² |
|---|
Faciliteiten
| Beglazing | Enkel |
|---|---|
| Luiken | Nee |
| Brandstof primaire verwarming | Gas |
| Warm water type | Geen verwarming |
Perceel
| Overstromingsgevoelig | Geen |
|---|---|
| P-score | A |
| G-score | A |
| Voorkeurrecht | Nee |
| Totale oppervlakte (m²) | 1710 |
| Bebouwde oppervlakte (m²) | 130 |
Vergunning
| Vergunning | Vergunning beschikbaar |
|---|---|
| Bouwovertreding dagvaardiging | Geen |
Uitrusting
| Meerdere eigenaars | Nee |
|---|---|
| Geschikt als kangoeroewoning | Nee |
| Geschikt voor rolstoelgebruikers | Nee |
| Geschikt voor praktijk | Nee |
| Volledig onderkelderd | Nee |
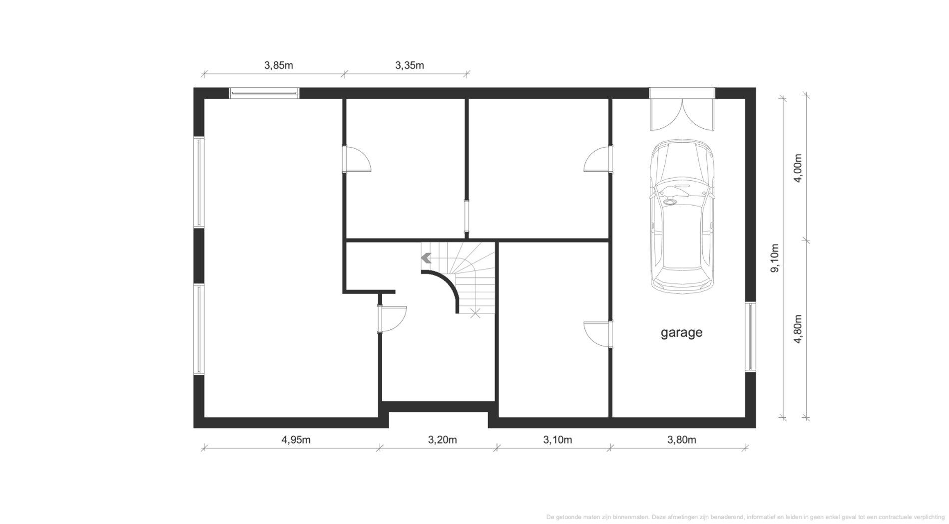
| Parking | Ja |
| Garage | Ja |
| Thuiskantoor | Nee |
| Kelder | Ja |
| Zolder | Nee |
| Opslagruimte | Nee |
| Tuin | Ja |
| Terras | Ja |
| Lift | Nee |
| Rioolaansluiting | Ja |
| Gasaansluiting | Ja |
| Wateraansluiting | Ja |
| Elektriciteitsaansluiting | Ja |
| TV aansluiting | Ja |
| Internetaansluiting | Nee |
| Zonnepanelen | Nee |
| Zonneboiler | Nee |
| Alarm | Nee |
| Zwembad | Nee |
| Jacuzzi | Nee |
| Toonzaal | Nee |
| Ventilatie | Nee |
Leer meer over vastgoed
Nieuw
24 November 2025
Uitgezocht voor jouw gemeente: Hoeveel stijgt de waarde van je woning door een renovatie?
22 October 2025
Hoeveel kan ik lenen om een huis te kopen?
11 June 2025
Huis kopen met bouwovertreding? Dit moet je weten
11 May 2025
