Karaktervolle woning met veel potentieel
€ 475.000
Een pand van Immo Vasta
Overzicht
- 286 m² bewoonbaar
- 2639 m² grond
- 5 Slaapkamer(s)
- 1 Badkamer(s)
- 1 Toilet(ten)
- 1 Tuin
- 1 Garage(s)
Beschrijving
Droom jij van rust, ruimte en mogelijkheden? Deze vrijstaande woning in Tielen heeft het allemaal: een perceel van 2.639 m², 5 volwaardige slaapkamers, een megazolder én een dubbele oprit met garage. De woning vraagt om een opknapbeurt, maar biedt massa’s potentieel op een toplocatie.
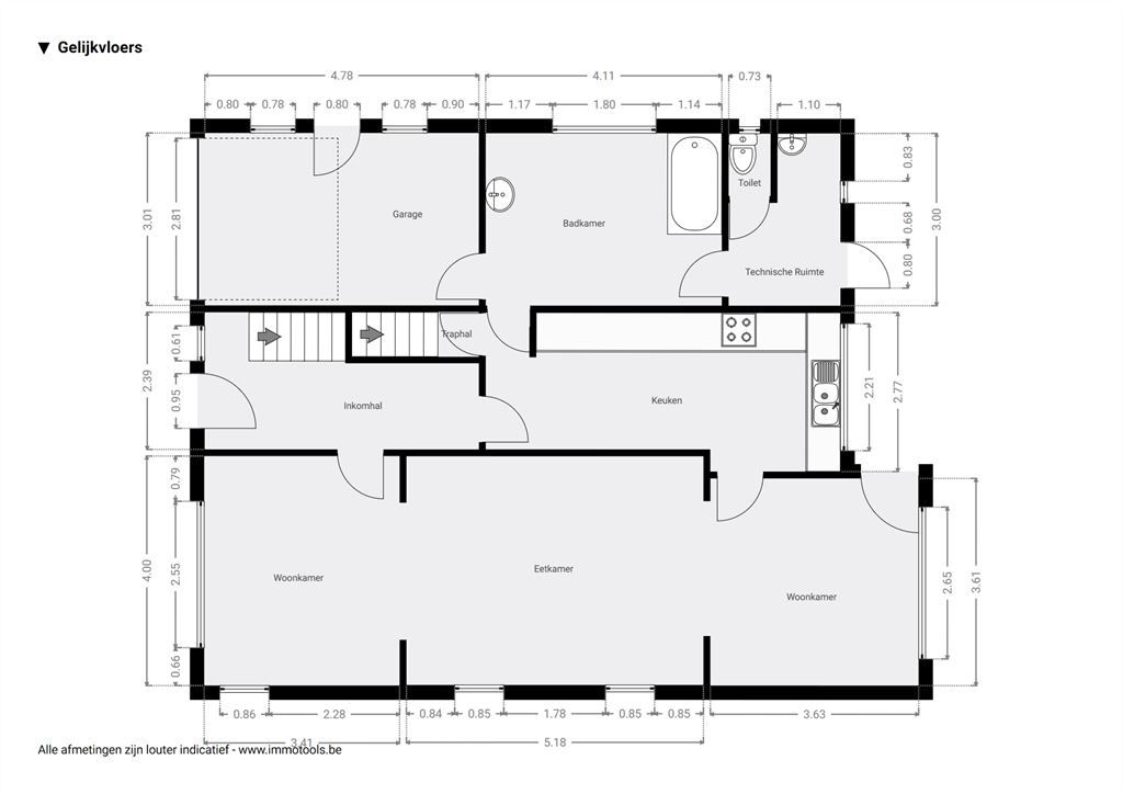
Binnen en buiten een zee van ruimte
De inkomhal met originele dambordtegel en houten trap zet meteen de toon. Charmant en authentiek. In de ruime woonkamer (52 m²) valt het daglicht royaal binnen door de grote ramen en je hebt hier een prachtig zicht op de tuin. De keuken is gedateerd, maar uitstekend onderhouden. Ook hier kijk je uit op het groen. Met een dampkap, gasvuur en dubbele spoelbak is de basis aanwezig, en de ruimte biedt volop mogelijkheden voor een moderne make-over. Verder vind je op het gelijkvloers nog een badkamer met bad en aansluiting voor wasmachine en droogkast, een praktische berging met apart toilet, een garage met automatische poort én een betegelde kelder.
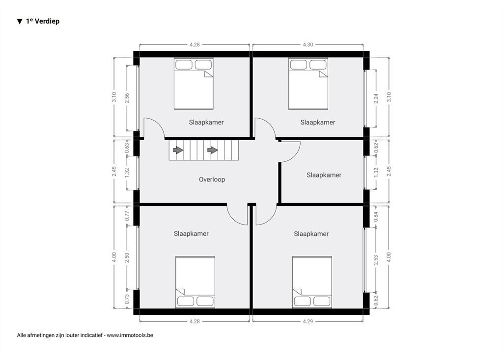
Vijf slaapkamers en een megazolder
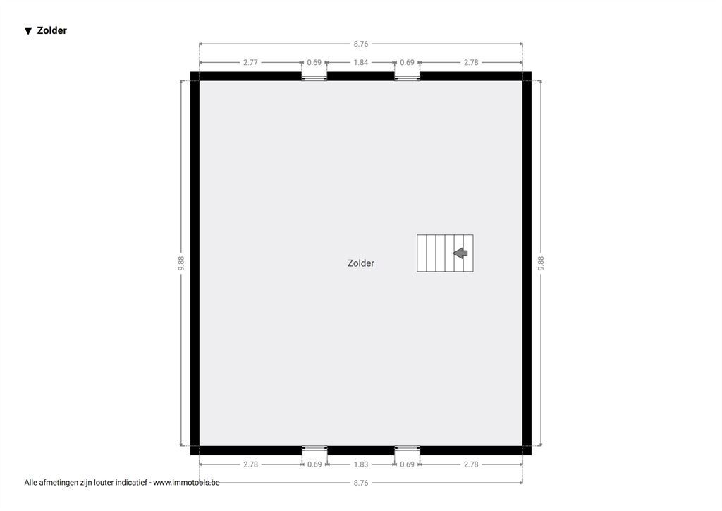
Op de eerste verdieping zijn er vijf volwaardige slaapkamers, waarvan sommige voorzien zijn van ingemaakte kasten, vliegenramen en rolluiken . De gigantische zolder van liefst 90 m² en een nokhoogte van 4,3 meter is een extra troef. Het is de ideale hobbykamer, bureau of speelruimte. Kan je niet kiezen? Geen probleem, meer dan plaats genoeg om de zolder in twee, drie of zelfs vier ruimtes op te delen.
Ook met de uitgestrekte tuin kan je alle kanten uit. Het terras en de bomen zijn er al. Een moestuin? Een paar speeltoestellen en een zandbak? Een voetbalveldje? Wie weet zelfs een zwembad? Alles kan.
Toplocatie in Tielen
Deze woning ligt in een zeer rustige straat, met een vlotte verbinding naar de E34. Scholen, winkels, het station en het sportcentrum Tielenhei zijn vlakbij. Op een paar kilometer vind je grote natuurgebieden voor een portie extra groen.
Energie
![]() |
- EPC Certificaat: 20251003-0003700592-RES-1
- Energieverbruik: 427 kWh/m²/jaar
- E-peil: E0
- Beglazing: Standaard dubbel
Extra budget nodig voor je renovatie?

Op de kaart

Downloads
Financieel
Prijs | |
---|---|
Kadastraal inkomen (niet geïndexeerd) | € 878 |
Kadastraal inkomen (geïndexeerd) | € 0 |
Berekening kosten
Je aankoopkosten? Die heb je snel berekent via de knop hieronder.
Bijkomende info
Gebouw
Bouwjaar | 1960 |
---|---|
Staat | Op te frissen |
Bouwcertificaat | Nee |
Bewoonbaar (m²) | 286 |
Verdieping | 0 |
Badkamers | 1 |
Slaapkamers | 5 |
Verdiepingen | 2 |
Garages | 1 |
Parkeerplaatsen | 2 |
Doucheruimtes | 0 |
Toiletten | 1 |
Faciliteiten
Keuken uitrusting | Standaard |
---|---|
Materiaal ramenomlijstingen | Hout |
Beglazing | Standaard dubbel |
Elektrisch keuringsattest | Nee |
Perceel
Overstromingsgevoelig | Geen |
---|---|
P-score | C |
G-score | A |
Voorkeurrecht | Nee |
Totale oppervlakte (m²) | 2639 |
Bebouwde oppervlakte (m²) | 0 |
Tuin oppervlakte (m²) | 2300 |
Oppervlakte terras (m²) | 0 |
Oriëntatie tuin | ZuidOost |
Vergunning
Vergunning | Vergunning beschikbaar |
---|
Uitrusting
Investeringspand | Nee |
---|---|
Geschikt voor praktijk | Nee |
Parking | Ja |
Garage | Ja |
Thuiskantoor | Nee |
Kelder | Ja |
Zolder | Ja |
Tuin | Ja |
Terras | Nee |
Lift | Nee |
Rioolaansluiting | Ja |
Gasaansluiting | Ja |
Wateraansluiting | Ja |
Elektriciteitsaansluiting | Ja |
TV aansluiting | Ja |
Internetaansluiting | Ja |
Telefoonaansluiting | Ja |