Landelijke woning, idyllisch gelegen op 3ha 59a 15ca te Koningshooikt
€ 798.000
Een pand van Immo Vercammen
Overzicht
- 190 m² bewoonbaar
- 35915 m² grond
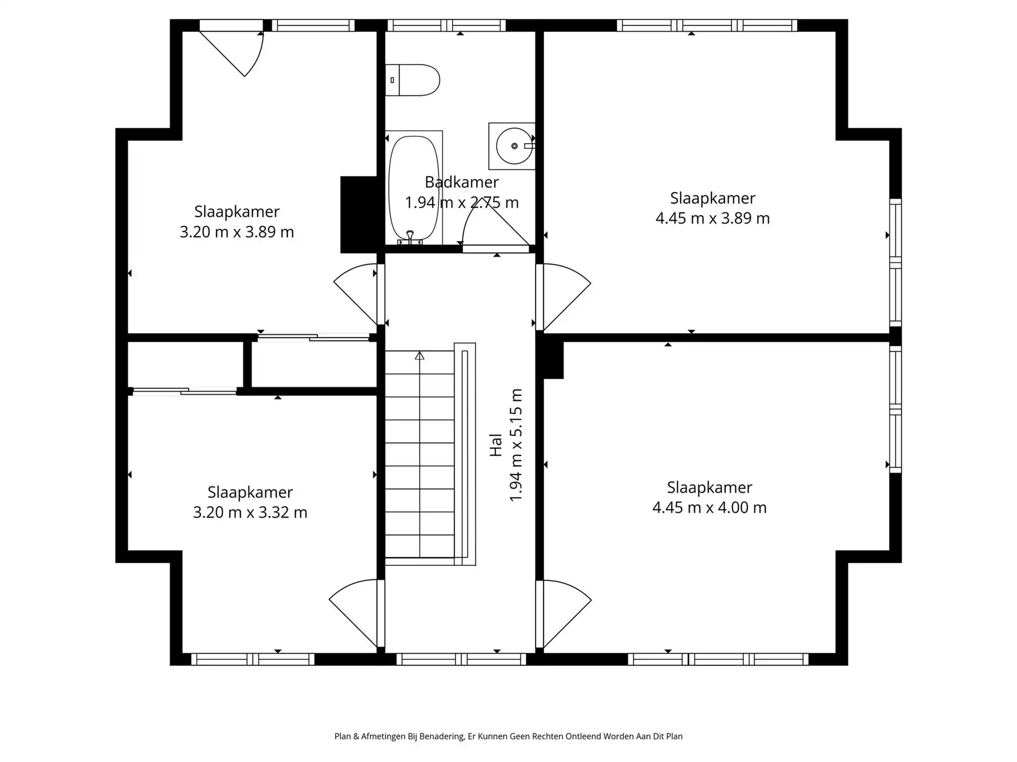
- 4 Slaapkamer(s)
- 1 Badkamer(s)
- 2 Toilet(ten)
- 1 Tuin
- 1 Garage(s)
Beschrijving
Landelijke woning met bijgebouw, idyllisch gelegen te Koningshooikt op een knap perceel van 3 hectare 59 are 15 ca.
Deze soliede woning werd steeds met de grootste zorg onderhouden en biedt diverse mogelijkheden. Een aangename woonkamer en aansluitend keuken bieden een ideale thuis om mensen te ontvangen. Vele raampartijen zorgen voor heel wat lichtinval en tevens een prachtig zicht op omliggende weilanden en groen. Verdere is er op het gelijkvloers nog een ruime bergplaats en een inpandige garage. Op de verdieping zijn er heden 4 slaapkamers en een badkamer ingericht. Een ruime bergzolder biedt heel wat potentieel.
En indien u niet binnen wenst te vertoeven, kan u van het ruime perceel van 3ha 59a 15ca genieten. Ideaal voor dierenliefhebbers of liefhebbers van groen en rust. In de tuin is er nog een ruime tuinberging voorzien.
Absolute A-locatie te midden van groen en weilanden, doch met vlotte bereikbaarheid via belangrijke invalswegen. Centraal gelegen tussen Brussel en Antwerpen.
Een unieke woning voor unieke mensen !
Renovatieplicht EPC: binnen 6 jaar na aankoop = verplichte renovatie tot label D of beter.
Energie
![]() |
- EPC Certificaat: 20260217-0003804475-RES-1
- Energieverbruik: 745 kWh/m²/jaar
- E-peil: E0
- Beglazing: Standaard dubbel
Extra budget nodig voor je renovatie?

Op de kaart

Downloads
- Overstromingsrapport (watertoets en risicozones) Den Bleeken Houw , Lier D0149AP0000.pdf
- Overstromingsrapport (watertoets en risicozones) Den Bleeken Houw , Lier D0150AP0000.pdf
- Overstromingsrapport (watertoets en risicozones) Mechelbaan (Kavel 4) 109, Lier D0148NP0000.pdf
- Gewestinfo-O2026-0005493-5_1_2026.pdf
- OnroerendErfgoed-O2026-0005495-5_1_2026.pdf
- RechtVanVoorkoop-O2026-0005494-5_1_2026.pdf
- Bodemattest.2.pdf
- Bodemattest.3.pdf
- Bodemattest.1.pdf
- EPC.pdf
Virtual tour
Ontdek het hele pand alvorens je bezoek via de virtuele tour, werkelijkheid gemaakt door Walkly. Geen verassingen tijdens het bezoek!
Beleef de virtuele tourFinancieel
| Prijs | |
|---|---|
| Kadastraal inkomen (niet geïndexeerd) | € 959 |
| Kadastraal inkomen (geïndexeerd) | € 0 |
Berekening kosten
Je aankoopkosten? Die heb je snel berekend via de knop hieronder.
Bijkomende info
Gebouw
| Bouwjaar | 1970 |
|---|---|
| Staat | Op te frissen |
| Bouwcertificaat | Nee |
| Bewoonbaar (m²) | 190 |
| Verdieping | 0 |
| Badkamers | 1 |
| Slaapkamers | 4 |
| Verdiepingen | 0 |
| Garages | 1 |
| Parkeerplaatsen | 3 |
| Doucheruimtes | 0 |
| Toiletten | 2 |
Faciliteiten
| Materiaal ramenomlijstingen | PVC |
|---|---|
| Beglazing | Standaard dubbel |
| Elektrisch keuringsattest | Nee |
Perceel
| Overstromingsgevoelig | Geen |
|---|---|
| P-score | C |
| G-score | A |
| Voorkeurrecht | Ja |
| Totale oppervlakte (m²) | 35915 |
| Bebouwde oppervlakte (m²) | 0 |
| Tuin oppervlakte (m²) | 0 |
| Oppervlakte terras (m²) | 0 |
| Oriëntatie tuin | Oost |
Vergunning
| Vergunning | Vergunning beschikbaar |
|---|---|
| Type gebied | Landelijk |
Uitrusting
| Investeringspand | Nee |
|---|---|
| Geschikt voor praktijk | Nee |
| Parking | Ja |
| Garage | Ja |
| Thuiskantoor | Nee |
| Kelder | Ja |
| Zolder | Ja |
| Tuin | Ja |
| Terras | Ja |
| Lift | Nee |
| Rioolaansluiting | Nee |
| Gasaansluiting | Nee |
| Wateraansluiting | Ja |
| Elektriciteitsaansluiting | Ja |
| TV aansluiting | Ja |
| Internetaansluiting | Ja |
| Telefoonaansluiting | Ja |



