RUIM DUPLEX APP MET 3 SLPKS
€ 259.000
Een pand van Janssen en Janssen
Overzicht
- 107 m² bewoonbaar
- 3 Slaapkamer(s)
- 1 Badkamer(s)
- 2 Toilet(ten)
Beschrijving
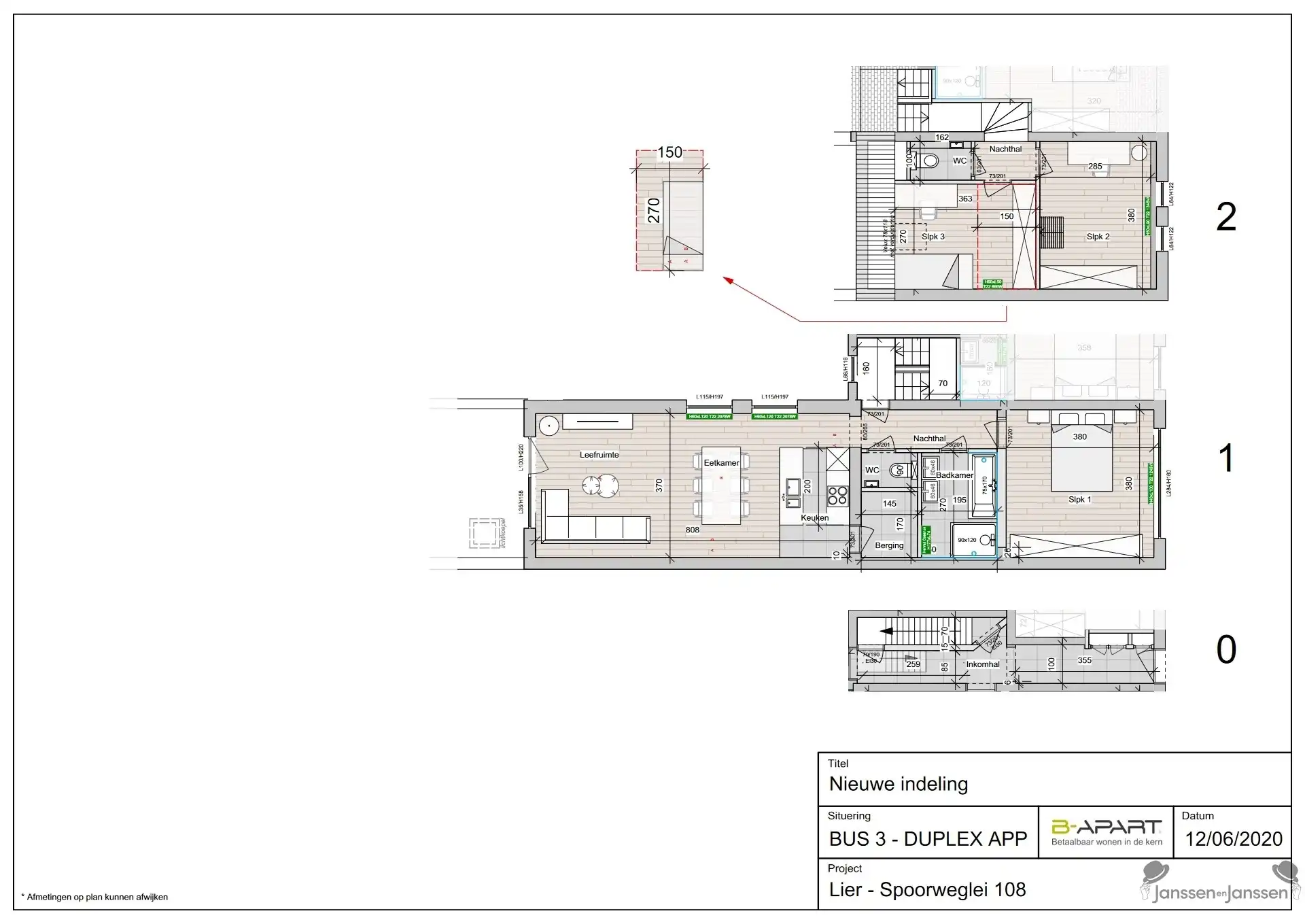
RUIM DUPLEX APPARTEMENT MET 3 SLPKS
In dit mooi, instapklaar, vernieuwd duplex appartement kan u zeker gezellig wonen. Gelegen op wandelafstand van alle faciliteiten. Zeker een bezoek waard!
EERSTE VERDIEPING:
- Woonkamer: 29 m² - Parketvloer, open keuken
- Keuken: Parketvloer, combi-oven, spoelbak, afwasmachine, inductievuur
- Berging: 2 m², keramische vloertegel, boiler, wasmachine, droogkast
- Toilet: 1 m², keramische vloertegel, handenwasser
- Gang: 3 m², parketvloer
- Badkamer: 5 m², keramische vloertegel, dubbel wasbak, regendouche, ligbad
- Slpk: 14 m², parketvloer
- Opmetingen zijn indicatief
TWEEDE VERDIEPING:
- Hal: 6m², vast tapijt, parket
- Toilet: 2 m², keramische vloertegel
- Slpk: 8 m², parket, dakvenster
- Slpk: 11 m², parket
- Mezzanine: 6 m², parket
- Opmetingen zijn indicatief
BIJZONDERHEDEN:
- Elektriciteit conform
- Bruikbare vloeroppervlakte (m²) EPC: 107 m²
- Asbestveilig, geen asbest
- Vernieuwd duplex-appartement, parketvloer
- EPC label D, renovatieplicht NIET van toepassing
- Gem. Kost: 15 euro / maand, beurtrol poetsen gang
- 3 slpks, badk met ligbad en douche
- Bouwjaar: 1875-1899
- Momenteel is het app verhuurd
- Geen terras, geen fietsenberging, vaak garages te huur in nabijheid
Vergunning-Woongebied-Geen rechterlijke herstelmaatregel of bestuurlijke maatregel opgelegd.-Geen voorkooprecht-Geen verkavelingsvergunning
Info: Nicki, 0496 02 35 68, Email: nf@janssenenjanssen.be
Energie
![]() |
- EPC Certificaat: 20200826-0002307721-RES-1
- Energieverbruik: 316 kWh/m²/jaar
- E-peil: E0
- Verwarming: Gas
- Beglazing: Standaard dubbel
Extra budget nodig voor je renovatie?

Op de kaart

Financieel
| Prijs | |
|---|---|
| Kadastraal inkomen (niet geïndexeerd) | € 469 |
| Kadastraal inkomen (geïndexeerd) | € 0 |
Berekening kosten
Je aankoopkosten? Die heb je snel berekend via de knop hieronder.
Bijkomende info
Gebouw
| Staat | Zo goed als nieuw |
|---|---|
| Bouwcertificaat | Nee |
| Bewoonbaar (m²) | 107 |
| Verdieping | 2 |
| Badkamers | 1 |
| Slaapkamers | 3 |
| Verdiepingen | 2 |
| Garages | 0 |
| Parkeerplaatsen | 0 |
| Doucheruimtes | 0 |
| Toiletten | 2 |
Faciliteiten
| Materiaal ramenomlijstingen | PVC |
|---|---|
| Beglazing | Standaard dubbel |
| Brandstof primaire verwarming | Gas |
| Elektrisch keuringsattest | Ja |
Perceel
| Overstromingsgevoelig | Geen |
|---|---|
| P-score | A |
| G-score | A |
| Voorkeurrecht | Nee |
| Bebouwde oppervlakte (m²) | 0 |
| Tuin oppervlakte (m²) | 0 |
| Oppervlakte terras (m²) | 0 |
| Oriëntatie tuin | Noordwest |
Vergunning
| Vergunning | Vergunning beschikbaar |
|---|---|
| Verkavelingsvergunning | Geen beschikbaar |
Uitrusting
| Investeringspand | Nee |
|---|---|
| Geschikt voor praktijk | Nee |
| Parking | Nee |
| Garage | Nee |
| Thuiskantoor | Nee |
| Kelder | Nee |
| Zolder | Nee |
| Tuin | Nee |
| Terras | Nee |
| Lift | Nee |
| Rioolaansluiting | Nee |
| Gasaansluiting | Nee |
| Wateraansluiting | Nee |
| Elektriciteitsaansluiting | Nee |
| TV aansluiting | Nee |
| Internetaansluiting | Nee |
| Telefoonaansluiting | Nee |
Appartementsblok
| Aantal verdiepingen | 2 |
|---|---|
| Lift | Nee |


