Grotendeels gemoderniseerde woning te Lier
€ 349.000
Een pand van Immo Vercammen
Overzicht
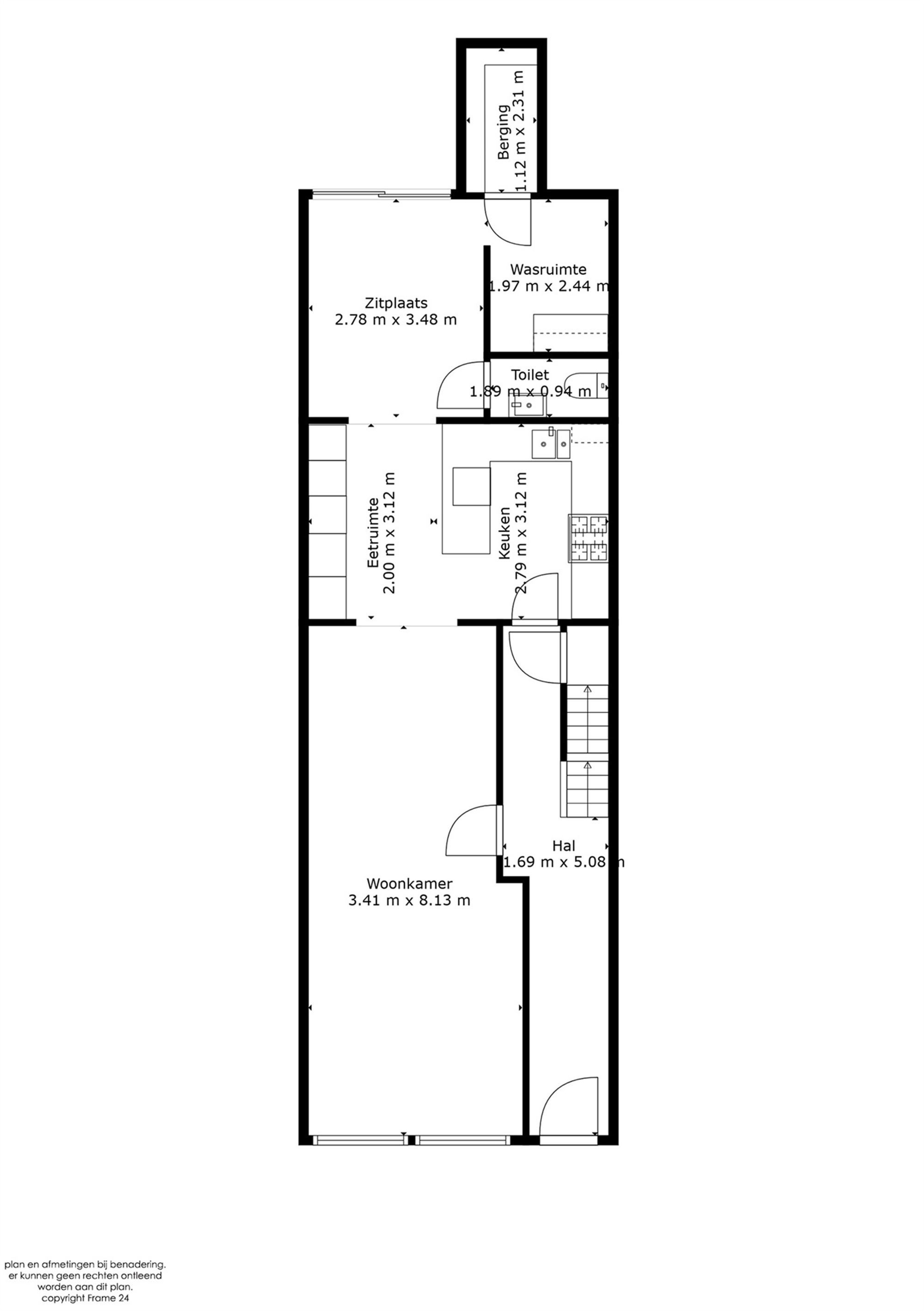
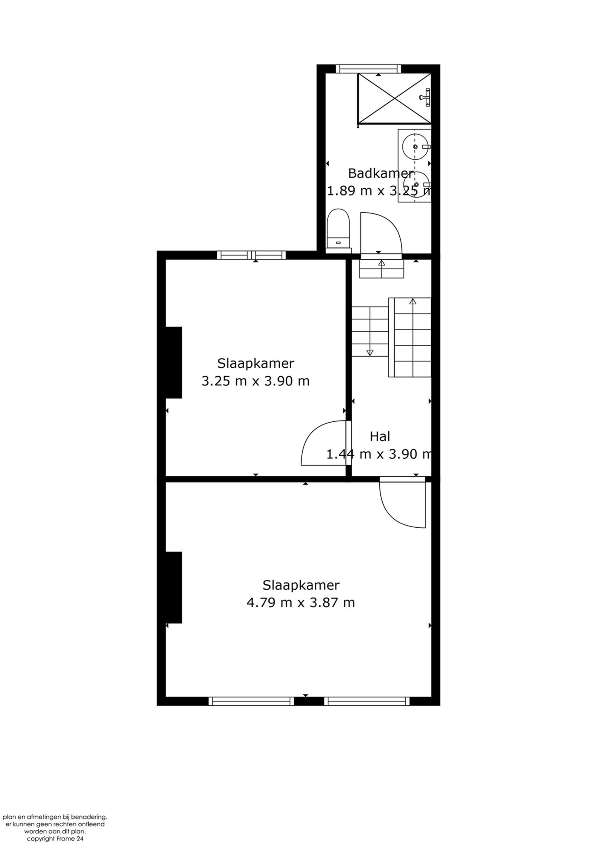
- 158 m² bewoonbaar
- 270 m² grond
- 4 Slaapkamer(s)
- 1 Badkamer(s)
- 2 Toilet(ten)
- 1 Tuin
Beschrijving
Grotendeels gemoderniseerde gezinswoning met 4 slaapkamers, gunstig gelegen te Lier.
Deze mooie woning werd grotendeels gemoderniseerd sinds 2018, met o.a. volgende vernieuwingswerken: vloeren op het gelijkvloers (2018), keuken (2019), condensatieketel op aardgas (2022), badkamer met inloopdouche, etc. Op het gelijkvloers is er een gezellige en lichtrijke woonkamer met aansluitend open leefkeuken en veranda, een ideale thuis om mensen te ontvangen. Op de verdiepingen zijn er in totaal 4 slaapkamers en een knappe badkamer met inloopdouche. Voldoende stockageruimte is gegarandeerd dankzij een berging, wasruimte en een praktische kelder. En indien u niet binnen wenst te vertoeven, kan u heerlijk tot rust komen in de aangename, perfect zuidwest georiënteerde tuin of op het ruime terras met zonnetent.
Een unieke kans voor wie een woning zoekt gelegen nabij het stadscentrum, scholen en winkels. Vlotte bereikbaarheid is tevens een troef, een centrale ligging op wandelafstand van treinstation en openbaar vervoer.
Bezoek enkel na afspraak, vrijblijvende info op kantoor: 015/755 444 of info@immovercammen.be
Energie
![]() |
- EPC Certificaat: 20250606-0003619605-RES-1
- Energieverbruik: 293 kWh/m²/jaar
- E-peil: E0
- Verwarming: Gas
- Beglazing: Standaard dubbel
Op de kaart

Virtual tour
Ontdek het hele pand alvorens je bezoek via de virtuele tour, werkelijkheid gemaakt door Walkly. Geen verassingen tijdens het bezoek!
Beleef de virtuele tourFinancieel
| Prijs | |
|---|---|
| Kadastraal inkomen (niet geïndexeerd) | € 570 |
| Kadastraal inkomen (geïndexeerd) | € 0 |
Berekening kosten
Je aankoopkosten? Die heb je snel berekent via de knop hieronder.
Bijkomende info
Gebouw
| Staat | Goed onderhouden |
|---|---|
| Bouwcertificaat | Nee |
| Bewoonbaar (m²) | 158 |
| Verdieping | 0 |
| Badkamers | 1 |
| Slaapkamers | 4 |
| Verdiepingen | 0 |
| Garages | 0 |
| Parkeerplaatsen | 0 |
| Doucheruimtes | 0 |
| Toiletten | 2 |
Faciliteiten
| Keuken uitrusting | Luxueus uitgerust |
|---|---|
| Materiaal ramenomlijstingen | Aluminium |
| Beglazing | Standaard dubbel |
| Brandstof primaire verwarming | Gas |
| Elektrisch keuringsattest | Nee |
Perceel
| Overstromingsgevoelig | Geen |
|---|---|
| P-score | B |
| G-score | B |
| Voorkeurrecht | Ja |
| Totale oppervlakte (m²) | 270 |
| Bebouwde oppervlakte (m²) | 0 |
| Tuin oppervlakte (m²) | 0 |
| Oppervlakte terras (m²) | 0 |
| Oriëntatie tuin | Zuidwest |
Vergunning
| Vergunning | Vergunning beschikbaar |
|---|
Uitrusting
| Investeringspand | Nee |
|---|---|
| Geschikt voor praktijk | Nee |
| Parking | Nee |
| Garage | Nee |
| Thuiskantoor | Nee |
| Kelder | Ja |
| Zolder | Nee |
| Tuin | Ja |
| Terras | Ja |
| Lift | Nee |
| Rioolaansluiting | Ja |
| Gasaansluiting | Ja |
| Wateraansluiting | Ja |
| Elektriciteitsaansluiting | Ja |
| TV aansluiting | Ja |
| Internetaansluiting | Ja |
| Telefoonaansluiting | Ja |
