Volledig gerenoveerde woning vlakbij centrum Lier
€ 395.000
Een pand van Immo Vasta
Overzicht
- 116 m² bewoonbaar
- 132 m² grond
- 3 Slaapkamer(s)
- 1 Badkamer(s)
- 2 Toilet(ten)
- 1 Tuin
Beschrijving
Rustig wonen aan de rand van het centrum van Lier, in een kindvriendelijke buurt met jonge gezinnen, vlakbij de Veemarkt, het Zaat en natuurgebied Nazareth Zuid. Deze instapklare woning werd in 2025 van A tot Z gerenoveerd en combineert hedendaags comfort met veel licht, een slimme indeling en een heerlijke tuin. Extra comfort? Airco, slimme verlichting en overal vliegenramen op maat.
Strak, licht & comfortabel
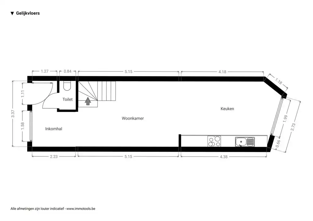
Je komt binnen via de inkomhal met gastentoilet. De grote grijze tegel loopt door over de volledige benedenverdieping en versterkt het open, rustige gevoel. Vooraan ligt de woonkamer badend in natuurlijk licht dankzij de grote ramen. Achteraan sluit de leefkeuken naadloos aan. De strakke wandkeuken in houtlook is volledig uitgerust met inductievuur, dampkap, combi-oven, koelkast, diepvries, vaatwasser, spoelbak en heel wat kastruimte. Het grote schuifraam verbindt binnen en buiten en brengt je naar het terras en de tuin.
Badkamer & slaapkamers
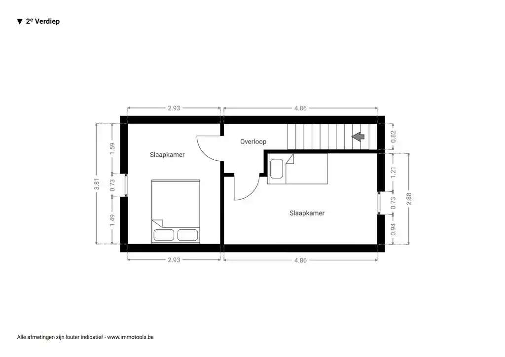
Op de eerste verdieping vind je een moderne badkamer met ligbad, inloopdouche, dubbele lavabo met meubel en spiegel, handdoekenradiator en natuurlijke verluchting. Daarnaast is er een aparte was-/bergruimte met aansluitingen voor wasmachine en droogkast en een afzonderlijk toilet. De slaapkamer op deze verdieping is voorzien van airco. De tweede verdieping telt nog twee volwaardige slaapkamers, waarvan één met airco. Beide zolderkamers zijn uitgerust met elektronische Velux-rolluiken.
Zonnige tuin met extra buitenplek
De ruime tuin met terras is onderhoudsvriendelijk en perfect om te genieten van de namiddag- en avondzon. Achteraan staat een nieuw tuinhuis met overkapping, ideaal als extra bergruimte, hobbyplek of gezellige lounge, ook bij minder goed weer.
Groen, rustig & toch overal dichtbij
De Maasfortbaan ligt in een rustige wijk met veel jonge gezinnen, op wandelafstand van winkels en openbaar vervoer. Het bruisende centrum van Lier ligt vlakbij, net als de Veemarkt en het Zaat. Zin in natuur? Natuurgebied Nazareth Zuid ligt op een boogscheut. Dankzij de vlotte verbinding met invalswegen ben je ook snel onderweg.
Energie
![]() |
- EPC Certificaat: 20250220-0003531414-RES-1
- Energieverbruik: 115 kWh/m²/jaar
- E-peil: E0
- Verwarming: Gas
- Beglazing: Standaard dubbel
Op de kaart

Financieel
| Prijs | |
|---|---|
| Kadastraal inkomen (niet geïndexeerd) | € 441 |
| Kadastraal inkomen (geïndexeerd) | € 0 |
Berekening kosten
Je aankoopkosten? Die heb je snel berekend via de knop hieronder.
Bijkomende info
Gebouw
| Staat | Goed onderhouden |
|---|---|
| Bouwcertificaat | Nee |
| Bewoonbaar (m²) | 116 |
| Verdieping | 0 |
| Badkamers | 1 |
| Slaapkamers | 3 |
| Verdiepingen | 2 |
| Garages | 0 |
| Parkeerplaatsen | 0 |
| Doucheruimtes | 0 |
| Toiletten | 2 |
Faciliteiten
| Keuken uitrusting | Luxueus uitgerust |
|---|---|
| Materiaal ramenomlijstingen | PVC |
| Beglazing | Standaard dubbel |
| Brandstof primaire verwarming | Gas |
| Elektrisch keuringsattest | Ja |
Perceel
| Overstromingsgevoelig | Geen |
|---|---|
| P-score | B |
| G-score | B |
| Voorkeurrecht | Nee |
| Totale oppervlakte (m²) | 132 |
| Bebouwde oppervlakte (m²) | 0 |
| Tuin oppervlakte (m²) | 77 |
| Oppervlakte terras (m²) | 0 |
Vergunning
| Vergunning | Aanvraag ingediend |
|---|
Uitrusting
| Investeringspand | Nee |
|---|---|
| Geschikt voor praktijk | Nee |
| Parking | Nee |
| Garage | Nee |
| Thuiskantoor | Nee |
| Kelder | Nee |
| Zolder | Nee |
| Tuin | Ja |
| Terras | Nee |
| Lift | Nee |
| Rioolaansluiting | Nee |
| Gasaansluiting | Nee |
| Wateraansluiting | Nee |
| Elektriciteitsaansluiting | Nee |
| TV aansluiting | Nee |
| Internetaansluiting | Nee |
| Telefoonaansluiting | Nee |
