Statige nieuwbouw in landelijke stijl in Oelegem (Ranst)
€ 630.000
Een pand van KOP IMMO
Jouw zoektocht
Overzicht
- 229 m² bewoonbaar
- 400 m² grond
- 4 Slaapkamer(s)
- 2 Badkamer(s)
- 2 Toilet(ten)
- 1 Tuin
Beschrijving
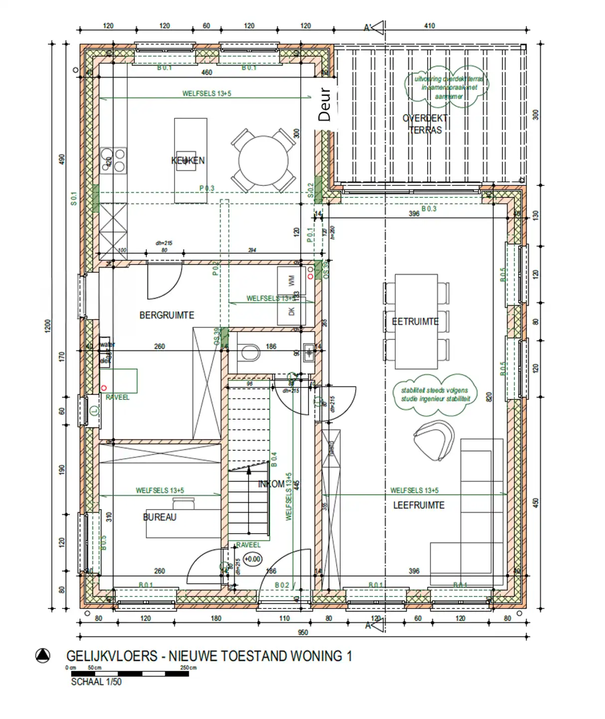
Op het gelijkvloers word je ontvangen in een aangename leefruimte met open keuken, waar een deur rechtstreeks uitgeeft op de tuin. Ideaal voor wie binnen en buiten graag naadloos in elkaar laat overvloeien.
Daarnaast is er een grote berging, een apart toilet en aan de voorzijde een volwaardige bureauruimte. Perfect voor thuiswerk of voor wie een kleine zelfstandige activiteit aan huis wil combineren.
Op de verdieping zijn er drie slaapkamers voorzien.
De master bedroom beschikt over een eigen badkamer-en-suite, terwijl er daarnaast nog een aparte, tweede badkamer aanwezig is.
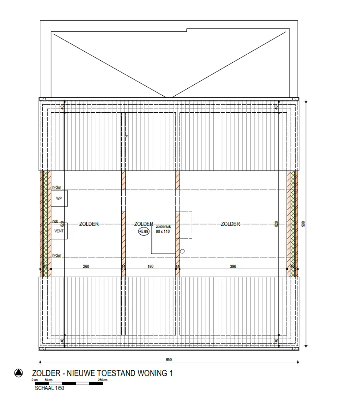
Extra troef is de ruime zolderverdieping.
Buiten geniet je van een privatieve, zuidgerichte tuin.
Vooraan de woning is er bovendien een private autostaanplaats.
Afwerking zelf te kiezen volgens lastenboek.
Algemeen:
- Verwachte oplevering: september / oktober 2026
- 6% BTW mogelijk (mits voldaan aan de voorwaarden)
- Energiezuinige woning met E-peil 20
- Betaling bij akte – geen betalingen in schijven
Bezoeken gebeuren rechtstreeks met de aannemer zelf. Zo krijg je een correct en inhoudelijk sterk bezoek, met onmiddellijke antwoorden over uitvoering, materialen en afwerking.
Waarde constructie: € 420.000 (btw van toepassing).
Waarde grond: € 210.000 (registratierechten van toepassing).
De gebruikte renderbeelden zijn louter ter illustratie en kunnen afwijken van de uiteindelijke uitvoering.
Stedenbouwkundige inlichtingen in aanvraag.
Welkom in een woning die meegroeit met jouw leven.
Op het gelijkvloers word je ontvangen in een aangename leefruimte met open keuken, waar een deur rechtstreeks uitgeeft op de tuin. Ideaal voor wie binnen en buiten graag naadloos in elkaar laat overvloeien.
Daarnaast is er een grote berging, een apart toilet en aan de voorzijde een volwaardige bureauruimte. Perfect voor thuiswerk of voor wie een kleine zelfstandige activiteit aan huis wil combineren.
Op de verdieping zijn er drie slaapkamers voorzien.
De master bedroom beschikt over een eigen badkamer-en-suite, terwijl er daarnaast nog een aparte, tweede badkamer aanwezig is.
Extra troef is de ruime zolderverdieping.
Buiten geniet je van een privatieve, zuidgerichte tuin waar rust en zon centraal staan.
Vooraan de woning is er bovendien een private autostaanplaats.
Afwerking zelf te kiezen volgens lastenboek.
Algemeen:
- Verwachte oplevering: september / oktober 2026
- 6% BTW mogelijk (mits voldaan aan de voorwaarden)
- Energiezuinige woning met E-peil 20
- Betaling bij akte – geen betalingen in schijven
Bezoeken gebeuren rechtstreeks met de aannemer zelf. Zo krijg je een correct en inhoudelijk sterk bezoek, met onmiddellijke antwoorden over uitvoering, materialen en afwerking.
Waarde constructie: € 420.000 (btw van toepassing).
Waarde grond: € 210.000 (registratierechten van toepassing).
De gebruikte renderbeelden zijn louter ter illustratie en kunnen afwijken van de uiteindelijke uitvoering.
Stedenbouwkundige inlichtingen in aanvraag.
Energie
![]() |
Op de kaart

Financieel
| Prijs |
|---|
Berekening kosten
Je aankoopkosten? Die heb je snel berekend via de knop hieronder.
Bijkomende info
Gebouw
| Bouwjaar | 2026 |
|---|---|
| Staat | Nieuw |
| Bewoonbaar (m²) | 229 |
| Gevels | 4 |
| Badkamers | 2 |
| Slaapkamers | 4 |
| Verdiepingen | 2 |
| Garages | 0 |
| Parkeerplaatsen | 0 |
| Doucheruimtes | 2 |
| Toiletten | 2 |
Faciliteiten
| Type vloer | |
|---|---|
| Keuken uitrusting | Luxueus uitgerust |
| Elektrisch keuringsattest | Nee |
Perceel
| Overstromingsgevoelig | Geen |
|---|---|
| P-score | A |
| G-score | A |
| Voorkeurrecht | Nee |
| Totale oppervlakte (m²) | 400 |
| Bebouwde oppervlakte (m²) | 114 |
| Tuin oppervlakte (m²) | 283 |
| Oriëntatie voorgevel | Noord |
| Oriëntatie terras | Zuid |
Vergunning
| Vergunning | Vergunning beschikbaar |
|---|---|
| Verkavelingsvergunning | Vergunning beschikbaar |
| Bouwovertreding | Geen |
| Bouwovertreding dagvaardiging | Geen |
Uitrusting
| Geschikt voor rolstoelgebruikers | Ja |
|---|---|
| Geschikt voor praktijk | Ja |
| Parking | Ja |
| Garage | Nee |
| Thuiskantoor | Ja |
| Zolder | Ja |
| Tuin | Ja |
| Terras | Ja |
| Lift | Nee |
| Wateraansluiting | Ja |
| Elektriciteitsaansluiting | Ja |
| Zwembad | Nee |
| Zwemvijver | Nee |
| Videofoon | Ja |
