In optie
Te renoveren handelspand met woonst in centrum Hove
€ 215.000
Een pand van De Boer & Partners Hove
Overzicht
- 100 m² grond
- 2 Slaapkamer(s)
- 1 Badkamer(s)
Beschrijving
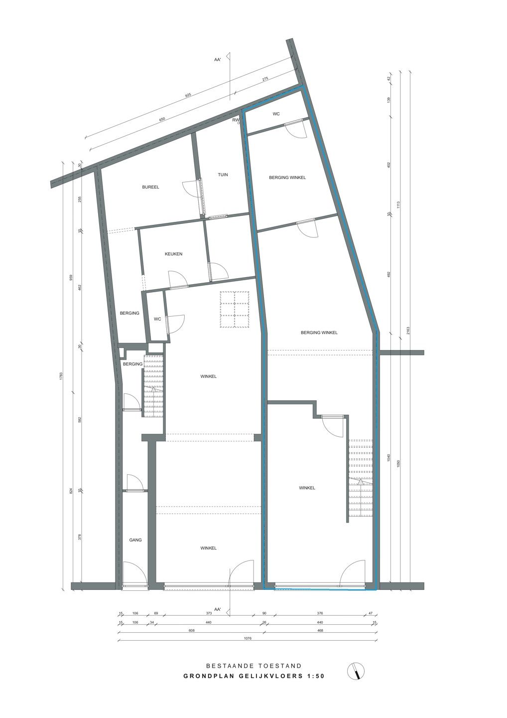
Te renoveren handelspand met woonst in centrum Hove
Algemeen:
- Momenteel ingedeeld als handelspand met bovenliggende woonst
- Volledig casco
- Handelspand is leegstaand
- Uitbreidingsmogelijkheden
- Verschillende uitbatingsmogelijkheden: wonen, ook voor handel, dienstverlening, ambacht
- Zeer interessant pand voor uitbating van groepspraktijken etc.
Onmiddellijke omgeving:
- Zeer vlotte bereikbaarheid naar Antwerpen en Brussel (trein of E19)
- Pal in centrum van Hove met scholen, winkels en openbaar vervoer op wandelafstand
- Voldoende parkeergelegenheid in nabije omgeving
Stedenbouwkundige inlichtingen in aanvraag.
Voor meer informatie kan u terecht op www.deboerenpartners.be.
Algemeen:
- Momenteel ingedeeld als handelspand met bovenliggende woonst
- Volledig casco
- Handelspand is leegstaand
- Uitbreidingsmogelijkheden
- Verschillende uitbatingsmogelijkheden: wonen, ook voor handel, dienstverlening, ambacht
- Zeer interessant pand voor uitbating van groepspraktijken etc.
Onmiddellijke omgeving:
- Zeer vlotte bereikbaarheid naar Antwerpen en Brussel (trein of E19)
- Pal in centrum van Hove met scholen, winkels en openbaar vervoer op wandelafstand
- Voldoende parkeergelegenheid in nabije omgeving
Stedenbouwkundige inlichtingen in aanvraag.
Voor meer informatie kan u terecht op www.deboerenpartners.be.
Te renoveren handelspand met woonst in centrum Hove
Energie
![]() |
- EPC Certificaat: 1832860
- Energieverbruik: 663 kWh/m²/jaar
Let op, de renovatieverplichting in Vlaanderen verplicht de koper om deze woning na aankoop te renoveren tot een betere energieprestatie. Lees er alles over in dit artikel
Extra budget nodig voor je renovatie?
De overheid helpt je dit pand energetisch te renoveren! Hieronder zie je het premiebedrag dat je mogelijks van de overheid krijgt.
Het huidige EPC-label is:

Op de kaart

Downloads
Financieel
| Prijs | |
|---|---|
| Kadastraal inkomen (niet geïndexeerd) | € 1.351 |
Berekening kosten
Je aankoopkosten? Die heb je snel berekent via de knop hieronder.
Bijkomende info
Gebouw
| Bouwjaar | 1945 |
|---|---|
| Gevels | 2 |
| Badkamers | 1 |
| Slaapkamers | 2 |
| Garages | 0 |
| Parkeerplaatsen | 0 |
Faciliteiten
| Type vloer |
|---|
Perceel
| P-score | A |
|---|---|
| G-score | A |
| Voorkeurrecht | Nee |
| Totale oppervlakte (m²) | 100 |
| Tuin oppervlakte (m²) | 0 |
Vergunning
| Vergunning | Geen beschikbaar |
|---|---|
| Verkavelingsvergunning | Geen beschikbaar |
Uitrusting
| Parking | Nee |
|---|---|
| Garage | Nee |
| Tuin | Nee |
| Terras | Nee |
Een pand van
De Boer & Partners Hove
De Boer & Partners
Met onze 43 jaar ervaring en 19 kantoren zijn we zonder twijfel uitgegroeid tot een vaste waarde op de vastgoedmarkt in België. Een persoonlijke aanpak is voor ons heel belangrijk, we garanderen een persoonlijke en professionele service waar een grote passie altijd aanwezig is. Onze medewerkers kennen hun regio door en door en staan klaar om u met enthousiasme te begeleiden bij de aankoop, verkoop en verhuur van uw eigendom. We hebben een grote en diverse verkoopportefeuille en zijn thuis in elk marktsegment. Wij staan niet voor een bepaalde prijsklasse, wel voor persoonlijke service en kwaliteit.
6504774
Leer meer over vastgoed
Nieuw
24 November 2025
Uitgezocht voor jouw gemeente: Hoeveel stijgt de waarde van je woning door een renovatie?
22 October 2025
Hoeveel kan ik lenen om een huis te kopen?
11 June 2025
Huis kopen met bouwovertreding? Dit moet je weten
11 May 2025



