Nieuwbouw bedrijfsgebouw te koop te Kontich
€ 2.250.000
Een pand van EPMC NV
Overzicht
- 1471 m² bewoonbaar
- 2894 m² grond
Beschrijving
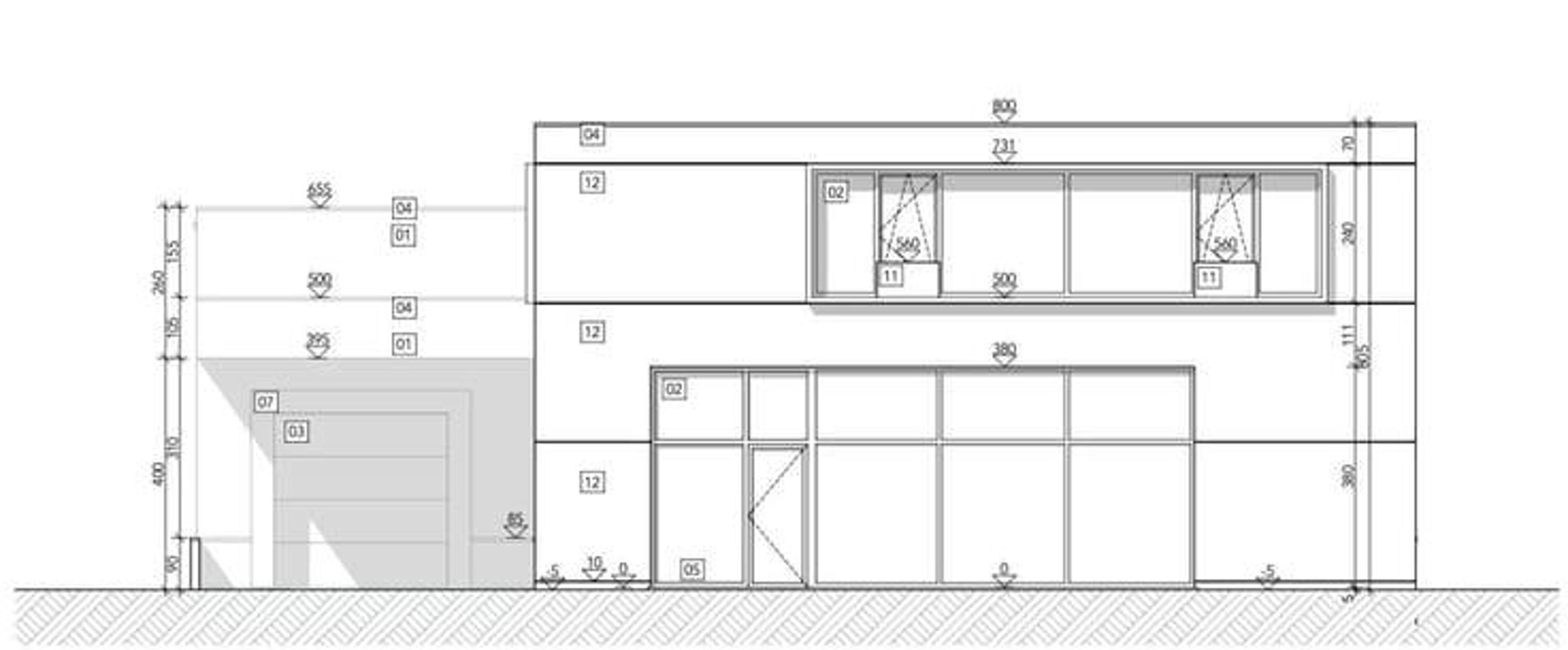
Dit modern en functioneel bedrijfsgebouw is gelegen in de Blauwesteenstraat te Kontich, op een strategische locatie met uitstekende bereikbaarheid dankzij de directe aansluiting op de E19 Antwerpen–Brussel en de nabijheid van belangrijke invalswegen.
Het pand omvat een totale oppervlakte van ca. 1.471 m², als volgt ingedeeld:
Magazijnruimte: ca. 1.119 m²
Showroom/kantoor gelijkvloers: ca. 174 m²
Kantoorruimte verdieping: ca. 178 m²
Het magazijn is toegankelijk via drie sectionale poorten en beschikt tevens over één laad- en loskade, wat een vlotte logistieke werking garandeert.
Het gebouw wordt casco + opgeleverd, waardoor de verdere afwerking volledig naar eigen wens kan worden uitgevoerd. Dit biedt de mogelijkheid om de ruimtes optimaal af te stemmen op de specifieke activiteiten en huisstijl van de toekomstige gebruiker.
De omgeving kenmerkt zich door een dynamisch ondernemersklimaat, waar zichtbaarheid, professionaliteit en bereikbaarheid centraal staan.
Lastenboek beschikbaar op aanvraag.
Specificaties van het gebouw zijn onderaan terug te vinden.
Het pand omvat een totale oppervlakte van ca. 1.471 m², als volgt ingedeeld:
Magazijnruimte: ca. 1.119 m²
Showroom/kantoor gelijkvloers: ca. 174 m²
Kantoorruimte verdieping: ca. 178 m²
Het magazijn is toegankelijk via drie sectionale poorten en beschikt tevens over één laad- en loskade, wat een vlotte logistieke werking garandeert.
Het gebouw wordt casco + opgeleverd, waardoor de verdere afwerking volledig naar eigen wens kan worden uitgevoerd. Dit biedt de mogelijkheid om de ruimtes optimaal af te stemmen op de specifieke activiteiten en huisstijl van de toekomstige gebruiker.
De omgeving kenmerkt zich door een dynamisch ondernemersklimaat, waar zichtbaarheid, professionaliteit en bereikbaarheid centraal staan.
Lastenboek beschikbaar op aanvraag.
Specificaties van het gebouw zijn onderaan terug te vinden.
Dit modern en functioneel bedrijfsgebouw is gelegen in de Blauwesteenstraat te Kontich, op een strategische locatie met uitstekende bereikbaarheid dankzij de directe aansluiting op de E19 Antwerpen–Brussel en de nabijheid van belangrijke invalswegen.
Het pand omvat een totale oppervlakte van ca. 1.471 m², als volgt ingedeeld:
Magazijnruimte: ca. 1.119 m²
Showroom/kantoor gelijkvloers: ca. 174 m²
Kantoorruimte verdieping: ca. 178 m²
Het magazijn is toegankelijk via drie sectionale poorten en beschikt tevens over één laad- en loskade, wat een vlotte logistieke werking garandeert.
Het gebouw wordt casco + opgeleverd, waardoor de verdere afwerking volledig naar eigen wens kan worden uitgevoerd. Dit biedt de mogelijkheid om de ruimtes optimaal af te stemmen op de specifieke activiteiten en huisstijl van de toekomstige gebruiker.
De omgeving kenmerkt zich door een dynamisch ondernemersklimaat, waar zichtbaarheid, professionaliteit en bereikbaarheid centraal staan.
Lastenboek beschikbaar op aanvraag.
Specificaties van het gebouw zijn onderaan terug te vinden.
Het pand omvat een totale oppervlakte van ca. 1.471 m², als volgt ingedeeld:
Magazijnruimte: ca. 1.119 m²
Showroom/kantoor gelijkvloers: ca. 174 m²
Kantoorruimte verdieping: ca. 178 m²
Het magazijn is toegankelijk via drie sectionale poorten en beschikt tevens over één laad- en loskade, wat een vlotte logistieke werking garandeert.
Het gebouw wordt casco + opgeleverd, waardoor de verdere afwerking volledig naar eigen wens kan worden uitgevoerd. Dit biedt de mogelijkheid om de ruimtes optimaal af te stemmen op de specifieke activiteiten en huisstijl van de toekomstige gebruiker.
De omgeving kenmerkt zich door een dynamisch ondernemersklimaat, waar zichtbaarheid, professionaliteit en bereikbaarheid centraal staan.
Lastenboek beschikbaar op aanvraag.
Specificaties van het gebouw zijn onderaan terug te vinden.
Energie
Op de kaart

Financieel
| Prijs |
|---|
Berekening kosten
Je aankoopkosten? Die heb je snel berekent via de knop hieronder.
Bijkomende info
Gebouw
| Bouwjaar | 2026 |
|---|---|
| Staat | Nieuw |
| Bewoonbaar (m²) | 1471 |
| Badkamers | 0 |
| Slaapkamers | 0 |
| Parkeerplaatsen | 0 |
Faciliteiten
| Type vloer |
|---|
Perceel
| P-score | A |
|---|---|
| G-score | A |
| Voorkeurrecht | Nee |
| Totale oppervlakte (m²) | 2894 |
| Tuin oppervlakte (m²) | 0 |
Vergunning
| Vergunning | Vergunning beschikbaar |
|---|---|
| Verkavelingsvergunning | Geen beschikbaar |
| Bouwovertreding | Geen |
| Bouwovertreding dagvaardiging | Geen |
Uitrusting
| Parking | Nee |
|---|---|
| Garage | Nee |
| Tuin | Nee |
| Terras | Nee |
| Wateraansluiting | Ja |
| Elektriciteitsaansluiting | Ja |
| Telefoonaansluiting | Ja |
Een pand van
EPMC NV
EPMC : Ondernemers in Vastgoed!
Welkom bij de Ondernemers in Vastgoed
EPMC is reeds 40 jaar toonaangevend expert in de verkoop en verhuur van bedrijfsmatig vastgoed op de Antwerpse markt.
Wij focussen op industriële, administratieve en commerciële panden.
Leer meer over vastgoed
04 January 2026
Zoek je een kantoor, een magazijn of… iets ertussenin? Bedrijfsvastgoed uitgelegd
05 November 2024
Bedrijfsvastgoed in transitie: ontdek de toekomst van werkplekken
16 October 2024
Opbrengsteigendom: een slim pad naar passief inkomen en vermogensgroei
09 September 2024