Op te frissen woning met 3-4 slaapkamers & tuin
€ 435.000
Een pand van De Boer & Partners Kontich
Favoriet
Jouw zoektocht
Jouw scoretabel voor dit pand
Aan het laden...
Jouw geplande bezichtigingen
Aan het laden...
Overzicht
- 163 m² bewoonbaar
- 235 m² grond
- 4 Slaapkamer(s)
- 2 Badkamer(s)
- 3 Toilet(ten)
- 1 Tuin
Beschrijving
Op te frissen woning met 3-4 slaapkamers en onderhoudsvriendelijke tuin in het centrum van Kontich
Algemeen:
- Renovatie uitgevoerd in 2008
- Uitbreidingsmogelijkheden
- Bewoonbare oppervlakte: ca. 163 m²
- Grote leefruimte
- Volledig geïnstalleerde keuken
- 3-4 ruime slaapkamers
- Badkamer met ligbad en douchekamer
- Onderhoudsvriendelijke OOST tuin met groenzicht
- Volledige privacy
- Woning is momenteel verhuurd
Onmiddellijke omgeving:
- Pal in het centrum van Kontich met scholen, parken, winkels en openbaar vervoer op fiets- en wandelafstand
- Zeer vlotte bereikbaarheid naar Antwerpen en Brussel (E19 en trein)
Technische kenmerken:
- Deels onderkelderd
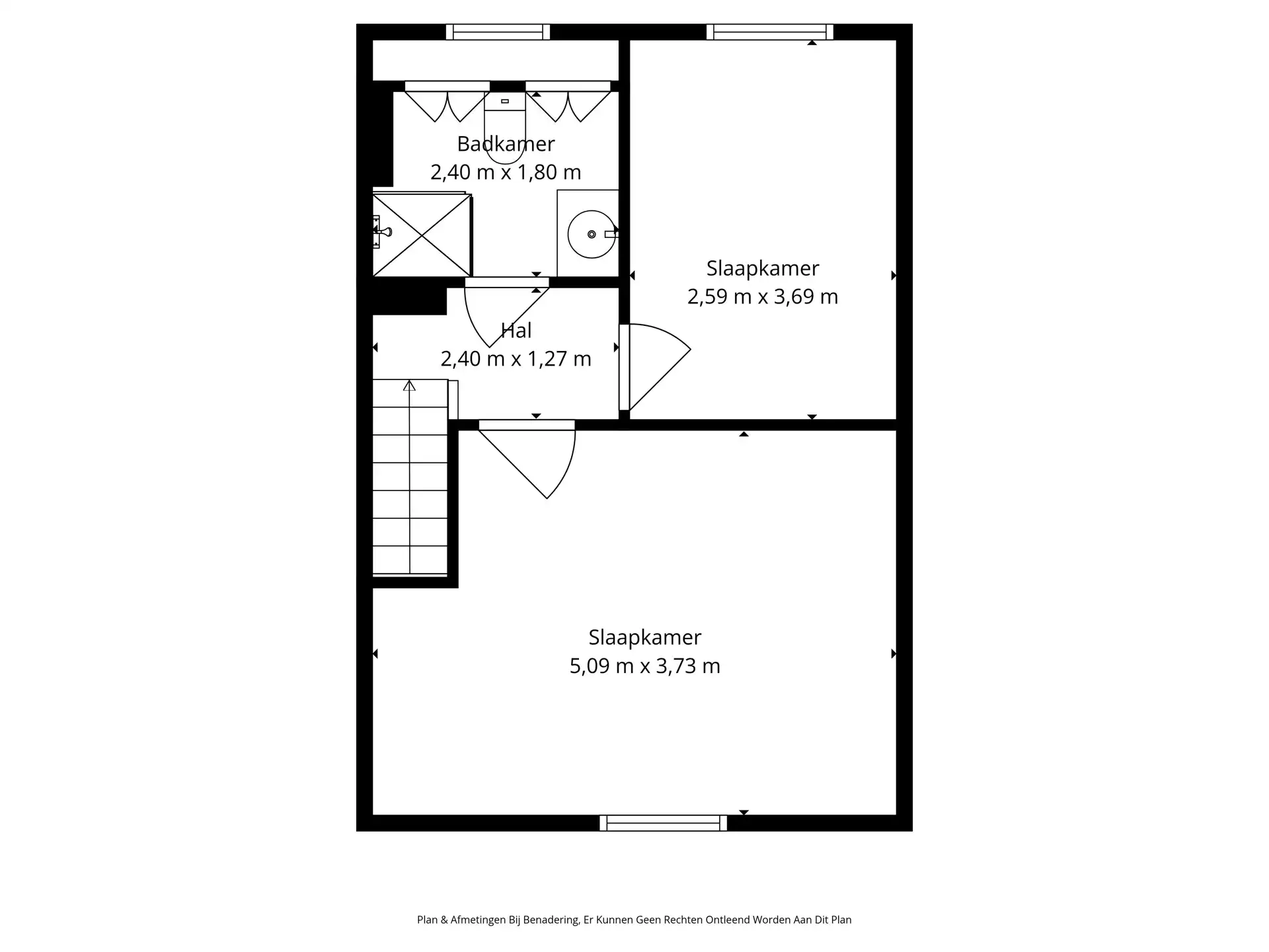
Indeling:
Gelijkvloerse verdieping (ca. 71 m²)
- Inkomhal met apart gastentoilet
- Toegang naar de kelder
- Grote feefruimte met open keuken
- Onderhoudsvriendelijke tuin met diverse terrassen
Eerste verdieping (ca. 46 m²)
- Nachthal
- 2 ruime slaapkamers
- Badkamer met ligbad/douche
Tweede verdieping (ca. 46 m²)
- Nachthal
- 2 slaapkamers
- Douchekamer met toilet
Virtuele rondleiding: https://youtube.com/shorts/kRBgrkoa_MQ
Stedenbouwkundige inlichtingen in aanvraag.
Voor meer informatie kan u terecht op www.deboerenpartners.be.
Algemeen:
- Renovatie uitgevoerd in 2008
- Uitbreidingsmogelijkheden
- Bewoonbare oppervlakte: ca. 163 m²
- Grote leefruimte
- Volledig geïnstalleerde keuken
- 3-4 ruime slaapkamers
- Badkamer met ligbad en douchekamer
- Onderhoudsvriendelijke OOST tuin met groenzicht
- Volledige privacy
- Woning is momenteel verhuurd
Onmiddellijke omgeving:
- Pal in het centrum van Kontich met scholen, parken, winkels en openbaar vervoer op fiets- en wandelafstand
- Zeer vlotte bereikbaarheid naar Antwerpen en Brussel (E19 en trein)
Technische kenmerken:
- Deels onderkelderd
Indeling:
Gelijkvloerse verdieping (ca. 71 m²)
- Inkomhal met apart gastentoilet
- Toegang naar de kelder
- Grote feefruimte met open keuken
- Onderhoudsvriendelijke tuin met diverse terrassen
Eerste verdieping (ca. 46 m²)
- Nachthal
- 2 ruime slaapkamers
- Badkamer met ligbad/douche
Tweede verdieping (ca. 46 m²)
- Nachthal
- 2 slaapkamers
- Douchekamer met toilet
Virtuele rondleiding: https://youtube.com/shorts/kRBgrkoa_MQ
Stedenbouwkundige inlichtingen in aanvraag.
Voor meer informatie kan u terecht op www.deboerenpartners.be.
Op te frissen woning met 3-4 slaapkamers en onderhoudsvriendelijke tuin in het centrum van Kontich
Energie
![]() |
- EPC Certificaat: 3115672
- Energieverbruik: 251 kWh/m²/jaar
Op de kaart

Financieel
| Prijs |
|---|
Berekening kosten
Je aankoopkosten? Die heb je snel berekend via de knop hieronder.
Bijkomende info
Gebouw
| Bouwjaar | 1950 |
|---|---|
| Renovatie jaar | 2008 |
| Bewoonbaar (m²) | 163 |
| Gevels | 3 |
| Badkamers | 2 |
| Slaapkamers | 4 |
| Garages | 0 |
| Parkeerplaatsen | 0 |
| Toiletten | 3 |
Faciliteiten
| Type vloer | |
|---|---|
| Keuken uitrusting | Luxueus uitgerust |
| Elektrisch keuringsattest | Nee |
Perceel
| P-score | A |
|---|---|
| G-score | A |
| Voorkeurrecht | Nee |
| Totale oppervlakte (m²) | 235 |
| Bebouwde oppervlakte (m²) | 71 |
| Tuin oppervlakte (m²) | 164 |
Vergunning
| Vergunning | Vergunning beschikbaar |
|---|---|
| Verkavelingsvergunning | Vergunning beschikbaar |
| Bouwovertreding | Geen |
| Bouwovertreding dagvaardiging | Geen |
Uitrusting
| Parking | Nee |
|---|---|
| Garage | Nee |
| Kelder | Ja |
| Tuin | Ja |
| Terras | Ja |
| Gasaansluiting | Ja |
| Wateraansluiting | Ja |
| Elektriciteitsaansluiting | Ja |
| TV aansluiting | Ja |
| Telefoonaansluiting | Ja |
Een pand van
De Boer & Partners Kontich
De Boer & Partners Kontich
Met meer dan 40 jaar ervaring en 17 kantoren zijn we zonder twijfel uitgegroeid tot een vaste waarde op de vastgoedmarkt in België. Een persoonlijke aanpak is voor ons heel belangrijk, we garanderen een persoonlijke en professionele service waar een grote passie altijd aanwezig is. Onze medewerkers kennen hun regio door en door en staan klaar om u met enthousiasme te begeleiden bij de aankoop, verkoop en verhuur van uw eigendom. We hebben een grote en diverse verkoopportefeuille en zijn thuis in elk marktsegment. Wij staan niet voor een bepaalde prijsklasse, wel voor persoonlijke service en kwaliteit.
Leer meer over vastgoed
24 April 2026
Duurzaam gelegen woning? Check je Mobiscore
23 March 2026
Op Spotto zoeken als een pro: 10 slimme tips
21 March 2026
Hoeveel kan ik lenen om een huis te kopen?
01 March 2026
