In optie
Huis te koop
€ 449.000
Een pand van UNIK vastgoed
Favoriet
Jouw zoektocht
Jouw scoretabel voor dit pand
Aan het laden...
Jouw geplande bezichtigingen
Aan het laden...
Overzicht
- 480 m² grond
- 3 Slaapkamer(s)
- 1 Badkamer(s)
- 1 Tuin
- 1 Garage(s)
Beschrijving
Hedendaagse halfopen bebouwing in Nijlen
In een rustige en kindvriendelijke omgeving in Nijlen worden twee stijlvolle halfopen nieuwbouwwoningen opgericht, met oplevering voorzien in september 2026. Deze energiezuinige woningen combineren een doordachte indeling met een hedendaagse architectuur en kwalitatieve afwerking.
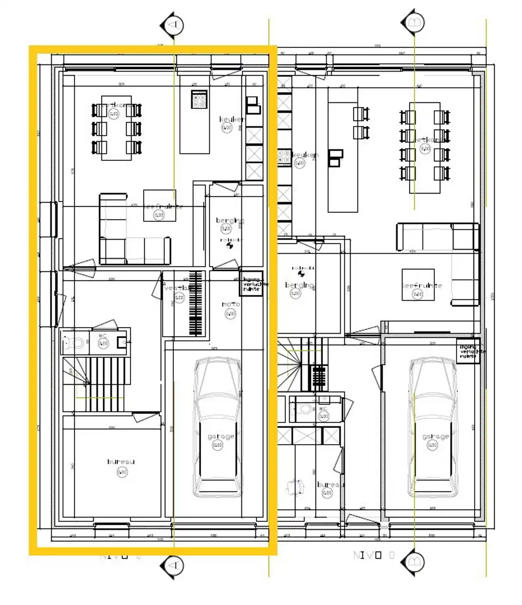
Indeling gelijkvloers
Inkomhal met gastentoilet
Ruime leefruimte met veel lichtinval en een open, volledig ingerichte keuken
Aansluitende berging voor extra comfort en opbergruimte
Apart bureau dat ook kan dienen als gelijkvloerse slaapkamer
Inpandige garage
Verdieping
Drie slaapkamers
Badkamer uitgerust met dubbele wastafel, ligbad en douche
Apart toilet op de nachthal
Extra ruimte
Via een vaste trap is de zolder bereikbaar, waar een vierde slaapkamer of een gezellige speelruimte voor de kinderen mogelijk is.
Troeven
Hedendaagse architectuur en kwalitatieve materialen
Energiezuinig en toekomstgericht bouwen
Mogelijkheid tot aankoop aan 6% BTW (onder voorwaarden)
Rustige ligging in combinatie met vlotte bereikbaarheid
Te koop voor 449.000€ excl. kosten (145.000€ grondaandeel - 304.000€ constructie
Stedenbouwkundige inlichtingen in aanvraag.
Lastenboek op aanvraag.
In een rustige en kindvriendelijke omgeving in Nijlen worden twee stijlvolle halfopen nieuwbouwwoningen opgericht, met oplevering voorzien in september 2026. Deze energiezuinige woningen combineren een doordachte indeling met een hedendaagse architectuur en kwalitatieve afwerking.
Indeling gelijkvloers
Inkomhal met gastentoilet
Ruime leefruimte met veel lichtinval en een open, volledig ingerichte keuken
Aansluitende berging voor extra comfort en opbergruimte
Apart bureau dat ook kan dienen als gelijkvloerse slaapkamer
Inpandige garage
Verdieping
Drie slaapkamers
Badkamer uitgerust met dubbele wastafel, ligbad en douche
Apart toilet op de nachthal
Extra ruimte
Via een vaste trap is de zolder bereikbaar, waar een vierde slaapkamer of een gezellige speelruimte voor de kinderen mogelijk is.
Troeven
Hedendaagse architectuur en kwalitatieve materialen
Energiezuinig en toekomstgericht bouwen
Mogelijkheid tot aankoop aan 6% BTW (onder voorwaarden)
Rustige ligging in combinatie met vlotte bereikbaarheid
Te koop voor 449.000€ excl. kosten (145.000€ grondaandeel - 304.000€ constructie
Stedenbouwkundige inlichtingen in aanvraag.
Lastenboek op aanvraag.
Hedendaagse halfopen bebouwing in Nijlen
In een rustige en kindvriendelijke omgeving in Nijlen worden twee stijlvolle halfopen nieuwbouwwoningen opgericht, met oplevering voorzien in september 2026. Deze energiezuinige woningen combineren een doordachte indeling met een hedendaagse architectuur en kwalitatieve afwerking.
Indeling gelijkvloers
- Inkomhal met gastentoilet
- Ruime leefruimte met veel lichtinval en een open, volledig ingerichte keuken
- Aansluitende berging voor extra comfort en opbergruimte
- Apart bureau dat ook kan dienen als gelijkvloerse slaapkamer
- Inpandige garage
Verdieping
- Drie slaapkamers
- Badkamer uitgerust met dubbele wastafel, ligbad en douche
- Apart toilet op de nachthal
Extra ruimte
Via een vaste trap is de zolder bereikbaar, waar een vierde slaapkamer of een gezellige speelruimte voor de kinderen mogelijk is.
Troeven
- Hedendaagse architectuur en kwalitatieve materialen
- Energiezuinig en toekomstgericht bouwen
- Mogelijkheid tot aankoop aan 6% BTW (onder voorwaarden)
- Rustige ligging in combinatie met vlotte bereikbaarheid
Te koop voor 449.000€ excl. kosten (145.000€ grondaandeel - 304.000€ constructie
Stedenbouwkundige inlichtingen in aanvraag.
Lastenboek op aanvraag.
Energie
Op de kaart

Financieel
| Prijs |
|---|
Berekening kosten
Je aankoopkosten? Die heb je snel berekend via de knop hieronder.
Bijkomende info
Gebouw
| Bouwjaar | 2025 |
|---|---|
| Gevels | 3 |
| Badkamers | 1 |
| Slaapkamers | 3 |
| Garages | 1 |
| Parkeerplaatsen | 0 |
Faciliteiten
| Type vloer |
|---|
Perceel
| Overstromingsgevoelig | Geen |
|---|---|
| Voorkeurrecht | Nee |
| Totale oppervlakte (m²) | 480 |
| Tuin oppervlakte (m²) | 0 |
Vergunning
| Vergunning | Vergunning beschikbaar |
|---|---|
| Verkavelingsvergunning | Geen beschikbaar |
| Bouwovertreding | Geen |
| Bouwovertreding dagvaardiging | Geen |
Uitrusting
| Parking | Nee |
|---|---|
| Garage | Ja |
| Thuiskantoor | Ja |
| Zolder | Ja |
| Tuin | Ja |
| Terras | Nee |
Een pand van
UNIK vastgoed
UNIK vastgoed
UNIK vastgoed, synergie van commercieel en juridisch talent.
Saskia werkte 6 jaar lang bij een gekend vastgoednetwerk en ontving erkenning als één van de beste commerciële medewerkers van het land. Een passie voor de job én voor de mensen achter de gevel zorgden voor de drang om een eigen verhaal te schrijven.
Mathias heeft als voormalig notarieel jurist met een passie voor vastgoed en architectuur jarenlange ervaring in het begeleiden van klanten bij het (ver)kopen, verkavelen, ontwikkelen, ... van vastgoed.
Samen bundelen zij de krachten om elk dossier vol overgave en met een onuitputtelijke energie tot in de puntjes af te werken. Betrouwbaarheid en een vlekkeloze service zijn dan ook onze kernwaarden voor zowel (ver)koper als (ver)huurder.
Kies je niet voor de one-size-fits-all aanpak, maar voor een verfrissende kijk en een warme, persoonlijke benadering, dan zijn wij een betrouwbare partner voor u en uw vastgoedtransactie.
Vastgoedplannen, advies nodig of wenst u met ons kennis te maken? Van harte welkom voor een vrijblijvend gesprek met een warme kop koffie!
7329875
Leer meer over vastgoed
23 March 2026
Op Spotto zoeken als een pro: 10 slimme tips
21 March 2026
Hoeveel kan ik lenen om een huis te kopen?
01 March 2026
Wanneer heb ik een bouwvergunning of omgevingsvergunning nodig?
17 February 2026