Exclusieve mediterraanse villa met 3 slaapkamers, 3 badkamers en parktuin op 3.805 m²
€ 899.000
Een pand van De Boer & Partners Koningshooikt
Overzicht
- 525 m² bewoonbaar
- 3805 m² grond
- 3 Slaapkamer(s)
- 3 Badkamer(s)
- 4 Toilet(ten)
- 1 Zwembad(en)
- 1 Tuin
- 2 Garage(s)
Beschrijving
VOOR (VIRTUELE) GRONDPLANNEN, ATTESTEN EN EXTRA FOTO'S, SURFT U BEST NAAR: www.deboerenpartners.be
ALGEMENE EN TECHNISCHE KENMERKEN:
- Statige villa met een hoog wooncomfort, gebouwd in authentieke mediterraanse stijl
- Ontworpen door architect Francis Docx, specialist in dit type architectuur, die zelf 22 jaar in de woning heeft gewoond
- Opgetrokken en gerenoveerd met uiterst kwalitatieve en stijlvolle materialen, steeds met oog voor detail
- Gelegen in De Groene Kempen, een omgeving met tal van wandel- en fietsmogelijkheden en vlotte bereikbaarheid via de E313
- Veel mogelijkheden voor vrije beroepers of als kangoeroewoning; alle voorzieningen voor een tweewoonst zijn reeds aanwezig
- Momenteel 3 slaapkamers, met mogelijkheid tot uitbreiding
- Vloerverwarming doorheen de woning, aangevuld met radiatoren
- Ruim terras met aangrenzende pergola (2018)
- Zuidgerichte, volledig heraangelegde tuin (2016) met zelfreinigende zwemvijver
- Grondwaterput die zuiver water levert voor de zwemvijver, buitenkranen en tuinbesproeiing
- Groot bijgebouw van ca. 175 m² met:
- Inactief betonnen binnenzwembad in mozaïektegels (voorzien van verwijderbare vloerconstructie)
- Keuken en badkamer
- Centraal stofzuigsysteem, airconditioning en videofoon aanwezig
- Zeer goed beveiligd met buitencamera’s, alarmsysteem, veiligheidssloten, gepantserde voordeur en traliedeur op de eerste verdieping
- Dubbele inpandige garage en ruime parkeergelegenheid vooraan
- 30 zonnepanelen met groenestroomcertificaten (€450 per certificaat, nog 6 jaar geldig)
- Gunstige EPC-score van 132 kWh/m²/jaar
- Elektrische keuring conform AREI
- Asbestveilig
- Gedeeltelijk onderkelderd, overige deel voorzien van kruipruimte
Exclusieve mediterraanse villa met 3 slaapkamers, 3 badkamers en parktuin op 3.805 m².
VOOR (VIRTUELE) GRONDPLANNEN, ATTESTEN EN EXTRA FOTO'S, SURFT U BEST NAAR: www.deboerenpartners.be
ALGEMENE EN TECHNISCHE KENMERKEN:
Statige villa met een hoog wooncomfort, gebouwd in authentieke mediterraanse stijl
Ontworpen door architect Francis Docx, specialist in dit type architectuur, die zelf 22 jaar in de woning heeft gewoond
Opgetrokken en gerenoveerd met uiterst kwalitatieve en stijlvolle materialen, steeds met oog voor detail
Gelegen in De Groene Kempen, een omgeving met tal van wandel- en fietsmogelijkheden en vlotte bereikbaarheid via de E313
Veel mogelijkheden voor vrije beroepers of als kangoeroewoning; alle voorzieningen voor een tweewoonst zijn reeds aanwezig
Momenteel 3 slaapkamers, met mogelijkheid tot uitbreiding
Vloerverwarming doorheen de woning, aangevuld met radiatoren
Ruim terras met aangrenzende pergola (2018)
Zuidgerichte, volledig heraangelegde tuin (2016) met zelfreinigende zwemvijver
Grondwaterput die zuiver water levert voor de zwemvijver, buitenkranen en tuinbesproeiing
Groot bijgebouw van ca. 175 m² met:
Inactief betonnen binnenzwembad in mozaïektegels (voorzien van verwijderbare vloerconstructie)
Keuken en badkamer
Centraal stofzuigsysteem, airconditioning en videofoon aanwezig
Zeer goed beveiligd met buitencamera’s, alarmsysteem, veiligheidssloten, gepantserde voordeur en traliedeur op de eerste verdieping
Dubbele inpandige garage en ruime parkeergelegenheid vooraan
30 zonnepanelen met groenestroomcertificaten (€450 per certificaat, nog 6 jaar geldig)
Gunstige EPC-score van 132 kWh/m²/jaar
Elektrische keuring conform AREI
Asbestveilig
Gedeeltelijk onderkelderd, overige deel voorzien van kruipruimte
Gelijkvloers:
Ruime inkomhal met natuurstenen vloer
Vestiaire met handenwasser
Wasplaats met grote lavabo en ingebouwde schoenkast
Sfeervolle woonkamer met open haard en ingebouwde barkast
Aansluitende, gezellige TV-hoek op verlaagd niveau met ingebouwde kasten
Volledig uitgeruste, hoogwaardige inbouwkeuken in Corian van Miele:
gasvuur, heteluchtoven, microgolf, stoomoven, afwasmachine, wijnkast, koelkast en koffiezetapparaatLichtrijke zithoek met Scandinavische speksteenkachel en airconditioning
Eerste ruime badkamer met jacuzzi, douche en lavabo
Grote, tweedelige bureauruimte – ideaal voor een vrij beroep of om als kangoeroewoning in te richten
1e verdieping:
Nachthal met veiligheidsdeur
Master bedroom met ensuite badkamer voorzien van ligbad, wastafel en toilet
Tweede badkamer met inloopdouche, wastafel en toilet
Twee ruime slaapkamers met ingebouwde kastenwanden
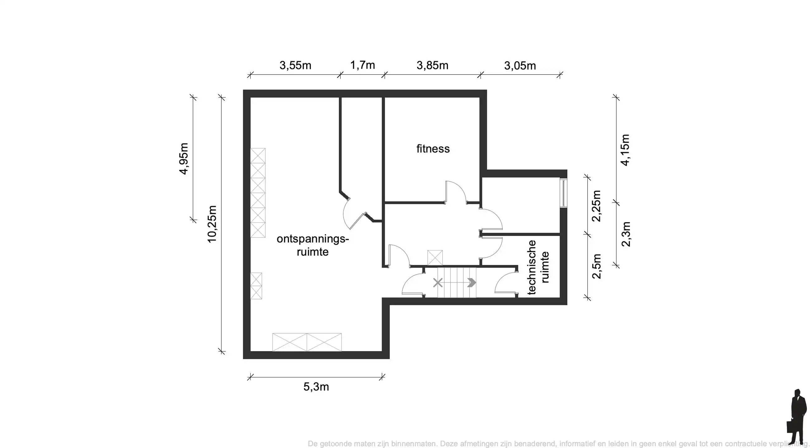
Kelder:
Grote, verwarmde polyvalente ruimte met aangrenzende fitnesskamer
Aparte toegang naar het terras
Energie
![]() |
- EPC Certificaat: 0003110259
- Energieverbruik: 132 kWh/m²/jaar
Op de kaart

Financieel
| Prijs | |
|---|---|
| Kadastraal inkomen (niet geïndexeerd) | € 1.922 |
Berekening kosten
Je aankoopkosten? Die heb je snel berekent via de knop hieronder.
Bijkomende info
Gebouw
| Bouwjaar | 1990 |
|---|---|
| Bewoonbaar (m²) | 525 |
| Gevels | 4 |
| Gevelbreedte | 20 |
| Badkamers | 3 |
| Slaapkamers | 3 |
| Garages | 2 |
| Parkeerplaatsen | 2 |
| Toiletten | 4 |
Faciliteiten
| Type vloer | |
|---|---|
| Keuken uitrusting | Luxueus uitgerust |
| Elektrisch keuringsattest | Ja |
Perceel
| Overstromingsgevoelig | Geen |
|---|---|
| Voorkeurrecht | Ja |
| Totale oppervlakte (m²) | 3805 |
| Bebouwde oppervlakte (m²) | 360 |
| Tuin oppervlakte (m²) | 0 |
| Oriëntatie terras | Zuid |
Vergunning
| Vergunning | Vergunning beschikbaar |
|---|---|
| Verkavelingsvergunning | Geen beschikbaar |
| Bouwovertreding | Geen |
| Bouwovertreding dagvaardiging | Geen |
| Type gebied | Landelijk |
Uitrusting
| Parking | Ja |
|---|---|
| Garage | Ja |
| Kelder | Ja |
| Tuin | Ja |
| Terras | Ja |
| Gasaansluiting | Ja |
| Wateraansluiting | Ja |
| Elektriciteitsaansluiting | Ja |
| TV aansluiting | Ja |
| Alarm | Ja |
| Zwembad | Ja |
| Zwemvijver | Ja |
