Recent gemoderniseerde woning te Duffel
€ 498.000
Een pand van Immo Vercammen
Overzicht
- 175 m² bewoonbaar
- 432 m² grond
- 3 Slaapkamer(s)
- 1 Badkamer(s)
- 2 Toilet(ten)
- 1 Tuin
- 1 Garage(s)
Beschrijving
Recent gemoderniseerde gezinswoning met 3 (mogelijk 4!) slaapkamers, gunstig gelegen in een aangename en kindvriendelijke verkaveling (Beunt) te Duffel.
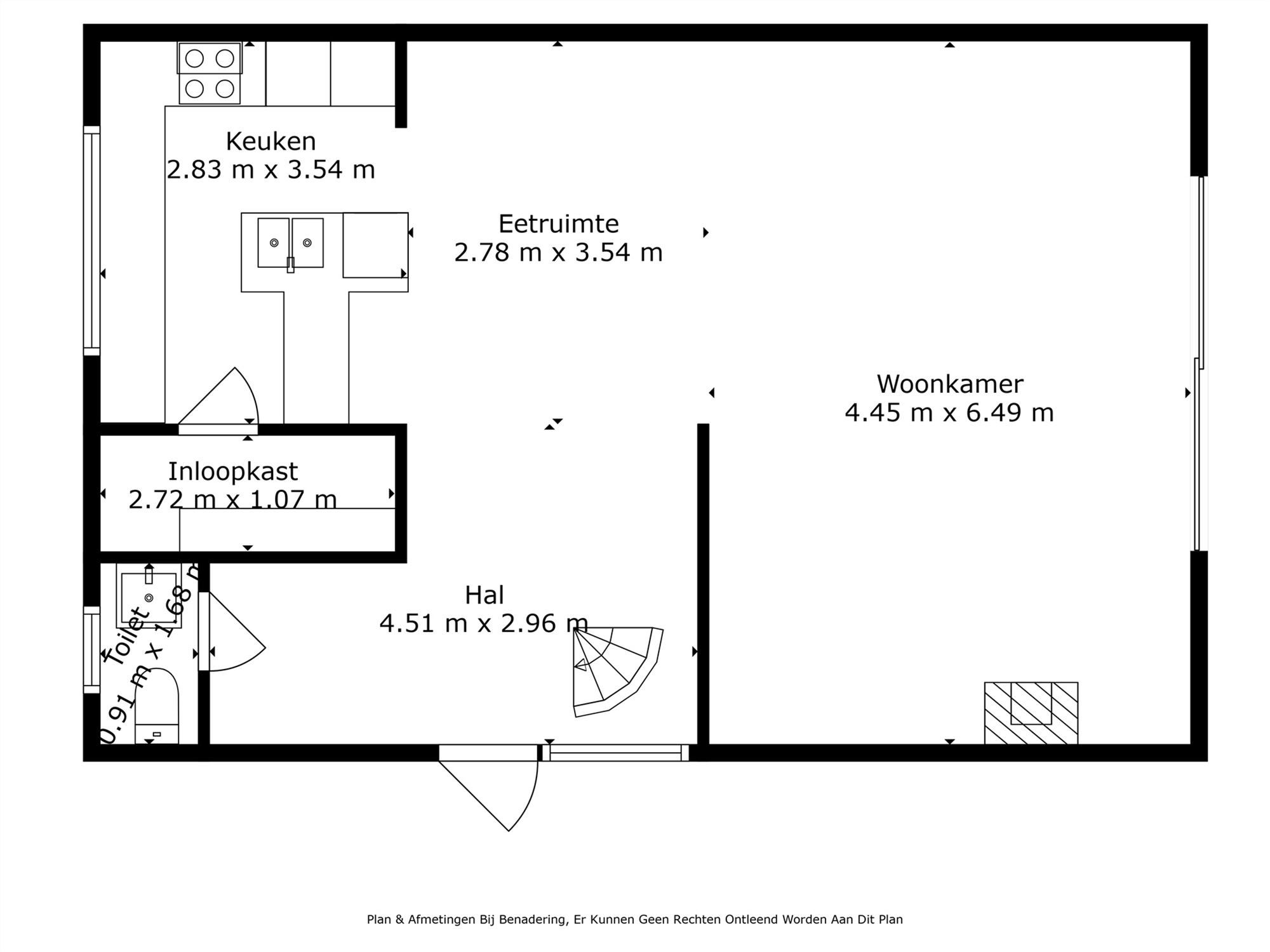
Deze knappe woning werd steeds met de grootste zorg onderhouden en grotendeels gemoderniseerd. Op het gelijkvloers is er een lichtrijke woonkamer met gezellige haard ingericht. Samen met een open leefkeuken wordt een ideale thuis gecreëerd. De nachthal geeft toegang tot 2 ruime slaapkamers, een kleine kamer (heden ingericht als dressing) en een badkamer met ligbad, douche en toilet. op de tweede verdieping is er een zeer ruime slaapkamer met maatkasten, dewelke indien gewenst kan gesplitst worden in 2 kinderkamers. Verscheidene bergruimtes bieden voldoende stockageruimte. Parkeergelegenheid is gegarandeerd dankzij een vrijstaande garage en bijhorende oprit. En indien u niet binnen wenst te vertoeven, kan u heerlijk tot rust komen op het mooie terras en in de gezellige tuin, perfect zuidelijk georiënteerd en met zwemvijver.
Een unieke kans voor wie een woning zoekt gelegen te Duffel-West, op fietsafstand van het landelijke dorpscentrum, scholen en winkels, sport- en ontspanningsmogelijkheden.
Vlotte bereikbaarheid is tevens een troef, een centrale ligging tussen Brussel en Antwerpen, te bereiken via openbaar vervoer, treinstation, belangrijke verbindingswegen en fietsostrade.
Bezoek enkel na afspraak, vrijblijvende info op kantoor: 015/755 444 of info@immovercammen.be
Energie
![]() |
- EPC Certificaat: 20250806-0003659325-RES-1
- Energieverbruik: 278 kWh/m²/jaar
- E-peil: E0
- Verwarming: Gas
- Beglazing: Standaard dubbel
Op de kaart

Virtual tour
Ontdek het hele pand alvorens je bezoek via de virtuele tour, werkelijkheid gemaakt door Walkly. Geen verassingen tijdens het bezoek!
Beleef de virtuele tourFinancieel
Prijs | |
---|---|
Kadastraal inkomen (niet geïndexeerd) | € 1.011 |
Kadastraal inkomen (geïndexeerd) | € 0 |
Berekening kosten
Je aankoopkosten? Die heb je snel berekent via de knop hieronder.
Bijkomende info
Gebouw
Bouwjaar | 1975 |
---|---|
Staat | Goed onderhouden |
Bouwcertificaat | Nee |
Bewoonbaar (m²) | 175 |
Verdieping | 0 |
Badkamers | 1 |
Slaapkamers | 3 |
Verdiepingen | 0 |
Garages | 1 |
Parkeerplaatsen | 1 |
Doucheruimtes | 0 |
Toiletten | 2 |
Faciliteiten
Keuken uitrusting | Luxueus uitgerust |
---|---|
Materiaal ramenomlijstingen | Aluminium |
Beglazing | Standaard dubbel |
Brandstof primaire verwarming | Gas |
Elektrisch keuringsattest | Nee |
Perceel
Overstromingsgevoelig | Geen |
---|---|
P-score | A |
G-score | A |
Voorkeurrecht | Nee |
Totale oppervlakte (m²) | 432 |
Bebouwde oppervlakte (m²) | 0 |
Tuin oppervlakte (m²) | 0 |
Oppervlakte terras (m²) | 0 |
Oriëntatie tuin | Zuid |
Vergunning
Vergunning | Vergunning beschikbaar |
---|---|
Verkavelingsvergunning | Vergunning beschikbaar |
Uitrusting
Investeringspand | Nee |
---|---|
Geschikt voor praktijk | Nee |
Parking | Ja |
Garage | Ja |
Thuiskantoor | Nee |
Kelder | Ja |
Zolder | Ja |
Tuin | Ja |
Terras | Ja |
Lift | Nee |
Rioolaansluiting | Ja |
Gasaansluiting | Ja |
Wateraansluiting | Ja |
Elektriciteitsaansluiting | Ja |
TV aansluiting | Ja |
Internetaansluiting | Ja |
Telefoonaansluiting | Ja |