Verrassend ruime woning te Duffel
€ 310.000
Een pand van Immo Vercammen
Overzicht
- 187 m² bewoonbaar
- 175 m² grond
- 6 Slaapkamer(s)
- 1 Badkamer(s)
- 2 Toilet(ten)
- 1 Tuin
Beschrijving
Verrassend ruime gezinswoning met 6 slaapkamers, gunstig gelegen pal in het landelijke dorpscentrum van Duffel-West.
Dit knappe pand werd doorheen de jaren met de grootste zorg onderhouden. Deze perfecte gezinswoning is functioneel ingedeeld en biedt een verrassend ruime bewoonbare oppervlakte. Het grote aantal kamers biedt een ideale thuis voor grote / nieuw samengestelde gezinnen en/of thuiswerk. Op het gelijkvloers betreden we de woning via de inkomhal met trap om vervolgens de lichtrijke woonkamer te bereiken, bestaande uit zithoek - eetplaats en bureauruimte. Aansluitend is er een keuken geïnstalleerd die toegang biedt tot terras en tuin. Op de verdiepingen zijn er in totaal 6 slaapkamers en een veranda. Een dubbele badkamer zijn ingericht met bad en douche. Verscheidene bergruimtes, een kelder en een bergzolder bieden voldoende stockageruimte. En indien u niet binnen wenst te vertoeven, kan u heerlijk tot rust komen in de perfect zuidoost georiënteerde tuin met prachtig zicht op achterliggend groen. Achterliggende percelen zijn niet inbegrepen in de vraagprijs, doch kunnen optioneel bij aangekocht worden. (zie foto met blauwe kader).
Extra troef: Recent werd een nieuwe condensatieketel op aardgas geïnstalleerd.
Een unieke kans voor wie een grote woning zoekt met diverse mogelijkheden, pal in het dorpscentrum met scholen, winkels, sport- en ontspanningsmogelijkheden. Vlotte bereikbaarheid is gegarandeerd dankzij een centrale ligging tussen Brussel en Antwerpen, via belangrijke invalswegen (R6 - E19), openbaar vervoer en fietsostrade.
Kom de troeven van dit knappe pand ter plaatse ontdekken en maak een afspraak: 015/755 444 of info@immovercammen.be
Energie
![]() |
- EPC Certificaat: 20251120-0003737854-RES-1
- Energieverbruik: 383 kWh/m²/jaar
- E-peil: E0
- Verwarming: Gas
- Beglazing: Standaard dubbel
Extra budget nodig voor je renovatie?

Op de kaart

Virtual tour
Ontdek het hele pand alvorens je bezoek via de virtuele tour, werkelijkheid gemaakt door Walkly. Geen verassingen tijdens het bezoek!
Beleef de virtuele tourFinancieel
| Prijs | |
|---|---|
| Kadastraal inkomen (niet geïndexeerd) | € 842 |
| Kadastraal inkomen (geïndexeerd) | € 0 |
Berekening kosten
Je aankoopkosten? Die heb je snel berekent via de knop hieronder.
Bijkomende info
Gebouw
| Bouwjaar | 1959 |
|---|---|
| Staat | Op te frissen |
| Bouwcertificaat | Nee |
| Bewoonbaar (m²) | 187 |
| Verdieping | 0 |
| Badkamers | 1 |
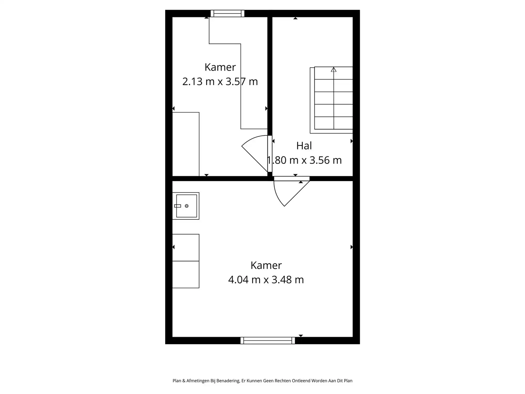
| Slaapkamers | 6 |
| Verdiepingen | 0 |
| Garages | 0 |
| Parkeerplaatsen | 0 |
| Doucheruimtes | 1 |
| Toiletten | 2 |
Faciliteiten
| Materiaal ramenomlijstingen | Aluminium |
|---|---|
| Beglazing | Standaard dubbel |
| Brandstof primaire verwarming | Gas |
| Elektrisch keuringsattest | Nee |
Perceel
| Overstromingsgevoelig | Geen |
|---|---|
| P-score | A |
| G-score | A |
| Voorkeurrecht | Nee |
| Totale oppervlakte (m²) | 175 |
| Bebouwde oppervlakte (m²) | 0 |
| Tuin oppervlakte (m²) | 0 |
| Oppervlakte terras (m²) | 0 |
| Oriëntatie tuin | ZuidOost |
Vergunning
| Vergunning | Vergunning beschikbaar |
|---|
Uitrusting
| Investeringspand | Nee |
|---|---|
| Geschikt voor praktijk | Nee |
| Parking | Nee |
| Garage | Nee |
| Thuiskantoor | Nee |
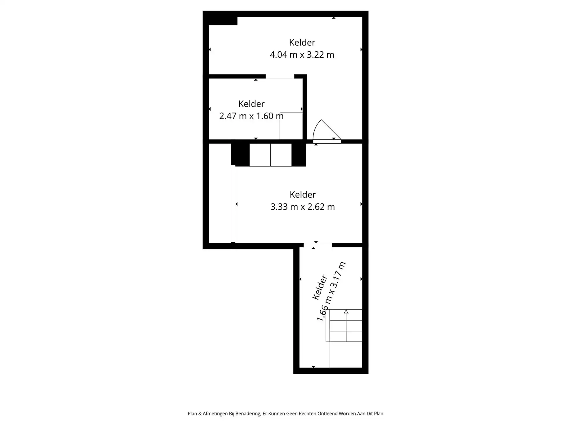
| Kelder | Ja |
| Zolder | Ja |
| Tuin | Ja |
| Terras | Ja |
| Lift | Nee |
| Rioolaansluiting | Ja |
| Gasaansluiting | Ja |
| Wateraansluiting | Ja |
| Elektriciteitsaansluiting | Ja |
| TV aansluiting | Ja |
| Internetaansluiting | Ja |
| Telefoonaansluiting | Ja |


