Recent, perfect instapklaar dakappartement te Putte
€ 379.000
Een pand van Immo Vercammen
Overzicht
- 93 m² bewoonbaar
- 2 Slaapkamer(s)
- 1 Badkamer(s)
- 2 Toilet(ten)
- 1 Garage(s)
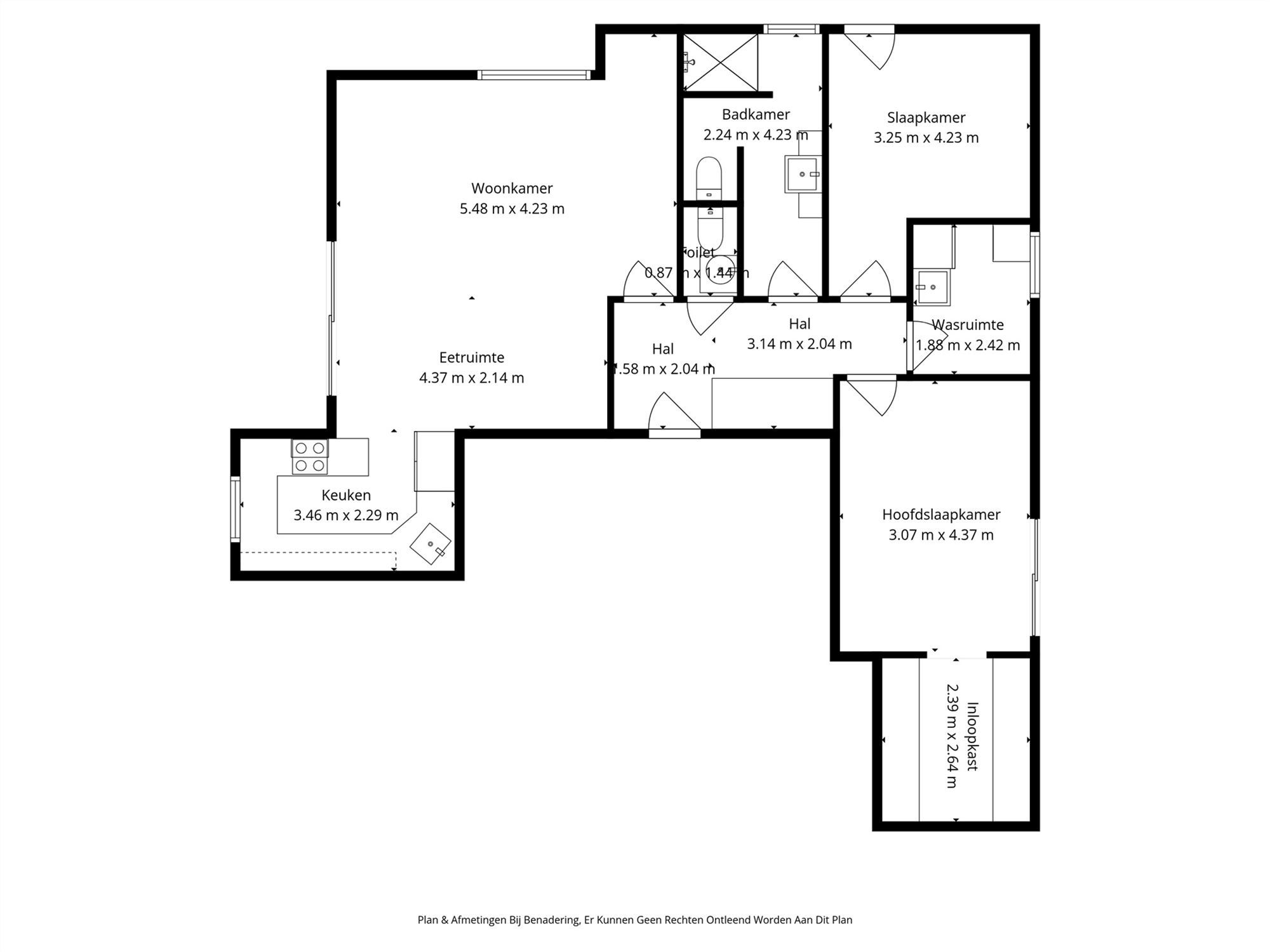
Beschrijving
Luxueus dakappartement in een aangename residentie nabij het dorpscentrum van Putte.
Dit recente penthouse-appartement, gebouwd in 2012, werd met hoogwaardige materialen afgewerkt en is perfect instapklaar. Het appartement is vlot toegankelijk, bereikbaar via lift of trap, en is gelegen op de bovenste verdieping waardoor u heerlijk kan genieten van rust en privacy. Dankzij grote raampartijen kan is er heel wat lichtinval in de aangename leefruimtes. Een riante woonkamer, met airco, en aansluitend geïnstaleerde halfopen keuken bieden een ideale thuis. De nachthal geeft toegang tot 2 slaapkamers, waarvan 1 met airco en aansluitend ingerichte dressing. Verder is er nog een badkamer met inloopdouche. In totaal zijn er 2 toiletten voorzien. Een praktische berging, wasruimte, een buitenberging en een ondergrondse berging bieden heel wat stockageruimte. Parkeergelegenheid is voorzien in de ondergrondse parkeergarage, betreft een autostaanplaats met bijhorende berging voorzien, inbegrepen in de vraagprijs.
Een unieke kans voor wie een riant appartement zoekt, gelegen in het centrum van het landelijke Putte, met winkels, restaurants en scholen op wandelafstand.
Een vlotte bereikbaarheid is tevens gegarandeerd dankzij openbaar vervoer en een vlotte verbinding naar o.a. R6 - E19.
Kom de troeven ter plaatse ontdekken en maak een afspraak: 015/755 444 of info@immovercammen.be
Energie
![]() |
- EPC Certificaat: 20251028-0003720761-RES-1
- Energieverbruik: 128 kWh/m²/jaar
- E-peil: E0
- Verwarming: Gas
- Beglazing: Standaard dubbel
Op de kaart

Virtual tour
Ontdek het hele pand alvorens je bezoek via de virtuele tour, werkelijkheid gemaakt door Walkly. Geen verassingen tijdens het bezoek!
Beleef de virtuele tourFinancieel
| Prijs | |
|---|---|
| Kadastraal inkomen (niet geïndexeerd) | € 871 |
| Kadastraal inkomen (geïndexeerd) | € 0 |
Berekening kosten
Je aankoopkosten? Die heb je snel berekent via de knop hieronder.
Bijkomende info
Gebouw
| Bouwjaar | 2012 |
|---|---|
| Staat | Goed onderhouden |
| Bouwcertificaat | Nee |
| Bewoonbaar (m²) | 93 |
| Verdieping | 3 |
| Badkamers | 1 |
| Slaapkamers | 2 |
| Verdiepingen | 3 |
| Garages | 1 |
| Parkeerplaatsen | 0 |
| Doucheruimtes | 0 |
| Toiletten | 2 |
Faciliteiten
| Keuken uitrusting | Luxueus uitgerust |
|---|---|
| Materiaal ramenomlijstingen | Aluminium |
| Beglazing | Standaard dubbel |
| Brandstof primaire verwarming | Gas |
| Elektrisch keuringsattest | Ja |
Perceel
| Overstromingsgevoelig | Geen |
|---|---|
| P-score | C |
| G-score | A |
| Voorkeurrecht | Nee |
| Bebouwde oppervlakte (m²) | 0 |
| Tuin oppervlakte (m²) | 0 |
| Oppervlakte terras (m²) | 0 |
| Oriëntatie tuin | Noordwest |
Vergunning
| Vergunning | Vergunning beschikbaar |
|---|
Uitrusting
| Investeringspand | Nee |
|---|---|
| Geschikt voor praktijk | Nee |
| Parking | Nee |
| Garage | Ja |
| Thuiskantoor | Nee |
| Kelder | Ja |
| Zolder | Nee |
| Tuin | Nee |
| Terras | Ja |
| Lift | Ja |
| Rioolaansluiting | Ja |
| Gasaansluiting | Ja |
| Wateraansluiting | Ja |
| Elektriciteitsaansluiting | Ja |
| TV aansluiting | Ja |
| Internetaansluiting | Ja |
| Telefoonaansluiting | Ja |
Appartementsblok
| Aantal verdiepingen | 3 |
|---|---|
| Lift | Ja |
