Gemoderniseerde woning met 4 slpks te Putte
€ 325.000
Een pand van Immo Vercammen
Overzicht
- 245 m² bewoonbaar
- 150 m² grond
- 4 Slaapkamer(s)
- 1 Badkamer(s)
- 1 Garage(s)
Beschrijving
Charmante woning te Putte met klassieke uitstraling en hedendaags wooncomfort.
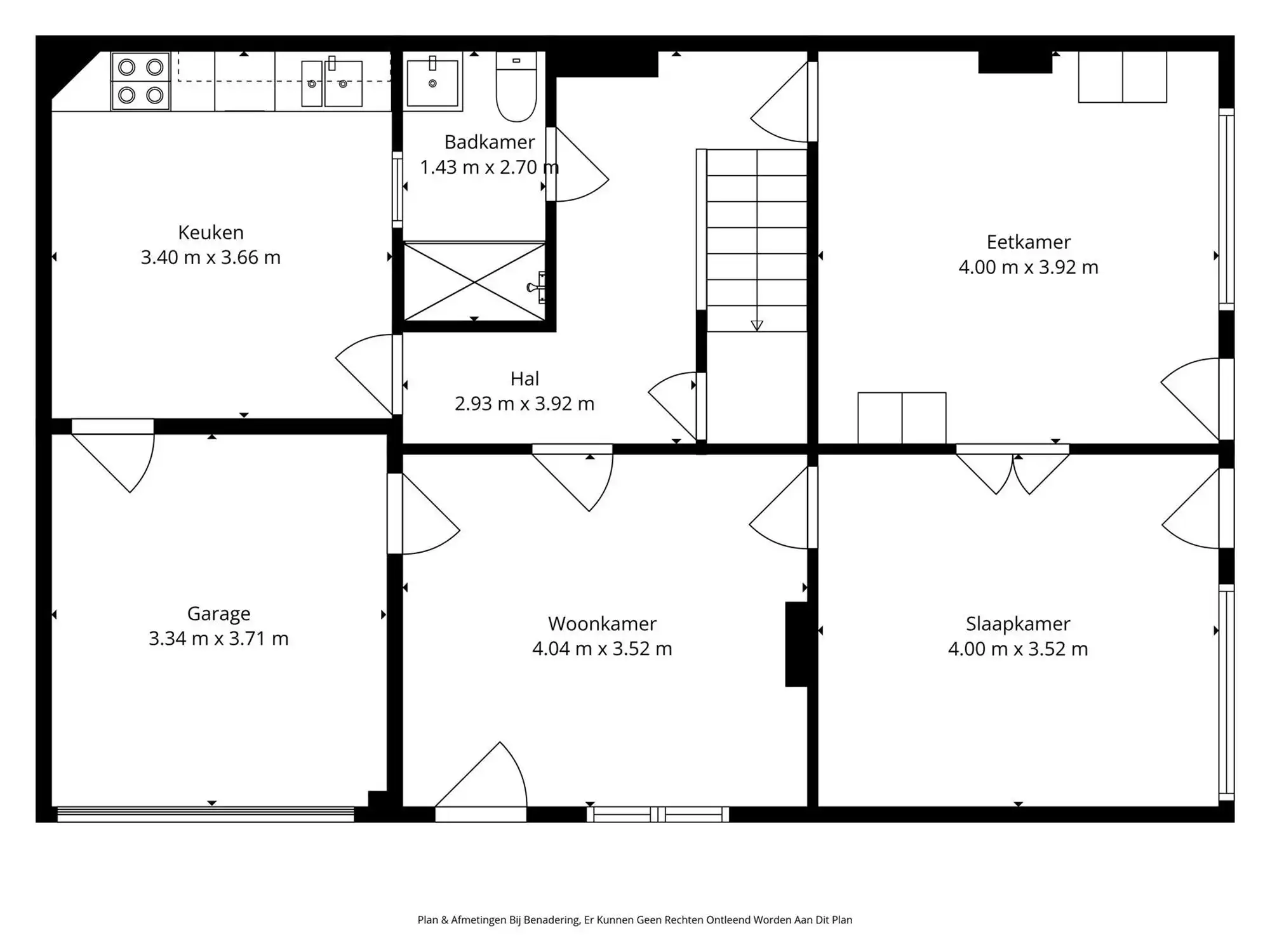
Ontdek deze karaktervolle woning in het hart van Putte, waar authenticiteit en ruimte perfect samenkomen. Met een bewoonbare oppervlakte van maar liefst 245 m² en vier volwaardige slaapkamers biedt deze woning alle comfort voor gezinnen of wie graag ruim woont.
De woning beschikt over een ruime leefruimte, een praktische keuken en een badkamer, wat samen zorgt voor een aangenaam en functioneel wooncomfort. Parkeren vormt bovendien nooit een probleem dankzij de ruime inpandige garage, waardoor een staanplaats steeds gegarandeerd is.
Een absolute meerwaarde is de zolderverdieping van meer dan 61 m², die tal van mogelijkheden biedt om extra kamers, een hobbyruimte of bureau te creëren. Dankzij de grote raampartijen geniet de woning bovendien van een uitzonderlijk mooie lichtinval.
Gelegen aan het dorpsplein van Putte, bevinden winkels, scholen en openbaar vervoer zich op wandelafstand.
Een unieke combinatie van ruimte, charme en een topligging.
Interesse? Twijfel dan niet en maak snel een afspraak via www.immovercammen.be of 015/755 444.
Energie
![]() |
- EPC Certificaat: 20260129-0003786695-RES-1
- Energieverbruik: 226 kWh/m²/jaar
- E-peil: E0
- Verwarming: Gas
- Beglazing: Standaard dubbel
Op de kaart

Virtual tour
Ontdek het hele pand alvorens je bezoek via de virtuele tour, werkelijkheid gemaakt door Walkly. Geen verassingen tijdens het bezoek!
Beleef de virtuele tourFinancieel
| Prijs | |
|---|---|
| Kadastraal inkomen (niet geïndexeerd) | € 547 |
| Kadastraal inkomen (geïndexeerd) | € 0 |
Berekening kosten
Je aankoopkosten? Die heb je snel berekend via de knop hieronder.
Bijkomende info
Gebouw
| Bouwjaar | 1932 |
|---|---|
| Staat | Goed onderhouden |
| Bouwcertificaat | Nee |
| Bewoonbaar (m²) | 245 |
| Verdieping | 0 |
| Badkamers | 1 |
| Slaapkamers | 4 |
| Verdiepingen | 0 |
| Garages | 1 |
| Parkeerplaatsen | 0 |
| Doucheruimtes | 0 |
| Toiletten | 0 |
Faciliteiten
| Materiaal ramenomlijstingen | PVC |
|---|---|
| Beglazing | Standaard dubbel |
| Brandstof primaire verwarming | Gas |
| Elektrisch keuringsattest | Ja |
Perceel
| Overstromingsgevoelig | Geen |
|---|---|
| P-score | B |
| G-score | B |
| Voorkeurrecht | Nee |
| Totale oppervlakte (m²) | 150 |
| Bebouwde oppervlakte (m²) | 0 |
| Tuin oppervlakte (m²) | 0 |
| Oppervlakte terras (m²) | 0 |
Vergunning
| Vergunning | Geen beschikbaar |
|---|
Uitrusting
| Investeringspand | Nee |
|---|---|
| Geschikt voor praktijk | Nee |
| Parking | Nee |
| Garage | Ja |
| Thuiskantoor | Nee |
| Kelder | Nee |
| Zolder | Ja |
| Tuin | Nee |
| Terras | Nee |
| Lift | Nee |
| Rioolaansluiting | Ja |
| Gasaansluiting | Ja |
| Wateraansluiting | Ja |
| Elektriciteitsaansluiting | Ja |
| TV aansluiting | Ja |
| Internetaansluiting | Ja |
| Telefoonaansluiting | Ja |
